4.9
Рейтинг на основании 120 отзывов
Дмитров
Опорный проезд 28Б
(индустриальный парк Ниагара)
Бренд "Дмитров-Дело" c 2008 года на рынке строительства в Дмитрове
Звоните 9:00 до 18:00 8 (915) 055-33-61
Бренд "Дмитров-Дело" c 2008 года на рынке строительства в Дмитрове

Одноэтажный дом Fixplans-3329

Стоимость проекта от:
45 000 ₽
БЕСПЛАТНО! ПРИ ЗАКАЗЕ СТРОИТЕЛЬСТВА
Стоимость строительства от:
7 062 000 ₽
Артикул ART-19741
Дата 26.12.2025
Архитектурный стиль Европейский
Количество надземных этажей 1
Круглогодичное проживание Да
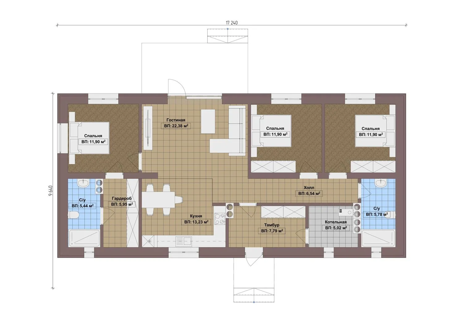
Площадь дома 100 м2
Санузлы 2
Спальни 3

Описание

Одноэталичный дом Fixplans‑3329 – воплощение простоты и элегантности европейского дизайна, созданный для тех, кто ценит уют, практичность и гармонию с природой. Благодаря двумрамной кровле и газобетонным стенам этот дом обеспечивает теплоизоляцию даже в холодную погоду, а просторные внутренние помещения позволяют вам чувствовать себя комфортно круглый год. Сочетание строгих линий и мягких оттенков придает интерьеру ощущение спокойствия и благородства, создавая идеальную атмосферу для семейной жизни, дружеских встреч или просто тихого отдыха после долгого дня. Дом оснащён функциональной чердачной площадью, которая может превратиться в дополнительный жилой уголок, кладовой или небольшую мастерскую – любой ваш креативный проект будет реализован без ограничений. Отсутствие балконов, веранд и прицепного гаража делает интерьер свободным от лишних элементов, а чистый ландшафт вокруг открывает пространство для вашей индивидуальной планировки сада или уличного огорода. Fixplans‑3329 – это ваш надежный и красивый дом, в котором гармонично сочетаются европейская эстетика, функциональность и забота о будущем. Приглашаем вас сделать шаг к жизни, которую вы мечтаете иметь!

Характеристики дома

Архитектурный стиль
Автоматизированное регулирование параметров теплоносителя
-
Балконы/лоджии
Отсутствуют
Чердачное помещение
Да
Датчики протечки воды
-
Эксплуатируемая или зеленая кровля
-
Электроснабжение
Центральное
Газоснабжение
Центральное
Изоляция воздушного шума
-
Камин
Нет
Класс энергоэффективности
-
Класс энергосбережения
-
Количество надземных этажей
1
Круглогодичное проживание
Да
Материал кровли
Металлочерепица
Материал перекрытий
Деревянные
Материал внешних стен
Материал внутренних перегородок
Пенобетонные
Модульное строительство с конструкциями заводского изготовления
Нет
Объем надземной части
561 м3
Основной материал фасадов
Штукатурка
Отопление
Индивидуальное
Площадь дома
100 м2
Площадь застройки
140 м2
Подвальное помещение
Нет
Показатель компактности здания
-
Приборы учета тепловой энергии
-
Пристроенный гараж/крытая автостоянка
Нет
Противопожарная система
Нет
Санузлы
2
Совмещенная кухня-гостиная
Нет
Спальни
3
Терраса
Нет
Тип фундамента
Плитный
Тип кровли
Толщина внешних стен
450 мм
Толщина внутренних перегородок
100 мм
Улучшенные шумовые характеристики
-
Вентиляция
Естественная
Веранда
Нет
Водоотведение
Локальные очистные сооружения
Водоснабжение
Индивидуальное
Высота дома
6 м
Высота потолков
3 м

Планировка

Фасад дома

Александр

Закажите выезд инженера

Александр

Выездной инженер
Закажите выезд инженера для точной диагностики и профессиональной консультации по инженерным системам. Специалист приедет в удобное время, проведёт осмотр, рассчитает стоимость работ и подберёт оптимальные решения для вашего дома.


    Похожие проекты

    Ипотека и
    рассрочка
    Проект «Чайка»
    Стоимость от:
    7 069 440
    Проект от: 43 200
    Этажей 2
    Санузлы 2
    Спальни 5
    Смотреть
    Ипотека и
    рассрочка
    КД «Томск»
    Стоимость от:
    7 900 200
    Проект от: 59 400
    Этажей 2
    Санузлы 2
    Спальни 5
    Смотреть
    Ипотека и
    рассрочка
    Одноэтажное шале №734
    Стоимость от:
    10 169 280
    Проект от: 64 800
    Этажей 1
    Санузлы 2
    Спальни 4
    Смотреть
    Ипотека и
    рассрочка
    Одноэтажный жилой дом Лаос 65 кв.м.
    Стоимость от:
    4 889 500
    Проект от: 29 250
    Этажей 1
    Санузлы 1
    Спальни 2
    Смотреть
    Ипотека и
    рассрочка
    Одноэтажный проект GRADE-1.2
    Стоимость от:
    9 315 680
    Проект от: 55 800
    Этажей 1
    Санузлы 1
    Спальни 3
    Смотреть
    Ипотека и
    рассрочка
    Загородный дом СО-145
    Стоимость от:
    10 239 900
    Проект от: 65 250
    Этажей 1
    Санузлы 2
    Спальни 2
    Смотреть

    Как узнать стоимость дома

    back
    Оставляете заявку
    Вы заполняете форму на сайте или звоните нам. Менеджер Лайвкрафт связывается с вами для уточнения деталей: тип дома, площадь, материалы, участок строительства.
    back
    Консультация и подбор решения
    Наш специалист помогает выбрать оптимальный тип дома и конструкцию с учётом бюджета, сроков и целей — будь то дом для постоянного проживания или дача.
    back
    Расчёт предварительной стоимости
    Инженер делает первичный расчёт стоимости строительства по вашим параметрам: фундамент, коробка, кровля, отделка. Вы получаете смету с разбивкой по этапам.
    back
    Корректировка и утверждение сметы
    При необходимости вносим изменения — например, замену материалов или сокращение этапов. После согласования формируется окончательная фиксированная смета.
    back
    Заключение договора и старт работ
    После утверждения сметы заключаем официальный договор с гарантией. Вы получаете прозрачный график и точную стоимость — без скрытых расходов.

    Заказать конусльтацию по:Одноэтажный дом Fixplans-3329

    Фото 1 Одноэтажный дом Fixplans-3329


      Наши
      контакты

      Дмитров
      Опорный проезд 28Б
      (индустриальный парк Ниагара)
      9:00 до 18:00

      Корзина