4.9
Рейтинг на основании 120 отзывов
Дмитров
Опорный проезд 28Б
(индустриальный парк Ниагара)
Бренд "Дмитров-Дело" c 2008 года на рынке строительства в Дмитрове
Звоните 9:00 до 18:00 8 (915) 055-33-61
Бренд "Дмитров-Дело" c 2008 года на рынке строительства в Дмитрове

«OKSODOMIK-83 в 1 этаж»

Стоимость проекта от:
37 350 ₽
БЕСПЛАТНО! ПРИ ЗАКАЗЕ СТРОИТЕЛЬСТВА
Стоимость строительства от:
5 678 860 ₽
Артикул ART-10129
Дата 25.12.2025
Архитектурный стиль Скандинавский
Количество надземных этажей 1
Круглогодичное проживание Да
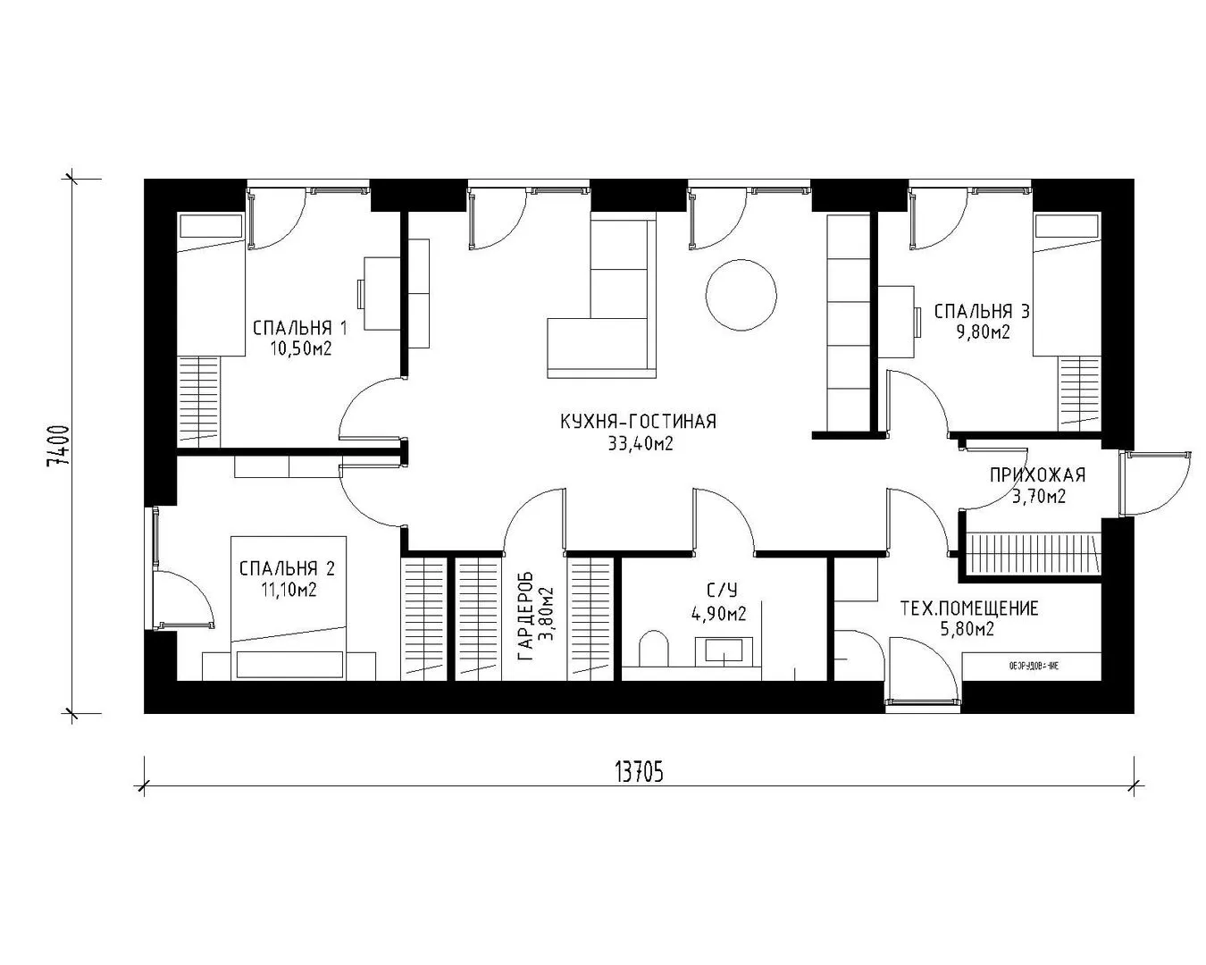
Площадь дома 83 м2
Санузлы 1
Спальни 3

Описание

Добро пожаловать в уютный уголок, где каждый метр пропитан атмосферой скандинавского спокойствия – дом OKSODOMIK‑83. Это одноэтажное жильё, созданное с мыслью о круглогодичном комфорте: большие окна наполняют комнату естественным светом, а теплоизоляция газобетонных блоков обеспечивает стабильную температуру даже в самые морозные дни. Просторные комнаты легко адаптируются под любой образ жизни: будь то домашний офис, уютная студия или комната для гостей – вам найдётся место. Интерьер, выполненный в стиле скандинавского минимализма, подчёркивает открытое пространство и чистые линии. Здесь нет лишних балконов и веранды, но есть практичное чердачное помещение, которое можно превратить в дополнительную спальню, домашнюю библиотеку или место для хобби. Двускатная крыша с изысканной простотой придаёт всему дому характер и надежность, а внешние стены из газобетонных блоков обеспечивают не только энергоэффективность, но и тихий, почти безшумный внутренний мир. Ощутите истинный комфорт в доме, где каждая деталь продумана так, чтобы вы чувствовали себя как дома – и даже лучше. OKSODOMIK‑83 приглашает вас открыть дверь в свой новый стиль жизни, где простота встречается с функцией, а уют – с практичностью. Сделайте шаг к дому, который воплощает ваши мечты о спокойствии и вдохновении.

Характеристики дома

Архитектурный стиль
Автоматизированное регулирование параметров теплоносителя
Да
Балконы/лоджии
Отсутствуют
Чердачное помещение
Да
Датчики протечки воды
Нет
Эксплуатируемая или зеленая кровля
Нет
Электроснабжение
Центральное
Газоснабжение
Центральное
Изоляция воздушного шума
Да
Камин
Нет
Класс энергоэффективности
A
Класс энергосбережения
A
Количество надземных этажей
1
Круглогодичное проживание
Да
Материал кровли
Металлические листовые гофрированные профили
Материал перекрытий
Деревянные
Материал внешних стен
Материал внутренних перегородок
Блочные
Модульное строительство с конструкциями заводского изготовления
Нет
Объем надземной части
400 м3
Основной материал фасадов
Облицовочный кирпич
Отопление
Индивидуальное
Площадь дома
83 м2
Площадь застройки
101 м2
Подвальное помещение
Нет
Показатель компактности здания
1
Приборы учета тепловой энергии
Да
Пристроенный гараж/крытая автостоянка
Нет
Противопожарная система
Нет
Санузлы
1
Совмещенная кухня-гостиная
Да
Спальни
3
Терраса
Нет
Тип фундамента
Плитный
Тип кровли
Толщина внешних стен
450 мм
Толщина внутренних перегородок
130 мм
Улучшенные шумовые характеристики
Да
Вентиляция
Принудительная
Веранда
Нет
Водоотведение
Локальные очистные сооружения
Водоснабжение
Индивидуальное
Высота дома
5.1 м
Высота потолков
2.6 м

Планировка

Фасад дома

Александр

Закажите выезд инженера

Александр

Выездной инженер
Закажите выезд инженера для точной диагностики и профессиональной консультации по инженерным системам. Специалист приедет в удобное время, проведёт осмотр, рассчитает стоимость работ и подберёт оптимальные решения для вашего дома.


    Похожие проекты

    Ипотека и
    рассрочка
    Проект 1
    Стоимость от:
    6 073 320
    Проект от: 38 700
    Этажей 1
    Санузлы 1
    Спальни 2
    Смотреть
    Ипотека и
    рассрочка
    Одноэтажный дом Fixplans — 0422
    Стоимость от:
    7 909 440
    Проект от: 50 400
    Этажей 1
    Санузлы 1
    Спальни 2
    Смотреть
    Ипотека и
    рассрочка
    Одноэтажный дом Fixplans-7874
    Стоимость от:
    8 511 800
    Проект от: 49 500
    Этажей 1
    Санузлы 2
    Спальни 3
    Смотреть
    Ипотека и
    рассрочка
    Одноэтажный дом 90 кв.м КБ-054
    Стоимость от:
    6 765 000
    Проект от: 40 500
    Этажей 1
    Санузлы 1
    Спальни 3
    Смотреть
    Ипотека и
    рассрочка
    Одноэтажный дом С-71,9
    Стоимость от:
    6 355 800
    Проект от: 40 500
    Этажей 1
    Санузлы 1
    Спальни 2
    Смотреть
    Ипотека и
    рассрочка
    КД 21-22 «Калининград»
    Стоимость от:
    6 023 160
    Проект от: 48 600
    Этажей 1
    Санузлы 1
    Спальни 3
    Смотреть

    Как узнать стоимость дома

    back
    Оставляете заявку
    Вы заполняете форму на сайте или звоните нам. Менеджер Лайвкрафт связывается с вами для уточнения деталей: тип дома, площадь, материалы, участок строительства.
    back
    Консультация и подбор решения
    Наш специалист помогает выбрать оптимальный тип дома и конструкцию с учётом бюджета, сроков и целей — будь то дом для постоянного проживания или дача.
    back
    Расчёт предварительной стоимости
    Инженер делает первичный расчёт стоимости строительства по вашим параметрам: фундамент, коробка, кровля, отделка. Вы получаете смету с разбивкой по этапам.
    back
    Корректировка и утверждение сметы
    При необходимости вносим изменения — например, замену материалов или сокращение этапов. После согласования формируется окончательная фиксированная смета.
    back
    Заключение договора и старт работ
    После утверждения сметы заключаем официальный договор с гарантией. Вы получаете прозрачный график и точную стоимость — без скрытых расходов.

    Заказать конусльтацию по:«OKSODOMIK-83 в 1 этаж»

    Фото 1 «OKSODOMIK-83 в 1 этаж»


      Наши
      контакты

      Дмитров
      Опорный проезд 28Б
      (индустриальный парк Ниагара)
      9:00 до 18:00

      Корзина