4.9
Рейтинг на основании 120 отзывов
Дмитров
Опорный проезд 28Б
(индустриальный парк Ниагара)
Бренд "Дмитров-Дело" c 2008 года на рынке строительства в Дмитрове
Звоните 9:00 до 18:00 8 (915) 055-33-61
Бренд "Дмитров-Дело" c 2008 года на рынке строительства в Дмитрове

1ЁШ83

Стоимость проекта от:
37 350 ₽
БЕСПЛАТНО! ПРИ ЗАКАЗЕ СТРОИТЕЛЬСТВА
Стоимость строительства от:
6 239 860 ₽
Артикул ART-5511
Дата 26.12.2025
Архитектурный стиль Классический
Количество надземных этажей 1
Круглогодичное проживание Да
Площадь дома 83 м2
Санузлы 1
Спальни 3

Описание

Добро пожаловать в уютный одноэтажный дом № 1ЁШ83 – воплощение классического стиля в сочетании с современным комфортом. Удобно продуманная планировка позволяет наслаждаться светлыми, просторными помещениями круглый год: от просторной гостиной до теплоизоляционных газобетонных стен, которые сохраняют тепло в зиму и прохладу в летнюю жару. Двускатная крыша придаёт дому элегантный силуэт, а большое чердачное помещение открывает дополнительные возможности для хранения или создания уютного уголка творчества. Среди доступных зон – отдельный балкон и просторная терраса, где можно провести вечер за чашкой ароматного кофе, наслаждаясь звёздным небом или рассветом. Ощутите лёгкую свежесть приёма в открытом пространстве, а также практичность – на территории нет пристроенного гаража, однако планировка позволяет легко разместить автомобиль на открытой стоянке рядом с улицей. Внутри дома создаётся ощущение уюта и защищённости благодаря высокому качеству материалов и продуманной теплоизоляции. Этот дом – идеальное решение для тех, кто ценит классическую эстетику, но нуждается в функциональности и комфорте. Будьте уверены, что каждый момент, проведённый здесь, будет наполнен тёплыми семейными традициями и беззаботной радостью простых удовольствий. Добро пожаловать к вам в новый дом, где каждая деталь создана с душой!

Характеристики дома

Архитектурный стиль
Автоматизированное регулирование параметров теплоносителя
-
Балконы/лоджии
1
Чердачное помещение
Да
Датчики протечки воды
-
Эксплуатируемая или зеленая кровля
-
Электроснабжение
Центральное
Газоснабжение
Центральное
Изоляция воздушного шума
-
Камин
Нет
Класс энергоэффективности
-
Класс энергосбережения
-
Количество надземных этажей
1
Круглогодичное проживание
Да
Материал кровли
Металлочерепица
Материал перекрытий
Деревянные
Материал внешних стен
Материал внутренних перегородок
Пенобетонные
Модульное строительство с конструкциями заводского изготовления
Нет
Объем надземной части
264 м3
Основной материал фасадов
Штукатурка
Отопление
Центральное
Площадь дома
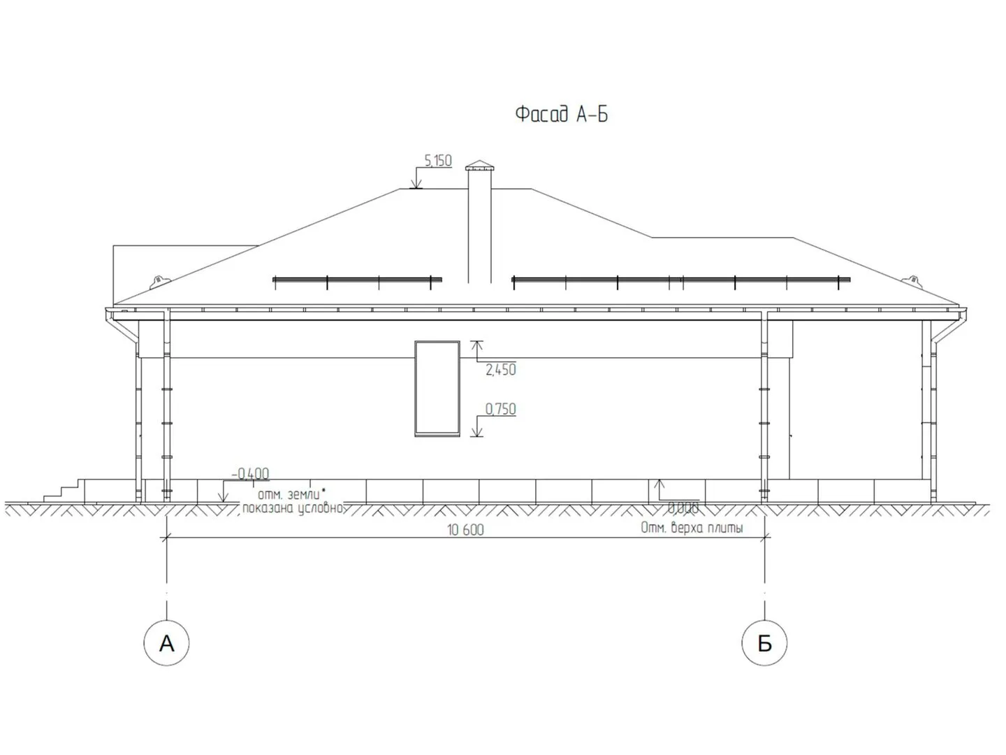
83 м2
Площадь застройки
100 м2
Подвальное помещение
Нет
Показатель компактности здания
-
Приборы учета тепловой энергии
-
Пристроенный гараж/крытая автостоянка
Нет
Противопожарная система
Нет
Санузлы
1
Совмещенная кухня-гостиная
Да
Спальни
3
Терраса
Да
Тип фундамента
Свайно-ростверковый
Тип кровли
Толщина внешних стен
300 мм
Толщина внутренних перегородок
200 мм
Улучшенные шумовые характеристики
-
Вентиляция
Естественная
Веранда
Нет
Водоотведение
Центральное
Водоснабжение
Центральное
Высота дома
5 м
Высота потолков
3 м

Планировка

Фасад дома

Александр

Закажите выезд инженера

Александр

Выездной инженер
Закажите выезд инженера для точной диагностики и профессиональной консультации по инженерным системам. Специалист приедет в удобное время, проведёт осмотр, рассчитает стоимость работ и подберёт оптимальные решения для вашего дома.


    Похожие проекты

    Ипотека и
    рассрочка
    Дом из сборного железобетона FP-3у «Big Boss 2.0»
    Стоимость от:
    13 957 680
    Проект от: 91 800
    Этажей 1
    Санузлы 2
    Спальни 3
    Смотреть
    Ипотека и
    рассрочка
    Одноэтажный дом БАРН-167
    Стоимость от:
    2 835 855
    Проект от: 22 950
    Этажей 1
    Санузлы 1
    Спальни 1
    Смотреть
    Ипотека и
    рассрочка
    Проект мансардного дома №15
    Стоимость от:
    7 271 280
    Проект от: 43 650
    Этажей 2
    Санузлы 4
    Спальни 4
    Смотреть
    Ипотека и
    рассрочка
    Одноэтажный дом по каркасной технологии РС-10
    Стоимость от:
    6 069 525
    Проект от: 47 250
    Этажей 1
    Санузлы 1
    Спальни 2
    Смотреть
    Ипотека и
    рассрочка
    Одноэтажный дом К-135
    Стоимость от:
    9 604 320
    Проект от: 61 200
    Этажей 1
    Санузлы 1
    Спальни 3
    Смотреть
    Ипотека и
    рассрочка
    Д2-199
    Стоимость от:
    12 827 280
    Проект от: 87 300
    Этажей 2
    Санузлы 2
    Спальни 4
    Смотреть

    Как узнать стоимость дома

    back
    Оставляете заявку
    Вы заполняете форму на сайте или звоните нам. Менеджер Лайвкрафт связывается с вами для уточнения деталей: тип дома, площадь, материалы, участок строительства.
    back
    Консультация и подбор решения
    Наш специалист помогает выбрать оптимальный тип дома и конструкцию с учётом бюджета, сроков и целей — будь то дом для постоянного проживания или дача.
    back
    Расчёт предварительной стоимости
    Инженер делает первичный расчёт стоимости строительства по вашим параметрам: фундамент, коробка, кровля, отделка. Вы получаете смету с разбивкой по этапам.
    back
    Корректировка и утверждение сметы
    При необходимости вносим изменения — например, замену материалов или сокращение этапов. После согласования формируется окончательная фиксированная смета.
    back
    Заключение договора и старт работ
    После утверждения сметы заключаем официальный договор с гарантией. Вы получаете прозрачный график и точную стоимость — без скрытых расходов.

    Заказать конусльтацию по:1ЁШ83

    Фото 1 1ЁШ83


      Наши
      контакты

      Дмитров
      Опорный проезд 28Б
      (индустриальный парк Ниагара)
      9:00 до 18:00

      Корзина