4.9
Рейтинг на основании 120 отзывов
Дмитров
Опорный проезд 28Б
(индустриальный парк Ниагара)
Бренд "Дмитров-Дело" c 2008 года на рынке строительства в Дмитрове
Звоните 9:00 до 18:00 8 (915) 055-33-61
Бренд "Дмитров-Дело" c 2008 года на рынке строительства в Дмитрове

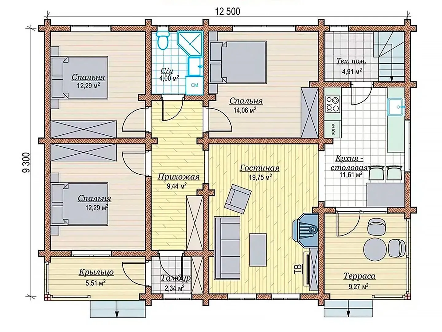
Одноэтажный дом Фюссен 9,3х12.5

Стоимость проекта от:
47 250 ₽
БЕСПЛАТНО! ПРИ ЗАКАЗЕ СТРОИТЕЛЬСТВА
Стоимость строительства от:
7 184 100 ₽
Артикул ART-16783
Дата 26.12.2025
Архитектурный стиль Классический
Количество надземных этажей 1
Круглогодичное проживание Да
Площадь дома 105 м2
Санузлы 1
Спальни 3

Описание

Уютный одноэтажный дом в стиле «Фюссен» — это воплощение спокойствия и надёжности, где каждый уголок приглашает вас почувствовать себя дома. С широкой планировкой 9,3 × 12,5 метров, он идеально подходит как для молодых семей, так и для тех, кто ценит свободное пространство. Классический фасад, выполненный из плотного клеёного бруса, создаёт ощущение тёплой устойчивости, а надёжная двухскатная крыша защищает от всех погодных условий, делая этот дом идеальным для круглогодичного проживания. Внутри вас ждёт открытая атмосфера, где свет льется в большие большие оконные проёмы, а деревянные детали подчёркивают естественную эстетику. Просторный коридор ведёт к благополучной гостиной с доступом на просторную террасу — здесь можно расслабляться после рабочего дня, наслаждаясь свежим воздухом и видом на зелёные насаждения. Отсутствие балконов и веранд не меняет: каждая крошечная сцена домашней жизни здесь найдёт своё место, а отсутствие прицепленного гаража подчёркивает простоту и практичность, а также освобождает территорию для уединённости или небольших садовых мероприятий. Фюссен 9,3х12,5 — это дома, где качество материалов соединяется с традиционной архитектурой, создавая среду, в которой хочется жить, отдыхать и мечтать. Он обещает не просто жильё, а стиль, который вы будете ценить каждый день, ощущая себя безопасно и уютно в собственном пространстве.

Характеристики дома

Архитектурный стиль
Автоматизированное регулирование параметров теплоносителя
Да
Балконы/лоджии
Отсутствуют
Чердачное помещение
Нет
Датчики протечки воды
Да
Эксплуатируемая или зеленая кровля
Нет
Электроснабжение
2 варианта
Газоснабжение
2 варианта
Изоляция воздушного шума
Нет
Камин
Нет
Класс энергоэффективности
A
Класс энергосбережения
A
Количество надземных этажей
1
Круглогодичное проживание
Да
Материал кровли
Фальцевая кровля Кликфальц
Материал перекрытий
Деревянные
Материал внешних стен
Материал внутренних перегородок
Деревянные
Модульное строительство с конструкциями заводского изготовления
Да
Объем надземной части
-
Основной материал фасадов
Дерево
Отопление
2 варианта
Площадь дома
105 м2
Площадь застройки
116 м2
Подвальное помещение
Нет
Показатель компактности здания
0.85
Приборы учета тепловой энергии
Нет
Пристроенный гараж/крытая автостоянка
Нет
Противопожарная система
Да
Санузлы
1
Совмещенная кухня-гостиная
Нет
Спальни
3
Терраса
Да
Тип фундамента
Плитный
Тип кровли
Толщина внешних стен
210 мм
Толщина внутренних перегородок
168 мм
Улучшенные шумовые характеристики
Нет
Вентиляция
2 варианта
Веранда
Нет
Водоотведение
2 варианта
Водоснабжение
2 варианта
Высота дома
5 м
Высота потолков
4 м

Планировка

Фасад дома

Александр

Закажите выезд инженера

Александр

Выездной инженер
Закажите выезд инженера для точной диагностики и профессиональной консультации по инженерным системам. Специалист приедет в удобное время, проведёт осмотр, рассчитает стоимость работ и подберёт оптимальные решения для вашего дома.


    Похожие проекты

    Ипотека и
    рассрочка
    Загородный дом АС-259
    Стоимость от:
    8 211 000
    Проект от: 63 000
    Этажей 2
    Санузлы 2
    Спальни 3
    Смотреть
    Ипотека и
    рассрочка
    Теплый дом из СИП панелей Гарант-2
    Стоимость от:
    5 001 095
    Проект от: 35 550
    Этажей 1
    Санузлы 1
    Спальни 3
    Смотреть
    Ипотека и
    рассрочка
    Перспективный Д1
    Стоимость от:
    7 530 720
    Проект от: 52 200
    Этажей 2
    Санузлы 1
    Спальни 2
    Смотреть
    Ипотека и
    рассрочка
    Двухэтажный дом с 4 спальнями Уват
    Стоимость от:
    10 755 360
    Проект от: 69 300
    Этажей 2
    Санузлы 3
    Спальни 4
    Смотреть
    Ипотека и
    рассрочка
    Модульный дом FL 65 (В65)
    Стоимость от:
    3 513 510
    Проект от: 28 350
    Этажей 1
    Санузлы 1
    Спальни 2
    Смотреть
    Ипотека и
    рассрочка
    Скандинавия 110
    Стоимость от:
    7 768 200
    Проект от: 49 500
    Этажей 1
    Санузлы 1
    Спальни 2
    Смотреть

    Как узнать стоимость дома

    back
    Оставляете заявку
    Вы заполняете форму на сайте или звоните нам. Менеджер Лайвкрафт связывается с вами для уточнения деталей: тип дома, площадь, материалы, участок строительства.
    back
    Консультация и подбор решения
    Наш специалист помогает выбрать оптимальный тип дома и конструкцию с учётом бюджета, сроков и целей — будь то дом для постоянного проживания или дача.
    back
    Расчёт предварительной стоимости
    Инженер делает первичный расчёт стоимости строительства по вашим параметрам: фундамент, коробка, кровля, отделка. Вы получаете смету с разбивкой по этапам.
    back
    Корректировка и утверждение сметы
    При необходимости вносим изменения — например, замену материалов или сокращение этапов. После согласования формируется окончательная фиксированная смета.
    back
    Заключение договора и старт работ
    После утверждения сметы заключаем официальный договор с гарантией. Вы получаете прозрачный график и точную стоимость — без скрытых расходов.

    Заказать конусльтацию по:Одноэтажный дом Фюссен 9,3х12.5

    Фото 1 Одноэтажный дом Фюссен 9,3х12.5


      Наши
      контакты

      Дмитров
      Опорный проезд 28Б
      (индустриальный парк Ниагара)
      9:00 до 18:00

      Корзина