4.9
Рейтинг на основании 120 отзывов
Дмитров
Опорный проезд 28Б
(индустриальный парк Ниагара)
Бренд "Дмитров-Дело" c 2008 года на рынке строительства в Дмитрове
Звоните 9:00 до 18:00 8 (915) 055-33-61
Бренд "Дмитров-Дело" c 2008 года на рынке строительства в Дмитрове

Одноэтажный дом по проекту «Nest L — 62,12 м2»

Стоимость проекта от:
27 900 ₽
БЕСПЛАТНО! ПРИ ЗАКАЗЕ СТРОИТЕЛЬСТВА
Стоимость строительства от:
4 378 440 ₽
Артикул ART-18364
Дата 26.12.2025
Архитектурный стиль Европейский
Количество надземных этажей 1
Круглогодичное проживание Да
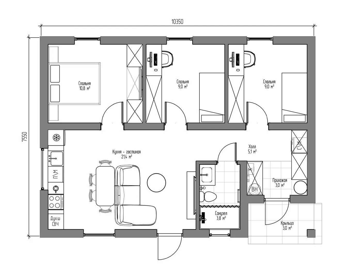
Площадь дома 62 м2
Санузлы 1
Спальни 3

Описание

Небольшой, но очень уютный семейный уголок — одноэтажный дом «Nest L» площадью 62,12 м², выполненный в классическом европейском стиле. Его элегантная форма и строгая композиция создают ощущение спокойствия и надёжности, а круглогодичное проживание становится не просто возможным, а комфортным. Внутреннее пространство открыто и светлое: большие окна наполняют дом солнечным светом, а воздушные, теплоизолирующие керамзитобетонные блоки обеспечат приятную микроклиматическую стабильность даже в холодные дни. Дом оснащён удобной чердачной кладовой, где можно хранить сезонные вещи и предметы, а двускатная крыша придаёт ему величественный вид и защищает жильё от непогоды. Внутренний план — просторная гостиная, открытая на кухню и столовую, где всегда будет место для семейных обедов и дружеских встреч. Просторная площадка для прогулок, отсутствие веранды и балконов делает это жильё идеальной отправной точкой для тех, кто ценит уют и практичность. Здесь вы найдёте гармонию традиций и современного комфорта, а каждый день будет начинаться и завершаться в атмосфере европейского стиля.

Характеристики дома

Архитектурный стиль
Автоматизированное регулирование параметров теплоносителя
Нет
Балконы/лоджии
Отсутствуют
Чердачное помещение
Да
Датчики протечки воды
Нет
Эксплуатируемая или зеленая кровля
Нет
Электроснабжение
Не предусмотрено
Газоснабжение
Не предусмотрено
Изоляция воздушного шума
Нет
Камин
Нет
Класс энергоэффективности
-
Класс энергосбережения
-
Количество надземных этажей
1
Круглогодичное проживание
Да
Материал кровли
Металлочерепица
Материал перекрытий
Деревянные
Материал внешних стен
Материал внутренних перегородок
Блочные
Модульное строительство с конструкциями заводского изготовления
Нет
Объем надземной части
305 м3
Основной материал фасадов
Штукатурка
Отопление
Индивидуальное
Площадь дома
62 м2
Площадь застройки
62 м2
Подвальное помещение
Нет
Показатель компактности здания
-
Приборы учета тепловой энергии
Нет
Пристроенный гараж/крытая автостоянка
Нет
Противопожарная система
Нет
Санузлы
1
Совмещенная кухня-гостиная
Да
Спальни
3
Терраса
Нет
Тип фундамента
Плитный
Тип кровли
Толщина внешних стен
250 мм
Толщина внутренних перегородок
120 мм
Улучшенные шумовые характеристики
Нет
Вентиляция
Принудительная
Веранда
Нет
Водоотведение
Не предусмотрено
Водоснабжение
Не предусмотрено
Высота дома
4.46 м
Высота потолков
2.85 м

Планировка

Фасад дома

Александр

Закажите выезд инженера

Александр

Выездной инженер
Закажите выезд инженера для точной диагностики и профессиональной консультации по инженерным системам. Специалист приедет в удобное время, проведёт осмотр, рассчитает стоимость работ и подберёт оптимальные решения для вашего дома.


    Похожие проекты

    Ипотека и
    рассрочка
    Индивидуальный жилой дом с гаражом
    Стоимость от:
    11 511 060
    Проект от: 73 350
    Этажей 1
    Санузлы 2
    Спальни 3
    Смотреть
    Ипотека и
    рассрочка
    Индивидуальный жилой дом
    Стоимость от:
    7 140 960
    Проект от: 51 300
    Этажей 2
    Санузлы 2
    Спальни 3
    Смотреть
    Ипотека и
    рассрочка
    П1-127-сп3
    Стоимость от:
    9 315 680
    Проект от: 55 800
    Этажей 1
    Санузлы 3
    Спальни 3
    Смотреть
    Ипотека и
    рассрочка
    Одноэтажный дом Sweden 130
    Стоимость от:
    9 168 280
    Проект от: 60 300
    Этажей 1
    Санузлы 2
    Спальни 3
    Смотреть
    Ипотека и
    рассрочка
    Каркасный дом «Агат»
    Стоимость от:
    6 666 550
    Проект от: 51 750
    Этажей 1
    Санузлы 1
    Спальни 3
    Смотреть
    Ипотека и
    рассрочка
    Комфортный дом М-01
    Стоимость от:
    4 760 250
    Проект от: 33 750
    Этажей 1
    Санузлы 1
    Спальни 2
    Смотреть

    Как узнать стоимость дома

    back
    Оставляете заявку
    Вы заполняете форму на сайте или звоните нам. Менеджер Лайвкрафт связывается с вами для уточнения деталей: тип дома, площадь, материалы, участок строительства.
    back
    Консультация и подбор решения
    Наш специалист помогает выбрать оптимальный тип дома и конструкцию с учётом бюджета, сроков и целей — будь то дом для постоянного проживания или дача.
    back
    Расчёт предварительной стоимости
    Инженер делает первичный расчёт стоимости строительства по вашим параметрам: фундамент, коробка, кровля, отделка. Вы получаете смету с разбивкой по этапам.
    back
    Корректировка и утверждение сметы
    При необходимости вносим изменения — например, замену материалов или сокращение этапов. После согласования формируется окончательная фиксированная смета.
    back
    Заключение договора и старт работ
    После утверждения сметы заключаем официальный договор с гарантией. Вы получаете прозрачный график и точную стоимость — без скрытых расходов.

    Заказать конусльтацию по:Одноэтажный дом по проекту «Nest L — 62,12 м2»

    Фото 1 Одноэтажный дом по проекту «Nest L — 62,12 м2»


      Наши
      контакты

      Дмитров
      Опорный проезд 28Б
      (индустриальный парк Ниагара)
      9:00 до 18:00

      Корзина