4.9
Рейтинг на основании 120 отзывов
Дмитров
Опорный проезд 28Б
(индустриальный парк Ниагара)
Бренд "Дмитров-Дело" c 2008 года на рынке строительства в Дмитрове
Звоните 9:00 до 18:00 8 (915) 055-33-61
Бренд "Дмитров-Дело" c 2008 года на рынке строительства в Дмитрове

Загородный дом «Марс»

Стоимость проекта от:
66 150 ₽
БЕСПЛАТНО! ПРИ ЗАКАЗЕ СТРОИТЕЛЬСТВА
Стоимость строительства от:
10 381 140 ₽
Артикул ART-16892
Дата 26.12.2025
Архитектурный стиль Классический
Количество надземных этажей 1
Круглогодичное проживание Да
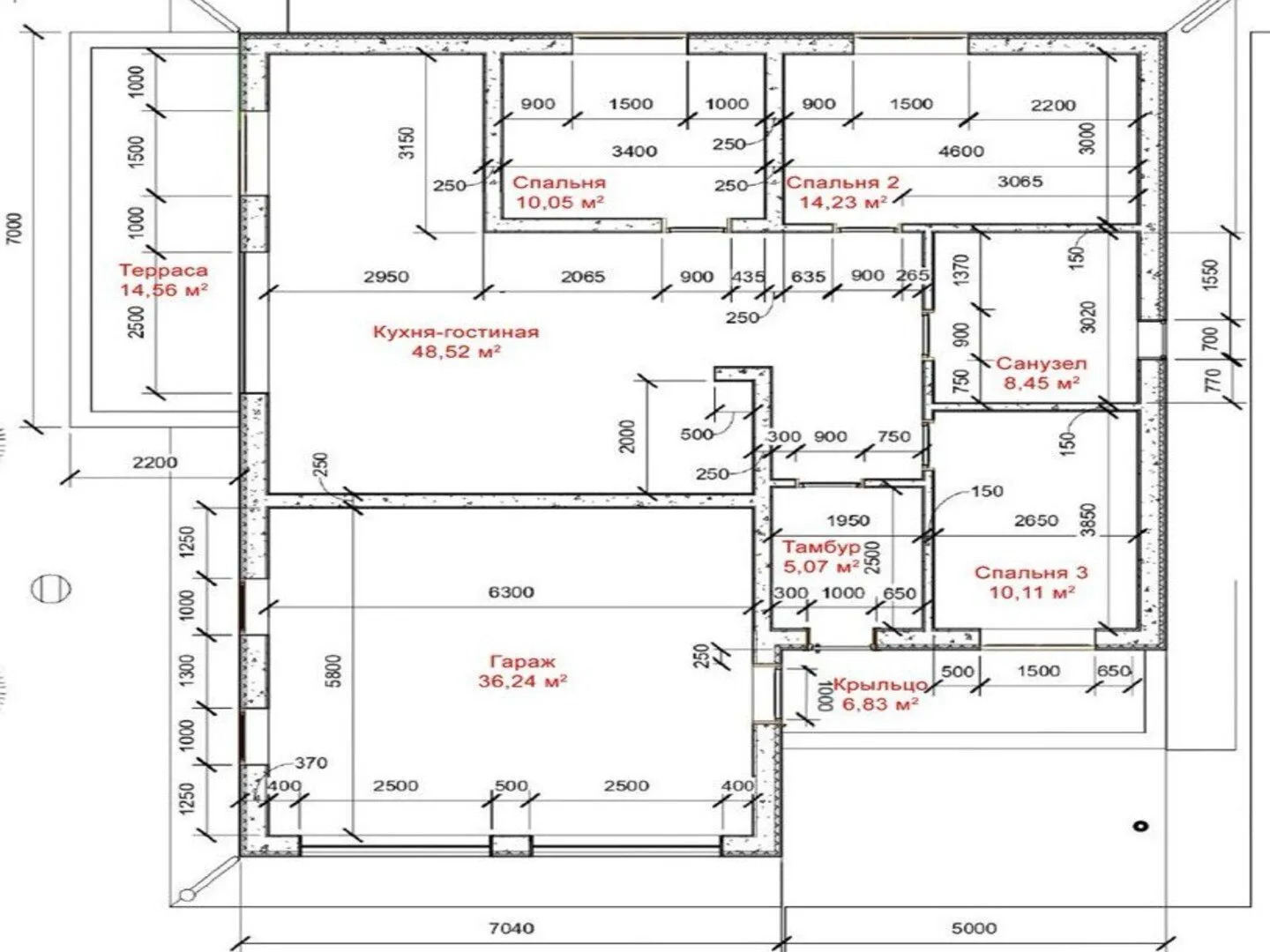
Площадь дома 147 м2
Санузлы 1
Спальни 3

Описание

Добро пожаловать в загородный дом «Марс» – настоящий оазис уюта и комфорта, который вы можете назвать своим собственным уголком спокойствия. Величественный классический внешний вид, нежно подчеркиваемый тонкими линиями и изысканными деталями, сразу же погружает в атмосферу традиционного благородства. Дом построен с учётом всех современных требований к комфорту: благодаря комбинированной крыше и газобетонным блокам стены сохраняют уют внутри на протяжении всего года, а теплоизоляция и шумоизоляция позволяют наслаждаться тишиной даже в самом шумном сезоне. Просторный одиннадземный этаж обустроен так, чтобы каждый уголок был функциональным и при этом эстетически приятным. Плавно переходящие от внутреннего пространства к террасе зоны создают ощущение бесконечного простора, а отсутствие балконов и веранд не мешают ощущать свежий воздух: с террасы раскрывается живописный вид на окрестности, а отрывает дверь к природе, которую хочется обнимать каждый вечер. Пристроенный гараж и крытая автостоянка обеспечат надежную защиту вашего автомобиля и подарят удобство даже в самый холодный зимний день. Дом «Марс» – это идеальное сочетание классики, практичности и современного комфорта. Он идеально подходит как для круглогодичного проживания, так и для летних заграничных уик-ендов: уютная кухня приглашает к семейным ужинам, а просторные гостиные создают атмосферу уюта и тепла. Войдите, и вы сразу почувствуете, как дом становится вашим отражением, а не просто зданием. Превратите мечту о спокойной жизни в реальность – выберите «Марс» и позвольте ему стать вашим новым домом.

Характеристики дома

Архитектурный стиль
Автоматизированное регулирование параметров теплоносителя
Да
Балконы/лоджии
Отсутствуют
Чердачное помещение
Нет
Датчики протечки воды
Да
Эксплуатируемая или зеленая кровля
Нет
Электроснабжение
Центральное
Газоснабжение
Центральное
Изоляция воздушного шума
Да
Камин
Нет
Класс энергоэффективности
A++
Класс энергосбережения
A++
Количество надземных этажей
1
Круглогодичное проживание
Да
Материал кровли
Металлочерепица
Материал перекрытий
Деревянные
Материал внешних стен
Материал внутренних перегородок
Блочные
Модульное строительство с конструкциями заводского изготовления
Нет
Объем надземной части
147 м3
Основной материал фасадов
Облицовочный кирпич
Отопление
Индивидуальное
Площадь дома
147 м2
Площадь застройки
180 м2
Подвальное помещение
Нет
Показатель компактности здания
0.69
Приборы учета тепловой энергии
Да
Пристроенный гараж/крытая автостоянка
Да
Противопожарная система
Да
Санузлы
1
Совмещенная кухня-гостиная
Да
Спальни
3
Терраса
Да
Тип фундамента
Плитный
Тип кровли
Толщина внешних стен
400 мм
Толщина внутренних перегородок
300 мм
Улучшенные шумовые характеристики
Да
Вентиляция
Принудительная
Веранда
Нет
Водоотведение
Локальные очистные сооружения
Водоснабжение
Индивидуальное
Высота дома
5.1 м
Высота потолков
2.7 м

Планировка

Фасад дома

Александр

Закажите выезд инженера

Александр

Выездной инженер
Закажите выезд инженера для точной диагностики и профессиональной консультации по инженерным системам. Специалист приедет в удобное время, проведёт осмотр, рассчитает стоимость работ и подберёт оптимальные решения для вашего дома.


    Похожие проекты

    Ипотека и
    рассрочка
    Каркасный дом ДСС-002
    Стоимость от:
    3 503 115
    Проект от: 28 350
    Этажей 1
    Санузлы 1
    Спальни 1
    Смотреть
    Ипотека и
    рассрочка
    Практик
    Стоимость от:
    13 410 320
    Проект от: 88 200
    Этажей 1
    Санузлы 2
    Спальни 4
    Смотреть
    Ипотека и
    рассрочка
    Ай-Петри
    Стоимость от:
    7 140 100
    Проект от: 42 750
    Этажей 1
    Санузлы 2
    Спальни 3
    Смотреть
    Ипотека и
    рассрочка
    Двухэтажный дом БРАИТ-33К
    Стоимость от:
    15 842 880
    Проект от: 95 400
    Этажей 2
    Санузлы 2
    Спальни 4
    Смотреть
    Ипотека и
    рассрочка
    D192-1
    Стоимость от:
    7 822 320
    Проект от: 52 200
    Этажей 1
    Санузлы 1
    Спальни 2
    Смотреть
    Ипотека и
    рассрочка
    Загородный дом Гавань 140
    Стоимость от:
    10 751 180
    Проект от: 62 550
    Этажей 1
    Санузлы 1
    Спальни 3
    Смотреть

    Как узнать стоимость дома

    back
    Оставляете заявку
    Вы заполняете форму на сайте или звоните нам. Менеджер Лайвкрафт связывается с вами для уточнения деталей: тип дома, площадь, материалы, участок строительства.
    back
    Консультация и подбор решения
    Наш специалист помогает выбрать оптимальный тип дома и конструкцию с учётом бюджета, сроков и целей — будь то дом для постоянного проживания или дача.
    back
    Расчёт предварительной стоимости
    Инженер делает первичный расчёт стоимости строительства по вашим параметрам: фундамент, коробка, кровля, отделка. Вы получаете смету с разбивкой по этапам.
    back
    Корректировка и утверждение сметы
    При необходимости вносим изменения — например, замену материалов или сокращение этапов. После согласования формируется окончательная фиксированная смета.
    back
    Заключение договора и старт работ
    После утверждения сметы заключаем официальный договор с гарантией. Вы получаете прозрачный график и точную стоимость — без скрытых расходов.

    Заказать конусльтацию по:Загородный дом «Марс»

    Фото 1 Загородный дом «Марс»


      Наши
      контакты

      Дмитров
      Опорный проезд 28Б
      (индустриальный парк Ниагара)
      9:00 до 18:00

      Корзина