4.9
Рейтинг на основании 120 отзывов
Дмитров
Опорный проезд 28Б
(индустриальный парк Ниагара)
Бренд "Дмитров-Дело" c 2008 года на рынке строительства в Дмитрове
Звоните 9:00 до 18:00 8 (915) 055-33-61
Бренд "Дмитров-Дело" c 2008 года на рынке строительства в Дмитрове

24-225 Борг

Стоимость проекта от:
91 350 ₽
БЕСПЛАТНО! ПРИ ЗАКАЗЕ СТРОИТЕЛЬСТВА
Стоимость строительства от:
12 171 120 ₽
Артикул ART-14470
Дата 25.12.2025
Архитектурный стиль Классический
Количество надземных этажей 2
Круглогодичное проживание Да
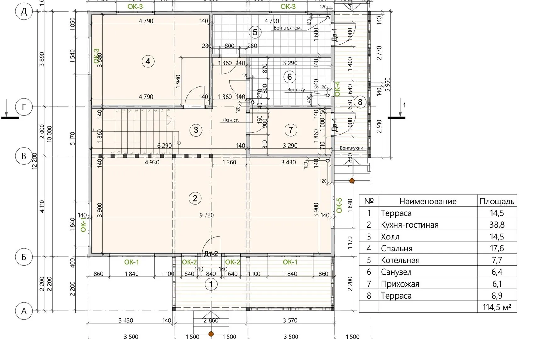
Площадь дома 203 м2
Санузлы 2
Спальни 4

Описание

Добро пожаловать в уютный уголок, где традиционный классический стиль встречается с современными удобствами. Этот двухэтажный деревянный дом по адресу 24‑225 Борг создан для тех, кто ценит гармонию и комфорт круглый год. Структура дома из прочного каркасного дерева придаёт ему теплое ощущение уюта, а двускатная крыша в классическом исполнении придаёт фасаду элегантный вид, напоминающий о русских усечных усадьбах. На каждом из этажей расположены просторные коридоры, большие окна, через которые льётся мягкий свет, а два балкона и открытая терраса позволяют наслаждаться свежим воздухом даже в самые живописные вечера. Капасность чердачного помещения делает дом идеальным для хранения сезонного оборудования, творчества или создания собственного небольшого мастер‑студийного пространства. Несмотря на отсутствие прицепленного гаража, предусмотрена крытая автостоянка, обеспечивающая защиту от непогоды. Весь дом пропитан атмосферой спокойствия и благородства, где каждый элемент продуман до мелочей: от изысканных деталей облицовки до качественных материалов. Именно здесь вы сможете организовать полноценную семейную жизнь, отдых и работу, находясь в круговой обстановке, где традиционный русский дизайн сочетается с практичностью современного быта. Этот дом – настоящий кладезь уюта, где каждый день ощущается как новое, светлое приключение.

Характеристики дома

Архитектурный стиль
Автоматизированное регулирование параметров теплоносителя
Нет
Балконы/лоджии
2
Чердачное помещение
Да
Датчики протечки воды
Нет
Эксплуатируемая или зеленая кровля
Нет
Электроснабжение
Центральное
Газоснабжение
Центральное
Изоляция воздушного шума
Нет
Камин
Нет
Класс энергоэффективности
-
Класс энергосбережения
-
Количество надземных этажей
2
Круглогодичное проживание
Да
Материал кровли
Металлочерепица
Материал перекрытий
Деревянные
Материал внешних стен
Материал внутренних перегородок
Деревянные
Модульное строительство с конструкциями заводского изготовления
Нет
Объем надземной части
801 м3
Основной материал фасадов
Сайдинг
Отопление
Индивидуальное
Площадь дома
203 м2
Площадь застройки
151 м2
Подвальное помещение
Нет
Показатель компактности здания
-
Приборы учета тепловой энергии
Нет
Пристроенный гараж/крытая автостоянка
Нет
Противопожарная система
Нет
Санузлы
2
Совмещенная кухня-гостиная
Да
Спальни
4
Терраса
Да
Тип фундамента
Свайный
Тип кровли
Толщина внешних стен
227 мм
Толщина внутренних перегородок
212 мм
Улучшенные шумовые характеристики
Нет
Вентиляция
Естественная
Веранда
Нет
Водоотведение
Локальные очистные сооружения
Водоснабжение
Индивидуальное
Высота дома
7.89 м
Высота потолков
3 м

Планировка

Фасад дома

Александр

Закажите выезд инженера

Александр

Выездной инженер
Закажите выезд инженера для точной диагностики и профессиональной консультации по инженерным системам. Специалист приедет в удобное время, проведёт осмотр, рассчитает стоимость работ и подберёт оптимальные решения для вашего дома.


    Похожие проекты

    Ипотека и
    рассрочка
    Двухэтажный дом В160
    Стоимость от:
    11 251 440
    Проект от: 72 450
    Этажей 2
    Санузлы 2
    Спальни 4
    Смотреть
    Ипотека и
    рассрочка
    Д2-199
    Стоимость от:
    12 827 280
    Проект от: 87 300
    Этажей 2
    Санузлы 2
    Спальни 4
    Смотреть
    Ипотека и
    рассрочка
    Проект 13
    Стоимость от:
    7 415 100
    Проект от: 47 250
    Этажей 1
    Санузлы 1
    Спальни 3
    Смотреть
    Ипотека и
    рассрочка
    Сан-133
    Стоимость от:
    9 392 460
    Проект от: 59 850
    Этажей 1
    Санузлы 2
    Спальни 3
    Смотреть
    Ипотека и
    рассрочка
    Каменный одноэтажный дом с террасой 143 «Комфорт»
    Стоимость от:
    9 510 380
    Проект от: 62 550
    Этажей 1
    Санузлы 2
    Спальни 4
    Смотреть
    Ипотека и
    рассрочка
    Одноэтажный жилой дом S-128
    Стоимость от:
    6 840 020
    Проект от: 40 950
    Этажей 1
    Санузлы 1
    Спальни 3
    Смотреть

    Как узнать стоимость дома

    back
    Оставляете заявку
    Вы заполняете форму на сайте или звоните нам. Менеджер Лайвкрафт связывается с вами для уточнения деталей: тип дома, площадь, материалы, участок строительства.
    back
    Консультация и подбор решения
    Наш специалист помогает выбрать оптимальный тип дома и конструкцию с учётом бюджета, сроков и целей — будь то дом для постоянного проживания или дача.
    back
    Расчёт предварительной стоимости
    Инженер делает первичный расчёт стоимости строительства по вашим параметрам: фундамент, коробка, кровля, отделка. Вы получаете смету с разбивкой по этапам.
    back
    Корректировка и утверждение сметы
    При необходимости вносим изменения — например, замену материалов или сокращение этапов. После согласования формируется окончательная фиксированная смета.
    back
    Заключение договора и старт работ
    После утверждения сметы заключаем официальный договор с гарантией. Вы получаете прозрачный график и точную стоимость — без скрытых расходов.

    Заказать конусльтацию по:24-225 Борг

    Фото 1 24-225 Борг


      Наши
      контакты

      Дмитров
      Опорный проезд 28Б
      (индустриальный парк Ниагара)
      9:00 до 18:00

      Корзина