4.9
Рейтинг на основании 120 отзывов
Дмитров
Опорный проезд 28Б
(индустриальный парк Ниагара)
Бренд "Дмитров-Дело" c 2008 года на рынке строительства в Дмитрове
Звоните 9:00 до 18:00 8 (915) 055-33-61
Бренд "Дмитров-Дело" c 2008 года на рынке строительства в Дмитрове

24АШ-МС А-Фрейм от Строй и Живи

Стоимость проекта от:
23 850 ₽
БЕСПЛАТНО! ПРИ ЗАКАЗЕ СТРОИТЕЛЬСТВА
Стоимость строительства от:
3 115 320 ₽
Артикул ART-17187
Дата 26.12.2025
Архитектурный стиль Хайтек
Количество надземных этажей 2
Круглогодичное проживание Да
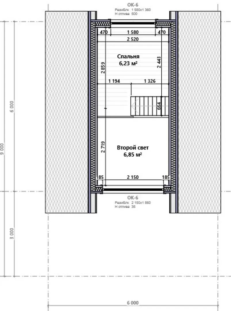
Площадь дома 53 м2
Санузлы 1
Спальни 1

Описание

Добро пожаловать в дом, где передовые технологии встречаются со свежестью природы. Модель **24АШ‑МС А‑Фрейм** – это современный двухэтажный проект, выполненный в стиле хай‑тек, который дарит вам ощущение лёгкости и открытости. Деревянный каркасный фасад придаёт дому тепло и ую́т, а двухскатная кровля создаёт приятный, почти скандинавский акцент, подчёркивающий чистую линию конструкции. Всё это гарантирует полноценное круглогодичное проживание: от прохладной зимы до яркого лета, благодаря продуманной теплоизоляции и современной системе вентиляции. Внутри дома царит гармония простых, но функциональных пространств. Отсутствие балконов и веранд даёт простор для создания индивидуальных уголков, в которых вы можете настроить обстановку под свой вкус. А просторная терраса становится идеальным местом для завтрака на свежем воздухе или уютных вечером у костра. Благодаря современному плану, каждый квадратный метр используется максимально эффективно, обеспечивая комфорт и практичность. Никаких лишних гаражных помещений и чердачных помещений – здесь главное место занимает жизнь в гармонии с природой. И всё равно вы получаете все удобства: двухэтажный дом, открытые пространства, современные решения в каждой детали. Это ваш шанс жить в стереотипно современном, экологичном и уютном доме, где каждый день будет вдохновлять на новые идеи и уютные мгновения.

Характеристики дома

Архитектурный стиль
Автоматизированное регулирование параметров теплоносителя
Да
Балконы/лоджии
Отсутствуют
Чердачное помещение
Нет
Датчики протечки воды
Нет
Эксплуатируемая или зеленая кровля
Нет
Электроснабжение
Центральное
Газоснабжение
Не предусмотрено
Изоляция воздушного шума
Нет
Камин
Нет
Класс энергоэффективности
-
Класс энергосбережения
-
Количество надземных этажей
2
Круглогодичное проживание
Да
Материал кровли
Металлические листовые гофрированные профили
Материал перекрытий
Деревянные
Материал внешних стен
Материал внутренних перегородок
Деревянные
Модульное строительство с конструкциями заводского изготовления
Нет
Объем надземной части
100 м3
Основной материал фасадов
Сайдинг
Отопление
Индивидуальное
Площадь дома
53 м2
Площадь застройки
54 м2
Подвальное помещение
Нет
Показатель компактности здания
-
Приборы учета тепловой энергии
Нет
Пристроенный гараж/крытая автостоянка
Нет
Противопожарная система
Нет
Санузлы
1
Совмещенная кухня-гостиная
Да
Спальни
1
Терраса
Да
Тип фундамента
Свайный
Тип кровли
Толщина внешних стен
150 мм
Толщина внутренних перегородок
100 мм
Улучшенные шумовые характеристики
Нет
Вентиляция
Естественная
Веранда
Нет
Водоотведение
Локальные очистные сооружения
Водоснабжение
Индивидуальное
Высота дома
5.35 м
Высота потолков
2.3 м

Планировка

Фасад дома

Александр

Закажите выезд инженера

Александр

Выездной инженер
Закажите выезд инженера для точной диагностики и профессиональной консультации по инженерным системам. Специалист приедет в удобное время, проведёт осмотр, рассчитает стоимость работ и подберёт оптимальные решения для вашего дома.


    Похожие проекты

    Ипотека и
    рассрочка
    Каркасный, одноэтажный дом «ДК 294»
    Стоимость от:
    4 161 960
    Проект от: 32 400
    Этажей 1
    Санузлы 1
    Спальни 2
    Смотреть
    Ипотека и
    рассрочка
    Двухэтажный дом «Романс»
    Стоимость от:
    10 573 200
    Проект от: 81 000
    Этажей 2
    Санузлы 2
    Спальни 4
    Смотреть
    Ипотека и
    рассрочка
    Одноэтажный дом «Петегроф»
    Стоимость от:
    8 118 440
    Проект от: 45 900
    Этажей 1
    Санузлы 1
    Спальни 3
    Смотреть
    Ипотека и
    рассрочка
    СМС-73
    Стоимость от:
    5 678 860
    Проект от: 37 350
    Этажей 1
    Санузлы 1
    Спальни 2
    Смотреть
    Ипотека и
    рассрочка
    Двухэтажный дом 167,1 (180,5) м2 ROVA
    Стоимость от:
    13 238 400
    Проект от: 81 000
    Этажей 2
    Санузлы 3
    Спальни 5
    Смотреть
    Ипотека и
    рассрочка
    Одноэтажный дом К-100
    Стоимость от:
    7 739 600
    Проект от: 45 000
    Этажей 1
    Санузлы 1
    Спальни 3
    Смотреть

    Как узнать стоимость дома

    back
    Оставляете заявку
    Вы заполняете форму на сайте или звоните нам. Менеджер Лайвкрафт связывается с вами для уточнения деталей: тип дома, площадь, материалы, участок строительства.
    back
    Консультация и подбор решения
    Наш специалист помогает выбрать оптимальный тип дома и конструкцию с учётом бюджета, сроков и целей — будь то дом для постоянного проживания или дача.
    back
    Расчёт предварительной стоимости
    Инженер делает первичный расчёт стоимости строительства по вашим параметрам: фундамент, коробка, кровля, отделка. Вы получаете смету с разбивкой по этапам.
    back
    Корректировка и утверждение сметы
    При необходимости вносим изменения — например, замену материалов или сокращение этапов. После согласования формируется окончательная фиксированная смета.
    back
    Заключение договора и старт работ
    После утверждения сметы заключаем официальный договор с гарантией. Вы получаете прозрачный график и точную стоимость — без скрытых расходов.

    Заказать конусльтацию по:24АШ-МС А-Фрейм от Строй и Живи

    Фото 1 24АШ-МС А-Фрейм от Строй и Живи


      Наши
      контакты

      Дмитров
      Опорный проезд 28Б
      (индустриальный парк Ниагара)
      9:00 до 18:00

      Корзина