4.9
Рейтинг на основании 120 отзывов
Дмитров
Опорный проезд 28Б
(индустриальный парк Ниагара)
Бренд "Дмитров-Дело" c 2008 года на рынке строительства в Дмитрове
Звоните 9:00 до 18:00 8 (915) 055-33-61
Бренд "Дмитров-Дело" c 2008 года на рынке строительства в Дмитрове

№81

Стоимость проекта от:
67 950 ₽
Стоимость строительства от:
10 553 040 ₽
Артикул ART-6341
Дата 26.12.2025
Архитектурный стиль Шале
Количество надземных этажей 2
Круглогодичное проживание Да
Площадь дома 151 м2
Санузлы 2
Спальни 4

Описание

Добро пожаловать в уютный уголок, где традиции шале встречаются с современным комфортом. Этот дом, расположенный на двух надземных этажах, создан для круглогодичного проживания – в холодных зимних дни его тепло обволакивает, а в летний летний воздух наполняет легкими, живописными запахами. Архитектурный стиль шале в сочетании с газобетонными блоками внешних стен придает ему прочность и характер, а двухскатная крыша, выполненная в классических пропорциях, делает фасад поистине величественным. Особое внимание уделено уюту и связи с природой. Вместо привычных балконов и веранд, дом предлагает просторную террасу, где можно наслаждаться свежим воздухом, устраивать барбекю в компании друзей или просто любоваться закатом. Оставляя пространство внутри дома свободным и открытым, архитекторы создали атмосферу, способствующую гармонии и спокойствию. Пристроенный гараж и крытая автопарковка отсутствуют, что даёт вам возможность насладиться чистотой и простором на улице, а также сохранить природный ландшафт без лишних конструкций. Этот дом – идеальное сочетание практичности, стиля и уюта. Его современный интерьер и обширные жилые площадки позволяют легко организовать семейные праздники или тихие вечера в гармонии с природой. Если вы ищете место, где каждая деталь продумана до мелочей, а каждая мгновенная встреча с природой вдохновляет, то ваш новый дом в стиле шале уже ждёт вас.

Характеристики дома

Архитектурный стиль
Шале
Автоматизированное регулирование параметров теплоносителя
Нет
Балконы/лоджии
Отсутствуют
Чердачное помещение
Нет
Датчики протечки воды
Нет
Эксплуатируемая или зеленая кровля
Нет
Электроснабжение
Не предусмотрено
Газоснабжение
Не предусмотрено
Изоляция воздушного шума
Нет
Камин
Да
Класс энергоэффективности
-
Класс энергосбережения
-
Количество надземных этажей
2
Круглогодичное проживание
Да
Материал кровли
Металлочерепица
Материал перекрытий
Сборные железобетонные
Материал внешних стен
Газобетонные блоки
Материал внутренних перегородок
Кирпичные
Модульное строительство с конструкциями заводского изготовления
Нет
Объем надземной части
500 м3
Основной материал фасадов
Облицовочный кирпич
Отопление
Не предусмотрено
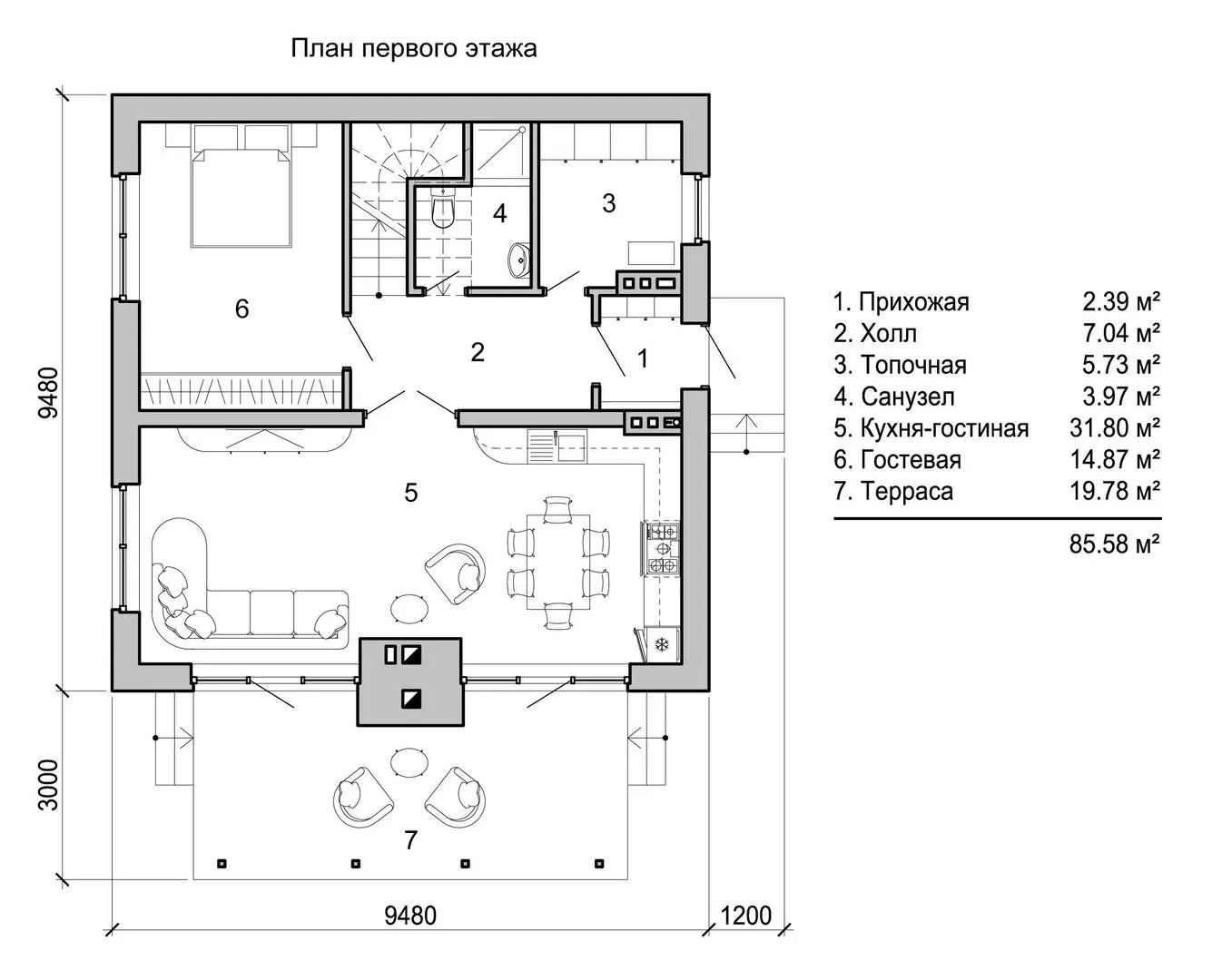
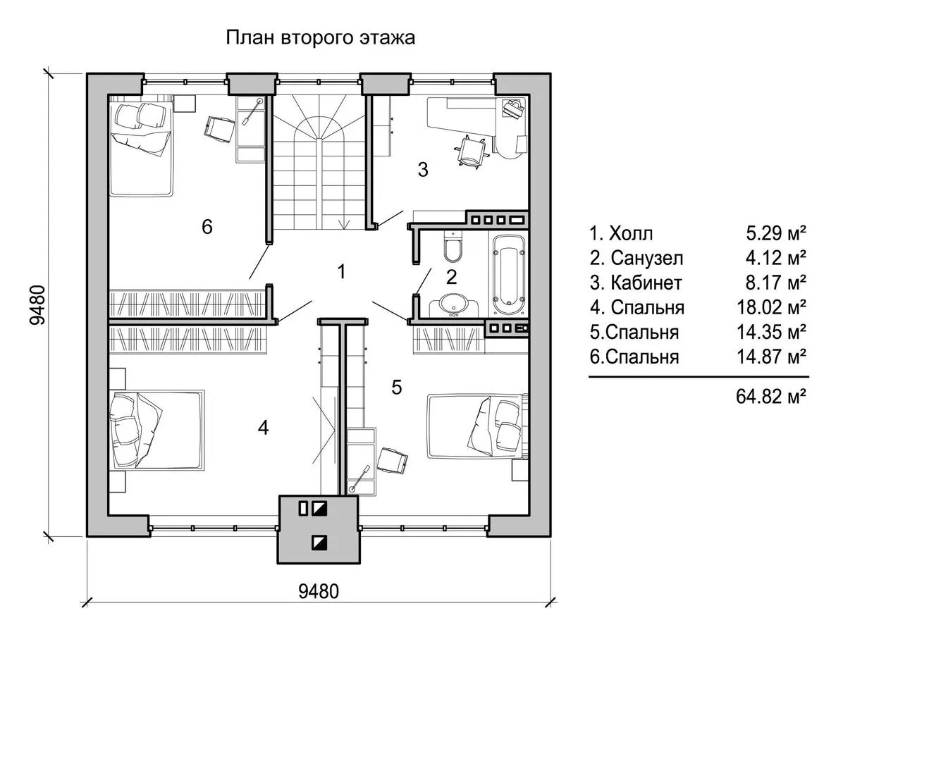
Площадь дома
151 м2
Площадь застройки
180 м2
Подвальное помещение
Нет
Показатель компактности здания
-
Приборы учета тепловой энергии
Нет
Пристроенный гараж/крытая автостоянка
Нет
Противопожарная система
Нет
Санузлы
2
Совмещенная кухня-гостиная
Да
Спальни
4
Терраса
Да
Тип фундамента
Плитный
Тип кровли
Двускатная
Толщина внешних стен
430 мм
Толщина внутренних перегородок
120 мм
Улучшенные шумовые характеристики
Нет
Вентиляция
Естественная
Веранда
Нет
Водоотведение
Не предусмотрено
Водоснабжение
Не предусмотрено
Высота дома
9.2 м
Высота потолков
2.9 м

Планировка

Фасад дома

Александр

Закажите выезд инженера

Александр

Выездной инженер
Закажите выезд инженера для точной диагностики и профессиональной консультации по инженерным системам. Специалист приедет в удобное время, проведёт осмотр, рассчитает стоимость работ и подберёт оптимальные решения для вашего дома.


    Похожие проекты

    Ипотека и
    рассрочка
    Одноэтажный дом от компании UNIT серии Классика 146 ТК
    Стоимость от:
    12 319 780
    Проект от: 76 050
    Этажей 1
    Санузлы 3
    Спальни 4
    Смотреть
    Ипотека и
    рассрочка
    Н-1
    Стоимость от:
    6 014 800
    Проект от: 36 000
    Этажей 1
    Санузлы 2
    Спальни 3
    Смотреть
    Ипотека и
    рассрочка
    Одноэтажный дом ЭВРИКА
    Стоимость от:
    4 506 370
    Проект от: 31 950
    Этажей 1
    Санузлы 1
    Спальни 2
    Смотреть
    Ипотека и
    рассрочка
    Чадобец
    Стоимость от:
    9 495 360
    Проект от: 64 800
    Этажей 2
    Санузлы 1
    Спальни 3
    Смотреть
    Ипотека и
    рассрочка
    Конаково-2
    Стоимость от:
    8 600 460
    Проект от: 59 850
    Этажей 2
    Санузлы 2
    Спальни 4
    Смотреть
    Ипотека и
    рассрочка
    Проект загородного дома Ежевика 1-2-91
    Стоимость от:
    5 275 270
    Проект от: 40 950
    Этажей 1
    Санузлы 1
    Спальни 2
    Смотреть

    Как узнать стоимость дома

    back
    Оставляете заявку
    Вы заполняете форму на сайте или звоните нам. Менеджер Лайвкрафт связывается с вами для уточнения деталей: тип дома, площадь, материалы, участок строительства.
    back
    Консультация и подбор решения
    Наш специалист помогает выбрать оптимальный тип дома и конструкцию с учётом бюджета, сроков и целей — будь то дом для постоянного проживания или дача.
    back
    Расчёт предварительной стоимости
    Инженер делает первичный расчёт стоимости строительства по вашим параметрам: фундамент, коробка, кровля, отделка. Вы получаете смету с разбивкой по этапам.
    back
    Корректировка и утверждение сметы
    При необходимости вносим изменения — например, замену материалов или сокращение этапов. После согласования формируется окончательная фиксированная смета.
    back
    Заключение договора и старт работ
    После утверждения сметы заключаем официальный договор с гарантией. Вы получаете прозрачный график и точную стоимость — без скрытых расходов.

    Заказать конусльтацию по:№81

    Фото 1 №81


      Наши
      контакты

      Дмитров
      Опорный проезд 28Б
      (индустриальный парк Ниагара)
      9:00 до 18:00

      Корзина