4.9
Рейтинг на основании 120 отзывов
Дмитров
Опорный проезд 28Б
(индустриальный парк Ниагара)
Бренд "Дмитров-Дело" c 2008 года на рынке строительства в Дмитрове
Звоните 9:00 до 18:00 8 (915) 055-33-61
Бренд "Дмитров-Дело" c 2008 года на рынке строительства в Дмитрове

Жилой дом «КС-1»

Стоимость проекта от:
52 650 ₽
БЕСПЛАТНО! ПРИ ЗАКАЗЕ СТРОИТЕЛЬСТВА
Стоимость строительства от:
9 309 740 ₽
Артикул ART-17486
Дата 26.12.2025
Архитектурный стиль Классический
Количество надземных этажей 1
Круглогодичное проживание Да
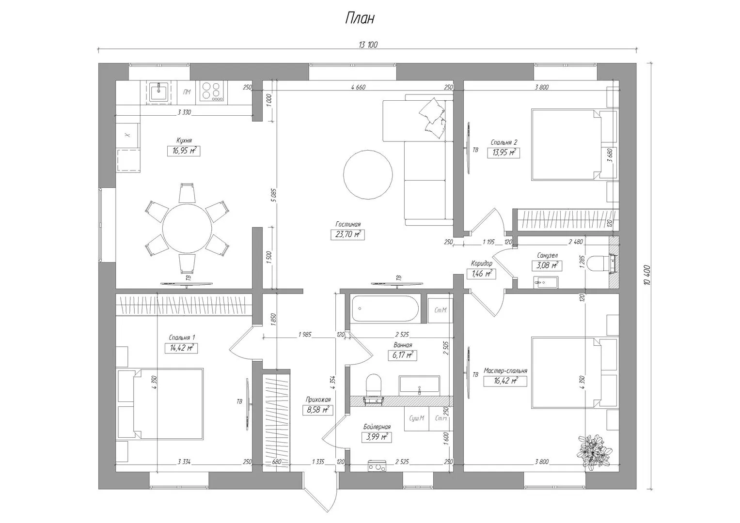
Площадь дома 117 м2
Санузлы 2
Спальни 3

Описание

Жилой дом «КС‑1» – это воплощение уютного классического стиля, созданное для комфортного круглогодичного проживания. Его архитектура подчёркивает элегантность и простоту: чистые линии фасада, гармоничные пропорции и традиционное стеклопакетное решение создают атмосферу благородства, не перегружая пространство лишними акцентами. Внутреннее убранство выполнено в душевной атмосфере, где каждая деталь отвечает требованиям уютного семейного гнезда. Качественные газобетонные блоки обеспечивают хорошую тепло- и звукоизоляцию, а четырехскатная (вальмовая) крыша гарантирует надёжную защиту от непогоды и добавляет характер архитектурной элегантности. Необязательные балконы, веранда и терраса компенсируются просторным чердачным помещением, которое превращает ваш дом в место, где каждый сантиметр пространства обретает своё функциональное назначение. «КС‑1» – это не просто участок под строительство, а полноценный дом, готовый стать вашим уютным убежищем, где классика встречается с современными технологиями. Ощутите атмосферу семейного тепла и надежности уже сегодня.

Характеристики дома

Архитектурный стиль
Автоматизированное регулирование параметров теплоносителя
Нет
Балконы/лоджии
Отсутствуют
Чердачное помещение
Да
Датчики протечки воды
Нет
Эксплуатируемая или зеленая кровля
Нет
Электроснабжение
Центральное
Газоснабжение
Не предусмотрено
Изоляция воздушного шума
Нет
Камин
Нет
Класс энергоэффективности
-
Класс энергосбережения
-
Количество надземных этажей
1
Круглогодичное проживание
Да
Материал кровли
Металлочерепица
Материал перекрытий
Деревянные
Материал внешних стен
Материал внутренних перегородок
Блочные
Модульное строительство с конструкциями заводского изготовления
Нет
Объем надземной части
400 м3
Основной материал фасадов
Облицовочный кирпич
Отопление
Индивидуальное
Площадь дома
117 м2
Площадь застройки
136 м2
Подвальное помещение
Нет
Показатель компактности здания
-
Приборы учета тепловой энергии
Нет
Пристроенный гараж/крытая автостоянка
Нет
Противопожарная система
Нет
Санузлы
2
Совмещенная кухня-гостиная
Нет
Спальни
3
Терраса
Нет
Тип фундамента
Ленточный
Толщина внешних стен
350 мм
Толщина внутренних перегородок
150 мм
Улучшенные шумовые характеристики
Нет
Вентиляция
Естественная
Веранда
Нет
Водоотведение
Локальные очистные сооружения
Водоснабжение
2 варианта
Высота дома
7.5 м
Высота потолков
3 м

Планировка

Фасад дома

Александр

Закажите выезд инженера

Александр

Выездной инженер
Закажите выезд инженера для точной диагностики и профессиональной консультации по инженерным системам. Специалист приедет в удобное время, проведёт осмотр, рассчитает стоимость работ и подберёт оптимальные решения для вашего дома.


    Похожие проекты

    Ипотека и
    рассрочка
    Проект одноэтажного дома на 98 м2
    Стоимость от:
    7 365 160
    Проект от: 44 100
    Этажей 1
    Санузлы 2
    Спальни 3
    Смотреть
    Ипотека и
    рассрочка
    Рубин К130
    Стоимость от:
    5 573 760
    Проект от: 42 750
    Этажей 2
    Санузлы 2
    Спальни 4
    Смотреть
    Ипотека и
    рассрочка
    Дом Хайтек 155 один этаж
    Стоимость от:
    9 441 960
    Проект от: 62 100
    Этажей 1
    Санузлы 3
    Спальни 4
    Смотреть
    Ипотека и
    рассрочка
    Авторский проект «Актау 2.0»
    Стоимость от:
    5 437 740
    Проект от: 34 650
    Этажей 1
    Санузлы 1
    Спальни 2
    Смотреть
    Ипотека и
    рассрочка
    ЦМС Алькор
    Стоимость от:
    11 531 520
    Проект от: 75 600
    Этажей 2
    Санузлы 2
    Спальни 5
    Смотреть
    Ипотека и
    рассрочка
    Лиля
    Стоимость от:
    6 593 400
    Проект от: 49 500
    Этажей 2
    Санузлы 2
    Спальни 3
    Смотреть

    Как узнать стоимость дома

    back
    Оставляете заявку
    Вы заполняете форму на сайте или звоните нам. Менеджер Лайвкрафт связывается с вами для уточнения деталей: тип дома, площадь, материалы, участок строительства.
    back
    Консультация и подбор решения
    Наш специалист помогает выбрать оптимальный тип дома и конструкцию с учётом бюджета, сроков и целей — будь то дом для постоянного проживания или дача.
    back
    Расчёт предварительной стоимости
    Инженер делает первичный расчёт стоимости строительства по вашим параметрам: фундамент, коробка, кровля, отделка. Вы получаете смету с разбивкой по этапам.
    back
    Корректировка и утверждение сметы
    При необходимости вносим изменения — например, замену материалов или сокращение этапов. После согласования формируется окончательная фиксированная смета.
    back
    Заключение договора и старт работ
    После утверждения сметы заключаем официальный договор с гарантией. Вы получаете прозрачный график и точную стоимость — без скрытых расходов.

    Заказать конусльтацию по:Жилой дом «КС-1»

    Фото 1 Жилой дом «КС-1»


      Наши
      контакты

      Дмитров
      Опорный проезд 28Б
      (индустриальный парк Ниагара)
      9:00 до 18:00

      Корзина