4.9
Рейтинг на основании 120 отзывов
Дмитров
Опорный проезд 28Б
(индустриальный парк Ниагара)
Бренд "Дмитров-Дело" c 2008 года на рынке строительства в Дмитрове
Звоните 9:00 до 18:00 8 (915) 055-33-61
Бренд "Дмитров-Дело" c 2008 года на рынке строительства в Дмитрове

Одноэтажный проект «Майорка»

Стоимость проекта от:
33 750 ₽
БЕСПЛАТНО! ПРИ ЗАКАЗЕ СТРОИТЕЛЬСТВА
Стоимость строительства от:
4 170 375 ₽
Артикул ART-18235
Дата 26.12.2025
Архитектурный стиль Барнхаус
Количество надземных этажей 1
Круглогодичное проживание Да
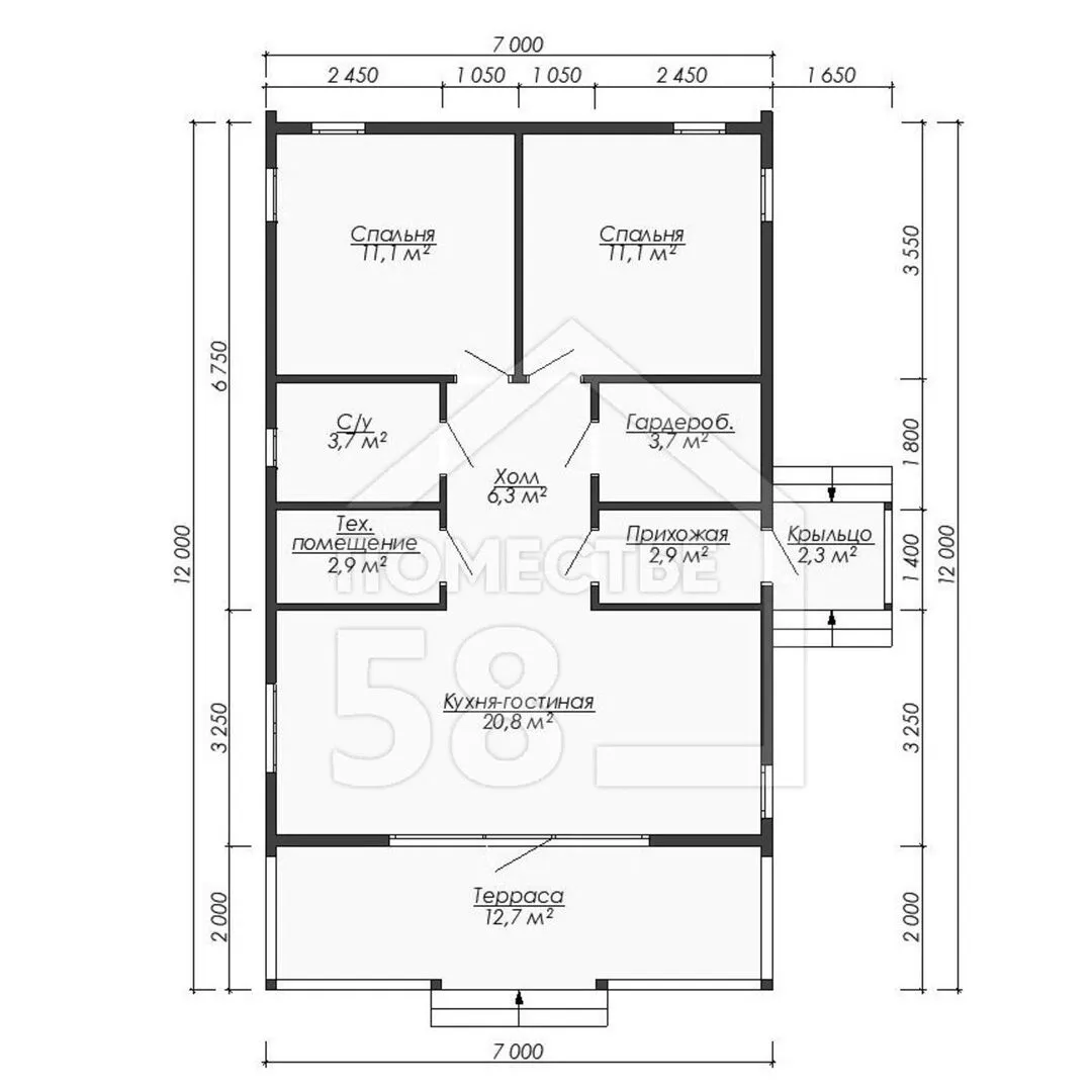
Площадь дома 75 м2
Санузлы 1
Спальни 2

Описание

**Майорка – ваш маленький уголок уюта и спокойствия** Этот одноэтажный дом в стиле барнхаус сочетает в себе очарование деревенского колорита с современным комфортом круглый год. Он создан для тех, кто ценит простоту и естественность: от плотных деревянных каркасных стен до воздушно открытого двускачного крыла, создающего ощущение легкости и свободы. Внутри каждого помещения царит тёплая светлота, а высокие потолки и большие окна придают пространство воздушности и позволяют наслаждаться природой без границ. На территории дома находится просторная терраса, идеальная для утреннего кофе, семейных барбекю или спокойных вечеров под звёздным небом. Отсутствие балконов, веранд и приписанных гаражей делает дизайн более лаконичным, а открытый фасад подчёркивает гармонию структуры и окружающей природы. Важно, что Майорка разработана для круглогодичного проживания – всё оборудование и материалы прошли проверку на долговечность и энергоэффективность, поэтому ваш дом всегда будет вашим надёжным убежищем независимо от погоды. Этот проект — идеальный выбор для тех, кто жаждет простоты, качества и элегантности в одном. Дом "Майорка" приглашает в свою уютную атмосферу и обещает стать вашим новым домом, где каждая деталь заботит о комфорте, а каждый уголок хранит тепло и вдохновение.

Характеристики дома

Архитектурный стиль
Автоматизированное регулирование параметров теплоносителя
Нет
Балконы/лоджии
Отсутствуют
Чердачное помещение
Нет
Датчики протечки воды
Нет
Эксплуатируемая или зеленая кровля
Нет
Электроснабжение
2 варианта
Газоснабжение
2 варианта
Изоляция воздушного шума
Нет
Камин
Нет
Класс энергоэффективности
-
Класс энергосбережения
-
Количество надземных этажей
1
Круглогодичное проживание
Да
Материал кровли
Фальцевая кровля Кликфальц
Материал перекрытий
Деревянные
Материал внешних стен
Материал внутренних перегородок
Деревянные
Модульное строительство с конструкциями заводского изготовления
Нет
Объем надземной части
3000 м3
Основной материал фасадов
Фальцевая кровля кликфальц
Отопление
2 варианта
Площадь дома
75 м2
Площадь застройки
84 м2
Подвальное помещение
Нет
Показатель компактности здания
-
Приборы учета тепловой энергии
Нет
Пристроенный гараж/крытая автостоянка
Нет
Противопожарная система
Нет
Санузлы
1
Совмещенная кухня-гостиная
Да
Спальни
2
Терраса
Да
Тип фундамента
Свайно-винтовой
Тип кровли
Толщина внешних стен
300 мм
Толщина внутренних перегородок
100 мм
Улучшенные шумовые характеристики
Нет
Вентиляция
2 варианта
Веранда
Нет
Водоотведение
2 варианта
Водоснабжение
2 варианта
Высота дома
4 м
Высота потолков
3 м

Планировка

Фасад дома

Александр

Закажите выезд инженера

Александр

Выездной инженер
Закажите выезд инженера для точной диагностики и профессиональной консультации по инженерным системам. Специалист приедет в удобное время, проведёт осмотр, рассчитает стоимость работ и подберёт оптимальные решения для вашего дома.


    Похожие проекты

    Ипотека и
    рассрочка
    Гренада 2
    Стоимость от:
    5 939 780
    Проект от: 35 550
    Этажей 1
    Санузлы 1
    Спальни 3
    Смотреть
    Ипотека и
    рассрочка
    Загородный дом из газобетона «L»
    Стоимость от:
    13 390 800
    Проект от: 87 750
    Этажей 2
    Санузлы 3
    Спальни 5
    Смотреть
    Ипотека и
    рассрочка
    К.1.-109
    Стоимость от:
    8 190 380
    Проект от: 49 050
    Этажей 1
    Санузлы 1
    Спальни 3
    Смотреть
    Ипотека и
    рассрочка
    С-284 КЕ Лосиный парк
    Стоимость от:
    15 302 160
    Проект от: 98 550
    Этажей 2
    Санузлы 2
    Спальни 4
    Смотреть
    Ипотека и
    рассрочка
    Одноэтажный загородный дом с гаражом S3-155 (Z269)
    Стоимость от:
    12 645 360
    Проект от: 76 050
    Этажей 2
    Санузлы 3
    Спальни 5
    Смотреть
    Ипотека и
    рассрочка
    Аппиада
    Стоимость от:
    8 972 160
    Проект от: 55 800
    Этажей 2
    Санузлы 2
    Спальни 4
    Смотреть

    Как узнать стоимость дома

    back
    Оставляете заявку
    Вы заполняете форму на сайте или звоните нам. Менеджер Лайвкрафт связывается с вами для уточнения деталей: тип дома, площадь, материалы, участок строительства.
    back
    Консультация и подбор решения
    Наш специалист помогает выбрать оптимальный тип дома и конструкцию с учётом бюджета, сроков и целей — будь то дом для постоянного проживания или дача.
    back
    Расчёт предварительной стоимости
    Инженер делает первичный расчёт стоимости строительства по вашим параметрам: фундамент, коробка, кровля, отделка. Вы получаете смету с разбивкой по этапам.
    back
    Корректировка и утверждение сметы
    При необходимости вносим изменения — например, замену материалов или сокращение этапов. После согласования формируется окончательная фиксированная смета.
    back
    Заключение договора и старт работ
    После утверждения сметы заключаем официальный договор с гарантией. Вы получаете прозрачный график и точную стоимость — без скрытых расходов.

    Заказать конусльтацию по:Одноэтажный проект «Майорка»

    Фото 1 Одноэтажный проект «Майорка»


      Наши
      контакты

      Дмитров
      Опорный проезд 28Б
      (индустриальный парк Ниагара)
      9:00 до 18:00

      Корзина