4.9
Рейтинг на основании 120 отзывов
Дмитров
Опорный проезд 28Б
(индустриальный парк Ниагара)
Бренд "Дмитров-Дело" c 2008 года на рынке строительства в Дмитрове
Звоните 9:00 до 18:00 8 (915) 055-33-61
Бренд "Дмитров-Дело" c 2008 года на рынке строительства в Дмитрове

Флэт-хаус «Дуос»

Стоимость проекта от:
50 850 ₽
Стоимость строительства от:
8 050 320 ₽
Артикул ART-14658
Дата 25.12.2025
Архитектурный стиль Классический
Количество надземных этажей 2
Круглогодичное проживание Да
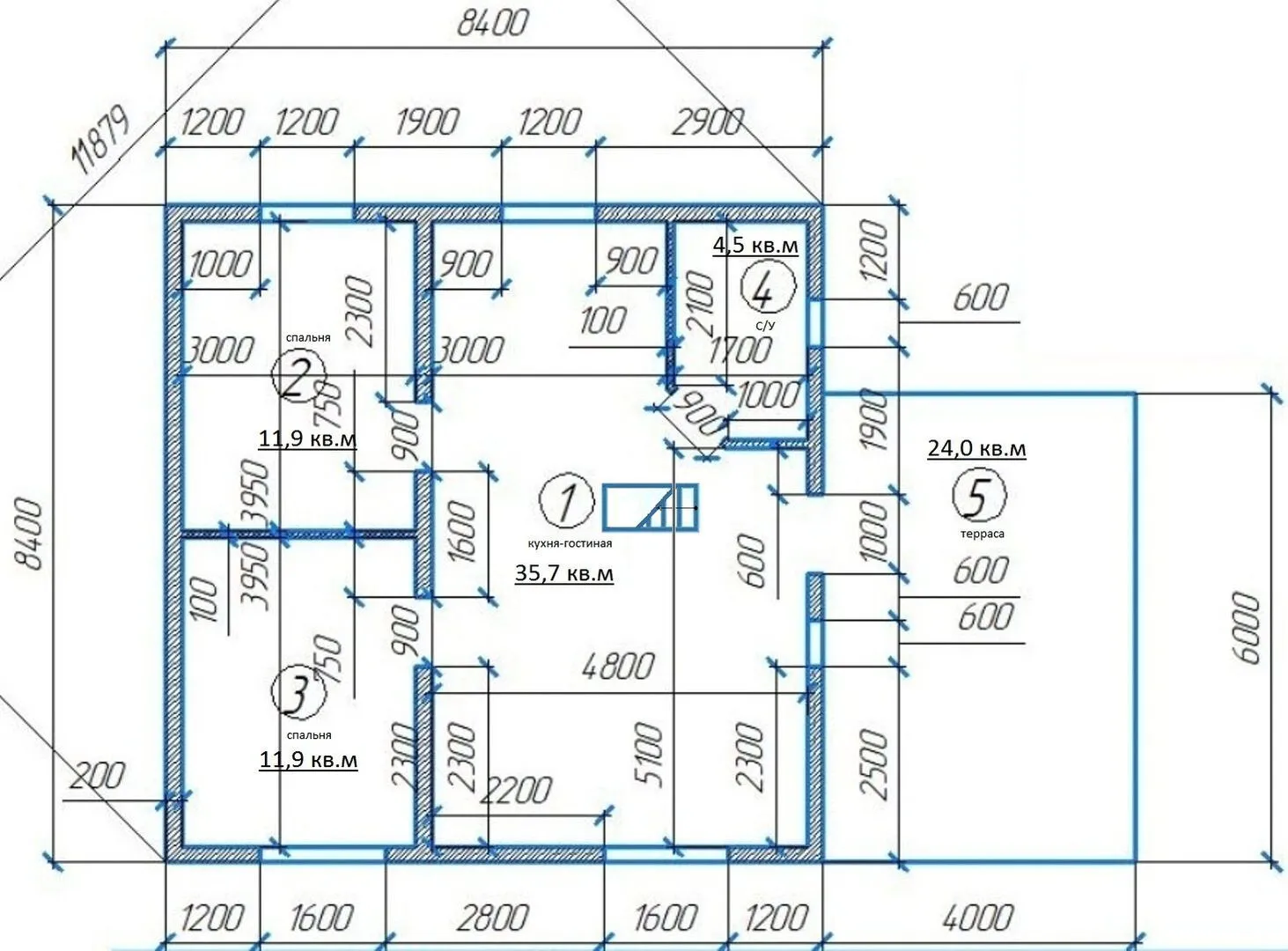
Площадь дома 113 м2
Санузлы 1
Спальни 2

Описание

Добро пожаловать в «Дуос» – неповторимый классический флет‑хаус, созданный для тех, кто ценит атмосферу уюта и современный комфорт. Четырехскатная (вальмовая) крыша придаёт дому изысканную строгость, а газобетонные блоки внешних стен не только обеспечивают тепло, но и создают ощущение стабильности и надежности. Два надземных этажа распланированы так, чтобы каждый уголок служил вашим личным пространством: от обустроенной кухни до светлых, просторных комнат, где можно отдохнуть и вдохнуть свежий воздух. «Дуос» идеально подходит для круглогодичного проживания – здесь всегда тепло, а архитектурные линии в строгом классическом стиле делают каждый день особенным. Удостоверьтесь в своих новых возможностях прямо сейчас: терраса открывает панорамный вид на окрестности, а отсутствие лишних пространств, как балконы и веранда, делает дом более уединённым и комфортабельным. Если вам важен свободный доступ к частной зоне вашего дома, забудьте про прицепы и автостоянку – «Дуос» готов подарить вам простоту и удобство без лишних хлопот. Этот дом – не просто место, а ваш новый стиль жизни. Примите решение, открыв двери «Дуос» – и ощутите, что каждое мгновение здесь создаёт историю, которую хочется рассказывать.

Характеристики дома

Архитектурный стиль
Классический
Автоматизированное регулирование параметров теплоносителя
Да
Балконы/лоджии
Отсутствуют
Чердачное помещение
Нет
Датчики протечки воды
Нет
Эксплуатируемая или зеленая кровля
Нет
Электроснабжение
Центральное
Газоснабжение
Не предусмотрено
Изоляция воздушного шума
Нет
Камин
Нет
Класс энергоэффективности
-
Класс энергосбережения
-
Количество надземных этажей
2
Круглогодичное проживание
Да
Материал кровли
Битумные листы
Материал перекрытий
Деревянные
Материал внешних стен
Газобетонные блоки
Материал внутренних перегородок
Гипсокартонные
Модульное строительство с конструкциями заводского изготовления
Нет
Объем надземной части
321 м3
Основной материал фасадов
Штукатурка
Отопление
Индивидуальное
Площадь дома
113 м2
Площадь застройки
110 м2
Подвальное помещение
Нет
Показатель компактности здания
-
Приборы учета тепловой энергии
Нет
Пристроенный гараж/крытая автостоянка
Нет
Противопожарная система
Нет
Санузлы
1
Совмещенная кухня-гостиная
Да
Спальни
2
Терраса
Да
Тип фундамента
Свайно-ростверковый
Тип кровли
Четырехскатная (вальмовая)
Толщина внешних стен
300 мм
Толщина внутренних перегородок
100 мм
Улучшенные шумовые характеристики
Нет
Вентиляция
Естественная
Веранда
Нет
Водоотведение
Локальные очистные сооружения
Водоснабжение
2 варианта
Высота дома
6 м
Высота потолков
2.65 м

Планировка

Фасад дома

Александр

Закажите выезд инженера

Александр

Выездной инженер
Закажите выезд инженера для точной диагностики и профессиональной консультации по инженерным системам. Специалист приедет в удобное время, проведёт осмотр, рассчитает стоимость работ и подберёт оптимальные решения для вашего дома.


    Похожие проекты

    Ипотека и
    рассрочка
    Фрея
    Стоимость от:
    14 534 960
    Проект от: 84 600
    Этажей 1
    Санузлы 3
    Спальни 3
    Смотреть
    Ипотека и
    рассрочка
    S 2-125
    Стоимость от:
    8 972 160
    Проект от: 55 800
    Этажей 2
    Санузлы 2
    Спальни 4
    Смотреть
    Ипотека и
    рассрочка
    Комфорт 106
    Стоимость от:
    7 965 320
    Проект от: 47 700
    Этажей 1
    Санузлы 2
    Спальни 2
    Смотреть
    Ипотека и
    рассрочка
    Вествуд
    Стоимость от:
    8 672 785
    Проект от: 61 650
    Этажей 1
    Санузлы 2
    Спальни 3
    Смотреть
    Ипотека и
    рассрочка
    Дом с мансардным этажом «Робсон 3.0»
    Стоимость от:
    6 564 960
    Проект от: 42 300
    Этажей 2
    Санузлы 2
    Спальни 3
    Смотреть
    Ипотека и
    рассрочка
    ВЕНТО-1
    Стоимость от:
    4 872 780
    Проект от: 31 050
    Этажей 1
    Санузлы 1
    Спальни 2
    Смотреть

    Как узнать стоимость дома

    back
    Оставляете заявку
    Вы заполняете форму на сайте или звоните нам. Менеджер Лайвкрафт связывается с вами для уточнения деталей: тип дома, площадь, материалы, участок строительства.
    back
    Консультация и подбор решения
    Наш специалист помогает выбрать оптимальный тип дома и конструкцию с учётом бюджета, сроков и целей — будь то дом для постоянного проживания или дача.
    back
    Расчёт предварительной стоимости
    Инженер делает первичный расчёт стоимости строительства по вашим параметрам: фундамент, коробка, кровля, отделка. Вы получаете смету с разбивкой по этапам.
    back
    Корректировка и утверждение сметы
    При необходимости вносим изменения — например, замену материалов или сокращение этапов. После согласования формируется окончательная фиксированная смета.
    back
    Заключение договора и старт работ
    После утверждения сметы заключаем официальный договор с гарантией. Вы получаете прозрачный график и точную стоимость — без скрытых расходов.

    Заказать конусльтацию по:Флэт-хаус «Дуос»

    Фото 1 Флэт-хаус «Дуос»


      Наши
      контакты

      Дмитров
      Опорный проезд 28Б
      (индустриальный парк Ниагара)
      9:00 до 18:00