4.9
Рейтинг на основании 120 отзывов
Дмитров
Опорный проезд 28Б
(индустриальный парк Ниагара)
Бренд "Дмитров-Дело" c 2008 года на рынке строительства в Дмитрове
Звоните 9:00 до 18:00 8 (915) 055-33-61
Бренд "Дмитров-Дело" c 2008 года на рынке строительства в Дмитрове

Двухэтажный дом в стиле Хай Тек «Сорум»

Стоимость проекта от:
67 500 ₽
БЕСПЛАТНО! ПРИ ЗАКАЗЕ СТРОИТЕЛЬСТВА
Стоимость строительства от:
10 296 000 ₽
Артикул ART-14441
Дата 25.12.2025
Архитектурный стиль Хайтек
Количество надземных этажей 2
Круглогодичное проживание Да
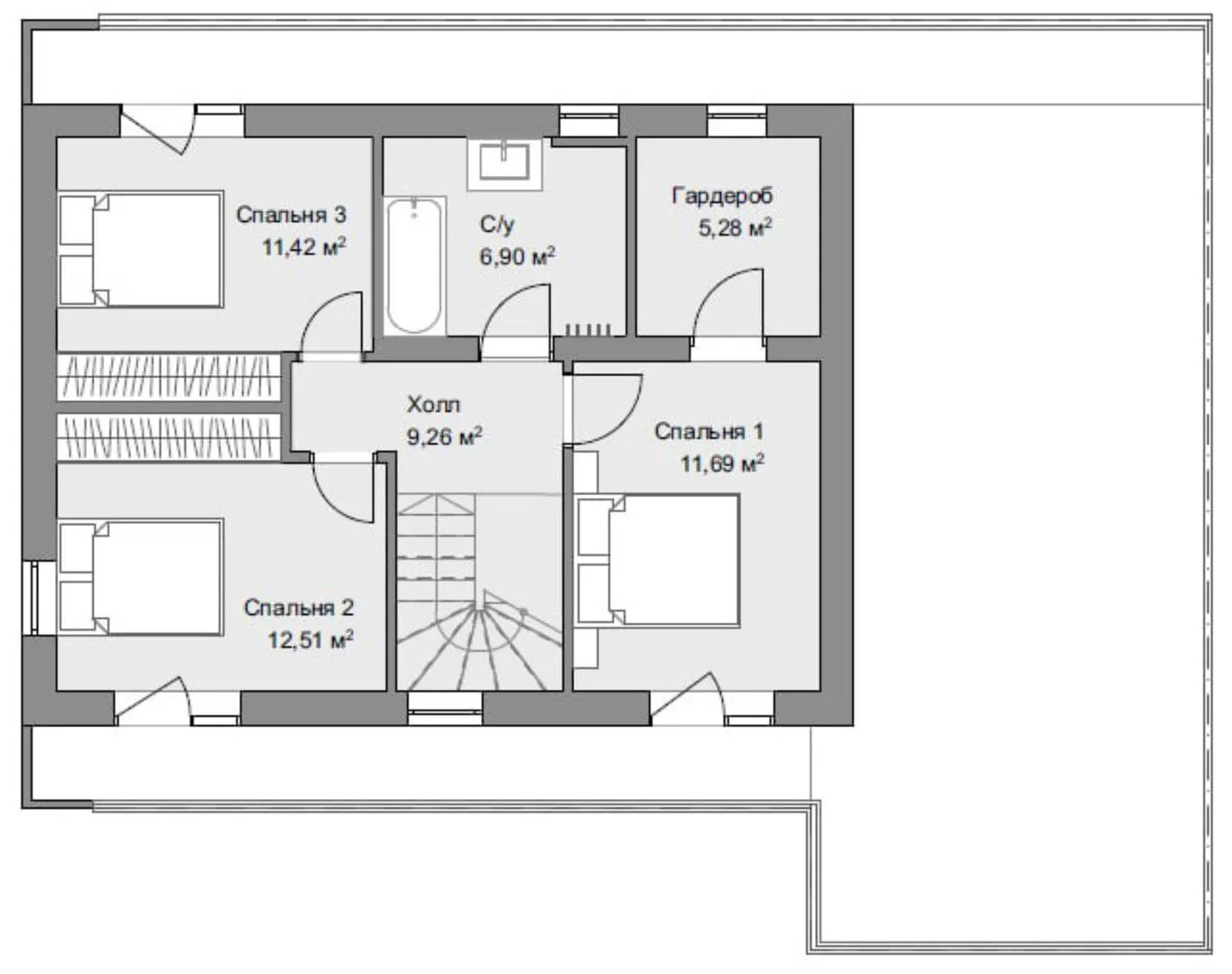
Площадь дома 150 м2
Санузлы 2
Спальни 3

Описание

Изысканный двухэтажный дом «Сорум» – это воплощение современного хай‑тек дизайна, предлагающее идеальное сочетание минимализма и практичности. Его строгие линии, панорамные стеклянные фасады и ровная плоская крыша создают ощущение пространства и прозрачности, а наружные стены, выполненные из газобетонных блоков, гарантируют тепло, звуконепроницаемость и долговечность. В каждой детали чувствуется внимание к материалам и формам: от плавных контуров до тонких профильных элементов, которые одновременно защищают от непогоды и придают дому аутентичность современных технологий. Дом рассчитан на круглогодичную проживание, поэтому его планировка продумана до мелочей: внутри есть удобные коридоры, светлые большие жилые зоны, которые при желании можно превратить в рабочий кабинет или детскую комнату. Пристроенный гараж с закрытой автостоянкой обеспечивает безопасность и уюта для вашего автомобиля, а просторная терраса, выстроенная под открытый вид на природный ландшафт, приглашает проводить здесь семейные посиделки и отдых в любое время года. Забыв о балконах и верандах, «Сорум» сосредоточен на большом внутреннем пространстве, которое открывается наружу, создавая безграничную связь между интерьером и окрестностями. Этот дом – не просто место для жизни, а настоящий арт‑объект, где техника и комфорт живут в гармонии. Его можно назвать вашим личным оазисом современности, в котором каждый элемент подчеркивает вашу индивидуальность. Если вы ищете изысканное, высокотехнологичное жилье, способное превратить обычный день в необыкновенное приключение, «Сорум» – то, что вам нужно. 🚀

Характеристики дома

Архитектурный стиль
Автоматизированное регулирование параметров теплоносителя
Да
Балконы/лоджии
Отсутствуют
Чердачное помещение
Нет
Датчики протечки воды
Да
Эксплуатируемая или зеленая кровля
Да
Электроснабжение
Центральное
Газоснабжение
Центральное
Изоляция воздушного шума
Да
Камин
Нет
Класс энергоэффективности
-
Класс энергосбережения
-
Количество надземных этажей
2
Круглогодичное проживание
Да
Материал кровли
Рулонные битумно-полимерные покрытия
Материал перекрытий
Монолитные железобетонные
Материал внешних стен
Материал внутренних перегородок
Пенобетонные
Модульное строительство с конструкциями заводского изготовления
Нет
Объем надземной части
452 м3
Основной материал фасадов
Штукатурка
Отопление
Индивидуальное
Площадь дома
150 м2
Площадь застройки
122 м2
Подвальное помещение
Нет
Показатель компактности здания
-
Приборы учета тепловой энергии
Да
Пристроенный гараж/крытая автостоянка
Да
Противопожарная система
Нет
Санузлы
2
Совмещенная кухня-гостиная
Да
Спальни
3
Терраса
Да
Тип фундамента
Плитный
Тип кровли
Толщина внешних стен
400 мм
Толщина внутренних перегородок
100 мм
Улучшенные шумовые характеристики
Да
Вентиляция
Естественная
Веранда
Нет
Водоотведение
2 варианта
Водоснабжение
2 варианта
Высота дома
7 м
Высота потолков
3 м

Планировка

Фасад дома

Александр

Закажите выезд инженера

Александр

Выездной инженер
Закажите выезд инженера для точной диагностики и профессиональной консультации по инженерным системам. Специалист приедет в удобное время, проведёт осмотр, рассчитает стоимость работ и подберёт оптимальные решения для вашего дома.


    Похожие проекты

    Ипотека и
    рассрочка
    Коттедж Г-261124 со вторым светом, террасой и навесом
    Стоимость от:
    10 705 920
    Проект от: 66 600
    Этажей 2
    Санузлы 2
    Спальни 4
    Смотреть
    Ипотека и
    рассрочка
    Благовещенское 143
    Стоимость от:
    9 079 200
    Проект от: 58 500
    Этажей 2
    Санузлы 2
    Спальни 4
    Смотреть
    Ипотека и
    рассрочка
    Загородный дом Фрея
    Стоимость от:
    7 544 640
    Проект от: 47 700
    Этажей 2
    Санузлы 2
    Спальни 3
    Смотреть
    Ипотека и
    рассрочка
    S.Dom-144-1
    Стоимость от:
    10 477 170
    Проект от: 76 950
    Этажей 1
    Санузлы 1
    Спальни 2
    Смотреть
    Ипотека и
    рассрочка
    Кирпичный дом 70 м²
    Стоимость от:
    4 731 540
    Проект от: 30 150
    Этажей 1
    Санузлы 2
    Спальни 2
    Смотреть
    Ипотека и
    рассрочка
    Одноэтажный дом РП-140
    Стоимость от:
    8 057 830
    Проект от: 62 550
    Этажей 1
    Санузлы 2
    Спальни 4
    Смотреть

    Как узнать стоимость дома

    back
    Оставляете заявку
    Вы заполняете форму на сайте или звоните нам. Менеджер Лайвкрафт связывается с вами для уточнения деталей: тип дома, площадь, материалы, участок строительства.
    back
    Консультация и подбор решения
    Наш специалист помогает выбрать оптимальный тип дома и конструкцию с учётом бюджета, сроков и целей — будь то дом для постоянного проживания или дача.
    back
    Расчёт предварительной стоимости
    Инженер делает первичный расчёт стоимости строительства по вашим параметрам: фундамент, коробка, кровля, отделка. Вы получаете смету с разбивкой по этапам.
    back
    Корректировка и утверждение сметы
    При необходимости вносим изменения — например, замену материалов или сокращение этапов. После согласования формируется окончательная фиксированная смета.
    back
    Заключение договора и старт работ
    После утверждения сметы заключаем официальный договор с гарантией. Вы получаете прозрачный график и точную стоимость — без скрытых расходов.

    Заказать конусльтацию по:Двухэтажный дом в стиле Хай Тек «Сорум»

    Фото 1 Двухэтажный дом в стиле Хай Тек «Сорум»


      Наши
      контакты

      Дмитров
      Опорный проезд 28Б
      (индустриальный парк Ниагара)
      9:00 до 18:00

      Корзина