Волга
Описание
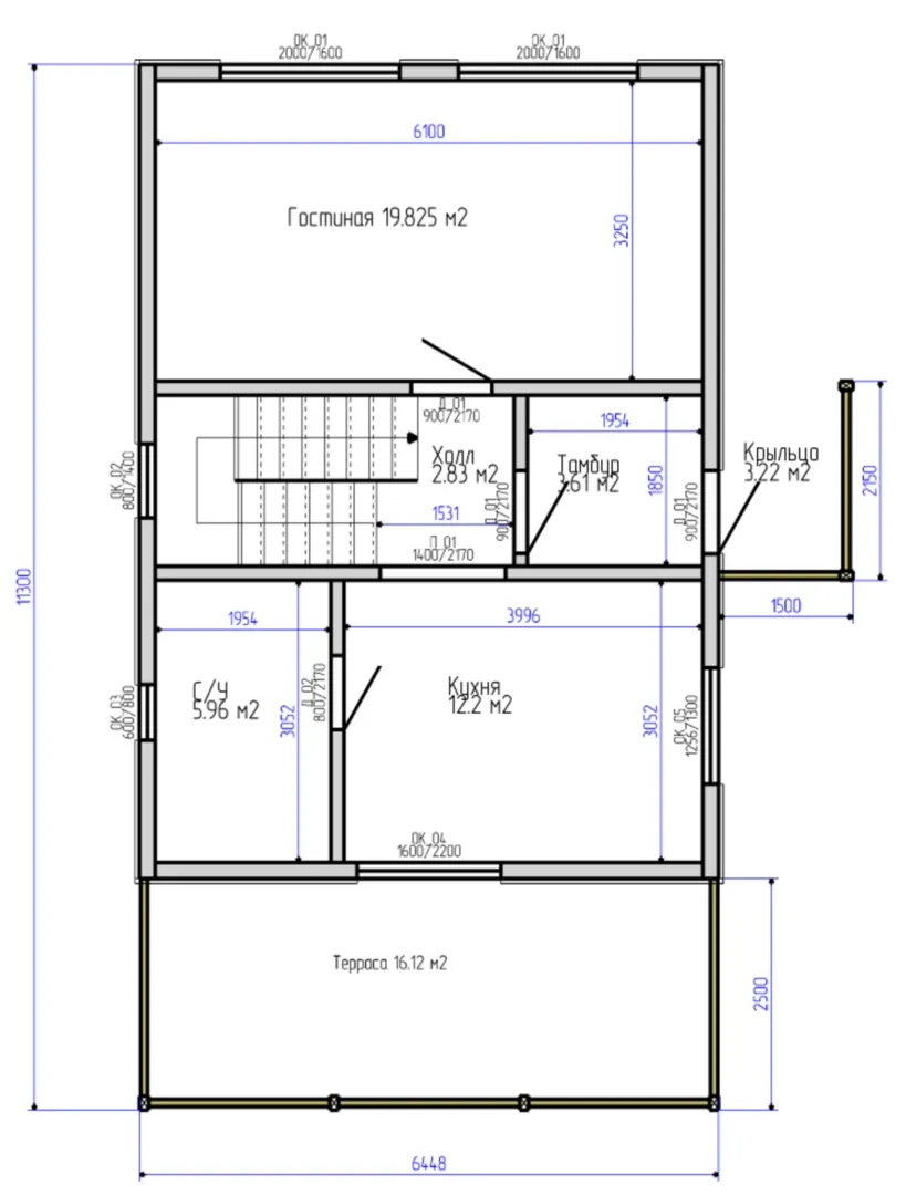
Характеристики дома
Архитектурный стиль
Автоматизированное регулирование параметров теплоносителя
Да
Балконы/лоджии
1
Чердачное помещение
Нет
Датчики протечки воды
Нет
Эксплуатируемая или зеленая кровля
Нет
Электроснабжение
Центральное
Газоснабжение
Центральное
Изоляция воздушного шума
Да
Камин
Нет
Класс энергоэффективности
C
Класс энергосбережения
B+
Количество надземных этажей
2
Круглогодичное проживание
Да
Материал кровли
Металлочерепица
Материал перекрытий
Деревянные
Материал внешних стен
Материал внутренних перегородок
Деревянные
Модульное строительство с конструкциями заводского изготовления
Нет
Объем надземной части
434 м3
Основной материал фасадов
Штукатурка
Отопление
Индивидуальное
Площадь дома
106 м2
Площадь застройки
76 м2
Подвальное помещение
Нет
Показатель компактности здания
1.26
Приборы учета тепловой энергии
Нет
Пристроенный гараж/крытая автостоянка
Нет
Противопожарная система
Нет
Санузлы
1
Совмещенная кухня-гостиная
Нет
Спальни
3
Терраса
Да
Тип фундамента
Свайно-винтовой
Тип кровли
Толщина внешних стен
174 мм
Толщина внутренних перегородок
150 мм
Улучшенные шумовые характеристики
Да
Вентиляция
Естественная
Веранда
Нет
Водоотведение
Локальные очистные сооружения
Водоснабжение
Центральное
Высота дома
7.59 м
Высота потолков
2.8 м
Категории проекта
Строительство двухэтажных домовСтроительство домовСтроительство домов без верандыСтроительство домов без гаражаСтроительство домов без чердакаСтроительство домов в Европейском стилеСтроительство домов для круглогодичного проживанияСтроительство домов из SIP-панелейСтроительство домов с балконом или лоджиейСтроительство домов с верандойСтроительство домов с двускатной крышейСтроительство домов с террасой
Закажите выезд инженера
Александр
Выездной инженер
Закажите выезд инженера для точной диагностики и профессиональной консультации по инженерным
системам. Специалист приедет в удобное время, проведёт осмотр, рассчитает стоимость работ и подберёт
оптимальные решения для вашего дома.
Как узнать стоимость дома
Заказать конусльтацию по:Волга
Наши
контакты
Дмитров
Опорный проезд 28Б
(индустриальный парк Ниагара)
Опорный проезд 28Б
(индустриальный парк Ниагара)
9:00 до 18:00