4.9
Рейтинг на основании 120 отзывов
Дмитров
Опорный проезд 28Б
(индустриальный парк Ниагара)
Бренд "Дмитров-Дело" c 2008 года на рынке строительства в Дмитрове
Звоните 9:00 до 18:00 8 (915) 055-33-61
Бренд "Дмитров-Дело" c 2008 года на рынке строительства в Дмитрове

СЕРИЯ «КЛАССИКА» ПРОЕКТ КД-11

Стоимость проекта от:
67 950 ₽
БЕСПЛАТНО! ПРИ ЗАКАЗЕ СТРОИТЕЛЬСТВА
Стоимость строительства от:
9 464 640 ₽
Артикул ART-5317
Дата 26.12.2025
Архитектурный стиль Классический
Количество надземных этажей 2
Круглогодичное проживание Да
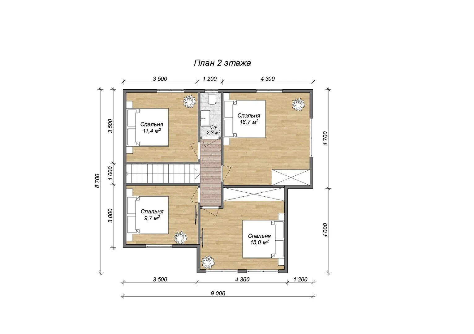
Площадь дома 151 м2
Санузлы 2
Спальни 5

Описание

Серия «Классика» – это воплощение уютного и стильного семейного жилья, выполненное в традиционном архитектурном стиле. Дом, построенный по проекту КД‑11, представляет собой двухэтажную конструкцию с прочным деревянным каркасом, что обеспечивает теплоизоляцию, натуральную гигиеничность и стойкость к перепадам температур. Квадратная, ровная двускатная крыша придаёт фасаду выразительность, а изящные линии резных элементов подчеркивают элегантность и классический облик здания. Внутри пространства аккуратно распределены для комфортного проживания круглый год: изящно освещённые коридоры ведут к просторным жилым помещениям, где естественный свет проникает через большие окна, создавая ощущение открытости и спокойствия. Тёплый деревянный каркас и качественная отделка делают каждый уголок дома притягательным и гармоничным. Отсутствие балконов и веранд не умоляет уюта – вместо этого в доме предусмотрена уютная терраса, идеальная для семейных посиделок под открытым небом, а также для наслаждения летними вечерами с видом на соседку. Дом «Классика» отобран для тех, кто ценит традиции, но при этом ищет современные решения удобства и функциональности. Его простая, но элегантная форма позволяет легко адаптировать интерьер к любым потребностям: будь то детская комната, домашний офис или зона отдыха. В итоге вы получаете не просто жилище, а уголок спокойствия и тепла, где каждый день звучит аккорд уюта и благополучия.

Характеристики дома

Архитектурный стиль
Автоматизированное регулирование параметров теплоносителя
-
Балконы/лоджии
Отсутствуют
Чердачное помещение
Нет
Датчики протечки воды
-
Эксплуатируемая или зеленая кровля
-
Электроснабжение
Центральное
Газоснабжение
Не предусмотрено
Изоляция воздушного шума
-
Камин
Нет
Класс энергоэффективности
-
Класс энергосбережения
-
Количество надземных этажей
2
Круглогодичное проживание
Да
Материал кровли
Битумная черепица
Материал перекрытий
Деревянные
Материал внешних стен
Материал внутренних перегородок
Деревянные
Модульное строительство с конструкциями заводского изготовления
Нет
Объем надземной части
842 м3
Основной материал фасадов
Дерево
Отопление
Не предусмотрено
Площадь дома
151 м2
Площадь застройки
173 м2
Подвальное помещение
Нет
Показатель компактности здания
-
Приборы учета тепловой энергии
-
Пристроенный гараж/крытая автостоянка
Нет
Противопожарная система
Нет
Санузлы
2
Совмещенная кухня-гостиная
Да
Спальни
5
Терраса
Да
Тип фундамента
Плитный
Тип кровли
Толщина внешних стен
150 мм
Толщина внутренних перегородок
200 мм
Улучшенные шумовые характеристики
-
Вентиляция
Принудительная
Веранда
Нет
Водоотведение
Центральное
Водоснабжение
Центральное
Высота дома
7 м
Высота потолков
2.5 м

Планировка

Фасад дома

Александр

Закажите выезд инженера

Александр

Выездной инженер
Закажите выезд инженера для точной диагностики и профессиональной консультации по инженерным системам. Специалист приедет в удобное время, проведёт осмотр, рассчитает стоимость работ и подберёт оптимальные решения для вашего дома.


    Похожие проекты

    Ипотека и
    рассрочка
    RG6105
    Стоимость от:
    6 143 940
    Проект от: 39 150
    Этажей 1
    Санузлы 1
    Спальни 3
    Смотреть
    Ипотека и
    рассрочка
    Индивидуальный дом 140
    Стоимость от:
    9 334 160
    Проект от: 57 600
    Этажей 1
    Санузлы 2
    Спальни 3
    Смотреть
    Ипотека и
    рассрочка
    Одноэтажный дом «Дзен 80»
    Стоимость от:
    5 649 600
    Проект от: 36 000
    Этажей 1
    Санузлы 1
    Спальни 3
    Смотреть
    Ипотека и
    рассрочка
    СК 2-х этажный 154м2
    Стоимость от:
    9 956 100
    Проект от: 69 300
    Этажей 2
    Санузлы 2
    Спальни 3
    Смотреть
    Ипотека и
    рассрочка
    Одноэтажный дом 102 кв.м. ЦН-102
    Стоимость от:
    6 232 710
    Проект от: 45 900
    Этажей 1
    Санузлы 1
    Спальни 3
    Смотреть
    Ипотека и
    рассрочка
    Загородный дом SH-126
    Стоимость от:
    9 465 720
    Проект от: 56 700
    Этажей 1
    Санузлы 2
    Спальни 3
    Смотреть

    Как узнать стоимость дома

    back
    Оставляете заявку
    Вы заполняете форму на сайте или звоните нам. Менеджер Лайвкрафт связывается с вами для уточнения деталей: тип дома, площадь, материалы, участок строительства.
    back
    Консультация и подбор решения
    Наш специалист помогает выбрать оптимальный тип дома и конструкцию с учётом бюджета, сроков и целей — будь то дом для постоянного проживания или дача.
    back
    Расчёт предварительной стоимости
    Инженер делает первичный расчёт стоимости строительства по вашим параметрам: фундамент, коробка, кровля, отделка. Вы получаете смету с разбивкой по этапам.
    back
    Корректировка и утверждение сметы
    При необходимости вносим изменения — например, замену материалов или сокращение этапов. После согласования формируется окончательная фиксированная смета.
    back
    Заключение договора и старт работ
    После утверждения сметы заключаем официальный договор с гарантией. Вы получаете прозрачный график и точную стоимость — без скрытых расходов.

    Заказать конусльтацию по:СЕРИЯ «КЛАССИКА» ПРОЕКТ КД-11

    Фото 1 СЕРИЯ «КЛАССИКА» ПРОЕКТ КД-11


      Наши
      контакты

      Дмитров
      Опорный проезд 28Б
      (индустриальный парк Ниагара)
      9:00 до 18:00

      Корзина