4.9
Рейтинг на основании 120 отзывов
Дмитров
Опорный проезд 28Б
(индустриальный парк Ниагара)
Бренд "Дмитров-Дело" c 2008 года на рынке строительства в Дмитрове
Звоните 9:00 до 18:00 8 (915) 055-33-61
Бренд "Дмитров-Дело" c 2008 года на рынке строительства в Дмитрове

89,89кв.м 3 комнаты красный с рустами

Стоимость проекта от:
40 050 ₽
БЕСПЛАТНО! ПРИ ЗАКАЗЕ СТРОИТЕЛЬСТВА
Стоимость строительства от:
6 494 180 ₽
Артикул ART-19831
Дата 26.12.2025
Архитектурный стиль Классический
Количество надземных этажей 1
Круглогодичное проживание Да
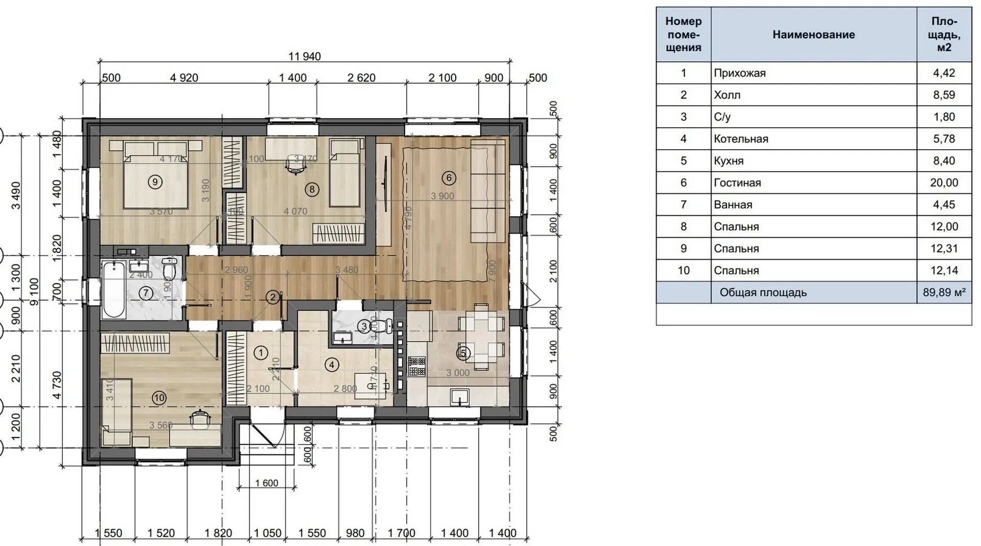
Площадь дома 89 м2
Санузлы 2
Спальни 3

Описание

Просторный и уютный дом площадью 89,89 м², расположенный на открытом одноэтажном участке, очарует своими классическими пропорциями и характерной красной окраской фасада. Внутри предусмотрено три светлых и функциональных комнаты, каждая из которых излучает тёплый семейный уют. Дом спроектирован так, чтобы обеспечивать комфортное круглогодичное проживание: обшивка газобетонными блоками, изолирующие стены и массивная четырехскатная (вальмовая) крыша создают приятный микроклимат в любое время года. Дизайн дома подчёркивает традиционность и элегантность. Фасад выполнен в светлых тонах с резинованными элементами, подчёркивающими классический стиль. Несмотря на отсутствие балконов, лоджий и веранд, внутреннее пространство наполнено естественным светом через большие окна, а уютные светлые стены создают ощущение простора. Этот дом подходит тем, кто ценит сочетание надёжного строительства и стиля. Простые в уходе материалы, отсутствие чердачного пространства и внешней автостоянки делают жильё удобным и экономичным для современного семейного образа жизни. Встречайте рассветы в своём новом доме, где каждый уголок дарит ощущение спокойствия и гармонии.

Характеристики дома

Архитектурный стиль
Автоматизированное регулирование параметров теплоносителя
Да
Балконы/лоджии
Отсутствуют
Чердачное помещение
Нет
Датчики протечки воды
Нет
Эксплуатируемая или зеленая кровля
Нет
Электроснабжение
Центральное
Газоснабжение
Центральное
Изоляция воздушного шума
Да
Камин
Нет
Класс энергоэффективности
A++
Класс энергосбережения
A++
Количество надземных этажей
1
Круглогодичное проживание
Да
Материал кровли
Битумная черепица
Материал перекрытий
Деревянные
Материал внешних стен
Материал внутренних перегородок
Блочные
Модульное строительство с конструкциями заводского изготовления
Нет
Объем надземной части
437 м3
Основной материал фасадов
Облицовочный кирпич
Отопление
Индивидуальное
Площадь дома
89 м2
Площадь застройки
148 м2
Подвальное помещение
Нет
Показатель компактности здания
0.75
Приборы учета тепловой энергии
Да
Пристроенный гараж/крытая автостоянка
Нет
Противопожарная система
Нет
Санузлы
2
Совмещенная кухня-гостиная
Да
Спальни
3
Терраса
Нет
Тип фундамента
Свайно-ростверковый
Толщина внешних стен
300 мм
Толщина внутренних перегородок
100 мм
Улучшенные шумовые характеристики
Да
Вентиляция
Естественная
Веранда
Нет
Водоотведение
Локальные очистные сооружения
Водоснабжение
Индивидуальное
Высота дома
6.08 м
Высота потолков
3.2 м

Планировка

Фасад дома

Александр

Закажите выезд инженера

Александр

Выездной инженер
Закажите выезд инженера для точной диагностики и профессиональной консультации по инженерным системам. Специалист приедет в удобное время, проведёт осмотр, рассчитает стоимость работ и подберёт оптимальные решения для вашего дома.


    Похожие проекты

    Ипотека и
    рассрочка
    Одноэтажный дом КМ-83
    Стоимость от:
    6 239 860
    Проект от: 37 350
    Этажей 1
    Санузлы 2
    Спальни 3
    Смотреть
    Ипотека и
    рассрочка
    «Загородный дом Гестия»
    Стоимость от:
    6 927 140
    Проект от: 39 150
    Этажей 1
    Санузлы 1
    Спальни 3
    Смотреть
    Ипотека и
    рассрочка
    Дом из клееного бруса «СОЛНЕЧНЫЙ»
    Стоимость от:
    7 877 760
    Проект от: 48 600
    Этажей 1
    Санузлы 2
    Спальни 3
    Смотреть
    Ипотека и
    рассрочка
    Загородный дом по проекту «Томас»
    Стоимость от:
    5 932 080
    Проект от: 37 800
    Этажей 1
    Санузлы 1
    Спальни 2
    Смотреть
    Ипотека и
    рассрочка
    Садовод 7х8 Модус
    Стоимость от:
    2 601 225
    Проект от: 20 250
    Этажей 1
    Санузлы 1
    Спальни 2
    Смотреть
    Ипотека и
    рассрочка
    Васту Дом
    Стоимость от:
    5 547 520
    Проект от: 34 200
    Этажей 1
    Санузлы 1
    Спальни 2
    Смотреть

    Как узнать стоимость дома

    back
    Оставляете заявку
    Вы заполняете форму на сайте или звоните нам. Менеджер Лайвкрафт связывается с вами для уточнения деталей: тип дома, площадь, материалы, участок строительства.
    back
    Консультация и подбор решения
    Наш специалист помогает выбрать оптимальный тип дома и конструкцию с учётом бюджета, сроков и целей — будь то дом для постоянного проживания или дача.
    back
    Расчёт предварительной стоимости
    Инженер делает первичный расчёт стоимости строительства по вашим параметрам: фундамент, коробка, кровля, отделка. Вы получаете смету с разбивкой по этапам.
    back
    Корректировка и утверждение сметы
    При необходимости вносим изменения — например, замену материалов или сокращение этапов. После согласования формируется окончательная фиксированная смета.
    back
    Заключение договора и старт работ
    После утверждения сметы заключаем официальный договор с гарантией. Вы получаете прозрачный график и точную стоимость — без скрытых расходов.

    Заказать конусльтацию по:89,89кв.м 3 комнаты красный с рустами

    Фото 1 89,89кв.м 3 комнаты красный с рустами


      Наши
      контакты

      Дмитров
      Опорный проезд 28Б
      (индустриальный парк Ниагара)
      9:00 до 18:00

      Корзина