4.9
Рейтинг на основании 120 отзывов
Дмитров
Опорный проезд 28Б
(индустриальный парк Ниагара)
Бренд "Дмитров-Дело" c 2008 года на рынке строительства в Дмитрове
Звоните 9:00 до 18:00 8 (915) 055-33-61
Бренд "Дмитров-Дело" c 2008 года на рынке строительства в Дмитрове

Дом из CLT «Ливадия»

Стоимость проекта от:
119 700 ₽
БЕСПЛАТНО! ПРИ ЗАКАЗЕ СТРОИТЕЛЬСТВА
Стоимость строительства от:
1 260 840 ₽
Артикул ART-2042
Дата 26.12.2025
Архитектурный стиль Барнхаус
Количество надземных этажей 2
Круглогодичное проживание Да
Площадь дома 266 м2
Санузлы 3
Спальни 4

Описание

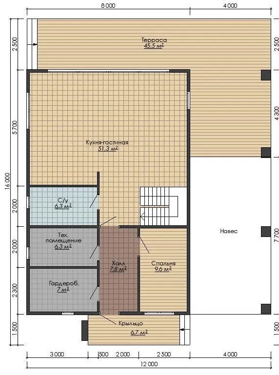
Дом «Ливадия» – это современный храм уюта, созданный из древесного клеевого плитного материала CLT. Уже с первого взгляда он открывает себя в стиле барнхаус, где широкие балки, массивные панели и простые линии создают ощущение деревенской простоты, но при этом каждая деталь рассчитана на комфортную жизнь круглый год. Двухэтажная планировка обеспечивает открытое взаимное пространство между этажами, а наружные стены из CLT не только дарят тепло, но и являются экологически чистым и энергоэффективным решением. К дому прилагается просторный прицепенный гараж с крытой автостоянкой, что гарантирует защиту вашего автомобиля от непогоды и удобный доступ в любое время. На каждом из двух уровней вас ждут три балкона и лоджии, которые позволяют наслаждаться свежим воздухом, даже без выхода на улицу. Затишье и тепло дополнительно усиливает веранда на первом этаже, где к столу можно пригласить гостей или просто провести утреннюю чашку кофе под звуки природы. Несмотря на современность дизайна, «Ливадия» сохраняет традиционные черта деревянного дома – двускатный крытый профиль, подчёркивающий его естественность и гармонию с окружающей средой. Этот дом – идеальное сочетание архитектурных трендов и практической функции. Если вы ищете пространство, где каждая деталь продумана, где уют и экологичность идут рука об руку, дом «Ливадия» станет вашим идеальным выбором. 🌿🏡

Характеристики дома

Архитектурный стиль
Автоматизированное регулирование параметров теплоносителя
-
Балконы/лоджии
3
Чердачное помещение
Нет
Датчики протечки воды
-
Эксплуатируемая или зеленая кровля
-
Электроснабжение
2 варианта
Газоснабжение
2 варианта
Изоляция воздушного шума
-
Камин
Нет
Класс энергоэффективности
-
Класс энергосбережения
-
Количество надземных этажей
2
Круглогодичное проживание
Да
Материал кровли
Металлические листовые гофрированные профили
Материал перекрытий
Деревянные
Материал внешних стен
Материал внутренних перегородок
Деревянные
Модульное строительство с конструкциями заводского изготовления
Нет
Объем надземной части
1094 м3
Основной материал фасадов
Планкен
Отопление
2 варианта
Площадь дома
266 м2
Площадь застройки
192 м2
Подвальное помещение
Нет
Показатель компактности здания
-
Приборы учета тепловой энергии
-
Пристроенный гараж/крытая автостоянка
Да
Противопожарная система
Нет
Санузлы
3
Совмещенная кухня-гостиная
Да
Спальни
4
Терраса
Нет
Тип фундамента
Свайный
Тип кровли
Толщина внешних стен
200 мм
Толщина внутренних перегородок
100 мм
Улучшенные шумовые характеристики
-
Вентиляция
2 варианта
Веранда
Да
Водоотведение
2 варианта
Водоснабжение
2 варианта
Высота дома
5.7 м
Высота потолков
2.7 м

Планировка

Фасад дома

Александр

Закажите выезд инженера

Александр

Выездной инженер
Закажите выезд инженера для точной диагностики и профессиональной консультации по инженерным системам. Специалист приедет в удобное время, проведёт осмотр, рассчитает стоимость работ и подберёт оптимальные решения для вашего дома.


    Похожие проекты

    Ипотека и
    рассрочка
    Проект загородного дома NHD-102
    Стоимость от:
    7 215 120
    Проект от: 43 200
    Этажей 1
    Санузлы 1
    Спальни 2
    Смотреть
    Ипотека и
    рассрочка
    СК 2-х этажный 154м2
    Стоимость от:
    9 956 100
    Проект от: 69 300
    Этажей 2
    Санузлы 2
    Спальни 3
    Смотреть
    Ипотека и
    рассрочка
    Одноэтажный жилой дом с тремя спальнями
    Стоимость от:
    5 077 600
    Проект от: 36 000
    Этажей 1
    Санузлы 1
    Спальни 3
    Смотреть
    Ипотека и
    рассрочка
    Ростов 2
    Стоимость от:
    8 380 800
    Проект от: 54 000
    Этажей 2
    Санузлы 2
    Спальни 3
    Смотреть
    Ипотека и
    рассрочка
    С.Е.С.-1-п-142
    Стоимость от:
    10 353 640
    Проект от: 63 900
    Этажей 1
    Санузлы 2
    Спальни 2
    Смотреть
    Ипотека и
    рассрочка
    Идея -Основной 185 АР
    Стоимость от:
    15 561 840
    Проект от: 106 200
    Этажей 2
    Санузлы 2
    Спальни 3
    Смотреть

    Как узнать стоимость дома

    back
    Оставляете заявку
    Вы заполняете форму на сайте или звоните нам. Менеджер Лайвкрафт связывается с вами для уточнения деталей: тип дома, площадь, материалы, участок строительства.
    back
    Консультация и подбор решения
    Наш специалист помогает выбрать оптимальный тип дома и конструкцию с учётом бюджета, сроков и целей — будь то дом для постоянного проживания или дача.
    back
    Расчёт предварительной стоимости
    Инженер делает первичный расчёт стоимости строительства по вашим параметрам: фундамент, коробка, кровля, отделка. Вы получаете смету с разбивкой по этапам.
    back
    Корректировка и утверждение сметы
    При необходимости вносим изменения — например, замену материалов или сокращение этапов. После согласования формируется окончательная фиксированная смета.
    back
    Заключение договора и старт работ
    После утверждения сметы заключаем официальный договор с гарантией. Вы получаете прозрачный график и точную стоимость — без скрытых расходов.

    Заказать конусльтацию по:Дом из CLT «Ливадия»

    Фото 1 Дом из CLT «Ливадия»


      Наши
      контакты

      Дмитров
      Опорный проезд 28Б
      (индустриальный парк Ниагара)
      9:00 до 18:00

      Корзина