4.9
Рейтинг на основании 120 отзывов
Дмитров
Опорный проезд 28Б
(индустриальный парк Ниагара)
Бренд "Дмитров-Дело" c 2008 года на рынке строительства в Дмитрове
Звоните 9:00 до 18:00 8 (915) 055-33-61
Бренд "Дмитров-Дело" c 2008 года на рынке строительства в Дмитрове

A-FRAME 67

Стоимость проекта от:
21 600 ₽
БЕСПЛАТНО! ПРИ ЗАКАЗЕ СТРОИТЕЛЬСТВА
Стоимость строительства от:
2 819 520 ₽
Артикул ART-20523
Дата 26.12.2025
Архитектурный стиль Скандинавский
Количество надземных этажей 2
Круглогодичное проживание Да
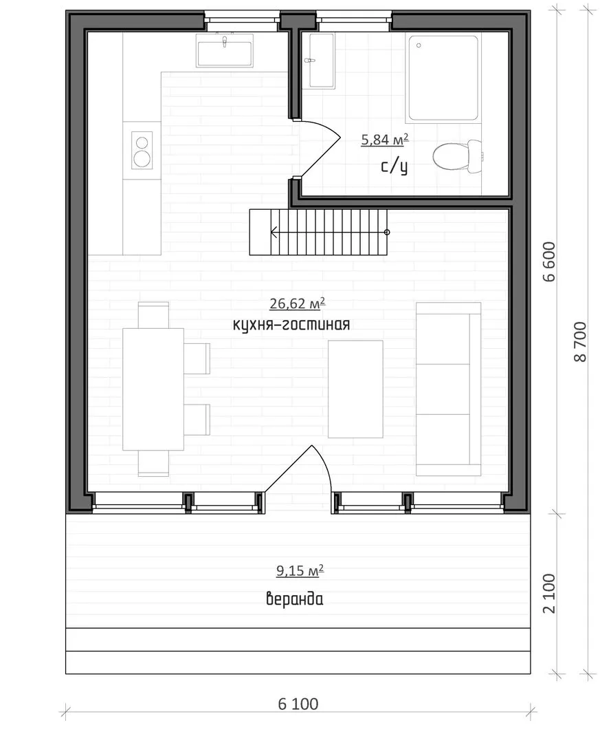
Площадь дома 48 м2
Санузлы 1
Спальни 1

Описание

Добро пожаловать в дом A‑FRAME 67 — настоящий шедевр скандинавского дизайна, созданный для комфортного круглогодичного проживания. На двух надземных этажах вас ждёт простор и свет: открытая гостиная с обогревательством, большая кухня-столовая с выходом во внутренний дворик, и несколько уютных спаленных комнат, каждая из которых пропитана теплом натуральных материалов. Деревянный каркасный паноборочный фасад не только выглядит свежим и современным, но и обеспечивает отличную тепло­изоляцию, позволяя сохранять мягкую температуру даже в холодную зиму. В центре дома расположена веранда, которая становится вашим личным уголком для утреннего кофе или вечернего чтения. С её открытым видом на живописную парковку, можно беспрепятственно наслаждаться природой, пока за окном дышит городская жизнь. Двускатная крыша с классической стилистикой завершает образ дома, подчёркивая лаконичность и функциональность конструкции. Дом A‑FRAME 67 — идеальное сочетание минимализма, функциональности и тепла. Он прекрасно подходит для семейного уединения, в котором каждый найдёт своё место под солнцем, а каждая деталь продумана, чтобы сделать жизнь лёгкой и приятной. Приходите и убедитесь сами: здесь вы почувствуете, как уют и стиль превращают обычный дом в настоящий дом.

Характеристики дома

Архитектурный стиль
Автоматизированное регулирование параметров теплоносителя
Нет
Балконы/лоджии
Отсутствуют
Чердачное помещение
Нет
Датчики протечки воды
Нет
Эксплуатируемая или зеленая кровля
Нет
Электроснабжение
Центральное
Газоснабжение
Центральное
Изоляция воздушного шума
Да
Камин
Нет
Класс энергоэффективности
A+
Класс энергосбережения
A+
Количество надземных этажей
2
Круглогодичное проживание
Да
Материал кровли
Металлические листовые гофрированные профили
Материал перекрытий
Деревянные
Материал внешних стен
Материал внутренних перегородок
Деревянные
Модульное строительство с конструкциями заводского изготовления
Нет
Объем надземной части
215 м3
Основной материал фасадов
Дерево
Отопление
Индивидуальное
Площадь дома
48 м2
Площадь застройки
53 м2
Подвальное помещение
Нет
Показатель компактности здания
0.9
Приборы учета тепловой энергии
Нет
Пристроенный гараж/крытая автостоянка
Нет
Противопожарная система
Нет
Санузлы
1
Совмещенная кухня-гостиная
Да
Спальни
1
Терраса
Нет
Тип фундамента
Свайный
Тип кровли
Толщина внешних стен
200 мм
Толщина внутренних перегородок
150 мм
Улучшенные шумовые характеристики
Да
Вентиляция
Естественная
Веранда
Да
Водоотведение
2 варианта
Водоснабжение
2 варианта
Высота дома
5.1 м
Высота потолков
2.5 м

Планировка

Фасад дома

Александр

Закажите выезд инженера

Александр

Выездной инженер
Закажите выезд инженера для точной диагностики и профессиональной консультации по инженерным системам. Специалист приедет в удобное время, проведёт осмотр, рассчитает стоимость работ и подберёт оптимальные решения для вашего дома.


    Похожие проекты

    Ипотека и
    рассрочка
    Видим
    Стоимость от:
    5 077 600
    Проект от: 36 000
    Этажей 1
    Санузлы 1
    Спальни 1
    Смотреть
    Ипотека и
    рассрочка
    Тамаль
    Стоимость от:
    13 291 740
    Проект от: 79 650
    Этажей 1
    Санузлы 2
    Спальни 3
    Смотреть
    Ипотека и
    рассрочка
    Одноэтажный дом FIXPLANS — 1673
    Стоимость от:
    13 201 320
    Проект от: 74 700
    Этажей 1
    Санузлы 2
    Спальни 3
    Смотреть
    Ипотека и
    рассрочка
    Двухэтажный дом в стиле Хай Тек «Сорум»
    Стоимость от:
    10 296 000
    Проект от: 67 500
    Этажей 2
    Санузлы 2
    Спальни 3
    Смотреть
    Ипотека и
    рассрочка
    Меркурий 1
    Стоимость от:
    10 775 600
    Проект от: 67 500
    Этажей 1
    Санузлы 2
    Спальни 3
    Смотреть
    Ипотека и
    рассрочка
    Авторский проект «Бунар»
    Стоимость от:
    4 660 920
    Проект от: 29 700
    Этажей 1
    Санузлы 1
    Спальни 1
    Смотреть

    Как узнать стоимость дома

    back
    Оставляете заявку
    Вы заполняете форму на сайте или звоните нам. Менеджер Лайвкрафт связывается с вами для уточнения деталей: тип дома, площадь, материалы, участок строительства.
    back
    Консультация и подбор решения
    Наш специалист помогает выбрать оптимальный тип дома и конструкцию с учётом бюджета, сроков и целей — будь то дом для постоянного проживания или дача.
    back
    Расчёт предварительной стоимости
    Инженер делает первичный расчёт стоимости строительства по вашим параметрам: фундамент, коробка, кровля, отделка. Вы получаете смету с разбивкой по этапам.
    back
    Корректировка и утверждение сметы
    При необходимости вносим изменения — например, замену материалов или сокращение этапов. После согласования формируется окончательная фиксированная смета.
    back
    Заключение договора и старт работ
    После утверждения сметы заключаем официальный договор с гарантией. Вы получаете прозрачный график и точную стоимость — без скрытых расходов.

    Заказать конусльтацию по:A-FRAME 67

    Фото 1 A-FRAME 67


      Наши
      контакты

      Дмитров
      Опорный проезд 28Б
      (индустриальный парк Ниагара)
      9:00 до 18:00

      Корзина