4.9
Рейтинг на основании 120 отзывов
Дмитров
Опорный проезд 28Б
(индустриальный парк Ниагара)
Бренд "Дмитров-Дело" c 2008 года на рынке строительства в Дмитрове
Звоните 9:00 до 18:00 8 (915) 055-33-61
Бренд "Дмитров-Дело" c 2008 года на рынке строительства в Дмитрове

Загородный дом Optimal — 24

Стоимость проекта от:
130 950 ₽
БЕСПЛАТНО! ПРИ ЗАКАЗЕ СТРОИТЕЛЬСТВА
Стоимость строительства от:
21 401 040 ₽
Артикул ART-15072
Дата 25.12.2025
Архитектурный стиль Классический
Количество надземных этажей 2
Круглогодичное проживание Да
Площадь дома 291 м2
Санузлы 3
Спальни 3

Описание

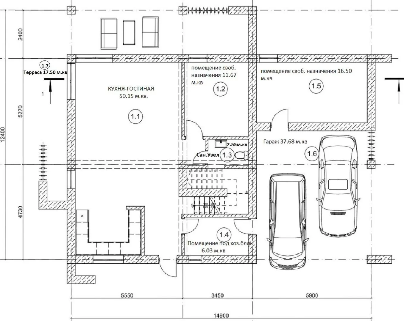
**Добро пожаловать в уютный уголок природы – загородный дом Optimal 24**. Это два элегантных уровня в стиле классики, где традиционные линии сочетаются с современными удобствами. Дом рассчитан на круглогодичную жизнь: мягкая теплоизоляция газобетонных блоков и плоская крыша создают идеальные климатические условия даже в самые прохладные дни. Большие окна наполняют каждый уголок естественным светом, а открытые пространства привнесут ощущение простора и свободы. Внутреннее планирование продумано до мелочей: просторная гостинная с большим камином, практичный кухонный остров и уютные зоны отдыха делают ваш дом идеальным местом для семейных вечеров или вдохновляющих рабочих сессий. Большие санузлы оснащены современной сантехникой, а плавные переходы между комнатами позволяют организовать пространство в соответствии с вашими потребностями. В каждой детали чувствуется внимание к удобству и комфорту – ведь в Optimal 24 вас ждут как тишина семейного уюта, так и возможность принимать гостей в атмосфере классической элегантности. Практичность и безопасность – неизменные спутники в этом доме: встроенный гараж приюхает ваш автомобиль от непогоды и обеспечивает быстрый доступ к дому в любое время. Технически обеспеченная крыша, а также наличие уютной террасы придают дому дополнительную функциональность: здесь можно умываться после дождя, устраивать барбекю или просто наслаждаться рассветом над живописным пейзажем. В Optimal 24 вы найдёте гармонию стиля и функциональности, а также возможность создать свой неповторимый дом, где каждый день – это наслаждение от уюта и природного окружения.

Характеристики дома

Архитектурный стиль
Автоматизированное регулирование параметров теплоносителя
Нет
Балконы/лоджии
Отсутствуют
Чердачное помещение
Нет
Датчики протечки воды
Нет
Эксплуатируемая или зеленая кровля
Нет
Электроснабжение
Индивидуальное
Газоснабжение
Индивидуальное
Изоляция воздушного шума
Нет
Камин
Нет
Класс энергоэффективности
-
Класс энергосбережения
-
Количество надземных этажей
2
Круглогодичное проживание
Да
Материал кровли
ПВХ мембраны
Материал перекрытий
Монолитные железобетонные
Материал внешних стен
Материал внутренних перегородок
Блочные
Модульное строительство с конструкциями заводского изготовления
Нет
Объем надземной части
-
Основной материал фасадов
Штукатурка
Отопление
Индивидуальное
Площадь дома
291 м2
Площадь застройки
190 м2
Подвальное помещение
Нет
Показатель компактности здания
-
Приборы учета тепловой энергии
Нет
Пристроенный гараж/крытая автостоянка
Да
Противопожарная система
Нет
Санузлы
3
Совмещенная кухня-гостиная
Да
Спальни
3
Терраса
Да
Тип фундамента
Ленточный
Тип кровли
Толщина внешних стен
400 мм
Толщина внутренних перегородок
150 мм
Улучшенные шумовые характеристики
Нет
Вентиляция
Естественная
Веранда
Нет
Водоотведение
Локальные очистные сооружения
Водоснабжение
Индивидуальное
Высота дома
6.9 м
Высота потолков
3 м

Планировка

Фасад дома

Александр

Закажите выезд инженера

Александр

Выездной инженер
Закажите выезд инженера для точной диагностики и профессиональной консультации по инженерным системам. Специалист приедет в удобное время, проведёт осмотр, рассчитает стоимость работ и подберёт оптимальные решения для вашего дома.


    Похожие проекты

    Ипотека и
    рассрочка
    AR-102
    Стоимость от:
    7 665 240
    Проект от: 45 900
    Этажей 1
    Санузлы 2
    Спальни 3
    Смотреть
    Ипотека и
    рассрочка
    Добродом -130
    Стоимость от:
    11 525 760
    Проект от: 82 800
    Этажей 2
    Санузлы 2
    Спальни 3
    Смотреть
    Ипотека и
    рассрочка
    Одноэтажный каменный классический дом Ц-52-67
    Стоимость от:
    6 847 720
    Проект от: 38 700
    Этажей 1
    Санузлы 1
    Спальни 2
    Смотреть
    Ипотека и
    рассрочка
    Одноэтажный дом Эйндховен 19.5х15.2
    Стоимость от:
    9 510 380
    Проект от: 62 550
    Этажей 1
    Санузлы 3
    Спальни 3
    Смотреть
    Ипотека и
    рассрочка
    Одноэтажный дом со вторым светом УД9
    Стоимость от:
    6 371 200
    Проект от: 36 000
    Этажей 1
    Санузлы 1
    Спальни 2
    Смотреть
    Ипотека и
    рассрочка
    Дом из клееного бруса «Хедаль»
    Стоимость от:
    8 241 120
    Проект от: 53 100
    Этажей 2
    Санузлы 2
    Спальни 3
    Смотреть

    Как узнать стоимость дома

    back
    Оставляете заявку
    Вы заполняете форму на сайте или звоните нам. Менеджер Лайвкрафт связывается с вами для уточнения деталей: тип дома, площадь, материалы, участок строительства.
    back
    Консультация и подбор решения
    Наш специалист помогает выбрать оптимальный тип дома и конструкцию с учётом бюджета, сроков и целей — будь то дом для постоянного проживания или дача.
    back
    Расчёт предварительной стоимости
    Инженер делает первичный расчёт стоимости строительства по вашим параметрам: фундамент, коробка, кровля, отделка. Вы получаете смету с разбивкой по этапам.
    back
    Корректировка и утверждение сметы
    При необходимости вносим изменения — например, замену материалов или сокращение этапов. После согласования формируется окончательная фиксированная смета.
    back
    Заключение договора и старт работ
    После утверждения сметы заключаем официальный договор с гарантией. Вы получаете прозрачный график и точную стоимость — без скрытых расходов.

    Заказать конусльтацию по:Загородный дом Optimal — 24

    Фото 1 Загородный дом Optimal — 24


      Наши
      контакты

      Дмитров
      Опорный проезд 28Б
      (индустриальный парк Ниагара)
      9:00 до 18:00

      Корзина