4.9
Рейтинг на основании 120 отзывов
Дмитров
Опорный проезд 28Б
(индустриальный парк Ниагара)
Бренд "Дмитров-Дело" c 2008 года на рынке строительства в Дмитрове
Звоните 9:00 до 18:00 8 (915) 055-33-61
Бренд "Дмитров-Дело" c 2008 года на рынке строительства в Дмитрове

Афина

Стоимость проекта от:
32 400 ₽
БЕСПЛАТНО! ПРИ ЗАКАЗЕ СТРОИТЕЛЬСТВА
Стоимость строительства от:
5 735 840 ₽
Артикул ART-19185
Дата 26.12.2025
Архитектурный стиль Классический
Количество надземных этажей 1
Круглогодичное проживание Да
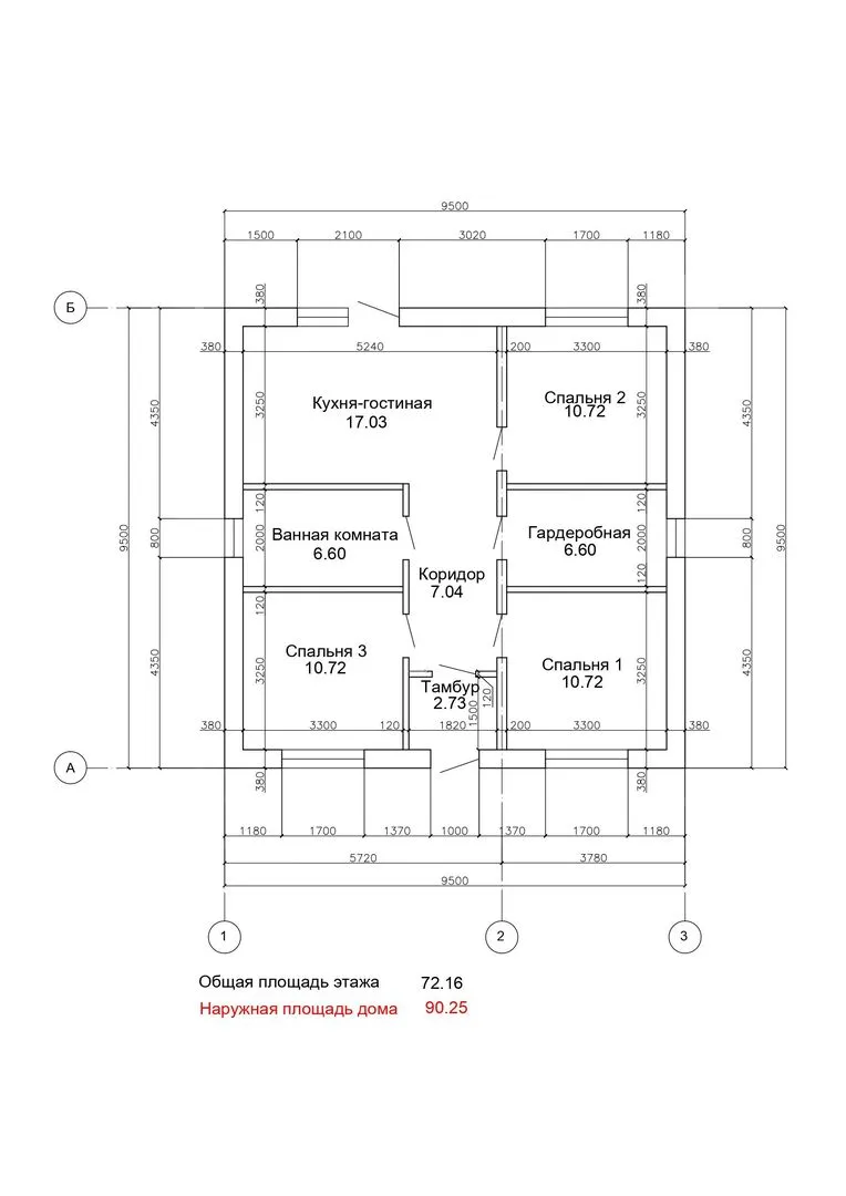
Площадь дома 72 м2
Санузлы 1
Спальни 3

Описание

**Афина** – это уютное семейное гнездышко, которое подарит вам комфорт на весь год. Визуально дом напоминает настоящую классическую элегантность: простые, гармоничные линии и нежные детали, без лишних акцентов. Благодаря высоте надземного этажа один уровень, в доме легко ориентироваться и планировать пространство под любые нужды, будь то дети, домашние животные или просто удобная зона отдыха. Внутри встречает тепло и свет, а без балконов и лоджей каждая комната сохраняет приватность и спокойствие, а отсутствие веранд и террас даёт ощущение лаконичности и простора. Строительный материал – газобетонные блоки, которые не только сохраняют энергоэффективность, но и гарантируют долговечность и простоту обслуживания. Кровельный профиль – четыре-скатная (вальмовая) крыша, классический элемент, который легко сочетается с любыми видами обстановки. Такой конфиг обеспечивает надёжность даже при неблагоприятных погодных условиях. Пристроенный гараж и чердачное помещение отсутствуют, но это открывает возможность для более свободного планирования внешнего участка: вы можете использовать открытый простор под огороды, детские площадки или минималистичный сад, создавая свое собственное уединение от городской суеты. Именно благодаря этому сочетанию классики, простоты и функциональности **Афина** становится идеальной базой для тех, кто ценит качество и комфорт. Здесь вы откроете новый этап жизни, наполненный гармонией и уютом, где каждый уголок приглашает к отдых и создает благоприятную атмосферу для семейных ценностей и гармоничных отношений.

Характеристики дома

Архитектурный стиль
Автоматизированное регулирование параметров теплоносителя
Нет
Балконы/лоджии
Отсутствуют
Чердачное помещение
Нет
Датчики протечки воды
Нет
Эксплуатируемая или зеленая кровля
Нет
Электроснабжение
Центральное
Газоснабжение
Индивидуальное
Изоляция воздушного шума
Нет
Камин
Нет
Класс энергоэффективности
-
Класс энергосбережения
-
Количество надземных этажей
1
Круглогодичное проживание
Да
Материал кровли
Металлочерепица
Материал перекрытий
Деревянные
Материал внешних стен
Материал внутренних перегородок
Блочные
Модульное строительство с конструкциями заводского изготовления
Нет
Объем надземной части
-
Основной материал фасадов
Облицовочный кирпич
Отопление
Индивидуальное
Площадь дома
72 м2
Площадь застройки
90 м2
Подвальное помещение
Нет
Показатель компактности здания
-
Приборы учета тепловой энергии
Нет
Пристроенный гараж/крытая автостоянка
Нет
Противопожарная система
Нет
Санузлы
1
Совмещенная кухня-гостиная
Да
Спальни
3
Терраса
Нет
Тип фундамента
Ленточный
Толщина внешних стен
380 мм
Толщина внутренних перегородок
200 мм
Улучшенные шумовые характеристики
Нет
Вентиляция
Естественная
Веранда
Нет
Водоотведение
Локальные очистные сооружения
Водоснабжение
Центральное
Высота дома
7 м
Высота потолков
3.3 м

Планировка

Фасад дома

Александр

Закажите выезд инженера

Александр

Выездной инженер
Закажите выезд инженера для точной диагностики и профессиональной консультации по инженерным системам. Специалист приедет в удобное время, проведёт осмотр, рассчитает стоимость работ и подберёт оптимальные решения для вашего дома.


    Похожие проекты

    Ипотека и
    рассрочка
    ИЖД «Комфортный»
    Стоимость от:
    9 978 980
    Проект от: 58 050
    Этажей 1
    Санузлы 1
    Спальни 3
    Смотреть
    Ипотека и
    рассрочка
    Е-146 Одноэтажный жилой дом
    Стоимость от:
    11 612 920
    Проект от: 65 700
    Этажей 1
    Санузлы 2
    Спальни 3
    Смотреть
    Ипотека и
    рассрочка
    Дом из газобетонных блоков G-190-3
    Стоимость от:
    5 500 220
    Проект от: 31 950
    Этажей 1
    Санузлы 1
    Спальни 2
    Смотреть
    Ипотека и
    рассрочка
    KARL156
    Стоимость от:
    10 891 100
    Проект от: 65 250
    Этажей 1
    Санузлы 2
    Спальни 3
    Смотреть
    Ипотека и
    рассрочка
    Дом из клееного бруса «Каспий»
    Стоимость от:
    8 612 520
    Проект от: 59 850
    Этажей 2
    Санузлы 2
    Спальни 4
    Смотреть
    Ипотека и
    рассрочка
    Каркасный одноэтажный дом «ДК 303»
    Стоимость от:
    5 780 500
    Проект от: 45 000
    Этажей 1
    Санузлы 1
    Спальни 2
    Смотреть

    Как узнать стоимость дома

    back
    Оставляете заявку
    Вы заполняете форму на сайте или звоните нам. Менеджер Лайвкрафт связывается с вами для уточнения деталей: тип дома, площадь, материалы, участок строительства.
    back
    Консультация и подбор решения
    Наш специалист помогает выбрать оптимальный тип дома и конструкцию с учётом бюджета, сроков и целей — будь то дом для постоянного проживания или дача.
    back
    Расчёт предварительной стоимости
    Инженер делает первичный расчёт стоимости строительства по вашим параметрам: фундамент, коробка, кровля, отделка. Вы получаете смету с разбивкой по этапам.
    back
    Корректировка и утверждение сметы
    При необходимости вносим изменения — например, замену материалов или сокращение этапов. После согласования формируется окончательная фиксированная смета.
    back
    Заключение договора и старт работ
    После утверждения сметы заключаем официальный договор с гарантией. Вы получаете прозрачный график и точную стоимость — без скрытых расходов.

    Заказать конусльтацию по:Афина

    Фото 1 Афина


      Наши
      контакты

      Дмитров
      Опорный проезд 28Б
      (индустриальный парк Ниагара)
      9:00 до 18:00

      Корзина