4.9
Рейтинг на основании 120 отзывов
Дмитров
Опорный проезд 28Б
(индустриальный парк Ниагара)
Бренд "Дмитров-Дело" c 2008 года на рынке строительства в Дмитрове
Звоните 9:00 до 18:00 8 (915) 055-33-61
Бренд "Дмитров-Дело" c 2008 года на рынке строительства в Дмитрове

Проект дома из сип-панелей «Алькор»

Стоимость проекта от:
43 650 ₽
БЕСПЛАТНО! ПРИ ЗАКАЗЕ СТРОИТЕЛЬСТВА
Стоимость строительства от:
6 399 480 ₽
Артикул ART-19986
Дата 26.12.2025
Архитектурный стиль Классический
Количество надземных этажей 2
Круглогодичное проживание Да
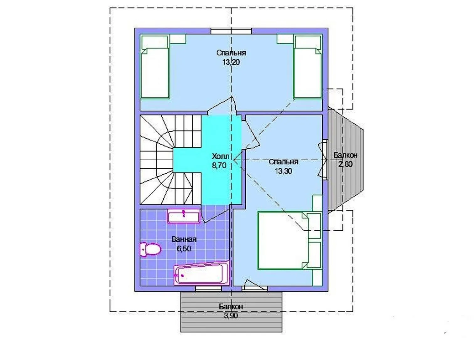
Площадь дома 97 м2
Санузлы 2
Спальни 2

Описание

**Премиум‑просторный дом из SIP‑панелей «Алкор» – «Классика, Сила, Уют»** Воздушный шлейф стального бетона‑каркаса – это и тепло, и безопасность, и скорость строительства. В каждом уголке проекта SIP‑панели «Алкор» дарят идеальное тепло‑звуко‑изолирование, позволяя наслаждаться комфортом в любое время года: зима будет мягкой, лето прохладным, а осадки – ни к чему не тревожат. В сочетании с классическим стилем архитектуры получаются не просто стены, а элегантный фасад, который подчёркивает уравновешенность и благородство вашего дома. Дом – это уютное семейное пространство: два надземных этажа, площадью более чем 150 м², с двумя балконами/лоджиями, где можно открывать окна и наслаждаться прохладой летнего ветра. Круглогодичное проживание обеспечивают два полностью изолированных этажа, высококачественная система перекрытия и водонепроницаемая двухскатная крыша. Отдельная веранда, гаража и чердака при этом не предусмотрено, что снимает лишние расходы на строительство и обслуживание. **Почему именно «Алкор»?** С IP‑panels «Алкор» вы зарабатываете на времени: монтаж занимает считанные недели, а высший класс теплоизоляции экономит средства на отоплении и кондиционировании. Актуальная классика в дизайне даёт вам безупречный статус и привлекательно‑тёплую атмосферу в каждом помещении. Двускатная крыша обеспечивает прочность и стильность, а отсутствие веранд и гаража делает проект гибким – вы сами решите, как лучше использовать открытые участки. Выбирая дом «Алкор», вы инвестируете в современную технологию, безупречный стиль и долгосрочную ценность: ваш новый дом будет хранить тепло и радость каждый день, а вы будете наслаждаться каждой минутой уюта, который вы создали.

Характеристики дома

Архитектурный стиль
Автоматизированное регулирование параметров теплоносителя
Да
Балконы/лоджии
2
Чердачное помещение
Нет
Датчики протечки воды
Нет
Эксплуатируемая или зеленая кровля
Нет
Электроснабжение
Индивидуальное
Газоснабжение
Индивидуальное
Изоляция воздушного шума
Да
Камин
Нет
Класс энергоэффективности
-
Класс энергосбережения
-
Количество надземных этажей
2
Круглогодичное проживание
Да
Материал кровли
Металлочерепица
Материал перекрытий
Деревянные
Материал внешних стен
Материал внутренних перегородок
Гипсокартонные
Модульное строительство с конструкциями заводского изготовления
Нет
Объем надземной части
-
Основной материал фасадов
Фасадная плитка
Отопление
Индивидуальное
Площадь дома
97 м2
Площадь застройки
57 м2
Подвальное помещение
Нет
Показатель компактности здания
-
Приборы учета тепловой энергии
Нет
Пристроенный гараж/крытая автостоянка
Нет
Противопожарная система
Нет
Санузлы
2
Совмещенная кухня-гостиная
Да
Спальни
2
Терраса
Нет
Тип фундамента
Свайный
Тип кровли
Толщина внешних стен
174 мм
Толщина внутренних перегородок
124 мм
Улучшенные шумовые характеристики
Нет
Вентиляция
2 варианта
Веранда
Нет
Водоотведение
Локальные очистные сооружения
Водоснабжение
Индивидуальное
Высота дома
-
Высота потолков
2.5 м

Планировка

Фасад дома

Александр

Закажите выезд инженера

Александр

Выездной инженер
Закажите выезд инженера для точной диагностики и профессиональной консультации по инженерным системам. Специалист приедет в удобное время, проведёт осмотр, рассчитает стоимость работ и подберёт оптимальные решения для вашего дома.


    Похожие проекты

    Ипотека и
    рассрочка
    Загородный дом из газобетона «S»
    Стоимость от:
    8 923 200
    Проект от: 58 500
    Этажей 2
    Санузлы 2
    Спальни 3
    Смотреть
    Ипотека и
    рассрочка
    Азур
    Стоимость от:
    5 864 760
    Проект от: 35 100
    Этажей 1
    Санузлы 1
    Спальни 2
    Смотреть
    Ипотека и
    рассрочка
    К 1-90-1
    Стоимость от:
    6 689 980
    Проект от: 40 050
    Этажей 1
    Санузлы 2
    Спальни 3
    Смотреть
    Ипотека и
    рассрочка
    LITE 106
    Стоимость от:
    6 494 620
    Проект от: 47 700
    Этажей 1
    Санузлы 1
    Спальни 2
    Смотреть
    Ипотека и
    рассрочка
    Возведение — 13
    Стоимость от:
    10 024 520
    Проект от: 56 700
    Этажей 1
    Санузлы 2
    Спальни 3
    Смотреть
    Ипотека и
    рассрочка
    Фаворит 7х10
    Стоимость от:
    7 484 460
    Проект от: 56 250
    Этажей 2
    Санузлы 2
    Спальни 4
    Смотреть

    Как узнать стоимость дома

    back
    Оставляете заявку
    Вы заполняете форму на сайте или звоните нам. Менеджер Лайвкрафт связывается с вами для уточнения деталей: тип дома, площадь, материалы, участок строительства.
    back
    Консультация и подбор решения
    Наш специалист помогает выбрать оптимальный тип дома и конструкцию с учётом бюджета, сроков и целей — будь то дом для постоянного проживания или дача.
    back
    Расчёт предварительной стоимости
    Инженер делает первичный расчёт стоимости строительства по вашим параметрам: фундамент, коробка, кровля, отделка. Вы получаете смету с разбивкой по этапам.
    back
    Корректировка и утверждение сметы
    При необходимости вносим изменения — например, замену материалов или сокращение этапов. После согласования формируется окончательная фиксированная смета.
    back
    Заключение договора и старт работ
    После утверждения сметы заключаем официальный договор с гарантией. Вы получаете прозрачный график и точную стоимость — без скрытых расходов.

    Заказать конусльтацию по:Проект дома из сип-панелей «Алькор»

    Фото 1 Проект дома из сип-панелей «Алькор»


      Наши
      контакты

      Дмитров
      Опорный проезд 28Б
      (индустриальный парк Ниагара)
      9:00 до 18:00

      Корзина