4.9
Рейтинг на основании 120 отзывов
Дмитров
Опорный проезд 28Б
(индустриальный парк Ниагара)
Бренд "Дмитров-Дело" c 2008 года на рынке строительства в Дмитрове
Звоните 9:00 до 18:00 8 (915) 055-33-61
Бренд "Дмитров-Дело" c 2008 года на рынке строительства в Дмитрове

Алиса 2023

Стоимость проекта от:
108 000 ₽
БЕСПЛАТНО! ПРИ ЗАКАЗЕ СТРОИТЕЛЬСТВА
Стоимость строительства от:
17 644 800 ₽
Артикул ART-5890
Дата 26.12.2025
Архитектурный стиль Шале
Количество надземных этажей 2
Круглогодичное проживание Да
Площадь дома 240 м2
Санузлы 2
Спальни 3

Описание

**Алиса 2023** – ваш притулок у теплих, але живих кутків природи. Високий шале‑стиль, вплетений у ландшафт, дарує відчуття елегантності та домашнього затишку. Фасад із кам’яних газобетонних блоків і двоскатна кровля не лише віддзеркалюють яскравість сонячного дня, а й забезпечують чудову теплоізоляцію й стійкість до негоди. Три простори – корисні підказки про сучасні технології будівництва 2023 року, коли комфорт стає пріоритетом. Відкрийте двері у просторий двоетажний будинок: панорамна веранда (якої немає у цьому моделі, але велика терраса, що розливається у широкий простір) дозволяє спостерігати за змінами природи. У кожному з двох поверхів – одна балконна лоджія, що ідеально підходить для ранкових кавових моментів з видом на зелену околиці. Внутрішні приміщення пропінені природним світлом, а підвіконня й меблі підходять до елементів шале‑стилю, створюючи ідеальне простір для сімейних зустрічей та спокійного відпочинку. Немає потреби жертвувати комфортом – **Алиса 2023** забезпечує повнолітню життєдіяльність, незалежно від пори року. Пакування тепла, акустичний контроль і сучасні системи водопостачання роблять цей будинок практичним вибором для тих, хто цінує спокій і простоту. Привабливий розташування, витончений дизайн та унікальні характеристики – це ваш шанс обрати власний куточок, де кожен день стає святом комфорту. Запишіться на приватну демонстрацію та переконайтеся, що «Алиса 2023» – це більше, ніж просто будинок: це ваш новий спосіб життя.

Характеристики дома

Архитектурный стиль
Автоматизированное регулирование параметров теплоносителя
-
Балконы/лоджии
1
Чердачное помещение
Нет
Датчики протечки воды
-
Эксплуатируемая или зеленая кровля
-
Электроснабжение
Не предусмотрено
Газоснабжение
Не предусмотрено
Изоляция воздушного шума
-
Камин
Нет
Класс энергоэффективности
-
Класс энергосбережения
-
Количество надземных этажей
2
Круглогодичное проживание
Да
Материал кровли
Битумная черепица
Материал перекрытий
Сборные железобетонные многопустотные плиты
Материал внешних стен
Материал внутренних перегородок
Блочные
Модульное строительство с конструкциями заводского изготовления
Нет
Объем надземной части
800 м3
Основной материал фасадов
Штукатурка
Отопление
Не предусмотрено
Площадь дома
240 м2
Площадь застройки
143 м2
Подвальное помещение
Нет
Показатель компактности здания
-
Приборы учета тепловой энергии
-
Пристроенный гараж/крытая автостоянка
Нет
Противопожарная система
Нет
Санузлы
2
Совмещенная кухня-гостиная
Нет
Спальни
3
Терраса
Да
Тип фундамента
Ленточный
Тип кровли
Толщина внешних стен
400 мм
Толщина внутренних перегородок
200 мм
Улучшенные шумовые характеристики
-
Вентиляция
Естественная
Веранда
Нет
Водоотведение
Не предусмотрено
Водоснабжение
Не предусмотрено
Высота дома
8 м
Высота потолков
2.7 м

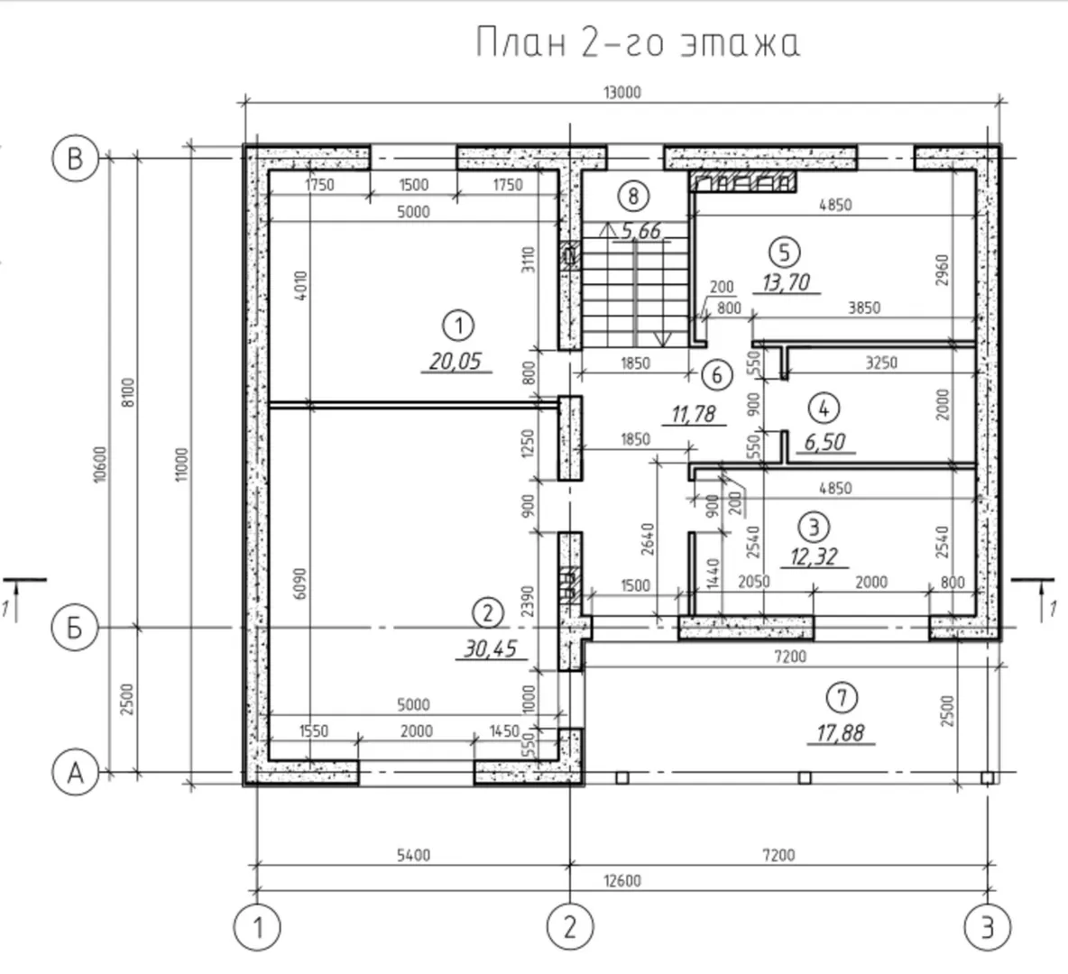
Планировка

Фасад дома

Александр

Закажите выезд инженера

Александр

Выездной инженер
Закажите выезд инженера для точной диагностики и профессиональной консультации по инженерным системам. Специалист приедет в удобное время, проведёт осмотр, рассчитает стоимость работ и подберёт оптимальные решения для вашего дома.


    Похожие проекты

    Ипотека и
    рассрочка
    Загородный дом «Сидней» 168.8м2
    Стоимость от:
    8 060 690
    Проект от: 57 150
    Этажей 1
    Санузлы 2
    Спальни 3
    Смотреть
    Ипотека и
    рассрочка
    Одноэтажный дом Floors 80
    Стоимость от:
    4 517 370
    Проект от: 36 450
    Этажей 1
    Санузлы 1
    Спальни 3
    Смотреть
    Ипотека и
    рассрочка
    Двухэтажный каменный дом «Веритате»
    Стоимость от:
    7 464 720
    Проект от: 46 350
    Этажей 2
    Санузлы 1
    Спальни 2
    Смотреть
    Ипотека и
    рассрочка
    Жилой дом «Уют1»
    Стоимость от:
    11 396 320
    Проект от: 68 400
    Этажей 3
    Санузлы 1
    Спальни 3
    Смотреть
    Ипотека и
    рассрочка
    Загородный дом АС-246
    Стоимость от:
    8 885 760
    Проект от: 58 050
    Этажей 2
    Санузлы 1
    Спальни 3
    Смотреть
    Ипотека и
    рассрочка
    Загородный дом АС-279
    Стоимость от:
    12 111 840
    Проект от: 83 700
    Этажей 2
    Санузлы 4
    Спальни 4
    Смотреть

    Как узнать стоимость дома

    back
    Оставляете заявку
    Вы заполняете форму на сайте или звоните нам. Менеджер Лайвкрафт связывается с вами для уточнения деталей: тип дома, площадь, материалы, участок строительства.
    back
    Консультация и подбор решения
    Наш специалист помогает выбрать оптимальный тип дома и конструкцию с учётом бюджета, сроков и целей — будь то дом для постоянного проживания или дача.
    back
    Расчёт предварительной стоимости
    Инженер делает первичный расчёт стоимости строительства по вашим параметрам: фундамент, коробка, кровля, отделка. Вы получаете смету с разбивкой по этапам.
    back
    Корректировка и утверждение сметы
    При необходимости вносим изменения — например, замену материалов или сокращение этапов. После согласования формируется окончательная фиксированная смета.
    back
    Заключение договора и старт работ
    После утверждения сметы заключаем официальный договор с гарантией. Вы получаете прозрачный график и точную стоимость — без скрытых расходов.

    Заказать конусльтацию по:Алиса 2023

    Фото 1 Алиса 2023


      Наши
      контакты

      Дмитров
      Опорный проезд 28Б
      (индустриальный парк Ниагара)
      9:00 до 18:00

      Корзина