4.9
Рейтинг на основании 120 отзывов
Дмитров
Опорный проезд 28Б
(индустриальный парк Ниагара)
Бренд "Дмитров-Дело" c 2008 года на рынке строительства в Дмитрове
Звоните 9:00 до 18:00 8 (915) 055-33-61
Бренд "Дмитров-Дело" c 2008 года на рынке строительства в Дмитрове

Алит

Стоимость проекта от:
28 350 ₽
Стоимость строительства от:
3 988 215 ₽
Артикул ART-14220
Дата 25.12.2025
Архитектурный стиль Хайтек
Количество надземных этажей 1
Круглогодичное проживание Да
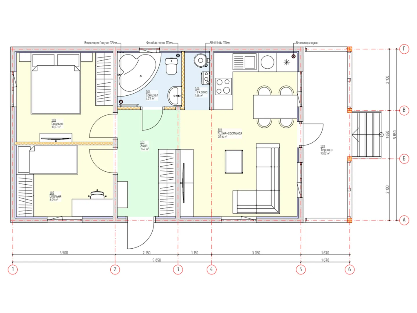
Площадь дома 63 м2
Санузлы 1
Спальни 2

Описание

**Дом мечты в стиле хай‑тек – ваш личный оазис уюта и современности** В сердце пригорода, где каждая деталь продумана для максимального комфорта, открывается одиннадцатая «постройка» — одноэтажный, круглогодичный дом, объединяющий высочайшие стандарты строительства с элегантным хай‑тек дизайном. Каркасно‑панельная технология дает ему легкость и энергоэффективность, а двускатная крыша, выполненная из современных материалов, подчеркивает его современную эстетику. Внутри царит простор и свет: большие панорамные окна наполняют комнаты дневным светом, а открытая планировка позволяет свободно перемещаться и организовать пространство под свои нужды. Незаметно в архитектуре пропущен типичный баланс, создающий ощущение открытости. Отсутствие балконов и лоджий подчёркивает чистую линию фасада, а наличие террасы – это настоящий кинг‑плей, где можно обедать под открытым небом, наслаждаясь видом на ухоженный сад. В доме нет лишних конструкций: без пристроенных гаражей, чердачных помещений и веранд. Всё здесь работает ради простоты и функциональности: уютные уголки для отдыха, современные кухни с элементами «умный дом», а теплоизоляция гарантирует комфорт в любое время года. Приглашаем вас открыть двери этого современного жилища, где каждый метр продуман до мелочей, и почувствовать, как стиль хай‑тек становится частью вашей жизни. Этот дом – не просто квартира, а целый образ жизни, сочетание инноваций, красоты и практичности, созданное, чтобы вы чувствовали себя дома уже с первого шага.

Характеристики дома

Архитектурный стиль
Хайтек
Автоматизированное регулирование параметров теплоносителя
Да
Балконы/лоджии
Отсутствуют
Чердачное помещение
Нет
Датчики протечки воды
Да
Эксплуатируемая или зеленая кровля
Нет
Электроснабжение
2 варианта
Газоснабжение
2 варианта
Изоляция воздушного шума
Да
Камин
Нет
Класс энергоэффективности
-
Класс энергосбережения
-
Количество надземных этажей
1
Круглогодичное проживание
Да
Материал кровли
Металлочерепица
Материал перекрытий
Деревянные
Материал внешних стен
Каркасно-панельная технология
Материал внутренних перегородок
Деревянные
Модульное строительство с конструкциями заводского изготовления
Нет
Объем надземной части
162 м3
Основной материал фасадов
Дерево
Отопление
2 варианта
Площадь дома
63 м2
Площадь застройки
72 м2
Подвальное помещение
Нет
Показатель компактности здания
-
Приборы учета тепловой энергии
Да
Пристроенный гараж/крытая автостоянка
Нет
Противопожарная система
Да
Санузлы
1
Совмещенная кухня-гостиная
Да
Спальни
2
Терраса
Да
Тип фундамента
Свайно-винтовой
Тип кровли
Двускатная
Толщина внешних стен
250 мм
Толщина внутренних перегородок
100 мм
Улучшенные шумовые характеристики
Да
Вентиляция
Естественная
Веранда
Нет
Водоотведение
2 варианта
Водоснабжение
2 варианта
Высота дома
3 м
Высота потолков
2.5 м

Планировка

Фасад дома

Александр

Закажите выезд инженера

Александр

Выездной инженер
Закажите выезд инженера для точной диагностики и профессиональной консультации по инженерным системам. Специалист приедет в удобное время, проведёт осмотр, рассчитает стоимость работ и подберёт оптимальные решения для вашего дома.


    Похожие проекты

    Ипотека и
    рассрочка
    Одноэтажный каркасный дом «Белла-Вита»
    Стоимость от:
    5 029 035
    Проект от: 39 150
    Этажей 1
    Санузлы 1
    Спальни 2
    Смотреть
    Ипотека и
    рассрочка
    Европейский -144
    Стоимость от:
    8 972 160
    Проект от: 55 800
    Этажей 2
    Санузлы 2
    Спальни 4
    Смотреть
    Ипотека и
    рассрочка
    Загородный дом Ален
    Стоимость от:
    5 648 830
    Проект от: 40 050
    Этажей 1
    Санузлы 1
    Спальни 2
    Смотреть
    Ипотека и
    рассрочка
    Новочеркасск 90
    Стоимость от:
    7 165 400
    Проект от: 40 500
    Этажей 1
    Санузлы 1
    Спальни 3
    Смотреть
    Ипотека и
    рассрочка
    Barnhouse 13х13
    Стоимость от:
    7 506 675
    Проект от: 60 750
    Этажей 1
    Санузлы 3
    Спальни 3
    Смотреть
    Ипотека и
    рассрочка
    К-2
    Стоимость от:
    8 277 280
    Проект от: 46 800
    Этажей 1
    Санузлы 2
    Спальни 3
    Смотреть

    Как узнать стоимость дома

    back
    Оставляете заявку
    Вы заполняете форму на сайте или звоните нам. Менеджер Лайвкрафт связывается с вами для уточнения деталей: тип дома, площадь, материалы, участок строительства.
    back
    Консультация и подбор решения
    Наш специалист помогает выбрать оптимальный тип дома и конструкцию с учётом бюджета, сроков и целей — будь то дом для постоянного проживания или дача.
    back
    Расчёт предварительной стоимости
    Инженер делает первичный расчёт стоимости строительства по вашим параметрам: фундамент, коробка, кровля, отделка. Вы получаете смету с разбивкой по этапам.
    back
    Корректировка и утверждение сметы
    При необходимости вносим изменения — например, замену материалов или сокращение этапов. После согласования формируется окончательная фиксированная смета.
    back
    Заключение договора и старт работ
    После утверждения сметы заключаем официальный договор с гарантией. Вы получаете прозрачный график и точную стоимость — без скрытых расходов.

    Заказать конусльтацию по:Алит

    Фото 1 Алит


      Наши
      контакты

      Дмитров
      Опорный проезд 28Б
      (индустриальный парк Ниагара)
      9:00 до 18:00