4.9
Рейтинг на основании 120 отзывов
Дмитров
Опорный проезд 28Б
(индустриальный парк Ниагара)
Бренд "Дмитров-Дело" c 2008 года на рынке строительства в Дмитрове
Звоните 9:00 до 18:00 8 (915) 055-33-61
Бренд "Дмитров-Дело" c 2008 года на рынке строительства в Дмитрове

Ново-Дорожный 5 спален 1 этаж

Стоимость проекта от:
69 750 ₽
БЕСПЛАТНО! ПРИ ЗАКАЗЕ СТРОИТЕЛЬСТВА
Стоимость строительства от:
10 946 100 ₽
Артикул ART-20379
Дата 26.12.2025
Архитектурный стиль Скандинавский
Количество надземных этажей 1
Круглогодичное проживание Да
Площадь дома 155 м2
Санузлы 2
Спальни 5

Описание

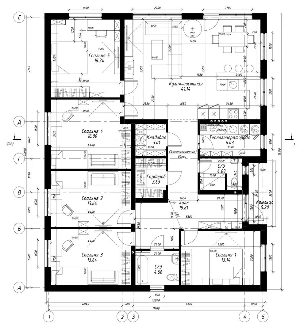
Итальянская простота встречается с северной лаконичностью в этом просторном одноэтажном доме на Ново-Дорожном 5 спален. Его скандинавский стиль раскрывается в чистых линиях, широких панорамных окнах и светлой, приглушённой палитре. Внутри каждый уголок создан с мыслью о комфорте и гармонии: просторные коридоры, открытые планировки и нежно звучащий ритм приглашают к долгим беседам и тихим семейным вечерам. В доме предусмотрено круглогодичное проживание – тепло, уют и защита от ветра благодаря изоляции газобетона, а большие внутренние площадки, будто приглашённые к жизни, делают его настоящим оазисом для любой семьи. Особое внимание уделено функциональности: пятно спален расположено так, чтобы каждый мог найти свой уголок уединения; центральная гостиная открывается на небольшую открывающуюся площадку, где всегда можно провести время на свежем воздухе. Чердачное помещение добавляет пространственной выразительности и предлагает возможность превратить его в мастерскую, игровую комнату или дополнительную спальню. А четырёхскатная (вальмовая) крыша не только подчёркивает элегантность архитектуры, но и обеспечивает надёжную защиту от непогоды, сохраняя тепло внутри. Этот дом – идеальное сочетание стиля, практичности и уюта. Он не только придаёт вашему пространству характер, но и создаёт ощущение дома: пространство, где каждый найдет своё место, а каждое мгновение остаётся наполненным светом и теплом.

Характеристики дома

Архитектурный стиль
Автоматизированное регулирование параметров теплоносителя
Нет
Балконы/лоджии
Отсутствуют
Чердачное помещение
Да
Датчики протечки воды
Нет
Эксплуатируемая или зеленая кровля
Нет
Электроснабжение
Центральное
Газоснабжение
Не предусмотрено
Изоляция воздушного шума
Нет
Камин
Нет
Класс энергоэффективности
-
Класс энергосбережения
-
Количество надземных этажей
1
Круглогодичное проживание
Да
Материал кровли
Металлочерепица
Материал перекрытий
Деревянные
Материал внешних стен
Материал внутренних перегородок
Пенобетонные
Модульное строительство с конструкциями заводского изготовления
Нет
Объем надземной части
815 м3
Основной материал фасадов
Штукатурка
Отопление
Индивидуальное
Площадь дома
155 м2
Площадь застройки
184 м2
Подвальное помещение
Нет
Показатель компактности здания
-
Приборы учета тепловой энергии
Нет
Пристроенный гараж/крытая автостоянка
Нет
Противопожарная система
Нет
Санузлы
2
Совмещенная кухня-гостиная
Да
Спальни
5
Терраса
Нет
Тип фундамента
Плитный
Толщина внешних стен
240 мм
Толщина внутренних перегородок
100 мм
Улучшенные шумовые характеристики
Нет
Вентиляция
Естественная
Веранда
Нет
Водоотведение
Локальные очистные сооружения
Водоснабжение
Индивидуальное
Высота дома
5.75 м
Высота потолков
3 м

Планировка

Фасад дома

Александр

Закажите выезд инженера

Александр

Выездной инженер
Закажите выезд инженера для точной диагностики и профессиональной консультации по инженерным системам. Специалист приедет в удобное время, проведёт осмотр, рассчитает стоимость работ и подберёт оптимальные решения для вашего дома.


    Похожие проекты

    Ипотека и
    рассрочка
    Двухэтажный каменный дом КД-21
    Стоимость от:
    14 870 160
    Проект от: 94 050
    Этажей 2
    Санузлы 2
    Спальни 5
    Смотреть
    Ипотека и
    рассрочка
    Дом с эркером Б039
    Стоимость от:
    6 688 880
    Проект от: 37 800
    Этажей 1
    Санузлы 1
    Спальни 2
    Смотреть
    Ипотека и
    рассрочка
    Индивидуальный деревянный дом 24-08-07
    Стоимость от:
    5 014 130
    Проект от: 35 550
    Этажей 1
    Санузлы 1
    Спальни 4
    Смотреть
    Ипотека и
    рассрочка
    Загородный дом АС-255
    Стоимость от:
    7 340 400
    Проект от: 47 250
    Этажей 2
    Санузлы 2
    Спальни 4
    Смотреть
    Ипотека и
    рассрочка
    Проект одноэтажный №4
    Стоимость от:
    9 627 420
    Проект от: 54 450
    Этажей 1
    Санузлы 2
    Спальни 4
    Смотреть
    Ипотека и
    рассрочка
    Дом с просторным крыльцом Дом Б042
    Стоимость от:
    5 577 000
    Проект от: 31 500
    Этажей 1
    Санузлы 1
    Спальни 2
    Смотреть

    Как узнать стоимость дома

    back
    Оставляете заявку
    Вы заполняете форму на сайте или звоните нам. Менеджер Лайвкрафт связывается с вами для уточнения деталей: тип дома, площадь, материалы, участок строительства.
    back
    Консультация и подбор решения
    Наш специалист помогает выбрать оптимальный тип дома и конструкцию с учётом бюджета, сроков и целей — будь то дом для постоянного проживания или дача.
    back
    Расчёт предварительной стоимости
    Инженер делает первичный расчёт стоимости строительства по вашим параметрам: фундамент, коробка, кровля, отделка. Вы получаете смету с разбивкой по этапам.
    back
    Корректировка и утверждение сметы
    При необходимости вносим изменения — например, замену материалов или сокращение этапов. После согласования формируется окончательная фиксированная смета.
    back
    Заключение договора и старт работ
    После утверждения сметы заключаем официальный договор с гарантией. Вы получаете прозрачный график и точную стоимость — без скрытых расходов.

    Заказать конусльтацию по:Ново-Дорожный 5 спален 1 этаж

    Фото 1 Ново-Дорожный 5 спален 1 этаж


      Наши
      контакты

      Дмитров
      Опорный проезд 28Б
      (индустриальный парк Ниагара)
      9:00 до 18:00

      Корзина