4.9
Рейтинг на основании 120 отзывов
Дмитров
Опорный проезд 28Б
(индустриальный парк Ниагара)
Бренд "Дмитров-Дело" c 2008 года на рынке строительства в Дмитрове
Звоните 9:00 до 18:00 8 (915) 055-33-61
Бренд "Дмитров-Дело" c 2008 года на рынке строительства в Дмитрове

Дом с парной и мойкой ДБ-832

Стоимость проекта от:
49 050 ₽
БЕСПЛАТНО! ПРИ ЗАКАЗЕ СТРОИТЕЛЬСТВА
Стоимость строительства от:
7 190 760 ₽
Артикул ART-17574
Дата 26.12.2025
Архитектурный стиль Русский
Количество надземных этажей 2
Круглогодичное проживание Да
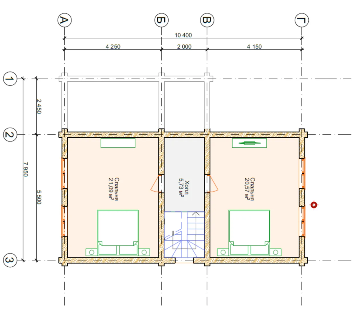
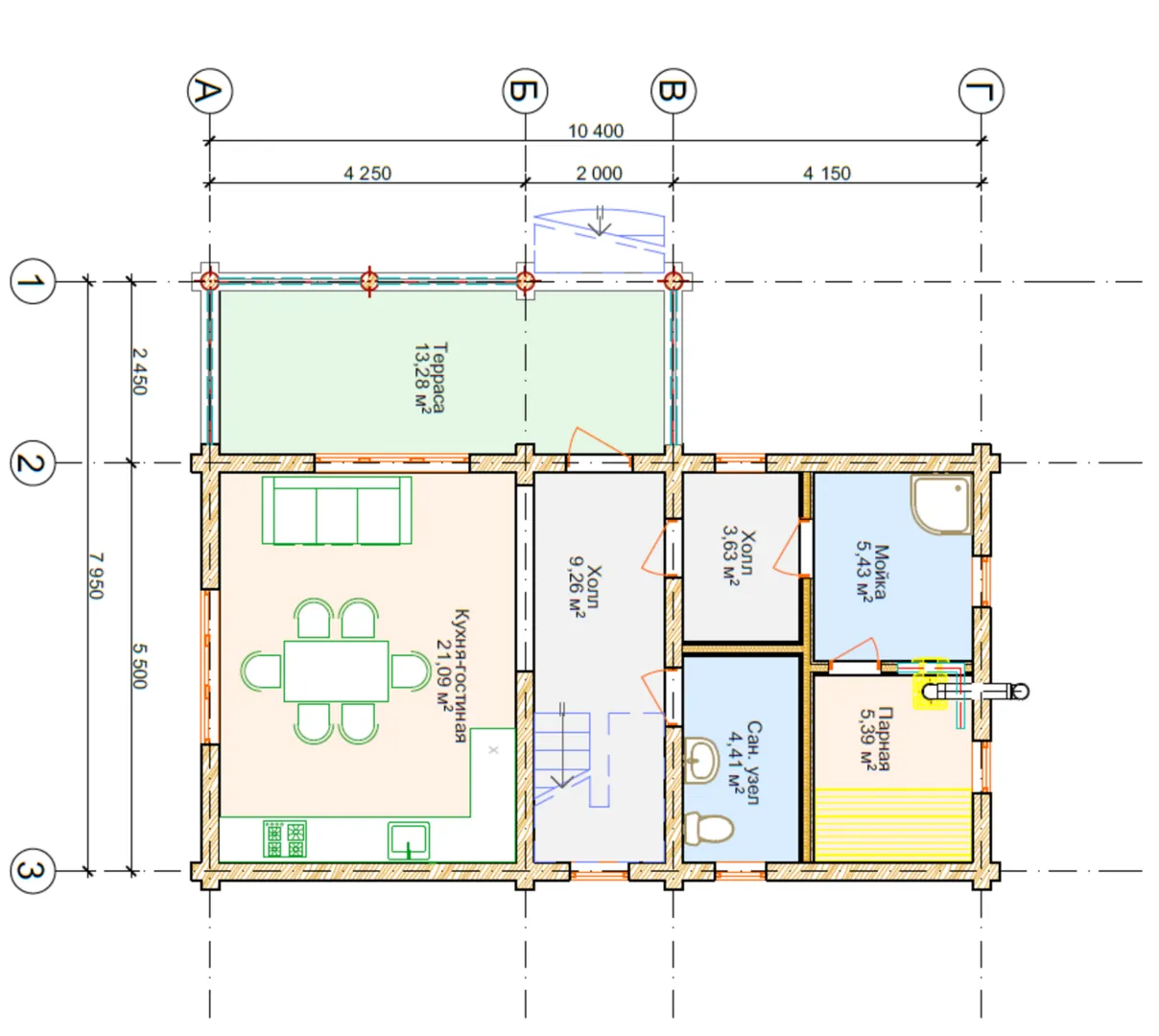
Площадь дома 109 м2
Санузлы 2
Спальни 2

Описание

Уникальный дом «ДБ‑832» – это сочетание роскоши и уюта с глубокими корнями русской архитектуры. Он выполнен в традиционном русском стиле, но при этом обладает современными удобствами, которые вы бы не захотели пропустить. Благодаря двум надземным этажам каждый из них открывает вам простор и свет, создавая домашний комфорт круглый год. Внутри просторная парная и мойка дарят особый релаксационный уголок, а тёплый, уютный интерьер с натуральным материалом наружных стен – оцилиндрованным бревном – словно обнимает вас своими традиционными теплоизоляционными свойствами. Благодаря классическому двускатному покрытию крыши, который превосходно отводит дождевой и снеговой поток, дом остаётся надёжно теплым и сухим даже во время суровых зимних периодов. Снаружи – аккуратная тераса, где можно наслаждаться рассветами и закатами, а также принимать гостей с видом на спокойный двор. В доме отсутствуют балконы, веранда и чердачное помещение, чтобы полностью сохранять гармонию классической скелетной конструкции и обеспечивать беспрепятственный визуальный поток. Если вы ищете место, где каждая деталь говорит о богатой истории русской архитектуры и при этом удобно и функционально, «Дом с парной и мойкой ДБ‑832» – ваш идеальный выбор. Приглашаем вас стать владельцем этой уникальной резиденции и пережить каждый день в атмосфере уюта и надёжности. Ваш новый дом уже ждёт вас!

Характеристики дома

Архитектурный стиль
Автоматизированное регулирование параметров теплоносителя
Нет
Балконы/лоджии
Отсутствуют
Чердачное помещение
Нет
Датчики протечки воды
Нет
Эксплуатируемая или зеленая кровля
Нет
Электроснабжение
Не предусмотрено
Газоснабжение
Не предусмотрено
Изоляция воздушного шума
Нет
Камин
Нет
Класс энергоэффективности
-
Класс энергосбережения
-
Количество надземных этажей
2
Круглогодичное проживание
Да
Материал кровли
Металлочерепица
Материал перекрытий
Деревянные
Материал внешних стен
Материал внутренних перегородок
Деревянные
Модульное строительство с конструкциями заводского изготовления
Да
Объем надземной части
231 м3
Основной материал фасадов
Дерево
Отопление
Не предусмотрено
Площадь дома
109 м2
Площадь застройки
109 м2
Подвальное помещение
Нет
Показатель компактности здания
-
Приборы учета тепловой энергии
Нет
Пристроенный гараж/крытая автостоянка
Нет
Противопожарная система
Нет
Санузлы
2
Совмещенная кухня-гостиная
Да
Спальни
2
Терраса
Да
Тип фундамента
Свайный
Тип кровли
Толщина внешних стен
240 мм
Толщина внутренних перегородок
240 мм
Улучшенные шумовые характеристики
Нет
Вентиляция
Естественная
Веранда
Нет
Водоотведение
Не предусмотрено
Водоснабжение
Не предусмотрено
Высота дома
6.7 м
Высота потолков
2.7 м

Планировка

Фасад дома

Александр

Закажите выезд инженера

Александр

Выездной инженер
Закажите выезд инженера для точной диагностики и профессиональной консультации по инженерным системам. Специалист приедет в удобное время, проведёт осмотр, рассчитает стоимость работ и подберёт оптимальные решения для вашего дома.


    Похожие проекты

    Ипотека и
    рассрочка
    Одноэтажный дом линейки «Эстетика» 1-110
    Стоимость от:
    9 745 560
    Проект от: 62 100
    Этажей 1
    Санузлы 2
    Спальни 3
    Смотреть
    Ипотека и
    рассрочка
    Одноэтажный дом «AURA»
    Стоимость от:
    8 640 500
    Проект от: 51 750
    Этажей 1
    Санузлы 2
    Спальни 2
    Смотреть
    Ипотека и
    рассрочка
    Авторский проект «Демир»
    Стоимость от:
    6 355 800
    Проект от: 40 500
    Этажей 1
    Санузлы 2
    Спальни 3
    Смотреть
    Ипотека и
    рассрочка
    Каркасный дом Валенсия 129
    Стоимость от:
    7 723 860
    Проект от: 58 050
    Этажей 2
    Санузлы 2
    Спальни 4
    Смотреть
    Ипотека и
    рассрочка
    БОНН-111
    Стоимость от:
    10 290 940
    Проект от: 61 650
    Этажей 1
    Санузлы 2
    Спальни 3
    Смотреть
    Ипотека и
    рассрочка
    Бисхорн
    Стоимость от:
    11 119 680
    Проект от: 72 900
    Этажей 2
    Санузлы 2
    Спальни 4
    Смотреть

    Как узнать стоимость дома

    back
    Оставляете заявку
    Вы заполняете форму на сайте или звоните нам. Менеджер Лайвкрафт связывается с вами для уточнения деталей: тип дома, площадь, материалы, участок строительства.
    back
    Консультация и подбор решения
    Наш специалист помогает выбрать оптимальный тип дома и конструкцию с учётом бюджета, сроков и целей — будь то дом для постоянного проживания или дача.
    back
    Расчёт предварительной стоимости
    Инженер делает первичный расчёт стоимости строительства по вашим параметрам: фундамент, коробка, кровля, отделка. Вы получаете смету с разбивкой по этапам.
    back
    Корректировка и утверждение сметы
    При необходимости вносим изменения — например, замену материалов или сокращение этапов. После согласования формируется окончательная фиксированная смета.
    back
    Заключение договора и старт работ
    После утверждения сметы заключаем официальный договор с гарантией. Вы получаете прозрачный график и точную стоимость — без скрытых расходов.

    Заказать конусльтацию по:Дом с парной и мойкой ДБ-832

    Фото 1 Дом с парной и мойкой ДБ-832


      Наши
      контакты

      Дмитров
      Опорный проезд 28Б
      (индустриальный парк Ниагара)
      9:00 до 18:00

      Корзина