4.9
Рейтинг на основании 120 отзывов
Дмитров
Опорный проезд 28Б
(индустриальный парк Ниагара)
Бренд "Дмитров-Дело" c 2008 года на рынке строительства в Дмитрове
Звоните 9:00 до 18:00 8 (915) 055-33-61
Бренд "Дмитров-Дело" c 2008 года на рынке строительства в Дмитрове

Одноэтажный дом Д-01

Стоимость проекта от:
28 350 ₽
БЕСПЛАТНО! ПРИ ЗАКАЗЕ СТРОИТЕЛЬСТВА
Стоимость строительства от:
4 449 060 ₽
Артикул ART-16666
Дата 26.12.2025
Архитектурный стиль Классический
Количество надземных этажей 1
Круглогодичное проживание Да
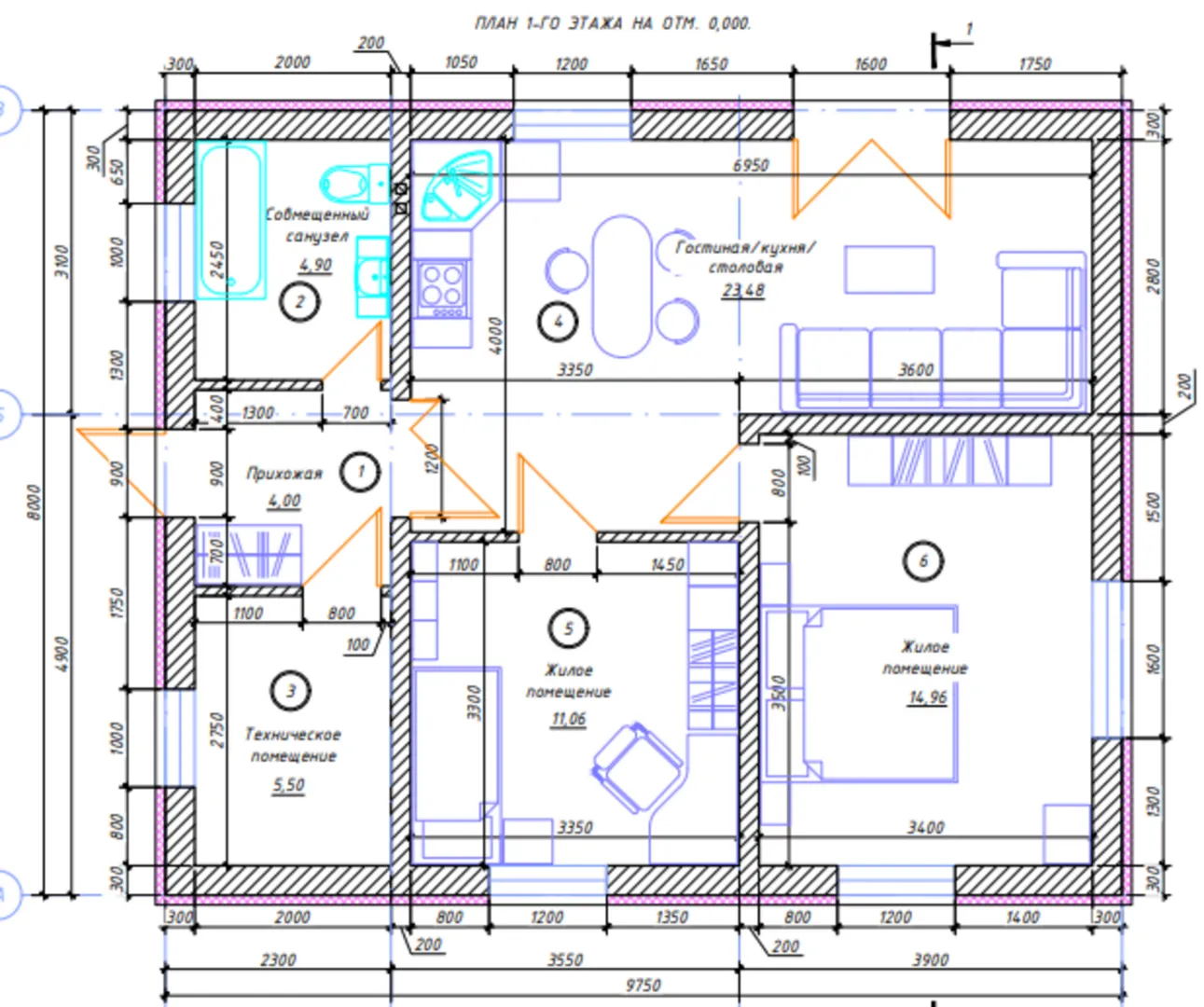
Площадь дома 63 м2
Санузлы 1
Спальни 2

Описание

Это идеальный вариант для тех, кто ценит уют и комфорт без лишних сложностей. Одноэтажный дом D‑01 выполнен в изысканном классическом стиле, где каждая деталь оттачена с душой. На протяжении всего года в доме ощущается тепло и живописная атмосфера: крепкие газобетонные стены создают непрерывную теплоизоляцию, а двойственная крыша с двумя скатами дарит ощущение защищённости и придает архитектуре элегантный ритм. Отсутствие балконов, лоуджи, веранд и чердачного помещения делает пространство более открытым и простым в обслуживании, а отсутствие прицепного гаража говорит о гибкости решений, позволяющих вам самому выбрать место для автомобиля. Внутреннее пространство продумано до мелочей: просторные комнаты, продуманное световое распределение и большие окна погружают в интерьер мягкий естественный свет. Гостиная, где можно провести семейный вечер, ощущается особенно привлекательно, а кухня-столовая открыта к гостям и позволяет удобно готовить и принимать компанию. При необходимости вы можете превратить свободное помещение кухни в уютный кабинет или игровой уголок, ведь в доме предусмотрено достаточно места для различных идей. Этот дом – больше, чем просто жилище. Он находится в спокойном районе, где рядом с вами откроются прогулочные тропы, парки и местные магазины. Крутая и надёжная крыша обеспечивает постоянную защиту от неблагоприятных погодных условий, а высококачественные материалы гарантируют долгосрочную эксплуатацию без лишних хлопот. Приятный, домашний уголок ждёт именно вас, чтобы каждый день начинался с улыбки и завершался спокойствием в уютном, классическом пространстве.

Характеристики дома

Архитектурный стиль
Автоматизированное регулирование параметров теплоносителя
Нет
Балконы/лоджии
Отсутствуют
Чердачное помещение
Нет
Датчики протечки воды
Нет
Эксплуатируемая или зеленая кровля
Нет
Электроснабжение
Центральное
Газоснабжение
Индивидуальное
Изоляция воздушного шума
Да
Камин
Нет
Класс энергоэффективности
-
Класс энергосбережения
-
Количество надземных этажей
1
Круглогодичное проживание
Да
Материал кровли
Металлочерепица
Материал перекрытий
Деревянные
Материал внешних стен
Материал внутренних перегородок
Блочные
Модульное строительство с конструкциями заводского изготовления
Нет
Объем надземной части
301 м3
Основной материал фасадов
Штукатурка
Отопление
Индивидуальное
Площадь дома
63 м2
Площадь застройки
78 м2
Подвальное помещение
Нет
Показатель компактности здания
-
Приборы учета тепловой энергии
Нет
Пристроенный гараж/крытая автостоянка
Нет
Противопожарная система
Нет
Санузлы
1
Совмещенная кухня-гостиная
Да
Спальни
2
Терраса
Нет
Тип фундамента
Плитный
Тип кровли
Толщина внешних стен
400 мм
Толщина внутренних перегородок
200 мм
Улучшенные шумовые характеристики
Нет
Вентиляция
Естественная
Веранда
Нет
Водоотведение
Локальные очистные сооружения
Водоснабжение
Центральное
Высота дома
5.6 м
Высота потолков
2.95 м

Планировка

Фасад дома

Александр

Закажите выезд инженера

Александр

Выездной инженер
Закажите выезд инженера для точной диагностики и профессиональной консультации по инженерным системам. Специалист приедет в удобное время, проведёт осмотр, рассчитает стоимость работ и подберёт оптимальные решения для вашего дома.


    Похожие проекты

    Ипотека и
    рассрочка
    Двухэтажный загородный дом «Рамиро»
    Стоимость от:
    6 113 880
    Проект от: 45 900
    Этажей 2
    Санузлы 2
    Спальни 5
    Смотреть
    Ипотека и
    рассрочка
    Дом Классический 160 м2
    Стоимость от:
    11 045 520
    Проект от: 75 150
    Этажей 2
    Санузлы 2
    Спальни 3
    Смотреть
    Ипотека и
    рассрочка
    Одноэтажный дом К-129
    Стоимость от:
    8 141 980
    Проект от: 53 550
    Этажей 1
    Санузлы 3
    Спальни 4
    Смотреть
    Ипотека и
    рассрочка
    Загородный жилой дом №1
    Стоимость от:
    10 107 600
    Проект от: 60 750
    Этажей 2
    Санузлы 3
    Спальни 3
    Смотреть
    Ипотека и
    рассрочка
    Одноэтажный дом Уно
    Стоимость от:
    11 882 860
    Проект от: 73 350
    Этажей 1
    Санузлы 2
    Спальни 3
    Смотреть
    Ипотека и
    рассрочка
    А-100
    Стоимость от:
    6 991 380
    Проект от: 44 550
    Этажей 1
    Санузлы 2
    Спальни 3
    Смотреть

    Как узнать стоимость дома

    back
    Оставляете заявку
    Вы заполняете форму на сайте или звоните нам. Менеджер Лайвкрафт связывается с вами для уточнения деталей: тип дома, площадь, материалы, участок строительства.
    back
    Консультация и подбор решения
    Наш специалист помогает выбрать оптимальный тип дома и конструкцию с учётом бюджета, сроков и целей — будь то дом для постоянного проживания или дача.
    back
    Расчёт предварительной стоимости
    Инженер делает первичный расчёт стоимости строительства по вашим параметрам: фундамент, коробка, кровля, отделка. Вы получаете смету с разбивкой по этапам.
    back
    Корректировка и утверждение сметы
    При необходимости вносим изменения — например, замену материалов или сокращение этапов. После согласования формируется окончательная фиксированная смета.
    back
    Заключение договора и старт работ
    После утверждения сметы заключаем официальный договор с гарантией. Вы получаете прозрачный график и точную стоимость — без скрытых расходов.

    Заказать конусльтацию по:Одноэтажный дом Д-01

    Фото 1 Одноэтажный дом Д-01


      Наши
      контакты

      Дмитров
      Опорный проезд 28Б
      (индустриальный парк Ниагара)
      9:00 до 18:00

      Корзина