4.9
Рейтинг на основании 120 отзывов
Дмитров
Опорный проезд 28Б
(индустриальный парк Ниагара)
Бренд "Дмитров-Дело" c 2008 года на рынке строительства в Дмитрове
Звоните 9:00 до 18:00 8 (915) 055-33-61
Бренд "Дмитров-Дело" c 2008 года на рынке строительства в Дмитрове

Одноэтажный дом Голландия

Стоимость проекта от:
62 550 ₽
БЕСПЛАТНО! ПРИ ЗАКАЗЕ СТРОИТЕЛЬСТВА
Стоимость строительства от:
11 056 980 ₽
Артикул ART-16124
Дата 25.12.2025
Архитектурный стиль Скандинавский
Количество надземных этажей 1
Круглогодичное проживание Да
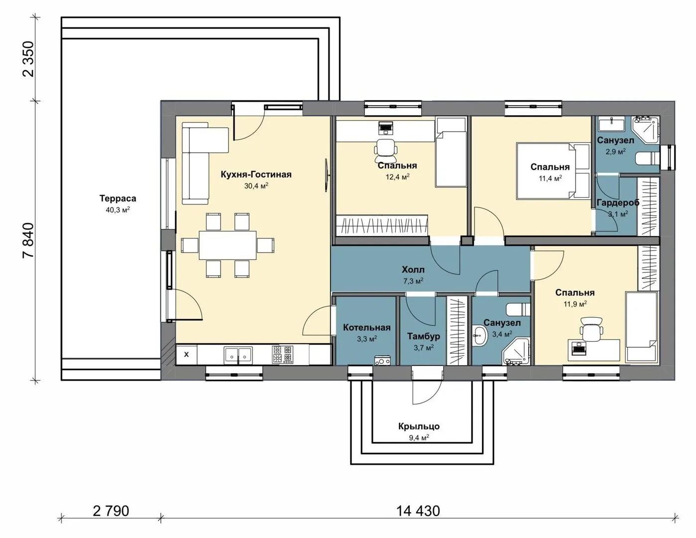
Площадь дома 139 м2
Санузлы 2
Спальни 3

Описание

Небольшой, но уютный одноэтажный дом «Голландия» воплощает в себе простоту и функциональность северной скандинавской архитектуры. Его аккуратная внешняя облицовка газобетонных блоков, выполненных в приглушённых нейтральных тонах, мягко вписывается в любой загородный ландшафт, подчеркивая гармонию с природой. Двускатный черепичный покров придаёт фасаду строгий, но одновременно приветливый вид, а теплоизоляция газобетона гарантирует комфортное проживание круглый год – даже в самые прохладные дни. Внутреннее пространство продумано с особой заботой о деталях: простые и светлые стены, большие окна, пропускающие максимум естественного света, создают ощущение простора и свободы. На одной платформе – все основные зоны, от открытой кухни с островом до уютной гостиной с камином и просторной спальней – что делает его особенно привлекательным для семей, ценящих удобство и простоту передвижения. Внутренняя планировка обеспечивают тишину и приватность, а отсутствие лестниц и подвалов облегчает повседневную жизнь. Пожалуй, самым привлекательным элементом этого дома станет большая терраса, выходящая из центральной комнаты. Здесь можно устроить барбекю, насладиться ароматом свежеиспечённого хлеба, проводить вечера в компании друзей или погружаться в чтение у открытого воздуха. Такой уголок превращает каждый день в праздник, а всё это возможно благодаря продуманному сочетанию скандинавского дизайна и практических решений в строительстве. Этот дом – идеальная находка для тех, кто ищет сочетание современного комфорта, эстетического наслаждения и гармонии с природой.

Характеристики дома

Архитектурный стиль
Автоматизированное регулирование параметров теплоносителя
Нет
Балконы/лоджии
Отсутствуют
Чердачное помещение
Нет
Датчики протечки воды
Нет
Эксплуатируемая или зеленая кровля
Нет
Электроснабжение
2 варианта
Газоснабжение
Центральное
Изоляция воздушного шума
Да
Камин
Нет
Класс энергоэффективности
-
Класс энергосбережения
-
Количество надземных этажей
1
Круглогодичное проживание
Да
Материал кровли
Металлочерепица
Материал перекрытий
Деревянные
Материал внешних стен
Материал внутренних перегородок
Кирпичные
Модульное строительство с конструкциями заводского изготовления
Нет
Объем надземной части
832 м3
Основной материал фасадов
Штукатурка
Отопление
Индивидуальное
Площадь дома
139 м2
Площадь застройки
162 м2
Подвальное помещение
Нет
Показатель компактности здания
-
Приборы учета тепловой энергии
Нет
Пристроенный гараж/крытая автостоянка
Нет
Противопожарная система
Нет
Санузлы
2
Совмещенная кухня-гостиная
Да
Спальни
3
Терраса
Да
Тип фундамента
Ленточный
Тип кровли
Толщина внешних стен
400 мм
Толщина внутренних перегородок
100 мм
Улучшенные шумовые характеристики
Да
Вентиляция
Естественная
Веранда
Нет
Водоотведение
2 варианта
Водоснабжение
Центральное
Высота дома
6.17 м
Высота потолков
2.75 м

Планировка

Фасад дома

Александр

Закажите выезд инженера

Александр

Выездной инженер
Закажите выезд инженера для точной диагностики и профессиональной консультации по инженерным системам. Специалист приедет в удобное время, проведёт осмотр, рассчитает стоимость работ и подберёт оптимальные решения для вашего дома.


    Похожие проекты

    Ипотека и
    рассрочка
    Одноэтажный дом 120 м2
    Стоимость от:
    10 024 520
    Проект от: 56 700
    Этажей 1
    Санузлы 2
    Спальни 3
    Смотреть
    Ипотека и
    рассрочка
    Современный одноэтажный дом KV-01
    Стоимость от:
    8 262 540
    Проект от: 52 650
    Этажей 1
    Санузлы 2
    Спальни 4
    Смотреть
    Ипотека и
    рассрочка
    Загородный дом 65 м2
    Стоимость от:
    3 614 325
    Проект от: 29 250
    Этажей 1
    Санузлы 1
    Спальни 2
    Смотреть
    Ипотека и
    рассрочка
    Одноэтажный дом в стиле хай-тек «Оклэнд 2.0.»
    Стоимость от:
    4 857 820
    Проект от: 31 950
    Этажей 1
    Санузлы 1
    Спальни 2
    Смотреть
    Ипотека и
    рассрочка
    Дом по Васту
    Стоимость от:
    8 333 160
    Проект от: 53 100
    Этажей 1
    Санузлы 2
    Спальни 3
    Смотреть
    Ипотека и
    рассрочка
    Одноэтажный дом FIXPLANS — 1952
    Стоимость от:
    6 464 920
    Проект от: 38 700
    Этажей 1
    Санузлы 1
    Спальни 2
    Смотреть

    Как узнать стоимость дома

    back
    Оставляете заявку
    Вы заполняете форму на сайте или звоните нам. Менеджер Лайвкрафт связывается с вами для уточнения деталей: тип дома, площадь, материалы, участок строительства.
    back
    Консультация и подбор решения
    Наш специалист помогает выбрать оптимальный тип дома и конструкцию с учётом бюджета, сроков и целей — будь то дом для постоянного проживания или дача.
    back
    Расчёт предварительной стоимости
    Инженер делает первичный расчёт стоимости строительства по вашим параметрам: фундамент, коробка, кровля, отделка. Вы получаете смету с разбивкой по этапам.
    back
    Корректировка и утверждение сметы
    При необходимости вносим изменения — например, замену материалов или сокращение этапов. После согласования формируется окончательная фиксированная смета.
    back
    Заключение договора и старт работ
    После утверждения сметы заключаем официальный договор с гарантией. Вы получаете прозрачный график и точную стоимость — без скрытых расходов.

    Заказать конусльтацию по:Одноэтажный дом Голландия

    Фото 1 Одноэтажный дом Голландия


      Наши
      контакты

      Дмитров
      Опорный проезд 28Б
      (индустриальный парк Ниагара)
      9:00 до 18:00

      Корзина