4.9
Рейтинг на основании 120 отзывов
Дмитров
Опорный проезд 28Б
(индустриальный парк Ниагара)
Бренд "Дмитров-Дело" c 2008 года на рынке строительства в Дмитрове
Звоните 9:00 до 18:00 8 (915) 055-33-61
Бренд "Дмитров-Дело" c 2008 года на рынке строительства в Дмитрове

Альпийская Панорама

Стоимость проекта от:
103 950 ₽
БЕСПЛАТНО! ПРИ ЗАКАЗЕ СТРОИТЕЛЬСТВА
Стоимость строительства от:
17 342 820 ₽
Артикул ART-18361
Дата 26.12.2025
Архитектурный стиль Европейский
Количество надземных этажей 1
Круглогодичное проживание Да
Площадь дома 231 м2
Санузлы 2
Спальни 5

Описание

Представьте уютный уголок в горах, где каждый день начинается с тёплого луча солнца, отражающегося в окне, а даже в прохладное утро вы можете насладиться ароматом свежего колотя. Дом «Альпийская Панорама» – это не просто одноэтажное строение, а приглашение к спокойной, но полностью автономной жизни, где европейский стиль встречается с естественными материалами. Он идеально подходит для тех, кто ценит атмосферу уюта и стремится чувствовать связь с природой, не отказываясь от удобств современного быта. Собраний в стенах керамзитобетонных блоков, дом излучает тепло и надежность, а четырёхскатная, вальмовая кровля не только защищает от непогоды, но и подчёркивает европейскую элегантность фасада. Несмотря на свою скромную высоту – всего один надземный этаж – «Альпийская Панорама» открывает просторную террасу, где можно устраивать барбекю, читать любимую книгу или просто наслаждаться видом на высотные заснеженные вершины. Внутри интерьеры объединяют простоту и функциональность: достаточно света, высокие потолки и лёгкая атмосфера, создающие пространство для творчества и отдыха. Благодаря круглогодичному проживанию, вы всегда будете чувствовать себя дома: мягкая система отопления, утепленные стены и правильная вентиляция гарантируют комфорт даже в самые холодные месяцы. Нет никаких компромиссов между уединённостью и удобствами – дом в сочетании с террасой, свободным от гаражей и пристанище, предлагает идеальное сочетание простоты и благородства. «Альпийская Панорама» – это ваш персональный оазис в сердце гор, где каждый день начинает с вдохновения, а заканчивается спокойствием и теплом.

Характеристики дома

Архитектурный стиль
Автоматизированное регулирование параметров теплоносителя
Да
Балконы/лоджии
Отсутствуют
Чердачное помещение
Нет
Датчики протечки воды
Нет
Эксплуатируемая или зеленая кровля
Нет
Электроснабжение
Центральное
Газоснабжение
Центральное
Изоляция воздушного шума
Да
Камин
Нет
Класс энергоэффективности
-
Класс энергосбережения
-
Количество надземных этажей
1
Круглогодичное проживание
Да
Материал кровли
Металлочерепица
Материал перекрытий
Сборные железобетонные многопустотные плиты
Материал внешних стен
Материал внутренних перегородок
Кирпичные
Модульное строительство с конструкциями заводского изготовления
Нет
Объем надземной части
1079 м3
Основной материал фасадов
Штукатурка
Отопление
Индивидуальное
Площадь дома
231 м2
Площадь застройки
267 м2
Подвальное помещение
Нет
Показатель компактности здания
-
Приборы учета тепловой энергии
Нет
Пристроенный гараж/крытая автостоянка
Нет
Противопожарная система
Нет
Санузлы
2
Совмещенная кухня-гостиная
Да
Спальни
5
Терраса
Да
Тип фундамента
Свайно-ростверковый
Толщина внешних стен
400 мм
Толщина внутренних перегородок
120 мм
Улучшенные шумовые характеристики
Да
Вентиляция
Естественная
Веранда
Нет
Водоотведение
Локальные очистные сооружения
Водоснабжение
Индивидуальное
Высота дома
5.6 м
Высота потолков
2.87 м

Планировка

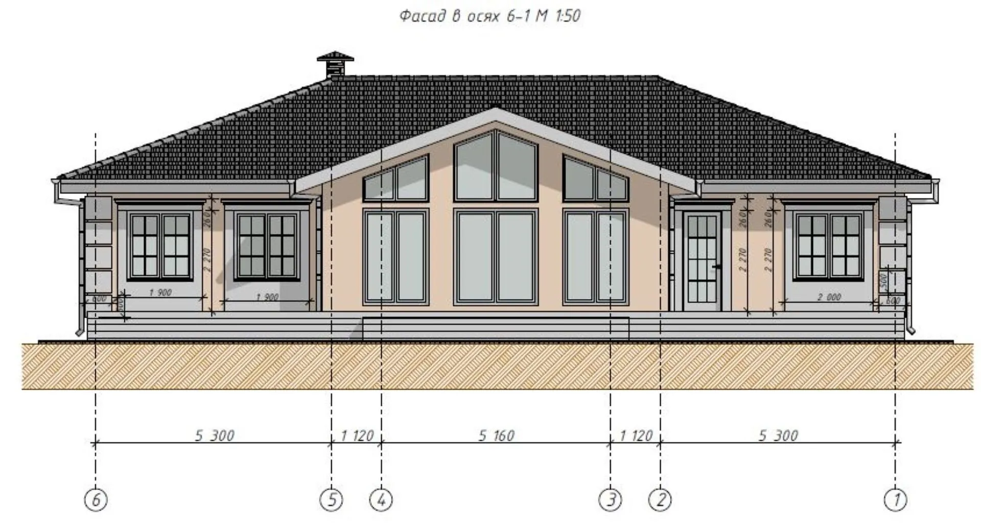
Фасад дома

Александр

Закажите выезд инженера

Александр

Выездной инженер
Закажите выезд инженера для точной диагностики и профессиональной консультации по инженерным системам. Специалист приедет в удобное время, проведёт осмотр, рассчитает стоимость работ и подберёт оптимальные решения для вашего дома.


    Похожие проекты

    Ипотека и
    рассрочка
    Заинск 1382
    Стоимость от:
    12 016 400
    Проект от: 72 000
    Этажей 1
    Санузлы 2
    Спальни 3
    Смотреть
    Ипотека и
    рассрочка
    Дом ГД-885
    Стоимость от:
    4 216 245
    Проект от: 31 050
    Этажей 1
    Санузлы 1
    Спальни 2
    Смотреть
    Ипотека и
    рассрочка
    Резиденция у озера
    Стоимость от:
    15 644 160
    Проект от: 100 800
    Этажей 2
    Санузлы 2
    Спальни 5
    Смотреть
    Ипотека и
    рассрочка
    Загородный дом ROOMY 8*6
    Стоимость от:
    2 389 530
    Проект от: 17 550
    Этажей 1
    Санузлы 1
    Спальни 1
    Смотреть
    Ипотека и
    рассрочка
    Е-25-77
    Стоимость от:
    5 797 000
    Проект от: 45 000
    Этажей 1
    Санузлы 2
    Спальни 3
    Смотреть
    Ипотека и
    рассрочка
    Barnhouse 8х16 F
    Стоимость от:
    6 005 340
    Проект от: 48 600
    Этажей 1
    Санузлы 2
    Спальни 3
    Смотреть

    Как узнать стоимость дома

    back
    Оставляете заявку
    Вы заполняете форму на сайте или звоните нам. Менеджер Лайвкрафт связывается с вами для уточнения деталей: тип дома, площадь, материалы, участок строительства.
    back
    Консультация и подбор решения
    Наш специалист помогает выбрать оптимальный тип дома и конструкцию с учётом бюджета, сроков и целей — будь то дом для постоянного проживания или дача.
    back
    Расчёт предварительной стоимости
    Инженер делает первичный расчёт стоимости строительства по вашим параметрам: фундамент, коробка, кровля, отделка. Вы получаете смету с разбивкой по этапам.
    back
    Корректировка и утверждение сметы
    При необходимости вносим изменения — например, замену материалов или сокращение этапов. После согласования формируется окончательная фиксированная смета.
    back
    Заключение договора и старт работ
    После утверждения сметы заключаем официальный договор с гарантией. Вы получаете прозрачный график и точную стоимость — без скрытых расходов.

    Заказать конусльтацию по:Альпийская Панорама

    Фото 1 Альпийская Панорама


      Наши
      контакты

      Дмитров
      Опорный проезд 28Б
      (индустриальный парк Ниагара)
      9:00 до 18:00

      Корзина