4.9
Рейтинг на основании 120 отзывов
Дмитров
Опорный проезд 28Б
(индустриальный парк Ниагара)
Бренд "Дмитров-Дело" c 2008 года на рынке строительства в Дмитрове
Звоните 9:00 до 18:00 8 (915) 055-33-61
Бренд "Дмитров-Дело" c 2008 года на рынке строительства в Дмитрове

Загородный дом Бенгт 80

Стоимость проекта от:
35 550 ₽
БЕСПЛАТНО! ПРИ ЗАКАЗЕ СТРОИТЕЛЬСТВА
Стоимость строительства от:
4 579 630 ₽
Артикул ART-13141
Дата 25.12.2025
Архитектурный стиль Скандинавский
Количество надземных этажей 1
Круглогодичное проживание Да
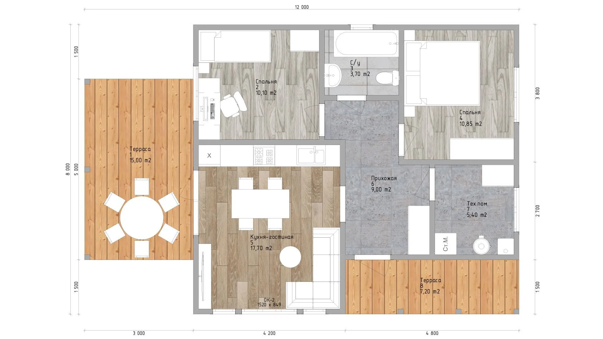
Площадь дома 79 м2
Санузлы 1
Спальни 2

Описание

Добро пожаловать в наш уютный загородный дом “Бенгт 80” – идеальное сочетание скандинавской простоты и природной гармонии. Одна открывающаяся надземная полоса создаёт ощущение простора, а деревянный каркас с многощипковой кровлей придаёт дому элегантный, но при этом устойчивый характер. Величественные породы дерева, аккуратно обработанные и покрытые прозрачной защитой, отражают мягкое северное освещение и создают тёплый, приветливый уголок. Дом предназначен для круглогодичного проживания, а просторная терраса открывает живописный вид на окрестные луга и леса, приглашая насладиться свежим воздухом и бесконечными закатами. Внутренний план прост – один этаж, полный света и простоты, где каждая комната ощущает связь с природой. В «Бенгт 80» нет лишних барьеров: отсутствуют лоджии и веранда, но эта лаконичность подчёркивает чистоту дизайна и позволяет сосредоточиться на истинном комфортном пространстве. Пристроенный гараж и покрытая автостоянка – это только начало. Дом предлагает всё, что нужно современному жильцу: просторные комнаты, качественные материалы и скандинавскую архитектуру, пронизанную духом природы. Это не просто место для жизни, а уютный уголок, где каждая деталь создана, чтобы дарить счастье и покой. Ваш новый дом ждёт вас – откройте дверь к гармоничной жизни на природе.

Характеристики дома

Архитектурный стиль
Автоматизированное регулирование параметров теплоносителя
Да
Балконы/лоджии
Отсутствуют
Чердачное помещение
Нет
Датчики протечки воды
Нет
Эксплуатируемая или зеленая кровля
Нет
Электроснабжение
Центральное
Газоснабжение
Не предусмотрено
Изоляция воздушного шума
Нет
Камин
Нет
Класс энергоэффективности
-
Класс энергосбережения
-
Количество надземных этажей
1
Круглогодичное проживание
Да
Материал кровли
Металлочерепица
Материал перекрытий
Деревянные
Материал внешних стен
Материал внутренних перегородок
Деревянные
Модульное строительство с конструкциями заводского изготовления
Нет
Объем надземной части
304 м3
Основной материал фасадов
Дерево
Отопление
Индивидуальное
Площадь дома
79 м2
Площадь застройки
87 м2
Подвальное помещение
Нет
Показатель компактности здания
-
Приборы учета тепловой энергии
Нет
Пристроенный гараж/крытая автостоянка
Нет
Противопожарная система
Нет
Санузлы
1
Совмещенная кухня-гостиная
Да
Спальни
2
Терраса
Да
Тип фундамента
Свайный
Тип кровли
Толщина внешних стен
220 мм
Толщина внутренних перегородок
170 мм
Улучшенные шумовые характеристики
Нет
Вентиляция
Естественная
Веранда
Нет
Водоотведение
Локальные очистные сооружения
Водоснабжение
Индивидуальное
Высота дома
4.25 м
Высота потолков
2.8 м

Планировка

Фасад дома

Александр

Закажите выезд инженера

Александр

Выездной инженер
Закажите выезд инженера для точной диагностики и профессиональной консультации по инженерным системам. Специалист приедет в удобное время, проведёт осмотр, рассчитает стоимость работ и подберёт оптимальные решения для вашего дома.


    Похожие проекты

    Ипотека и
    рассрочка
    KIS-7
    Стоимость от:
    6 314 880
    Проект от: 37 800
    Этажей 1
    Санузлы 1
    Спальни 3
    Смотреть
    Ипотека и
    рассрочка
    Проект дома Угол
    Стоимость от:
    12 794 540
    Проект от: 84 150
    Этажей 1
    Санузлы 3
    Спальни 3
    Смотреть
    Ипотека и
    рассрочка
    Одноэтажный дом 128 м2 GAMLA
    Стоимость от:
    9 261 340
    Проект от: 57 150
    Этажей 1
    Санузлы 2
    Спальни 3
    Смотреть
    Ипотека и
    рассрочка
    Загородный дом «Аристократ 157,25»
    Стоимость от:
    10 972 080
    Проект от: 70 650
    Этажей 2
    Санузлы 2
    Спальни 4
    Смотреть
    Ипотека и
    рассрочка
    Загородный дом из клееного бруса «Эллада»
    Стоимость от:
    5 225 880
    Проект от: 33 300
    Этажей 1
    Санузлы 1
    Спальни 2
    Смотреть
    Ипотека и
    рассрочка
    Бесовец 1
    Стоимость от:
    4 667 520
    Проект от: 32 850
    Этажей 2
    Санузлы 2
    Спальни 2
    Смотреть

    Как узнать стоимость дома

    back
    Оставляете заявку
    Вы заполняете форму на сайте или звоните нам. Менеджер Лайвкрафт связывается с вами для уточнения деталей: тип дома, площадь, материалы, участок строительства.
    back
    Консультация и подбор решения
    Наш специалист помогает выбрать оптимальный тип дома и конструкцию с учётом бюджета, сроков и целей — будь то дом для постоянного проживания или дача.
    back
    Расчёт предварительной стоимости
    Инженер делает первичный расчёт стоимости строительства по вашим параметрам: фундамент, коробка, кровля, отделка. Вы получаете смету с разбивкой по этапам.
    back
    Корректировка и утверждение сметы
    При необходимости вносим изменения — например, замену материалов или сокращение этапов. После согласования формируется окончательная фиксированная смета.
    back
    Заключение договора и старт работ
    После утверждения сметы заключаем официальный договор с гарантией. Вы получаете прозрачный график и точную стоимость — без скрытых расходов.

    Заказать конусльтацию по:Загородный дом Бенгт 80

    Фото 1 Загородный дом Бенгт 80


      Наши
      контакты

      Дмитров
      Опорный проезд 28Б
      (индустриальный парк Ниагара)
      9:00 до 18:00

      Корзина