4.9
Рейтинг на основании 120 отзывов
Дмитров
Опорный проезд 28Б
(индустриальный парк Ниагара)
Бренд "Дмитров-Дело" c 2008 года на рынке строительства в Дмитрове
Звоните 9:00 до 18:00 8 (915) 055-33-61
Бренд "Дмитров-Дело" c 2008 года на рынке строительства в Дмитрове

Амур 2202

Стоимость проекта от:
55 800 ₽
БЕСПЛАТНО! ПРИ ЗАКАЗЕ СТРОИТЕЛЬСТВА
Стоимость строительства от:
9 592 880 ₽
Артикул ART-5916
Дата 26.12.2025
Архитектурный стиль Классический
Количество надземных этажей 1
Круглогодичное проживание Да
Площадь дома 124 м2
Санузлы 1
Спальни 3

Описание

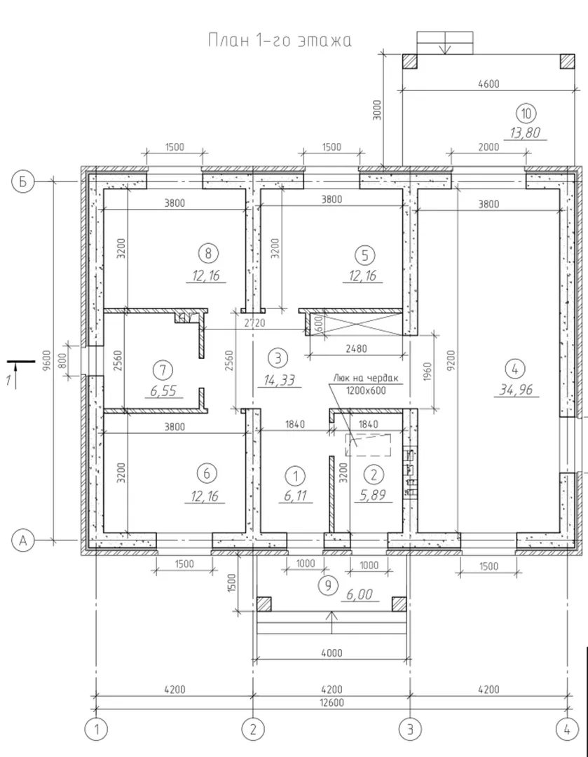
Вдохновившись гармонией классического стиля, проект «Амур 2202» сочетает традиционную элегантность с практичностью современной жизни. Это уютное одноэтажное жильё, которое идеально подходит для круглогодичного проживания, создавая атмосферу уюта и тепло даже в холодные зимние дни. Газобетонные блоки внешних стен обеспечивают отличную теплоизоляцию, сохраняя комфорт и энергоэффективность внутри. Кровля в виде четырёхскатного вальмового дна не только вносит эстетический акцент, но и гарантирует надёжную защиту от непогоды. Объект воплощает идеальный баланс между простотой и уютом. Отсутствие балконов и лоджий позволяет дизайнерам сконцентрироваться на создании открытой, светлой планировки, где каждый уголок наполнен теплом и приятными деталями. Пристроенный гараж отсутствует, но это не помешает уюту: свободные пространства в передней части дома открывают возможность для индивидуальной адаптации. А небольшая терраса становится вашим личным уголком для наслаждения свежим воздухом, создавая идеальное место для общения с близкими, барбекю или просто наблюдения за закатом. «Амур 2202» – это не просто дом, а пространство, где сочетается классика и современность, в котором каждый элемент продуман до мелочей. Простая, но элегантная архитектура, качественные материалы и внимательный подход к деталям делают этот проект идеальным выбором для тех, кто ищет непременную безопасность, энергоэффективность и уют. Позвольте себе насладиться комфортом и стилем, которые дарит «Амур 2202» – ваша новая главная остановка в мире домашнего уюта.

Характеристики дома

Архитектурный стиль
Автоматизированное регулирование параметров теплоносителя
-
Балконы/лоджии
Отсутствуют
Чердачное помещение
Нет
Датчики протечки воды
-
Эксплуатируемая или зеленая кровля
-
Электроснабжение
Не предусмотрено
Газоснабжение
Не предусмотрено
Изоляция воздушного шума
-
Камин
Нет
Класс энергоэффективности
-
Класс энергосбережения
-
Количество надземных этажей
1
Круглогодичное проживание
Да
Материал кровли
Композитная черепица
Материал перекрытий
Деревянные по металлическим балкам
Материал внешних стен
Материал внутренних перегородок
Кирпичные
Модульное строительство с конструкциями заводского изготовления
Нет
Объем надземной части
377 м3
Основной материал фасадов
Облицовочный кирпич
Отопление
Не предусмотрено
Площадь дома
124 м2
Площадь застройки
130 м2
Подвальное помещение
Нет
Показатель компактности здания
-
Приборы учета тепловой энергии
-
Пристроенный гараж/крытая автостоянка
Нет
Противопожарная система
Нет
Санузлы
1
Совмещенная кухня-гостиная
Да
Спальни
3
Терраса
Да
Тип фундамента
Ленточный
Толщина внешних стен
400 мм
Толщина внутренних перегородок
120 мм
Улучшенные шумовые характеристики
-
Вентиляция
Естественная
Веранда
Нет
Водоотведение
Не предусмотрено
Водоснабжение
Не предусмотрено
Высота дома
5.2 м
Высота потолков
2.9 м

Планировка

Фасад дома

Александр

Закажите выезд инженера

Александр

Выездной инженер
Закажите выезд инженера для точной диагностики и профессиональной консультации по инженерным системам. Специалист приедет в удобное время, проведёт осмотр, рассчитает стоимость работ и подберёт оптимальные решения для вашего дома.


    Похожие проекты

    Ипотека и
    рассрочка
    Дом с мансардой ДБ-831
    Стоимость от:
    7 718 280
    Проект от: 52 650
    Этажей 2
    Санузлы 1
    Спальни 3
    Смотреть
    Ипотека и
    рассрочка
    Шале ОБ
    Стоимость от:
    5 974 100
    Проект от: 33 750
    Этажей 1
    Санузлы 1
    Спальни 2
    Смотреть
    Ипотека и
    рассрочка
    Загородный дом 85/1-24
    Стоимость от:
    4 297 920
    Проект от: 29 700
    Этажей 1
    Санузлы 1
    Спальни 2
    Смотреть
    Ипотека и
    рассрочка
    Проект Одноэтажный дом 72м2 с террасой
    Стоимость от:
    5 264 600
    Проект от: 31 500
    Этажей 1
    Санузлы 1
    Спальни 2
    Смотреть
    Ипотека и
    рассрочка
    Одноэтажный дом Скандинавия 1-75
    Стоимость от:
    7 880 180
    Проект от: 44 550
    Этажей 1
    Санузлы 1
    Спальни 2
    Смотреть
    Ипотека и
    рассрочка
    ПР-98,1/24
    Стоимость от:
    7 800 760
    Проект от: 44 100
    Этажей 1
    Санузлы 1
    Спальни 3
    Смотреть

    Как узнать стоимость дома

    back
    Оставляете заявку
    Вы заполняете форму на сайте или звоните нам. Менеджер Лайвкрафт связывается с вами для уточнения деталей: тип дома, площадь, материалы, участок строительства.
    back
    Консультация и подбор решения
    Наш специалист помогает выбрать оптимальный тип дома и конструкцию с учётом бюджета, сроков и целей — будь то дом для постоянного проживания или дача.
    back
    Расчёт предварительной стоимости
    Инженер делает первичный расчёт стоимости строительства по вашим параметрам: фундамент, коробка, кровля, отделка. Вы получаете смету с разбивкой по этапам.
    back
    Корректировка и утверждение сметы
    При необходимости вносим изменения — например, замену материалов или сокращение этапов. После согласования формируется окончательная фиксированная смета.
    back
    Заключение договора и старт работ
    После утверждения сметы заключаем официальный договор с гарантией. Вы получаете прозрачный график и точную стоимость — без скрытых расходов.

    Заказать конусльтацию по:Амур 2202

    Фото 1 Амур 2202


      Наши
      контакты

      Дмитров
      Опорный проезд 28Б
      (индустриальный парк Ниагара)
      9:00 до 18:00

      Корзина