4.9
Рейтинг на основании 120 отзывов
Дмитров
Опорный проезд 28Б
(индустриальный парк Ниагара)
Бренд "Дмитров-Дело" c 2008 года на рынке строительства в Дмитрове
Звоните 9:00 до 18:00 8 (915) 055-33-61
Бренд "Дмитров-Дело" c 2008 года на рынке строительства в Дмитрове

Авторский проект «Актау 1.0»

Стоимость проекта от:
42 750 ₽
БЕСПЛАТНО! ПРИ ЗАКАЗЕ СТРОИТЕЛЬСТВА
Стоимость строительства от:
6 708 900 ₽
Артикул ART-6055
Дата 26.12.2025
Архитектурный стиль Минимализм
Количество надземных этажей 1
Круглогодичное проживание Да
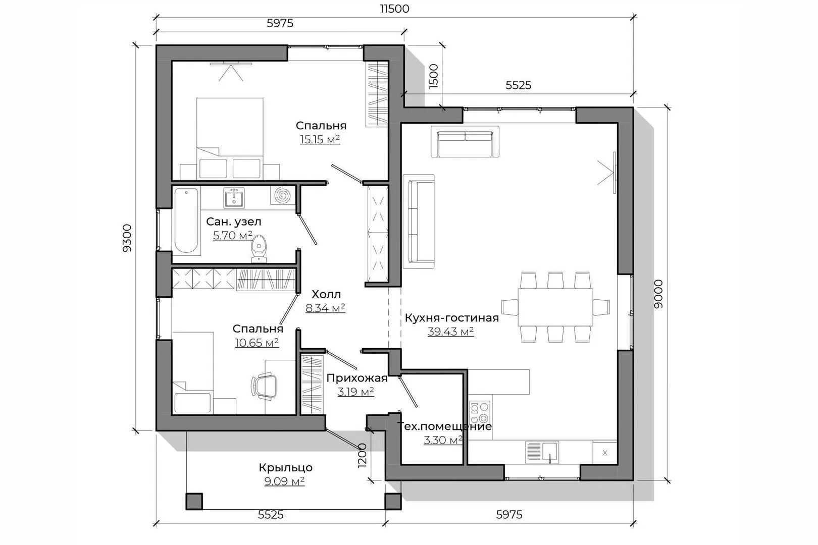
Площадь дома 95 м2
Санузлы 1
Спальни 2

Описание

Авторский проект «Актау 1.0» – это лаконичное воплощение современного минимализма, созданное для тех, кто ценит чистые линии и функциональность без лишних украшений. Дом открывается просторной гостиной, где естественное освещение, проникающее через большие окна, создаёт ощущение лёгкости и свободы. Просторные межэтажные переходы и продуманные решения в планировке позволяют максимально использовать каждый метр, а беззаботный дизайн делает проживание уютным и приятным в любое время года. Переход от внутреннего пространства к наружному осуществляется через простую, но ярко выраженную линию крыши, выполненной из плоской конструкции, что придает дому современный вид и увеличивает вентиляцию и теплоизоляцию. Стены из газобетонных блоков обеспечивают высокую энергоэффективность и акустическую изоляцию, создавая идеальное микроклиматическое пространство. В «Актау 1.0» нет излишних украшений: отсутствие балконов, лоджий, веранды и прицепного гаража лишь подчёркивает чистоту форм, делая дом истинным оазисом спокойствия и комфорта. Такой проект идеально подходит для спокойной, полноценной жизни круглый год. Внутренняя простора, современная архитектура и продуманные детали дают вам возможность создать настоящий дом, где каждая комната обогащает ваш жизненный ритм, а безупречный дизайн подчёркивает ваш стиль и вкус. Выберите «Актау 1.0» – и почувствуйте, как искусство минимализма преобразует ваш быт в настоящее произведение современного комфорта.

Характеристики дома

Архитектурный стиль
Автоматизированное регулирование параметров теплоносителя
Нет
Балконы/лоджии
Отсутствуют
Чердачное помещение
Нет
Датчики протечки воды
Нет
Эксплуатируемая или зеленая кровля
Нет
Электроснабжение
2 варианта
Газоснабжение
2 варианта
Изоляция воздушного шума
Нет
Камин
Нет
Класс энергоэффективности
-
Класс энергосбережения
-
Количество надземных этажей
1
Круглогодичное проживание
Да
Материал кровли
Металлочерепица
Материал перекрытий
Монолитные железобетонные
Материал внешних стен
Материал внутренних перегородок
Блочные
Модульное строительство с конструкциями заводского изготовления
Нет
Объем надземной части
-
Основной материал фасадов
Штукатурка
Отопление
2 варианта
Площадь дома
95 м2
Площадь застройки
115 м2
Подвальное помещение
Нет
Показатель компактности здания
-
Приборы учета тепловой энергии
Нет
Пристроенный гараж/крытая автостоянка
Нет
Противопожарная система
Нет
Санузлы
1
Совмещенная кухня-гостиная
Да
Спальни
2
Терраса
Нет
Тип фундамента
Плитный
Тип кровли
Толщина внешних стен
375 мм
Толщина внутренних перегородок
100 мм
Улучшенные шумовые характеристики
Нет
Вентиляция
2 варианта
Веранда
Нет
Водоотведение
2 варианта
Водоснабжение
2 варианта
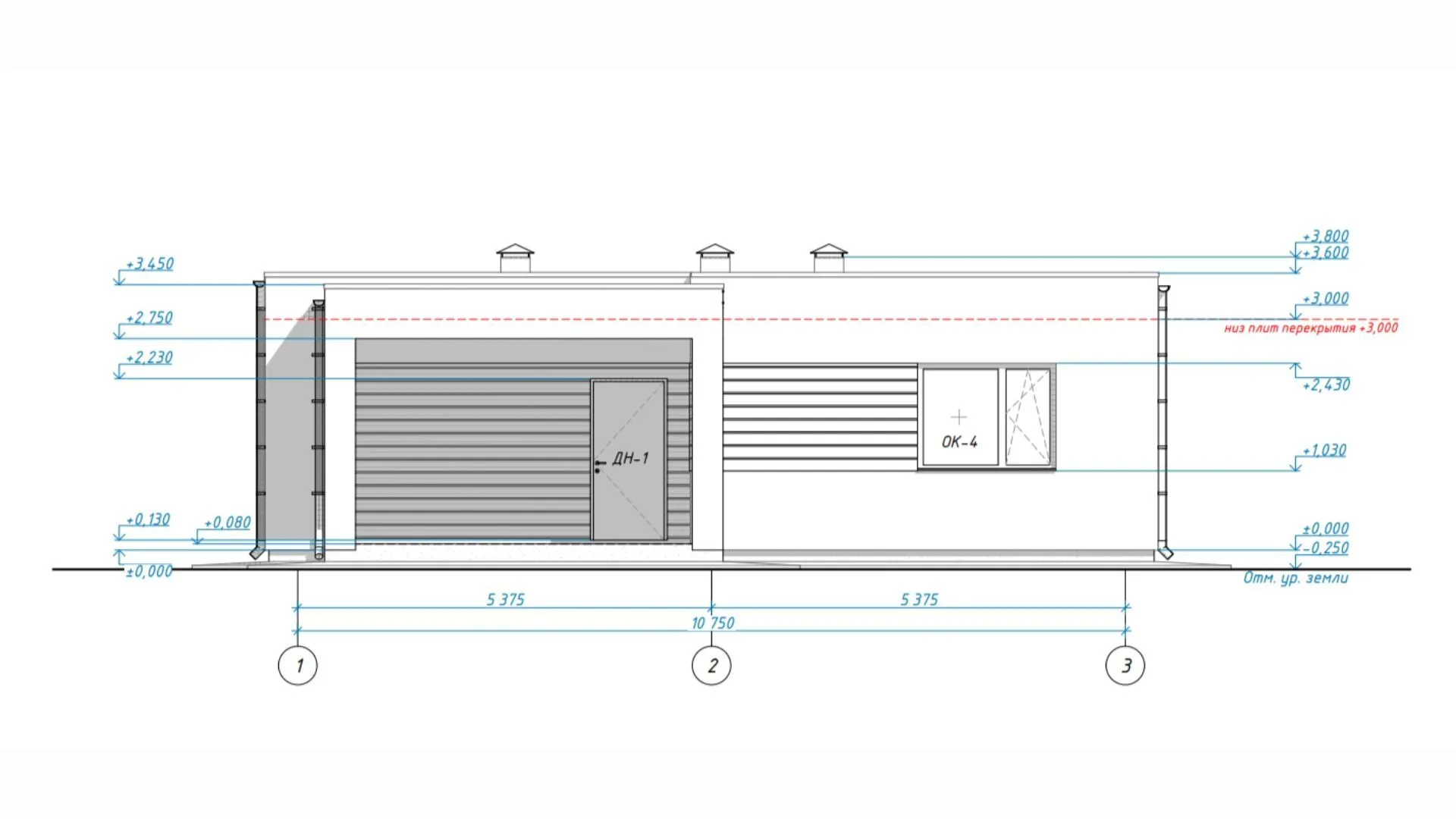
Высота дома
5 м
Высота потолков
2.7 м

Планировка

Фасад дома

Александр

Закажите выезд инженера

Александр

Выездной инженер
Закажите выезд инженера для точной диагностики и профессиональной консультации по инженерным системам. Специалист приедет в удобное время, проведёт осмотр, рассчитает стоимость работ и подберёт оптимальные решения для вашего дома.


    Похожие проекты

    Ипотека и
    рассрочка
    Двухэтажный дом с четырьмя спальнями «Новые горизонты»
    Стоимость от:
    8 648 640
    Проект от: 56 700
    Этажей 2
    Санузлы 2
    Спальни 4
    Смотреть
    Ипотека и
    рассрочка
    Дом из газобетонных блоков G-190-3
    Стоимость от:
    5 500 220
    Проект от: 31 950
    Этажей 1
    Санузлы 1
    Спальни 2
    Смотреть
    Ипотека и
    рассрочка
    Vastervik
    Стоимость от:
    7 526 200
    Проект от: 49 500
    Этажей 1
    Санузлы 1
    Спальни 2
    Смотреть
    Ипотека и
    рассрочка
    Жилой дом
    Стоимость от:
    6 927 140
    Проект от: 39 150
    Этажей 1
    Санузлы 1
    Спальни 3
    Смотреть
    Ипотека и
    рассрочка
    S.Dom-112-2
    Стоимость от:
    5 893 440
    Проект от: 40 950
    Этажей 2
    Санузлы 2
    Спальни 5
    Смотреть
    Ипотека и
    рассрочка
    Хаппа
    Стоимость от:
    7 749 280
    Проект от: 53 550
    Этажей 1
    Санузлы 2
    Спальни 3
    Смотреть

    Как узнать стоимость дома

    back
    Оставляете заявку
    Вы заполняете форму на сайте или звоните нам. Менеджер Лайвкрафт связывается с вами для уточнения деталей: тип дома, площадь, материалы, участок строительства.
    back
    Консультация и подбор решения
    Наш специалист помогает выбрать оптимальный тип дома и конструкцию с учётом бюджета, сроков и целей — будь то дом для постоянного проживания или дача.
    back
    Расчёт предварительной стоимости
    Инженер делает первичный расчёт стоимости строительства по вашим параметрам: фундамент, коробка, кровля, отделка. Вы получаете смету с разбивкой по этапам.
    back
    Корректировка и утверждение сметы
    При необходимости вносим изменения — например, замену материалов или сокращение этапов. После согласования формируется окончательная фиксированная смета.
    back
    Заключение договора и старт работ
    После утверждения сметы заключаем официальный договор с гарантией. Вы получаете прозрачный график и точную стоимость — без скрытых расходов.

    Заказать конусльтацию по:Авторский проект «Актау 1.0»

    Фото 1 Авторский проект «Актау 1.0»


      Наши
      контакты

      Дмитров
      Опорный проезд 28Б
      (индустриальный парк Ниагара)
      9:00 до 18:00

      Корзина