4.9
Рейтинг на основании 120 отзывов
Дмитров
Опорный проезд 28Б
(индустриальный парк Ниагара)
Бренд "Дмитров-Дело" c 2008 года на рынке строительства в Дмитрове
Звоните 9:00 до 18:00 8 (915) 055-33-61
Бренд "Дмитров-Дело" c 2008 года на рынке строительства в Дмитрове

Авторский проект «Броуд»

Стоимость проекта от:
18 450 ₽
БЕСПЛАТНО! ПРИ ЗАКАЗЕ СТРОИТЕЛЬСТВА
Стоимость строительства от:
2 895 420 ₽
Артикул ART-6155
Дата 26.12.2025
Архитектурный стиль Европейский
Количество надземных этажей 1
Круглогодичное проживание Да
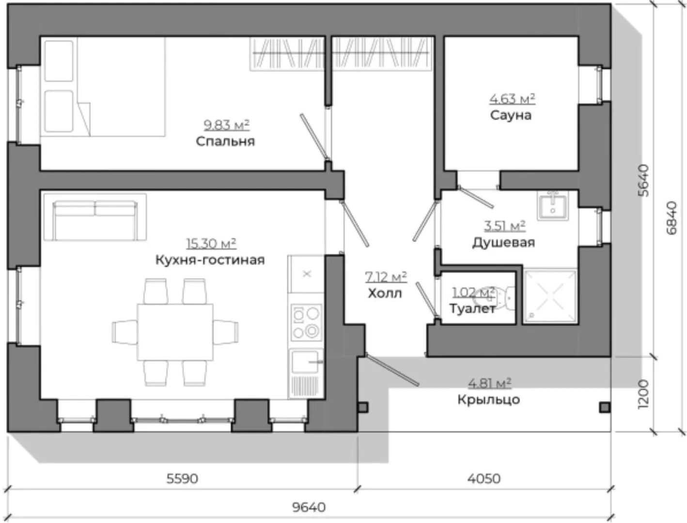
Площадь дома 41 м2
Санузлы 2
Спальни 1

Описание

**Авторский проект «Броуд»: ваша уютная европейская мечта** Этот очаровательный дом, выполненный в строгом европейском стиле, создаёт ощущение простора и тепла, даже несмотря на свою компактную планировку – всего один надземный этаж. Никаких балконов, верандами, гаражами или чердачными помещениями, всё сосредоточено в одной уютной и функциональной зоне, которая легко обустраивается как для молодой пары, так и для маленькой семьи. Каминные вставки и большие окна дарят натуральный свет и тёплую атмосферу, а лёгкие газобетонные блоки внешних стен обеспечивают отличную изоляцию и шумоизоляцию. **Комбинированная крыша и качественные материалы** Крыша в виде комбинированного покрытия – это оптимальное сочетание прочности и эстетики: современные материалы защищают от непогоды, а плавные линии подчёркивают элегантность архитектуры. Внутреннее пространство обустроено с учетом всех потребностей 21‑века: просторная гостинная, светло‑светлая кухня, отдельные уголки для работы и отдыха, а также удобный ночной узкий зал. В квартире предусмотрено достаточное количество мест для хранения, а окна с изогнутыми профилями создают ощущение лёгкости и простора. **Готовый к круглогодичному проживанию** Броуд – это дом, в котором можно наслаждаться комфортом круглый год, от жаркого лета до снежной зимы. Лёгкая газобетонная кладка сохраняет тепло зимой и прохладу летом, а система вентиляции обеспечивает свежий воздух и хорошую микроклиматическую устойчивость. Простые, но изысканные детали, в том числе плавные линии кровли и минимум «заглушек», делают этот дом идеальной отправной точкой для тех, кто мечтает об уютном пространстве, где каждая деталь продумана для вашего благополучия.

Характеристики дома

Архитектурный стиль
Автоматизированное регулирование параметров теплоносителя
Нет
Балконы/лоджии
Отсутствуют
Чердачное помещение
Нет
Датчики протечки воды
Нет
Эксплуатируемая или зеленая кровля
Нет
Электроснабжение
2 варианта
Газоснабжение
2 варианта
Изоляция воздушного шума
Нет
Камин
Нет
Класс энергоэффективности
-
Класс энергосбережения
-
Количество надземных этажей
1
Круглогодичное проживание
Да
Материал кровли
Металлочерепица
Материал перекрытий
Монолитные железобетонные
Материал внешних стен
Материал внутренних перегородок
Блочные
Модульное строительство с конструкциями заводского изготовления
Нет
Объем надземной части
-
Основной материал фасадов
Облицовочный кирпич
Отопление
2 варианта
Площадь дома
41 м2
Площадь застройки
64 м2
Подвальное помещение
Нет
Показатель компактности здания
-
Приборы учета тепловой энергии
Нет
Пристроенный гараж/крытая автостоянка
Нет
Противопожарная система
Нет
Санузлы
2
Совмещенная кухня-гостиная
Да
Спальни
1
Терраса
Нет
Тип фундамента
Плитный
Тип кровли
Толщина внешних стен
375 мм
Толщина внутренних перегородок
100 мм
Улучшенные шумовые характеристики
Нет
Вентиляция
2 варианта
Веранда
Нет
Водоотведение
2 варианта
Водоснабжение
2 варианта
Высота дома
5 м
Высота потолков
2.7 м

Планировка

Фасад дома

Александр

Закажите выезд инженера

Александр

Выездной инженер
Закажите выезд инженера для точной диагностики и профессиональной консультации по инженерным системам. Специалист приедет в удобное время, проведёт осмотр, рассчитает стоимость работ и подберёт оптимальные решения для вашего дома.


    Похожие проекты

    Ипотека и
    рассрочка
    Загородный дом РЗ 1
    Стоимость от:
    13 591 820
    Проект от: 81 450
    Этажей 1
    Санузлы 2
    Спальни 3
    Смотреть
    Ипотека и
    рассрочка
    Одноэтажный дом по каркасной технологии РС-10
    Стоимость от:
    6 069 525
    Проект от: 47 250
    Этажей 1
    Санузлы 1
    Спальни 2
    Смотреть
    Ипотека и
    рассрочка
    Загородный дом Баргузин
    Стоимость от:
    3 763 100
    Проект от: 24 750
    Этажей 1
    Санузлы 1
    Спальни 2
    Смотреть
    Ипотека и
    рассрочка
    УГЛОВОЙ БАРНХАУС 131.2м2
    Стоимость от:
    8 242 520
    Проект от: 58 950
    Этажей 1
    Санузлы 2
    Спальни 3
    Смотреть
    Ипотека и
    рассрочка
    Одноэтажный дом в стиле Райта с гаражом
    Стоимость от:
    13 994 640
    Проект от: 86 400
    Этажей 1
    Санузлы 2
    Спальни 3
    Смотреть
    Ипотека и
    рассрочка
    КД-124/3
    Стоимость от:
    8 560 500
    Проект от: 58 500
    Этажей 2
    Санузлы 2
    Спальни 3
    Смотреть

    Как узнать стоимость дома

    back
    Оставляете заявку
    Вы заполняете форму на сайте или звоните нам. Менеджер Лайвкрафт связывается с вами для уточнения деталей: тип дома, площадь, материалы, участок строительства.
    back
    Консультация и подбор решения
    Наш специалист помогает выбрать оптимальный тип дома и конструкцию с учётом бюджета, сроков и целей — будь то дом для постоянного проживания или дача.
    back
    Расчёт предварительной стоимости
    Инженер делает первичный расчёт стоимости строительства по вашим параметрам: фундамент, коробка, кровля, отделка. Вы получаете смету с разбивкой по этапам.
    back
    Корректировка и утверждение сметы
    При необходимости вносим изменения — например, замену материалов или сокращение этапов. После согласования формируется окончательная фиксированная смета.
    back
    Заключение договора и старт работ
    После утверждения сметы заключаем официальный договор с гарантией. Вы получаете прозрачный график и точную стоимость — без скрытых расходов.

    Заказать конусльтацию по:Авторский проект «Броуд»

    Фото 1 Авторский проект «Броуд»


      Наши
      контакты

      Дмитров
      Опорный проезд 28Б
      (индустриальный парк Ниагара)
      9:00 до 18:00

      Корзина