4.9
Рейтинг на основании 120 отзывов
Дмитров
Опорный проезд 28Б
(индустриальный парк Ниагара)
Бренд "Дмитров-Дело" c 2008 года на рынке строительства в Дмитрове
Звоните 9:00 до 18:00 8 (915) 055-33-61
Бренд "Дмитров-Дело" c 2008 года на рынке строительства в Дмитрове

Авторский проект «Салфер»

Стоимость проекта от:
54 000 ₽
Стоимость строительства от:
8 474 400 ₽
Артикул ART-6517
Дата 26.12.2025
Архитектурный стиль Американский/Канадский
Количество надземных этажей 1
Круглогодичное проживание Да
Площадь дома 120 м2
Санузлы 1
Спальни 3

Описание

Великолепный авторский проект «Салфер» — это истинное воплощение уюта и современного комфорта в неприхотливом одноэтажном формате. Данный дом создан для круглогодичного проживания, гармонично сочетая теплую атмосферу американского и канадского стилей с практичностью и доступностью. Лепкая кирпичная конструкция из газобетонных блоков, обшитая натуральными материалами, погружает в чувство надёжности и спокойствия, а просторные окна впускают в помещение мягкий свет и создают впечатление лёгкости и простора. Отсутствие балконов и веранд позволяет сосредоточиться на чистой планировке, где каждая зона обустроена с учётом естественного освещения и функциональности. Просторная терраса становится личным уголком для завтраков на рассвете или вечерних встреч с друзьями, а двускатная крыша придаёт дому характер и отличную изоляцию, гарантируя теплоту в холодные дни и прохладу в летний жар. Отправьтесь в путешествие по дому, где каждый уголок обаялся заботой о мелочах и желанием сделать ваш дом настоящим уютным убежищем. Если вы ищете сочетание современного дизайна, практичности и домашнего уюта, «Салфер» станет идеальным решением. Проживание в этом доме — это наслаждение каждым моментом, ощущение крепкой связи с природой и умиротворения, которое приходит от простых, но продуманных деталей архитектуры. Откройте для себя комфорт, где каждая деталь говорит о заботе и вашем вкусе к высокому качеству жизни.

Характеристики дома

Архитектурный стиль
Американский/Канадский
Автоматизированное регулирование параметров теплоносителя
Нет
Балконы/лоджии
Отсутствуют
Чердачное помещение
Нет
Датчики протечки воды
Нет
Эксплуатируемая или зеленая кровля
Нет
Электроснабжение
2 варианта
Газоснабжение
2 варианта
Изоляция воздушного шума
Нет
Камин
Нет
Класс энергоэффективности
-
Класс энергосбережения
-
Количество надземных этажей
1
Круглогодичное проживание
Да
Материал кровли
Металлочерепица
Материал перекрытий
Монолитные железобетонные
Материал внешних стен
Газобетонные блоки
Материал внутренних перегородок
Блочные
Модульное строительство с конструкциями заводского изготовления
Нет
Объем надземной части
-
Основной материал фасадов
Штукатурка
Отопление
2 варианта
Площадь дома
120 м2
Площадь застройки
144 м2
Подвальное помещение
Нет
Показатель компактности здания
-
Приборы учета тепловой энергии
Нет
Пристроенный гараж/крытая автостоянка
Нет
Противопожарная система
Нет
Санузлы
1
Совмещенная кухня-гостиная
Да
Спальни
3
Терраса
Да
Тип фундамента
Плитный
Тип кровли
Двускатная
Толщина внешних стен
375 мм
Толщина внутренних перегородок
100 мм
Улучшенные шумовые характеристики
Нет
Вентиляция
2 варианта
Веранда
Нет
Водоотведение
2 варианта
Водоснабжение
2 варианта
Высота дома
5 м
Высота потолков
2.7 м

Планировка

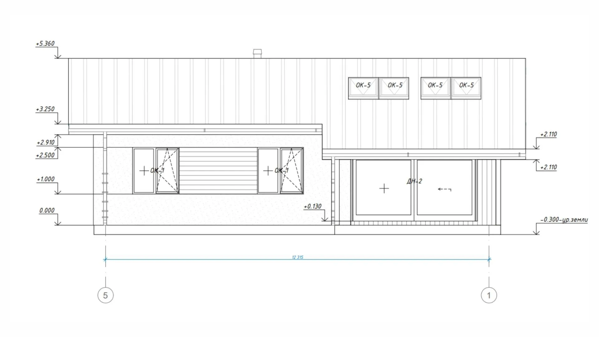
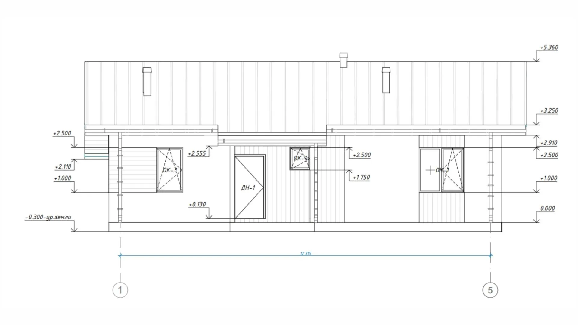
Фасад дома

Александр

Закажите выезд инженера

Александр

Выездной инженер
Закажите выезд инженера для точной диагностики и профессиональной консультации по инженерным системам. Специалист приедет в удобное время, проведёт осмотр, рассчитает стоимость работ и подберёт оптимальные решения для вашего дома.


    Похожие проекты

    Ипотека и
    рассрочка
    Загородный дом Д-173
    Стоимость от:
    8 695 500
    Проект от: 67 500
    Этажей 1
    Санузлы 2
    Спальни 3
    Смотреть
    Ипотека и
    рассрочка
    ТН-311
    Стоимость от:
    18 194 040
    Проект от: 126 450
    Этажей 2
    Санузлы 4
    Спальни 4
    Смотреть
    Ипотека и
    рассрочка
    Загородный дом АС-201
    Стоимость от:
    8 670 750
    Проект от: 67 500
    Этажей 1
    Санузлы 2
    Спальни 3
    Смотреть
    Ипотека и
    рассрочка
    Кирпичный дом с односкатной кровлей
    Стоимость от:
    7 515 200
    Проект от: 45 000
    Этажей 1
    Санузлы 2
    Спальни 3
    Смотреть
    Ипотека и
    рассрочка
    Одноэтажный дом «Зигрид 150»
    Стоимость от:
    8 340 750
    Проект от: 67 500
    Этажей 1
    Санузлы 1
    Спальни 2
    Смотреть
    Ипотека и
    рассрочка
    Сказка
    Стоимость от:
    5 101 360
    Проект от: 39 600
    Этажей 1
    Санузлы 1
    Спальни 2
    Смотреть

    Как узнать стоимость дома

    back
    Оставляете заявку
    Вы заполняете форму на сайте или звоните нам. Менеджер Лайвкрафт связывается с вами для уточнения деталей: тип дома, площадь, материалы, участок строительства.
    back
    Консультация и подбор решения
    Наш специалист помогает выбрать оптимальный тип дома и конструкцию с учётом бюджета, сроков и целей — будь то дом для постоянного проживания или дача.
    back
    Расчёт предварительной стоимости
    Инженер делает первичный расчёт стоимости строительства по вашим параметрам: фундамент, коробка, кровля, отделка. Вы получаете смету с разбивкой по этапам.
    back
    Корректировка и утверждение сметы
    При необходимости вносим изменения — например, замену материалов или сокращение этапов. После согласования формируется окончательная фиксированная смета.
    back
    Заключение договора и старт работ
    После утверждения сметы заключаем официальный договор с гарантией. Вы получаете прозрачный график и точную стоимость — без скрытых расходов.

    Заказать конусльтацию по:Авторский проект «Салфер»

    Фото 1 Авторский проект «Салфер»


      Наши
      контакты

      Дмитров
      Опорный проезд 28Б
      (индустриальный парк Ниагара)
      9:00 до 18:00

      Корзина