4.9
Рейтинг на основании 120 отзывов
Дмитров
Опорный проезд 28Б
(индустриальный парк Ниагара)
Бренд "Дмитров-Дело" c 2008 года на рынке строительства в Дмитрове
Звоните 9:00 до 18:00 8 (915) 055-33-61
Бренд "Дмитров-Дело" c 2008 года на рынке строительства в Дмитрове

Проект загородного дома NHD-174

Стоимость проекта от:
35 100 ₽
БЕСПЛАТНО! ПРИ ЗАКАЗЕ СТРОИТЕЛЬСТВА
Стоимость строительства от:
5 864 760 ₽
Артикул ART-16978
Дата 26.12.2025
Архитектурный стиль Классический
Количество надземных этажей 1
Круглогодичное проживание Да
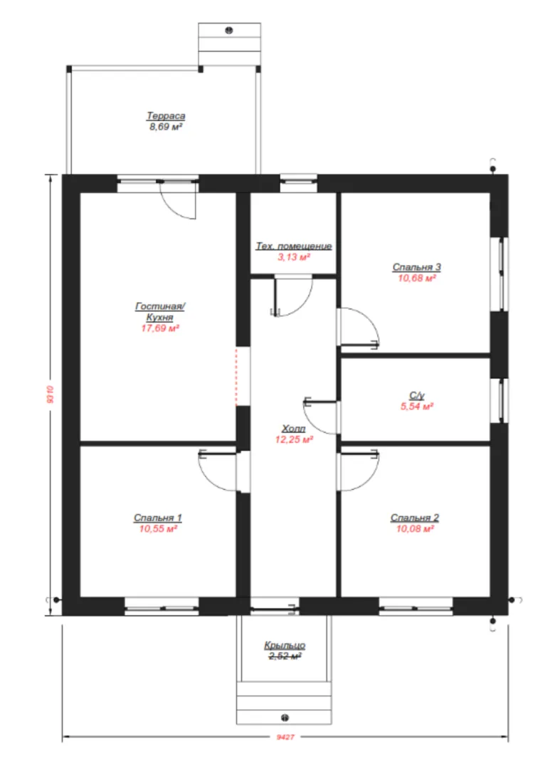
Площадь дома 78 м2
Санузлы 1
Спальни 3

Описание

Наша новая модель – загородный дом NHD‑174, созданный для тех, кто ценит уют, классическую элегантность и комфорт круглый год. На одном просторном надземном этаже вы найдёте гармоничную продуманную планировку, где каждая деталь отвечает на ваш повседневный комфорт: светлая, открытая гостиная, уютная кухня с зоной для завтрака, просторные спальни и современный санузел. Удобная кладовая и душевные уголки придают дому домашнее тепло, а наличие чердачного помещения создаёт дополнительное пространство для хранения или превращения в мастер‑сейф. Естественная простота классического фасада выполнена из газобетонных блоков, что обеспечивает надёжную тепло- и звукоизоляцию, а четырёхскатная, вальмовая кровля подчёркивает традиционный облик и придаёт дому виделище над полями. На заднем дворе располагается просторная терраса, где можно провести летние вечера в компании друзей и семьи. Дом без балконов и веранд всё равно сохраняет свою изысканность благодаря открытым, продуманным компоновкам, которые создают ощущение простора и свободы. Поймите, что NHD‑174 – это не просто жильё, а ваш маленький уголок мира, где каждый день начинается с вдохновения, а заканчивается спокойствием и уверенностью, что вы дома. Выбирая наш дома, вы выбираете качество, надёжность и безупречный стиль, который прослужит вам и вашим близким долгие годы. 🌿🏡

Характеристики дома

Архитектурный стиль
Автоматизированное регулирование параметров теплоносителя
Да
Балконы/лоджии
Отсутствуют
Чердачное помещение
Да
Датчики протечки воды
Нет
Эксплуатируемая или зеленая кровля
Нет
Электроснабжение
Центральное
Газоснабжение
Центральное
Изоляция воздушного шума
Да
Камин
Нет
Класс энергоэффективности
A++
Класс энергосбережения
A++
Количество надземных этажей
1
Круглогодичное проживание
Да
Материал кровли
Металлочерепица
Материал перекрытий
Сборные железобетонные предварительно напряженные пустотные плиты
Материал внешних стен
Материал внутренних перегородок
Блочные
Модульное строительство с конструкциями заводского изготовления
Нет
Объем надземной части
592 м3
Основной материал фасадов
Штукатурка
Отопление
Индивидуальное
Площадь дома
78 м2
Площадь застройки
103 м2
Подвальное помещение
Нет
Показатель компактности здания
1
Приборы учета тепловой энергии
Да
Пристроенный гараж/крытая автостоянка
Нет
Противопожарная система
Нет
Санузлы
1
Совмещенная кухня-гостиная
Да
Спальни
3
Терраса
Да
Тип фундамента
Свайно-ростверковый
Толщина внешних стен
400 мм
Толщина внутренних перегородок
100 мм
Улучшенные шумовые характеристики
Да
Вентиляция
Естественная
Веранда
Нет
Водоотведение
Локальные очистные сооружения
Водоснабжение
Индивидуальное
Высота дома
6.7 м
Высота потолков
2.8 м

Планировка

Фасад дома

Александр

Закажите выезд инженера

Александр

Выездной инженер
Закажите выезд инженера для точной диагностики и профессиональной консультации по инженерным системам. Специалист приедет в удобное время, проведёт осмотр, рассчитает стоимость работ и подберёт оптимальные решения для вашего дома.


    Похожие проекты

    Ипотека и
    рассрочка
    Двухэтажный БАРНХАУС 102м2
    Стоимость от:
    6 389 280
    Проект от: 45 900
    Этажей 2
    Санузлы 1
    Спальни 3
    Смотреть
    Ипотека и
    рассрочка
    Жилой дом s-75
    Стоимость от:
    6 464 920
    Проект от: 38 700
    Этажей 1
    Санузлы 1
    Спальни 2
    Смотреть
    Ипотека и
    рассрочка
    Одноэтажный кирпичный дом 94 кв.м. ЭП_06_24-13_Ч
    Стоимость от:
    7 403 660
    Проект от: 41 850
    Этажей 1
    Санузлы 1
    Спальни 3
    Смотреть
    Ипотека и
    рассрочка
    СКАНДИ-126
    Стоимость от:
    10 065 360
    Проект от: 62 550
    Этажей 2
    Санузлы 2
    Спальни 2
    Смотреть
    Ипотека и
    рассрочка
    Одноэтажный кирпичный дом GSA-89
    Стоимость от:
    6 689 980
    Проект от: 40 050
    Этажей 1
    Санузлы 1
    Спальни 3
    Смотреть
    Ипотека и
    рассрочка
    Дом в Ковалинской усадьбе
    Стоимость от:
    15 438 480
    Проект от: 97 650
    Этажей 2
    Санузлы 3
    Спальни 4
    Смотреть

    Как узнать стоимость дома

    back
    Оставляете заявку
    Вы заполняете форму на сайте или звоните нам. Менеджер Лайвкрафт связывается с вами для уточнения деталей: тип дома, площадь, материалы, участок строительства.
    back
    Консультация и подбор решения
    Наш специалист помогает выбрать оптимальный тип дома и конструкцию с учётом бюджета, сроков и целей — будь то дом для постоянного проживания или дача.
    back
    Расчёт предварительной стоимости
    Инженер делает первичный расчёт стоимости строительства по вашим параметрам: фундамент, коробка, кровля, отделка. Вы получаете смету с разбивкой по этапам.
    back
    Корректировка и утверждение сметы
    При необходимости вносим изменения — например, замену материалов или сокращение этапов. После согласования формируется окончательная фиксированная смета.
    back
    Заключение договора и старт работ
    После утверждения сметы заключаем официальный договор с гарантией. Вы получаете прозрачный график и точную стоимость — без скрытых расходов.

    Заказать конусльтацию по:Проект загородного дома NHD-174

    Фото 1 Проект загородного дома NHD-174


      Наши
      контакты

      Дмитров
      Опорный проезд 28Б
      (индустриальный парк Ниагара)
      9:00 до 18:00

      Корзина