4.9
Рейтинг на основании 120 отзывов
Дмитров
Опорный проезд 28Б
(индустриальный парк Ниагара)
Бренд "Дмитров-Дело" c 2008 года на рынке строительства в Дмитрове
Звоните 9:00 до 18:00 8 (915) 055-33-61
Бренд "Дмитров-Дело" c 2008 года на рынке строительства в Дмитрове

Авторский проект «Сион»

Стоимость проекта от:
43 650 ₽
БЕСПЛАТНО! ПРИ ЗАКАЗЕ СТРОИТЕЛЬСТВА
Стоимость строительства от:
6 850 140 ₽
Артикул ART-6266
Дата 26.12.2025
Архитектурный стиль Американский/Канадский
Количество надземных этажей 1
Круглогодичное проживание Да
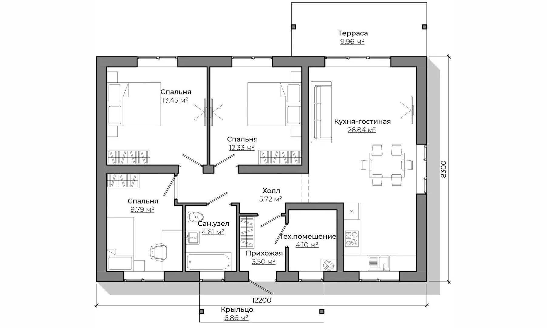
Площадь дома 97 м2
Санузлы 1
Спальни 3

Описание

**Авторский проект «Сион»** – это ваша уютная гавань в самом сердце современного комфорта. Одиннадцатая площадка с открытой, двускатной кровлей олицетворяет гармонию традиций и новаторства, создавая обстановку, в которой каждый элемент пронизан атмосферой американского и канадского стиля: обширные окна, светлые фасады из газобетонных блоков и продуманное сочетание природных материалов. Дом идеально подходит для круглогодичной жизни: изолированные стены и качественная фундаметная конструкция сохраняют тепло в холодных зимних ветрах и прохладу в летнюю жару. Внутри «Сион» раскрывается просторный, светлый внутренний мир. Отсутствие балконов, лоджий и веранд не лишает вас чувства открытости – напротив, просторные большие окна проникают в каждую комнату, придавая ощущение воздушности. Вместо гаража и чердака вы получаете удобную террасу, которая становится идеальным уголком для завтраков на свежем воздухе, отдыха в компании друзей или уютных семейных вечеров. Дизайн фокусируется на функциональности: рациональное разделение жилых и сервисных зон позволяет каждому члену семьи найти свое пространство для работы, отдыха и личных дел. Эта уникальная комбинация стиля, функциональности и продуманного использования материалов делает «Сион» идеальным выбором для тех, кто ищет гармоничное сочетание современного комфорта и стабильной устойчивости. Приглашаем вас стать обладателем этого авторского проекта, где каждая деталь сделана, чтобы ваш дом стал истинным сердцем вашего быта и радости.

Характеристики дома

Архитектурный стиль
Автоматизированное регулирование параметров теплоносителя
Нет
Балконы/лоджии
Отсутствуют
Чердачное помещение
Нет
Датчики протечки воды
Нет
Эксплуатируемая или зеленая кровля
Нет
Электроснабжение
2 варианта
Газоснабжение
2 варианта
Изоляция воздушного шума
Нет
Камин
Нет
Класс энергоэффективности
-
Класс энергосбережения
-
Количество надземных этажей
1
Круглогодичное проживание
Да
Материал кровли
Металлочерепица
Материал перекрытий
Монолитные железобетонные
Материал внешних стен
Материал внутренних перегородок
Блочные
Модульное строительство с конструкциями заводского изготовления
Нет
Объем надземной части
-
Основной материал фасадов
Штукатурка
Отопление
2 варианта
Площадь дома
97 м2
Площадь застройки
111 м2
Подвальное помещение
Нет
Показатель компактности здания
-
Приборы учета тепловой энергии
Нет
Пристроенный гараж/крытая автостоянка
Нет
Противопожарная система
Нет
Санузлы
1
Совмещенная кухня-гостиная
Да
Спальни
3
Терраса
Да
Тип фундамента
Плитный
Тип кровли
Толщина внешних стен
375 мм
Толщина внутренних перегородок
100 мм
Улучшенные шумовые характеристики
Нет
Вентиляция
2 варианта
Веранда
Нет
Водоотведение
2 варианта
Водоснабжение
2 варианта
Высота дома
5 м
Высота потолков
2.7 м

Планировка

Фасад дома

Александр

Закажите выезд инженера

Александр

Выездной инженер
Закажите выезд инженера для точной диагностики и профессиональной консультации по инженерным системам. Специалист приедет в удобное время, проведёт осмотр, рассчитает стоимость работ и подберёт оптимальные решения для вашего дома.


    Похожие проекты

    Ипотека и
    рассрочка
    Дом Светлый 57
    Стоимость от:
    3 419 880
    Проект от: 25 650
    Этажей 2
    Санузлы 1
    Спальни 3
    Смотреть
    Ипотека и
    рассрочка
    Жилой дом DC-130
    Стоимость от:
    9 627 420
    Проект от: 54 450
    Этажей 1
    Санузлы 2
    Спальни 3
    Смотреть
    Ипотека и
    рассрочка
    Одноэтажный угловой дом из арболита с террасой- Подольск
    Стоимость от:
    8 963 020
    Проект от: 58 950
    Этажей 1
    Санузлы 2
    Спальни 3
    Смотреть
    Ипотека и
    рассрочка
    Дом для семьи Family-199 (2024г)
    Стоимость от:
    10 741 940
    Проект от: 70 650
    Этажей 1
    Санузлы 2
    Спальни 4
    Смотреть
    Ипотека и
    рассрочка
    Двухэтажный ДВ-2
    Стоимость от:
    16 918 560
    Проект от: 105 300
    Этажей 2
    Санузлы 2
    Спальни 4
    Смотреть
    Ипотека и
    рассрочка
    ЖилойДом DC-85
    Стоимость от:
    6 371 200
    Проект от: 36 000
    Этажей 1
    Санузлы 1
    Спальни 3
    Смотреть

    Как узнать стоимость дома

    back
    Оставляете заявку
    Вы заполняете форму на сайте или звоните нам. Менеджер Лайвкрафт связывается с вами для уточнения деталей: тип дома, площадь, материалы, участок строительства.
    back
    Консультация и подбор решения
    Наш специалист помогает выбрать оптимальный тип дома и конструкцию с учётом бюджета, сроков и целей — будь то дом для постоянного проживания или дача.
    back
    Расчёт предварительной стоимости
    Инженер делает первичный расчёт стоимости строительства по вашим параметрам: фундамент, коробка, кровля, отделка. Вы получаете смету с разбивкой по этапам.
    back
    Корректировка и утверждение сметы
    При необходимости вносим изменения — например, замену материалов или сокращение этапов. После согласования формируется окончательная фиксированная смета.
    back
    Заключение договора и старт работ
    После утверждения сметы заключаем официальный договор с гарантией. Вы получаете прозрачный график и точную стоимость — без скрытых расходов.

    Заказать конусльтацию по:Авторский проект «Сион»

    Фото 1 Авторский проект «Сион»


      Наши
      контакты

      Дмитров
      Опорный проезд 28Б
      (индустриальный парк Ниагара)
      9:00 до 18:00

      Корзина