4.9
Рейтинг на основании 120 отзывов
Дмитров
Опорный проезд 28Б
(индустриальный парк Ниагара)
Бренд "Дмитров-Дело" c 2008 года на рынке строительства в Дмитрове
Звоните 9:00 до 18:00 8 (915) 055-33-61
Бренд "Дмитров-Дело" c 2008 года на рынке строительства в Дмитрове

ВЕНТО-1

Стоимость проекта от:
31 050 ₽
БЕСПЛАТНО! ПРИ ЗАКАЗЕ СТРОИТЕЛЬСТВА
Стоимость строительства от:
4 872 780 ₽
Артикул ART-12343
Дата 25.12.2025
Архитектурный стиль Скандинавский
Количество надземных этажей 1
Круглогодичное проживание Да
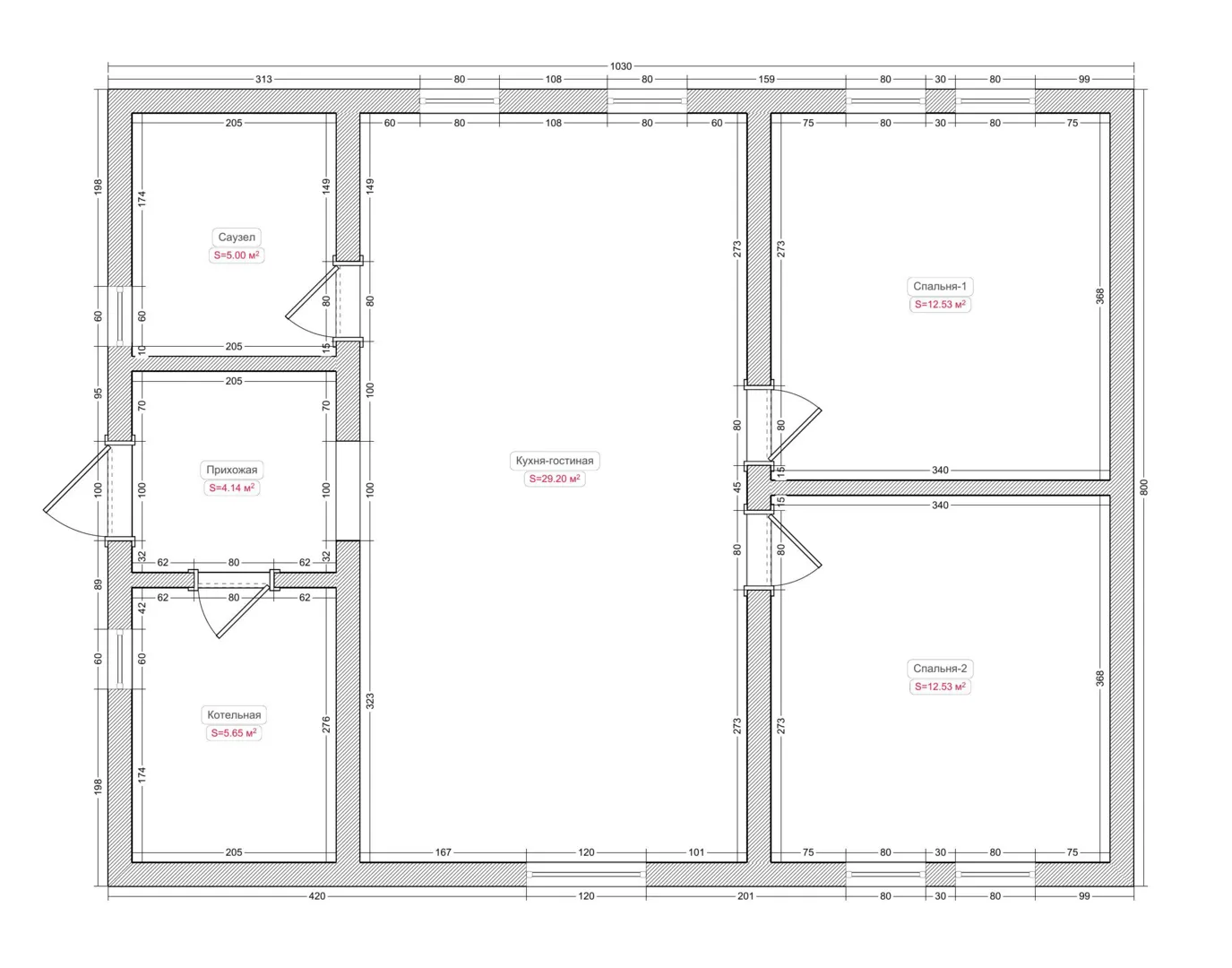
Площадь дома 69 м2
Санузлы 1
Спальни 2

Описание

ВЕНТО‑1 — это умный выбор для тех, кто ценит простоту и уют современного минимализма. В одной открытой планировке залитой светом с одной стороны расположены просторная гостиная, уютный уголок для чтения, полностью оборудованная кухня и элегантные спальни, которые легко преобразятся в домашний офис или студию. Благодаря высококачественным газобетонным блокам стены обеспечивают отличную тепло- и звукоизоляцию, а двускатная крыша придает зданию строгую, но в то же время мягкую «скандинавскую» эстетичность. Дом сконструирован для круглогодичного проживания: изоляционные свойства материала и ровный уклон крыши защищают от холодных ветров и летнего жаркого солнца, делая ВЕНТО‑1 комфортным и энергоэффективным. Простая, но элегантная конструкция без балконов, веранд и аттича уменьшает потребность в обслуживании и упрощает уход за обособленным участком. Всё, что остаётся владельцу — это радоваться прекрасной архитектуре и теплой, спокойной атмосфере своего нового дома.

Характеристики дома

Архитектурный стиль
Автоматизированное регулирование параметров теплоносителя
Да
Балконы/лоджии
Отсутствуют
Чердачное помещение
Нет
Датчики протечки воды
Нет
Эксплуатируемая или зеленая кровля
Нет
Электроснабжение
Центральное
Газоснабжение
2 варианта
Изоляция воздушного шума
Да
Камин
Нет
Класс энергоэффективности
B
Класс энергосбережения
A
Количество надземных этажей
1
Круглогодичное проживание
Да
Материал кровли
Металлочерепица
Материал перекрытий
Деревянные
Материал внешних стен
Материал внутренних перегородок
Пенобетонные
Модульное строительство с конструкциями заводского изготовления
Нет
Объем надземной части
303 м3
Основной материал фасадов
Штукатурка
Отопление
Индивидуальное
Площадь дома
69 м2
Площадь застройки
82 м2
Подвальное помещение
Нет
Показатель компактности здания
1.04
Приборы учета тепловой энергии
Да
Пристроенный гараж/крытая автостоянка
Нет
Противопожарная система
Да
Санузлы
1
Совмещенная кухня-гостиная
Да
Спальни
2
Терраса
Нет
Тип фундамента
Плитный
Тип кровли
Толщина внешних стен
240 мм
Толщина внутренних перегородок
150 мм
Улучшенные шумовые характеристики
Да
Вентиляция
Естественная
Веранда
Нет
Водоотведение
2 варианта
Водоснабжение
2 варианта
Высота дома
4.6 м
Высота потолков
3 м

Планировка

Фасад дома

Александр

Закажите выезд инженера

Александр

Выездной инженер
Закажите выезд инженера для точной диагностики и профессиональной консультации по инженерным системам. Специалист приедет в удобное время, проведёт осмотр, рассчитает стоимость работ и подберёт оптимальные решения для вашего дома.


    Похожие проекты

    Ипотека и
    рассрочка
    Одноэтажный дом из клеёного бруса КБ-145
    Стоимость от:
    9 920 900
    Проект от: 65 250
    Этажей 1
    Санузлы 2
    Спальни 3
    Смотреть
    Ипотека и
    рассрочка
    Проект 117 из полублока и отделкой кирпичем
    Стоимость от:
    7 965 320
    Проект от: 47 700
    Этажей 1
    Санузлы 2
    Спальни 3
    Смотреть
    Ипотека и
    рассрочка
    П1-60-СП2
    Стоимость от:
    4 782 800
    Проект от: 27 000
    Этажей 1
    Санузлы 1
    Спальни 2
    Смотреть
    Ипотека и
    рассрочка
    Дом с 3 спальнями «Лонгъюган»
    Стоимость от:
    9 674 940
    Проект от: 61 650
    Этажей 1
    Санузлы 2
    Спальни 3
    Смотреть
    Ипотека и
    рассрочка
    Барнхаус эксклюзив-59
    Стоимость от:
    4 434 960
    Проект от: 26 550
    Этажей 2
    Санузлы 2
    Спальни 1
    Смотреть
    Ипотека и
    рассрочка
    Загородный дом с мансардным этажом Сайдыы
    Стоимость от:
    6 288 960
    Проект от: 37 800
    Этажей 2
    Санузлы 1
    Спальни 2
    Смотреть

    Как узнать стоимость дома

    back
    Оставляете заявку
    Вы заполняете форму на сайте или звоните нам. Менеджер Лайвкрафт связывается с вами для уточнения деталей: тип дома, площадь, материалы, участок строительства.
    back
    Консультация и подбор решения
    Наш специалист помогает выбрать оптимальный тип дома и конструкцию с учётом бюджета, сроков и целей — будь то дом для постоянного проживания или дача.
    back
    Расчёт предварительной стоимости
    Инженер делает первичный расчёт стоимости строительства по вашим параметрам: фундамент, коробка, кровля, отделка. Вы получаете смету с разбивкой по этапам.
    back
    Корректировка и утверждение сметы
    При необходимости вносим изменения — например, замену материалов или сокращение этапов. После согласования формируется окончательная фиксированная смета.
    back
    Заключение договора и старт работ
    После утверждения сметы заключаем официальный договор с гарантией. Вы получаете прозрачный график и точную стоимость — без скрытых расходов.

    Заказать конусльтацию по:ВЕНТО-1

    Фото 1 ВЕНТО-1


      Наши
      контакты

      Дмитров
      Опорный проезд 28Б
      (индустриальный парк Ниагара)
      9:00 до 18:00

      Корзина