4.9
Рейтинг на основании 120 отзывов
Дмитров
Опорный проезд 28Б
(индустриальный парк Ниагара)
Бренд "Дмитров-Дело" c 2008 года на рынке строительства в Дмитрове
Звоните 9:00 до 18:00 8 (915) 055-33-61
Бренд "Дмитров-Дело" c 2008 года на рынке строительства в Дмитрове

Проект 117 из полублока и отделкой кирпичем

Стоимость проекта от:
47 700 ₽
БЕСПЛАТНО! ПРИ ЗАКАЗЕ СТРОИТЕЛЬСТВА
Стоимость строительства от:
7 965 320 ₽
Артикул ART-16057
Дата 25.12.2025
Архитектурный стиль Европейский
Количество надземных этажей 1
Круглогодичное проживание Да
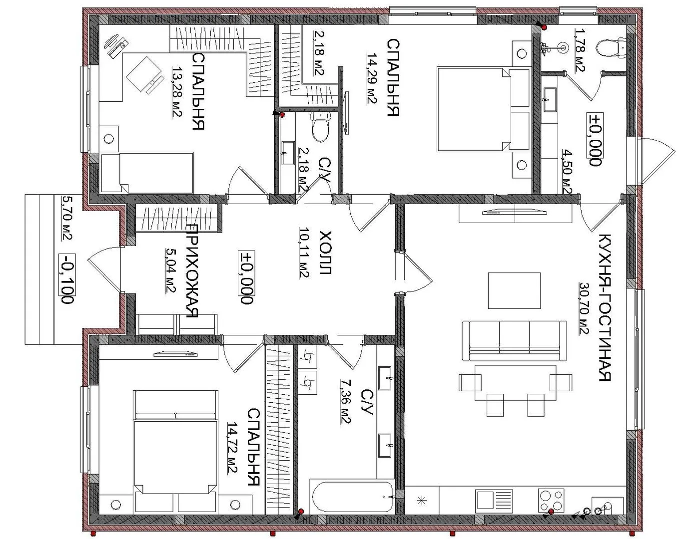
Площадь дома 106 м2
Санузлы 2
Спальни 3

Описание

Приглашаем вас открыть для себя уют и современность в новом доме — проекте 117, расположенном в сердце динамично развивающегося полублока. Это единоэтажное жилье, выполненное в европейском стиле, позволяет ощутить настоящий комфорт круглый год, а просторный внутренний двор и прилегающая территория создают идеальное пространство для семейных прогулок и отдыха. Внешний облик дома с керамзитобетонными блоками придает ему строгость и современность, подчёркнутые нежной четырёхскатной (валмовой) крышей. Внутреннее пространство проектировано с вниманием к деталям: уютные коридоры, светлые комнаты и продуманные коммуникации создают атмосферу легкости и простора. Несмотря на отсутствие балконов и веренды, каждый уголок продуман так, чтобы максимизировать ощущение свободы и открытости, создавая гармонию с окружающей средой. Эта квартира станет идеальным местом для тех, кто ищет баланс между городской динамикой и спокойствием собственного дома. Вы сможете наслаждаться качественным строительством, без лишних хлопот, и сразу же погрузиться в атмосферу комфорта, которую дарит проект 117. Приготовьтесь почувствовать домашний уют с каждым шагом в вашем новом жилье.

Характеристики дома

Архитектурный стиль
Автоматизированное регулирование параметров теплоносителя
Нет
Балконы/лоджии
Отсутствуют
Чердачное помещение
Нет
Датчики протечки воды
Нет
Эксплуатируемая или зеленая кровля
Нет
Электроснабжение
2 варианта
Газоснабжение
2 варианта
Изоляция воздушного шума
Нет
Камин
Нет
Класс энергоэффективности
-
Класс энергосбережения
-
Количество надземных этажей
1
Круглогодичное проживание
Да
Материал кровли
Металлочерепица
Материал перекрытий
Деревянные
Материал внешних стен
Материал внутренних перегородок
Блочные
Модульное строительство с конструкциями заводского изготовления
Нет
Объем надземной части
319 м3
Основной материал фасадов
Облицовочный кирпич
Отопление
2 варианта
Площадь дома
106 м2
Площадь застройки
132 м2
Подвальное помещение
Нет
Показатель компактности здания
-
Приборы учета тепловой энергии
Нет
Пристроенный гараж/крытая автостоянка
Нет
Противопожарная система
Нет
Санузлы
2
Совмещенная кухня-гостиная
Да
Спальни
3
Терраса
Нет
Тип фундамента
Свайно-ростверковый
Толщина внешних стен
350 мм
Толщина внутренних перегородок
120 мм
Улучшенные шумовые характеристики
Нет
Вентиляция
2 варианта
Веранда
Нет
Водоотведение
2 варианта
Водоснабжение
2 варианта
Высота дома
5 м
Высота потолков
3 м

Планировка

Фасад дома

Александр

Закажите выезд инженера

Александр

Выездной инженер
Закажите выезд инженера для точной диагностики и профессиональной консультации по инженерным системам. Специалист приедет в удобное время, проведёт осмотр, рассчитает стоимость работ и подберёт оптимальные решения для вашего дома.


    Похожие проекты

    Ипотека и
    рассрочка
    Amsterdam-90
    Стоимость от:
    7 165 400
    Проект от: 40 500
    Этажей 1
    Санузлы 1
    Спальни 3
    Смотреть
    Ипотека и
    рассрочка
    Авиатор
    Стоимость от:
    7 626 960
    Проект от: 48 600
    Этажей 1
    Санузлы 1
    Спальни 3
    Смотреть
    Ипотека и
    рассрочка
    Современный проект «Хай-Тек»
    Стоимость от:
    9 129 560
    Проект от: 53 100
    Этажей 1
    Санузлы 1
    Спальни 3
    Смотреть
    Ипотека и
    рассрочка
    Загородный дом «Бьюкасл»
    Стоимость от:
    5 739 030
    Проект от: 44 550
    Этажей 1
    Санузлы 2
    Спальни 3
    Смотреть
    Ипотека и
    рассрочка
    Брандон
    Стоимость от:
    5 375 865
    Проект от: 41 850
    Этажей 1
    Санузлы 1
    Спальни 2
    Смотреть
    Ипотека и
    рассрочка
    Дом загородный КД146 Место Силы
    Стоимость от:
    7 344 600
    Проект от: 56 250
    Этажей 2
    Санузлы 2
    Спальни 3
    Смотреть

    Как узнать стоимость дома

    back
    Оставляете заявку
    Вы заполняете форму на сайте или звоните нам. Менеджер Лайвкрафт связывается с вами для уточнения деталей: тип дома, площадь, материалы, участок строительства.
    back
    Консультация и подбор решения
    Наш специалист помогает выбрать оптимальный тип дома и конструкцию с учётом бюджета, сроков и целей — будь то дом для постоянного проживания или дача.
    back
    Расчёт предварительной стоимости
    Инженер делает первичный расчёт стоимости строительства по вашим параметрам: фундамент, коробка, кровля, отделка. Вы получаете смету с разбивкой по этапам.
    back
    Корректировка и утверждение сметы
    При необходимости вносим изменения — например, замену материалов или сокращение этапов. После согласования формируется окончательная фиксированная смета.
    back
    Заключение договора и старт работ
    После утверждения сметы заключаем официальный договор с гарантией. Вы получаете прозрачный график и точную стоимость — без скрытых расходов.

    Заказать конусльтацию по:Проект 117 из полублока и отделкой кирпичем

    Фото 1 Проект 117 из полублока и отделкой кирпичем


      Наши
      контакты

      Дмитров
      Опорный проезд 28Б
      (индустриальный парк Ниагара)
      9:00 до 18:00

      Корзина