4.9
Рейтинг на основании 120 отзывов
Дмитров
Опорный проезд 28Б
(индустриальный парк Ниагара)
Бренд "Дмитров-Дело" c 2008 года на рынке строительства в Дмитрове
Звоните 9:00 до 18:00 8 (915) 055-33-61
Бренд "Дмитров-Дело" c 2008 года на рынке строительства в Дмитрове

БалковДом-Баня 126м2

Стоимость проекта от:
56 700 ₽
БЕСПЛАТНО! ПРИ ЗАКАЗЕ СТРОИТЕЛЬСТВА
Стоимость строительства от:
10 024 520 ₽
Артикул ART-18491
Дата 26.12.2025
Архитектурный стиль Шале
Количество надземных этажей 1
Круглогодичное проживание Да
Площадь дома 126 м2
Санузлы 1
Спальни 2

Описание

Выбирая дом, вы ищете уют, тепло и возможность проводить время, не покидая его стены, а в «БалковДом-Баня» 126 м² этот поиск завершён. В одиннадцатидневный уют, придавший архитектуре шале из профильного бруса, создаёт ощущение, будто вы живёте в сердце лесной усадьбы, но при этом пользуетесь всеми удобствами современного жилья. Это одноэтажное, круглогодичное жилище, спроектированное таким образом, чтобы каждый уголок, от солнечной террасы до тихого чердачного помещения, служил вам как для релакса, так и для активного отдыха. Трёхпанельные стены и традиционная двускатная крыша придают дому характерный шале‑шик, но при этом износостойкость и теплоизоляция профильного бруса позволяют сохранить комфортные температуры в течение всего года. Большая терраса становится идеальным местом для завтраков под открытым небом, проведения вечеров с друзьями или отдыха после долгих дней работы. Внутри гостинная, кухня и гостиная соединены открытой концепцией, создавая гибкую планировку, способную трансформироваться в соответствии с вашими потребностями. Несомненно, отсутствие внешних балконов и веранд не означает ограничений – напротив, это позволяет сосредоточиться на внутренней гармонии и максимально использовать простор, предоставляемый 126 м². Чердачное помещение открывает дополнительные возможности – будь то уютная спальня, домашний офис или библиотека, где каждая строчка будет звучать как музыка для глаз и души. «БалковДом-Баня» – это ваш личный оазис, где традиции шале встречаются с современными удобствами, создавая пространство, в котором хочется возвращаться снова и снова.

Характеристики дома

Архитектурный стиль
Автоматизированное регулирование параметров теплоносителя
Нет
Балконы/лоджии
Отсутствуют
Чердачное помещение
Да
Датчики протечки воды
Да
Эксплуатируемая или зеленая кровля
Нет
Электроснабжение
Центральное
Газоснабжение
Центральное
Изоляция воздушного шума
Нет
Камин
Нет
Класс энергоэффективности
-
Класс энергосбережения
-
Количество надземных этажей
1
Круглогодичное проживание
Да
Материал кровли
Металлочерепица
Материал перекрытий
Деревянные
Материал внешних стен
Материал внутренних перегородок
Деревянные
Модульное строительство с конструкциями заводского изготовления
Нет
Объем надземной части
500 м3
Основной материал фасадов
Дерево
Отопление
Индивидуальное
Площадь дома
126 м2
Площадь застройки
145 м2
Подвальное помещение
Нет
Показатель компактности здания
-
Приборы учета тепловой энергии
Нет
Пристроенный гараж/крытая автостоянка
Нет
Противопожарная система
Нет
Санузлы
1
Совмещенная кухня-гостиная
Да
Спальни
2
Терраса
Да
Тип фундамента
Ленточный
Тип кровли
Толщина внешних стен
195 мм
Толщина внутренних перегородок
195 мм
Улучшенные шумовые характеристики
Да
Вентиляция
Принудительная
Веранда
Нет
Водоотведение
Локальные очистные сооружения
Водоснабжение
Индивидуальное
Высота дома
4.15 м
Высота потолков
3.5 м

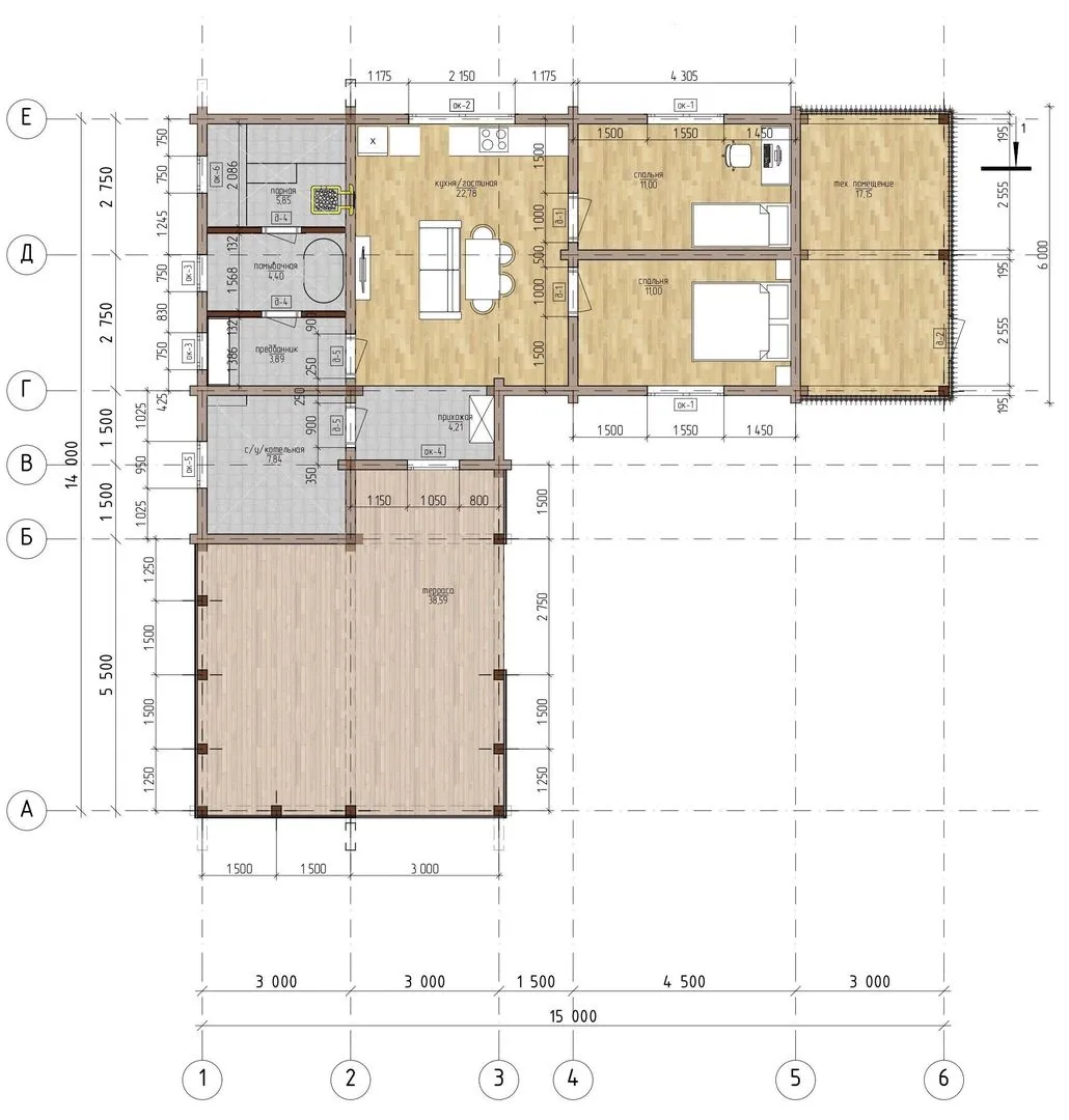
Планировка

Фасад дома

Александр

Закажите выезд инженера

Александр

Выездной инженер
Закажите выезд инженера для точной диагностики и профессиональной консультации по инженерным системам. Специалист приедет в удобное время, проведёт осмотр, рассчитает стоимость работ и подберёт оптимальные решения для вашего дома.


    Похожие проекты

    Ипотека и
    рассрочка
    ШР № 1
    Стоимость от:
    5 489 660
    Проект от: 32 850
    Этажей 1
    Санузлы 1
    Спальни 3
    Смотреть
    Ипотека и
    рассрочка
    Двухэтажный дом из бруса
    Стоимость от:
    5 732 160
    Проект от: 39 150
    Этажей 2
    Санузлы 2
    Спальни 3
    Смотреть
    Ипотека и
    рассрочка
    Жилой дом №2
    Стоимость от:
    4 901 600
    Проект от: 36 000
    Этажей 1
    Санузлы 1
    Спальни 3
    Смотреть
    Ипотека и
    рассрочка
    Проект Одноэтажный BARN 72
    Стоимость от:
    4 015 440
    Проект от: 32 400
    Этажей 1
    Санузлы 1
    Спальни 2
    Смотреть
    Ипотека и
    рассрочка
    Просторный 02Ч
    Стоимость от:
    6 991 380
    Проект от: 44 550
    Этажей 1
    Санузлы 1
    Спальни 3
    Смотреть
    Ипотека и
    рассрочка
    Одноэтажный Барнхаус №2
    Стоимость от:
    6 759 280
    Проект от: 42 300
    Этажей 1
    Санузлы 2
    Спальни 2
    Смотреть

    Как узнать стоимость дома

    back
    Оставляете заявку
    Вы заполняете форму на сайте или звоните нам. Менеджер Лайвкрафт связывается с вами для уточнения деталей: тип дома, площадь, материалы, участок строительства.
    back
    Консультация и подбор решения
    Наш специалист помогает выбрать оптимальный тип дома и конструкцию с учётом бюджета, сроков и целей — будь то дом для постоянного проживания или дача.
    back
    Расчёт предварительной стоимости
    Инженер делает первичный расчёт стоимости строительства по вашим параметрам: фундамент, коробка, кровля, отделка. Вы получаете смету с разбивкой по этапам.
    back
    Корректировка и утверждение сметы
    При необходимости вносим изменения — например, замену материалов или сокращение этапов. После согласования формируется окончательная фиксированная смета.
    back
    Заключение договора и старт работ
    После утверждения сметы заключаем официальный договор с гарантией. Вы получаете прозрачный график и точную стоимость — без скрытых расходов.

    Заказать конусльтацию по:БалковДом-Баня 126м2

    Фото 1 БалковДом-Баня 126м2


      Наши
      контакты

      Дмитров
      Опорный проезд 28Б
      (индустриальный парк Ниагара)
      9:00 до 18:00

      Корзина