4.9
Рейтинг на основании 120 отзывов
Дмитров
Опорный проезд 28Б
(индустриальный парк Ниагара)
Бренд "Дмитров-Дело" c 2008 года на рынке строительства в Дмитрове
Звоните 9:00 до 18:00 8 (915) 055-33-61
Бренд "Дмитров-Дело" c 2008 года на рынке строительства в Дмитрове

Балтика КД24/09/01-1Д

Стоимость проекта от:
48 150 ₽
БЕСПЛАТНО! ПРИ ЗАКАЗЕ СТРОИТЕЛЬСТВА
Стоимость строительства от:
6 202 790 ₽
Артикул ART-15947
Дата 25.12.2025
Архитектурный стиль Классический
Количество надземных этажей 1
Круглогодичное проживание Да
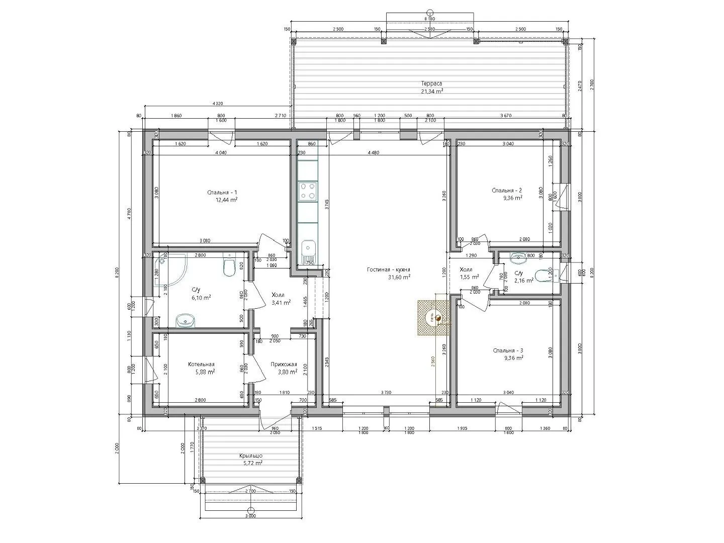
Площадь дома 107 м2
Санузлы 2
Спальни 3

Описание

**Дом "Балтика" – уютный уголок в стиле вечного благородства** Откройте для себя этот очаровательный одноквартирный дом‑коттедж, который вмещает в себя всю теплоту и надежность классического стиля. Вся его поверхность оформлена деревянными каркасами, а двускатная крыша – это символ надежной защиты от ветра и дождя. Пришлось ли вам уже сталкиваться с проблемой непредсказуемой погоды? В этом доме климат контролируется внутри: круглогодичное проживание обеспечено благодаря хорошей теплоизоляции и качественным материалам. Отделка и планировка дома рассчитаны именно на комфорт. Внутреннее пространство аккуратно разделено на комнаты, в которых царит спокойствие и гармония. Холодные дни не станут препятствием для весёлых мероприятий: большая терраса приглашает гостей проведать вечернее солнце, а пространство чердака можно превратить в уютное хранилище для сезонных вещей или дополнительную комнату. Если вы мечтаете о месте, где гармония с природой сочетается с комфортом современного жилья, "Балтика" будет именно тем, что нужно. Чистый, классический экстерьер придаёт ощущение высокого статуса, а простота конструкции и наличие чердачного помещения дарит практичность и свободу творчества. Войдите в дом и почувствуйте, как уют и тепло обнимают вас на протяжении всего года.

Характеристики дома

Архитектурный стиль
Автоматизированное регулирование параметров теплоносителя
Да
Балконы/лоджии
Отсутствуют
Чердачное помещение
Да
Датчики протечки воды
Нет
Эксплуатируемая или зеленая кровля
Нет
Электроснабжение
Индивидуальное
Газоснабжение
Индивидуальное
Изоляция воздушного шума
Нет
Камин
Да
Класс энергоэффективности
-
Класс энергосбережения
-
Количество надземных этажей
1
Круглогодичное проживание
Да
Материал кровли
Металлочерепица
Материал перекрытий
Деревянные
Материал внешних стен
Материал внутренних перегородок
Деревянные
Модульное строительство с конструкциями заводского изготовления
Нет
Объем надземной части
327 м3
Основной материал фасадов
Дерево
Отопление
Индивидуальное
Площадь дома
107 м2
Площадь застройки
114 м2
Подвальное помещение
Нет
Показатель компактности здания
-
Приборы учета тепловой энергии
Да
Пристроенный гараж/крытая автостоянка
Нет
Противопожарная система
Нет
Санузлы
2
Совмещенная кухня-гостиная
Да
Спальни
3
Терраса
Да
Тип фундамента
Свайный
Тип кровли
Толщина внешних стен
320 мм
Толщина внутренних перегородок
180 мм
Улучшенные шумовые характеристики
Нет
Вентиляция
Принудительная
Веранда
Нет
Водоотведение
Локальные очистные сооружения
Водоснабжение
Индивидуальное
Высота дома
4.9 м
Высота потолков
2.7 м

Планировка

Фасад дома

Александр

Закажите выезд инженера

Александр

Выездной инженер
Закажите выезд инженера для точной диагностики и профессиональной консультации по инженерным системам. Специалист приедет в удобное время, проведёт осмотр, рассчитает стоимость работ и подберёт оптимальные решения для вашего дома.


    Похожие проекты

    Ипотека и
    рассрочка
    Коттедж «Нептун»
    Стоимость от:
    6 614 960
    Проект от: 39 600
    Этажей 1
    Санузлы 1
    Спальни 3
    Смотреть
    Ипотека и
    рассрочка
    Загородный дом Вектор-3
    Стоимость от:
    7 839 360
    Проект от: 53 550
    Этажей 2
    Санузлы 2
    Спальни 4
    Смотреть
    Ипотека и
    рассрочка
    ТИП-006 Двухэтажный139
    Стоимость от:
    10 707 840
    Проект от: 70 200
    Этажей 2
    Санузлы 2
    Спальни 4
    Смотреть
    Ипотека и
    рассрочка
    Трехэтажный дом в английском стиле S-187
    Стоимость от:
    14 904 240
    Проект от: 91 800
    Этажей 3
    Санузлы 2
    Спальни 5
    Смотреть
    Ипотека и
    рассрочка
    Дом с антресолью Волга -136
    Стоимость от:
    8 804 640
    Проект от: 61 200
    Этажей 2
    Санузлы 3
    Спальни 3
    Смотреть
    Ипотека и
    рассрочка
    Дом тип №1 125 м.кв.
    Стоимость от:
    8 970 060
    Проект от: 55 350
    Этажей 1
    Санузлы 2
    Спальни 3
    Смотреть

    Как узнать стоимость дома

    back
    Оставляете заявку
    Вы заполняете форму на сайте или звоните нам. Менеджер Лайвкрафт связывается с вами для уточнения деталей: тип дома, площадь, материалы, участок строительства.
    back
    Консультация и подбор решения
    Наш специалист помогает выбрать оптимальный тип дома и конструкцию с учётом бюджета, сроков и целей — будь то дом для постоянного проживания или дача.
    back
    Расчёт предварительной стоимости
    Инженер делает первичный расчёт стоимости строительства по вашим параметрам: фундамент, коробка, кровля, отделка. Вы получаете смету с разбивкой по этапам.
    back
    Корректировка и утверждение сметы
    При необходимости вносим изменения — например, замену материалов или сокращение этапов. После согласования формируется окончательная фиксированная смета.
    back
    Заключение договора и старт работ
    После утверждения сметы заключаем официальный договор с гарантией. Вы получаете прозрачный график и точную стоимость — без скрытых расходов.

    Заказать конусльтацию по:Балтика КД24/09/01-1Д

    Фото 1 Балтика КД24/09/01-1Д


      Наши
      контакты

      Дмитров
      Опорный проезд 28Б
      (индустриальный парк Ниагара)
      9:00 до 18:00

      Корзина