4.9
Рейтинг на основании 120 отзывов
Дмитров
Опорный проезд 28Б
(индустриальный парк Ниагара)
Бренд "Дмитров-Дело" c 2008 года на рынке строительства в Дмитрове
Звоните 9:00 до 18:00 8 (915) 055-33-61
Бренд "Дмитров-Дело" c 2008 года на рынке строительства в Дмитрове

Загородный дом АС-239

Стоимость проекта от:
145 350 ₽
БЕСПЛАТНО! ПРИ ЗАКАЗЕ СТРОИТЕЛЬСТВА
Стоимость строительства от:
24 139 920 ₽
Артикул ART-17484
Дата 26.12.2025
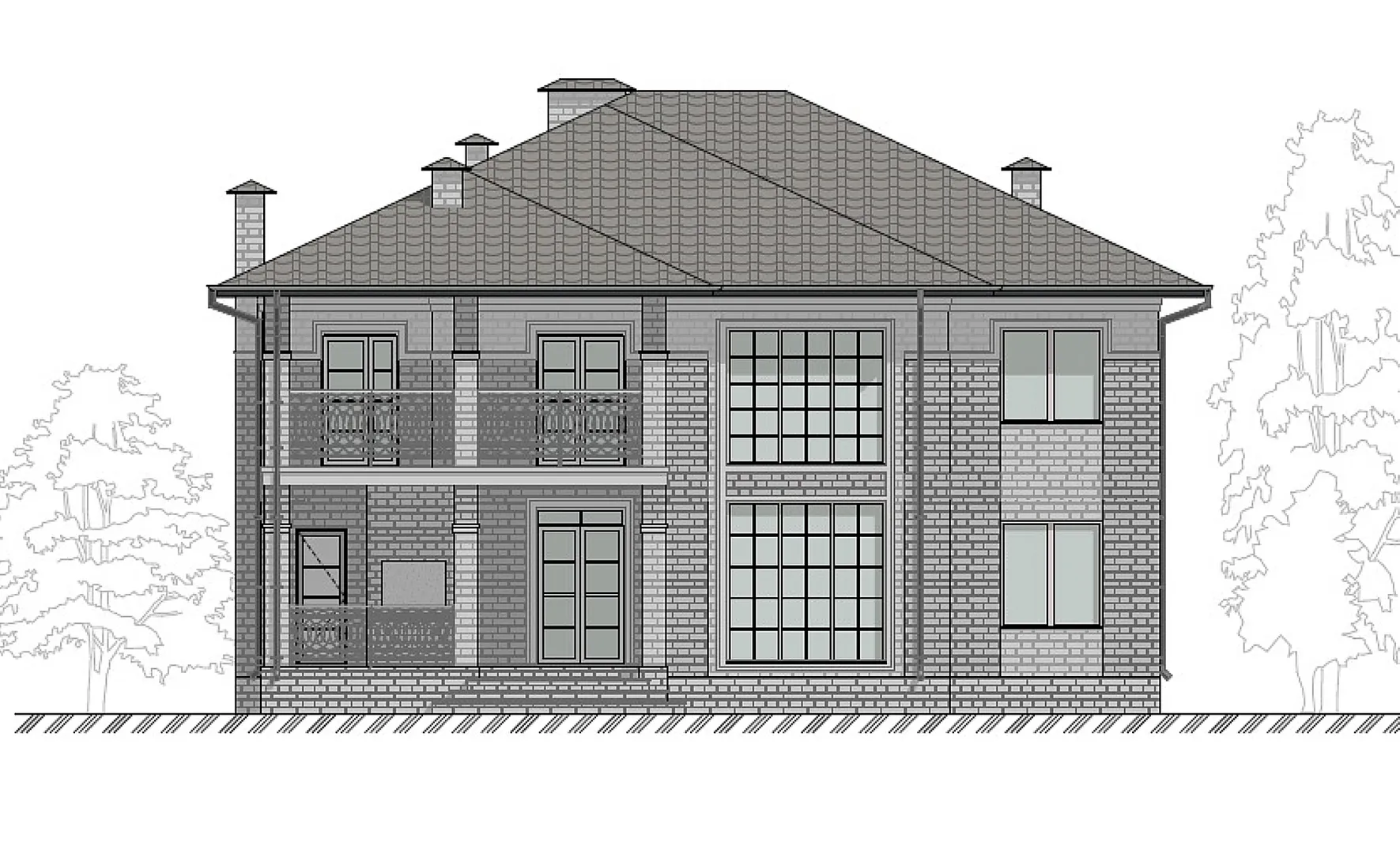
Архитектурный стиль Европейский
Количество надземных этажей 2
Круглогодичное проживание Да
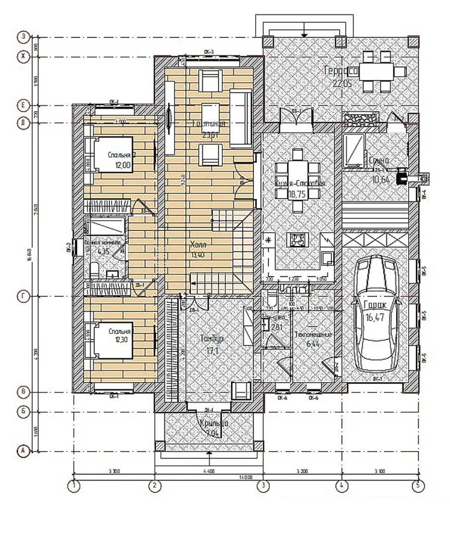
Площадь дома 323 м2
Санузлы 5
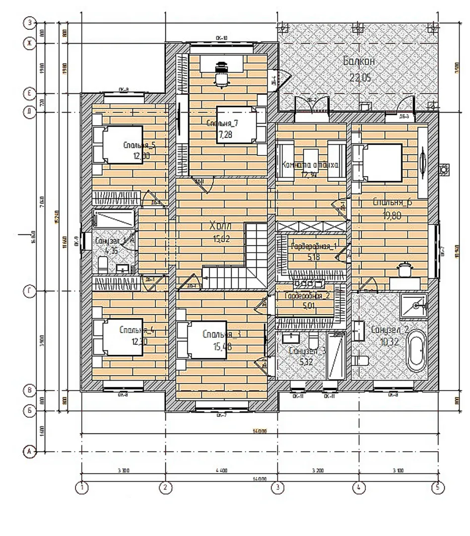
Спальни 7

Описание

Разместившись в живописном уединении за городом, загородный дом АС‑239 в европейском стиле выглядит как оазис спокойствия и уюта. Спроектирован он с двумя надземными этажами, что обеспечивает достаточное пространство для семейного уюта, а чердачное помещение открывает дополнительные возможности: хранилище, небольшую мастерскую или даже современный гардероб. Круглогодичное проживание гарантирует комфорт в любой климатической ситуации — тепло в зимний период и прохлада в жару благодаря качественной теплоизоляции газобетонных блоков и комбинированной кровле. На уровне первого этажа вас встретит просторный гостиной, где сквозь большие окна светятся живописные пейзажи. Балкон‑лоджия над площадью позволяет наслаждаться свежим воздухом и утренним кофе, а терраса вдоль задней стены служит идеальным местом для летних барбекю и вечеров на открытом воздухе. Пристроенный закрытый гараж или крытая автостоянка защищают транспорт от непогоды, создавая ощущение полной защищённости и комфорта. Каждый элемент этого дома продуман до мелочей, сочетая эстетику и практичность, чтобы вы могли наслаждаться жизнью в самом сердце природы, не отказываясь от удобств современного быта.

Характеристики дома

Архитектурный стиль
Автоматизированное регулирование параметров теплоносителя
Нет
Балконы/лоджии
1
Чердачное помещение
Да
Датчики протечки воды
Нет
Эксплуатируемая или зеленая кровля
Нет
Электроснабжение
Центральное
Газоснабжение
Индивидуальное
Изоляция воздушного шума
Нет
Камин
Нет
Класс энергоэффективности
-
Класс энергосбережения
-
Количество надземных этажей
2
Круглогодичное проживание
Да
Материал кровли
Металлочерепица
Материал перекрытий
Сборные железобетонные
Материал внешних стен
Материал внутренних перегородок
Блочные
Модульное строительство с конструкциями заводского изготовления
Нет
Объем надземной части
1111 м3
Основной материал фасадов
Искусственный камень
Отопление
Индивидуальное
Площадь дома
323 м2
Площадь застройки
200 м2
Подвальное помещение
Нет
Показатель компактности здания
-
Приборы учета тепловой энергии
Нет
Пристроенный гараж/крытая автостоянка
Да
Противопожарная система
Нет
Санузлы
5
Совмещенная кухня-гостиная
Нет
Спальни
7
Терраса
Да
Тип фундамента
Ленточный
Тип кровли
Толщина внешних стен
400 мм
Толщина внутренних перегородок
100 мм
Улучшенные шумовые характеристики
Нет
Вентиляция
Естественная
Веранда
Нет
Водоотведение
Локальные очистные сооружения
Водоснабжение
Центральное
Высота дома
9 м
Высота потолков
2.8 м

Планировка

Фасад дома

Александр

Закажите выезд инженера

Александр

Выездной инженер
Закажите выезд инженера для точной диагностики и профессиональной консультации по инженерным системам. Специалист приедет в удобное время, проведёт осмотр, рассчитает стоимость работ и подберёт оптимальные решения для вашего дома.


    Похожие проекты

    Ипотека и
    рассрочка
    Индивидуальный проект двухэтажного дома
    Стоимость от:
    15 022 800
    Проект от: 96 750
    Этажей 2
    Санузлы 2
    Спальни 3
    Смотреть
    Ипотека и
    рассрочка
    Дом из бревна №3
    Стоимость от:
    6 594 000
    Проект от: 45 000
    Этажей 2
    Санузлы 1
    Спальни 2
    Смотреть
    Ипотека и
    рассрочка
    Загородный дом. Серия «Вирилит» 1-128
    Стоимость от:
    9 615 760
    Проект от: 57 600
    Этажей 1
    Санузлы 1
    Спальни 3
    Смотреть
    Ипотека и
    рассрочка
    Бавария
    Стоимость от:
    9 321 840
    Проект от: 59 400
    Этажей 1
    Санузлы 2
    Спальни 3
    Смотреть
    Ипотека и
    рассрочка
    Загородный каменный дом ДГ-9
    Стоимость от:
    12 645 380
    Проект от: 71 550
    Этажей 1
    Санузлы 2
    Спальни 3
    Смотреть
    Ипотека и
    рассрочка
    Лазурный
    Стоимость от:
    10 516 000
    Проект от: 63 000
    Этажей 1
    Санузлы 2
    Спальни 3
    Смотреть

    Как узнать стоимость дома

    back
    Оставляете заявку
    Вы заполняете форму на сайте или звоните нам. Менеджер Лайвкрафт связывается с вами для уточнения деталей: тип дома, площадь, материалы, участок строительства.
    back
    Консультация и подбор решения
    Наш специалист помогает выбрать оптимальный тип дома и конструкцию с учётом бюджета, сроков и целей — будь то дом для постоянного проживания или дача.
    back
    Расчёт предварительной стоимости
    Инженер делает первичный расчёт стоимости строительства по вашим параметрам: фундамент, коробка, кровля, отделка. Вы получаете смету с разбивкой по этапам.
    back
    Корректировка и утверждение сметы
    При необходимости вносим изменения — например, замену материалов или сокращение этапов. После согласования формируется окончательная фиксированная смета.
    back
    Заключение договора и старт работ
    После утверждения сметы заключаем официальный договор с гарантией. Вы получаете прозрачный график и точную стоимость — без скрытых расходов.

    Заказать конусльтацию по:Загородный дом АС-239

    Фото 1 Загородный дом АС-239


      Наши
      контакты

      Дмитров
      Опорный проезд 28Б
      (индустриальный парк Ниагара)
      9:00 до 18:00

      Корзина