4.9
Рейтинг на основании 120 отзывов
Дмитров
Опорный проезд 28Б
(индустриальный парк Ниагара)
Бренд "Дмитров-Дело" c 2008 года на рынке строительства в Дмитрове
Звоните 9:00 до 18:00 8 (915) 055-33-61
Бренд "Дмитров-Дело" c 2008 года на рынке строительства в Дмитрове

Барн КЕДР-100

Стоимость проекта от:
35 100 ₽
БЕСПЛАТНО! ПРИ ЗАКАЗЕ СТРОИТЕЛЬСТВА
Стоимость строительства от:
4 350 060 ₽
Артикул ART-11627
Дата 25.12.2025
Архитектурный стиль Барнхаус
Количество надземных этажей 1
Круглогодичное проживание Да
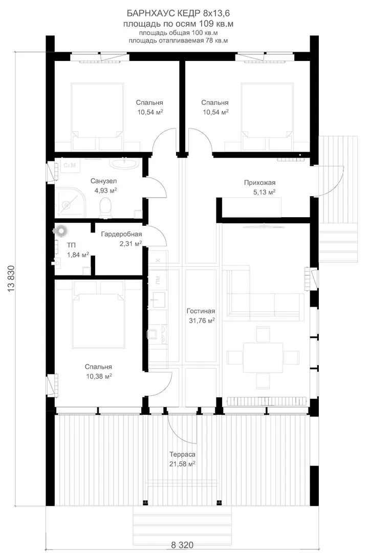
Площадь дома 78 м2
Санузлы 1
Спальни 3

Описание

**Дом “Кедр‑100” – ваш уютный уголок в деревенской гармонии** Прожив в этом одноэтажном домике в любое время года, вы почувствуете настоящее ощущение простора и тепла. Архитектура Barnhouse воссоздаёт дух открытых полей и безмятежные просторы, а ровно обрамленные деревянными каркасными стенами – это стильный, но в то же время надёжный фундамент, в котором будет приятно возвращаться каждый день. Вместе с элегантной двускатной крышей, «Кедр‑100» выглядит как сказочная усадьба, готовая превратить ваш образ жизни в праздник природы. Отсутствие балконов, веранд и прикрытых автостоянок позволяет сосредоточиться на главном – уютной террасе, которую можно превратить в бесконечный сад, барбекю‑площадку или просто место для вечернего кофе. Без чердака или лишних помещений ваш дом остаётся простым и функциональным, а дерево в его конструкции добавляет живую нотку леса прямо у вас дома. Выбирая “Кедр‑100”, вы выбрали стильную элегантность, практичность и, главное, возможность наслаждаться каждым моментом своего жизненного пространства.

Характеристики дома

Архитектурный стиль
Автоматизированное регулирование параметров теплоносителя
Да
Балконы/лоджии
Отсутствуют
Чердачное помещение
Нет
Датчики протечки воды
Нет
Эксплуатируемая или зеленая кровля
Нет
Электроснабжение
Центральное
Газоснабжение
Индивидуальное
Изоляция воздушного шума
Нет
Камин
Нет
Класс энергоэффективности
C
Класс энергосбережения
A
Количество надземных этажей
1
Круглогодичное проживание
Да
Материал кровли
Металлические листовые гофрированные профили
Материал перекрытий
Деревянные
Материал внешних стен
Материал внутренних перегородок
Деревянные
Модульное строительство с конструкциями заводского изготовления
Нет
Объем надземной части
475 м3
Основной материал фасадов
Дерево
Отопление
2 варианта
Площадь дома
78 м2
Площадь застройки
112 м2
Подвальное помещение
Нет
Показатель компактности здания
0.93
Приборы учета тепловой энергии
Нет
Пристроенный гараж/крытая автостоянка
Нет
Противопожарная система
Нет
Санузлы
1
Совмещенная кухня-гостиная
Да
Спальни
3
Терраса
Да
Тип фундамента
Свайный
Тип кровли
Толщина внешних стен
200 мм
Толщина внутренних перегородок
150 мм
Улучшенные шумовые характеристики
Нет
Вентиляция
3 варианта
Веранда
Нет
Водоотведение
2 варианта
Водоснабжение
2 варианта
Высота дома
3.7 м
Высота потолков
3.3 м

Планировка

Фасад дома

Александр

Закажите выезд инженера

Александр

Выездной инженер
Закажите выезд инженера для точной диагностики и профессиональной консультации по инженерным системам. Специалист приедет в удобное время, проведёт осмотр, рассчитает стоимость работ и подберёт оптимальные решения для вашего дома.


    Похожие проекты

    Ипотека и
    рассрочка
    ТП65/4-1 со скатной кровлей
    Стоимость от:
    4 590 300
    Проект от: 29 250
    Этажей 1
    Санузлы 1
    Спальни 2
    Смотреть
    Ипотека и
    рассрочка
    Одноэтажный дом А150
    Стоимость от:
    12 146 640
    Проект от: 77 400
    Этажей 1
    Санузлы 2
    Спальни 4
    Смотреть
    Ипотека и
    рассрочка
    Проект дома КС-9
    Стоимость от:
    11 056 980
    Проект от: 62 550
    Этажей 1
    Санузлы 2
    Спальни 4
    Смотреть
    Ипотека и
    рассрочка
    Дом » Семейный уют»
    Стоимость от:
    181 500
    Проект от: 33 750
    Этажей 1
    Санузлы 1
    Спальни 2
    Смотреть
    Ипотека и
    рассрочка
    Брусовой дом с крыльцом ТА-70/2
    Стоимость от:
    5 423 000
    Проект от: 31 500
    Этажей 1
    Санузлы 1
    Спальни 3
    Смотреть
    Ипотека и
    рассрочка
    Вишера
    Стоимость от:
    3 826 020
    Проект от: 29 700
    Этажей 1
    Санузлы 1
    Спальни 3
    Смотреть

    Как узнать стоимость дома

    back
    Оставляете заявку
    Вы заполняете форму на сайте или звоните нам. Менеджер Лайвкрафт связывается с вами для уточнения деталей: тип дома, площадь, материалы, участок строительства.
    back
    Консультация и подбор решения
    Наш специалист помогает выбрать оптимальный тип дома и конструкцию с учётом бюджета, сроков и целей — будь то дом для постоянного проживания или дача.
    back
    Расчёт предварительной стоимости
    Инженер делает первичный расчёт стоимости строительства по вашим параметрам: фундамент, коробка, кровля, отделка. Вы получаете смету с разбивкой по этапам.
    back
    Корректировка и утверждение сметы
    При необходимости вносим изменения — например, замену материалов или сокращение этапов. После согласования формируется окончательная фиксированная смета.
    back
    Заключение договора и старт работ
    После утверждения сметы заключаем официальный договор с гарантией. Вы получаете прозрачный график и точную стоимость — без скрытых расходов.

    Заказать конусльтацию по:Барн КЕДР-100

    Фото 1 Барн КЕДР-100


      Наши
      контакты

      Дмитров
      Опорный проезд 28Б
      (индустриальный парк Ниагара)
      9:00 до 18:00

      Корзина