4.9
Рейтинг на основании 120 отзывов
Дмитров
Опорный проезд 28Б
(индустриальный парк Ниагара)
Бренд "Дмитров-Дело" c 2008 года на рынке строительства в Дмитрове
Звоните 9:00 до 18:00 8 (915) 055-33-61
Бренд "Дмитров-Дело" c 2008 года на рынке строительства в Дмитрове

Барн Хаус 63

Стоимость проекта от:
28 350 ₽
Стоимость строительства от:
4 739 460 ₽
Артикул ART-14214
Дата 25.12.2025
Архитектурный стиль Барнхаус
Количество надземных этажей 1
Круглогодичное проживание Да
Площадь дома 63 м2
Санузлы 1
Спальни 2

Описание

**Barn House 63 – ваш уютный уголок в гармонии с природой** Представьте себе просторный, одинурочный дом, построенный в традиционном барнхаус‑стиле, где каждая деталь создаёт ощущение домашнего тепла. Barn House 63 удобно обустроен для круглогодичного проживания: большие окна наполняют внутреннее пространство естественным светом, а теплоизоляция из газобетонных блоков обеспечивает комфорт даже в холодные зимы. Проформа здания сохраняет ощущение простора и свободы, а отсутствие балконов и веранд подчёркивает лаконичность и практичность. Особенности, которые делают этот дом особенным: двойной скат кровли придаёт ему величественный вид, а просторная терраса – идеальное место для завтраков на свежем воздухе или уютных вечеров. Внутри открытая планировка соединяет гостиную, столовую и кухню в единый поток, что делает пространство гибким и готовым к вашим идеям о домашнем уюте. Кровля и стены – сочетание традиционного и современного, создающее не только эстетичную, но и практичную среду. Barn House 63 приглашает тех, кто ценит аутентичность и комфорт. Идеален для семей, пар и творческих личностей, ищущих сочетание современности с уютом старой фермы. Пусть ваш дом станет местом, где каждый день начинается с вдохновляющего ветра и заканчивается тёплым огнём домашнего очага. Воспользуйтесь этой уникальной возможностью и сделайте свой новый дом настоящим оазисом спокойствия и вдохновения.

Характеристики дома

Архитектурный стиль
Барнхаус
Автоматизированное регулирование параметров теплоносителя
Нет
Балконы/лоджии
Отсутствуют
Чердачное помещение
Нет
Датчики протечки воды
Нет
Эксплуатируемая или зеленая кровля
Нет
Электроснабжение
Не предусмотрено
Газоснабжение
Не предусмотрено
Изоляция воздушного шума
Нет
Камин
Нет
Класс энергоэффективности
-
Класс энергосбережения
-
Количество надземных этажей
1
Круглогодичное проживание
Да
Материал кровли
Металлочерепица
Материал перекрытий
Деревянные
Материал внешних стен
Газобетонные блоки
Материал внутренних перегородок
Пенобетонные
Модульное строительство с конструкциями заводского изготовления
Нет
Объем надземной части
403 м3
Основной материал фасадов
Фальцевая кровля кликфальц
Отопление
Не предусмотрено
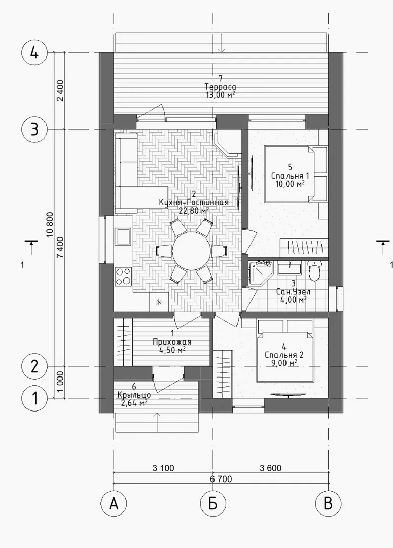
Площадь дома
63 м2
Площадь застройки
86 м2
Подвальное помещение
Нет
Показатель компактности здания
-
Приборы учета тепловой энергии
Нет
Пристроенный гараж/крытая автостоянка
Нет
Противопожарная система
Нет
Санузлы
1
Совмещенная кухня-гостиная
Да
Спальни
2
Терраса
Да
Тип фундамента
Свайно-ростверковый
Тип кровли
Двускатная
Толщина внешних стен
400 мм
Толщина внутренних перегородок
200 мм
Улучшенные шумовые характеристики
Нет
Вентиляция
Естественная
Веранда
Нет
Водоотведение
Не предусмотрено
Водоснабжение
Не предусмотрено
Высота дома
4.7 м
Высота потолков
3.8 м

Планировка

Фасад дома

Александр

Закажите выезд инженера

Александр

Выездной инженер
Закажите выезд инженера для точной диагностики и профессиональной консультации по инженерным системам. Специалист приедет в удобное время, проведёт осмотр, рассчитает стоимость работ и подберёт оптимальные решения для вашего дома.


    Похожие проекты

    Ипотека и
    рассрочка
    Арбат Премиум
    Стоимость от:
    6 530 040
    Проект от: 36 900
    Этажей 1
    Санузлы 1
    Спальни 3
    Смотреть
    Ипотека и
    рассрочка
    Загородный дом «Аристократ»
    Стоимость от:
    11 034 720
    Проект от: 71 100
    Этажей 2
    Санузлы 2
    Спальни 4
    Смотреть
    Ипотека и
    рассрочка
    Загородный дом АС-243
    Стоимость от:
    12 429 120
    Проект от: 79 200
    Этажей 1
    Санузлы 2
    Спальни 3
    Смотреть
    Ипотека и
    рассрочка
    Одноэтажный дом Стройгаза
    Стоимость от:
    8 039 020
    Проект от: 45 450
    Этажей 1
    Санузлы 1
    Спальни 3
    Смотреть
    Ипотека и
    рассрочка
    Проект КВ-2-90
    Стоимость от:
    5 839 680
    Проект от: 36 900
    Этажей 2
    Санузлы 1
    Спальни 4
    Смотреть
    Ипотека и
    рассрочка
    Мечта 2021
    Стоимость от:
    12 604 460
    Проект от: 73 350
    Этажей 1
    Санузлы 1
    Спальни 3
    Смотреть

    Как узнать стоимость дома

    back
    Оставляете заявку
    Вы заполняете форму на сайте или звоните нам. Менеджер Лайвкрафт связывается с вами для уточнения деталей: тип дома, площадь, материалы, участок строительства.
    back
    Консультация и подбор решения
    Наш специалист помогает выбрать оптимальный тип дома и конструкцию с учётом бюджета, сроков и целей — будь то дом для постоянного проживания или дача.
    back
    Расчёт предварительной стоимости
    Инженер делает первичный расчёт стоимости строительства по вашим параметрам: фундамент, коробка, кровля, отделка. Вы получаете смету с разбивкой по этапам.
    back
    Корректировка и утверждение сметы
    При необходимости вносим изменения — например, замену материалов или сокращение этапов. После согласования формируется окончательная фиксированная смета.
    back
    Заключение договора и старт работ
    После утверждения сметы заключаем официальный договор с гарантией. Вы получаете прозрачный график и точную стоимость — без скрытых расходов.

    Заказать конусльтацию по:Барн Хаус 63

    Фото 1 Барн Хаус 63


      Наши
      контакты

      Дмитров
      Опорный проезд 28Б
      (индустриальный парк Ниагара)
      9:00 до 18:00