4.9
Рейтинг на основании 120 отзывов
Дмитров
Опорный проезд 28Б
(индустриальный парк Ниагара)
Бренд "Дмитров-Дело" c 2008 года на рынке строительства в Дмитрове
Звоните 9:00 до 18:00 8 (915) 055-33-61
Бренд "Дмитров-Дело" c 2008 года на рынке строительства в Дмитрове

Панельно-каркасный дом по проекту Барн L

Стоимость проекта от:
48 600 ₽
БЕСПЛАТНО! ПРИ ЗАКАЗЕ СТРОИТЕЛЬСТВА
Стоимость строительства от:
6 617 160 ₽
Артикул ART-10621
Дата 25.12.2025
Архитектурный стиль Барнхаус
Количество надземных этажей 1
Круглогодичное проживание Да
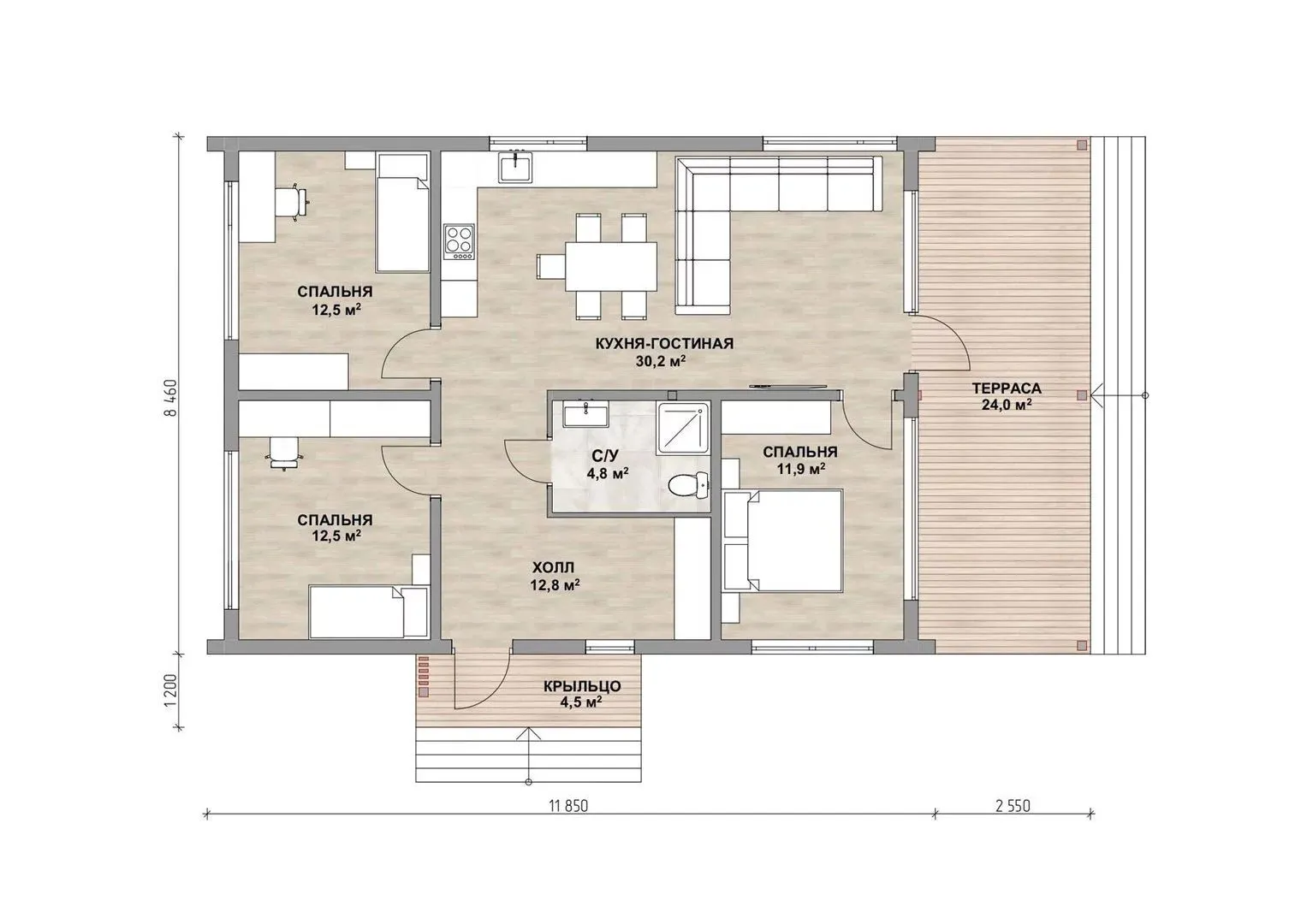
Площадь дома 108 м2
Санузлы 1
Спальни 3

Описание

**Дом “Барн L” – уют и практичность в стиле простором** Вдохновленный традициями американского барнхауса, дом по проекту “Барн L” сочетает в себе строгую геометрию и теплую, приглашительную атмосферу. Огромная площадь одного надземного этажа создаёт ощущение простора, при этом компактные размеры делают его удобным для жизни всей семьи. Двускатная крыша и панельно‑каркасное покрытие не только экономят строительство, но и гарантируют надёжную защиту от холода и влаги, позволяя наслаждаться уютом в любой сезон. Простота и функциональность – главные принципы этого проекта. Отсутствие балконов и веранды подчёркивает минимализм, а открытая терраса становится естественным продолжением внутреннего пространства, где можно выжать максимум солнца и свежего воздуха. Уютные комнаты, продуманная планировка и экономичное использование материалов делают дом “Барн L” идеальным выбором для тех, кто ищет сочетание стиля, комфорта и практичности. Если вы цените современный дизайн без лишних деталей, при этом хочется жить в уютном и надёжном доме, “Барн L” – это ваш ответ. Ощутите гармонию простого рустикального стиля с удобством современной жизни и создайте здесь свой собственный оазис спокойствия и уюта.

Характеристики дома

Архитектурный стиль
Автоматизированное регулирование параметров теплоносителя
Да
Балконы/лоджии
Отсутствуют
Чердачное помещение
Нет
Датчики протечки воды
Нет
Эксплуатируемая или зеленая кровля
Нет
Электроснабжение
2 варианта
Газоснабжение
Центральное
Изоляция воздушного шума
Нет
Камин
Нет
Класс энергоэффективности
-
Класс энергосбережения
-
Количество надземных этажей
1
Круглогодичное проживание
Да
Материал кровли
Металлические рулонные или листовые материалы
Материал перекрытий
Деревянные
Материал внешних стен
Материал внутренних перегородок
Деревянные
Модульное строительство с конструкциями заводского изготовления
Нет
Объем надземной части
-
Основной материал фасадов
Планкен
Отопление
Индивидуальное
Площадь дома
108 м2
Площадь застройки
141 м2
Подвальное помещение
Нет
Показатель компактности здания
-
Приборы учета тепловой энергии
Нет
Пристроенный гараж/крытая автостоянка
Нет
Противопожарная система
Да
Санузлы
1
Совмещенная кухня-гостиная
Да
Спальни
3
Терраса
Да
Тип фундамента
Свайный
Тип кровли
Толщина внешних стен
250 мм
Толщина внутренних перегородок
150 мм
Улучшенные шумовые характеристики
Да
Вентиляция
2 варианта
Веранда
Нет
Водоотведение
2 варианта
Водоснабжение
2 варианта
Высота дома
3.72 м
Высота потолков
2.9 м

Планировка

Фасад дома

Александр

Закажите выезд инженера

Александр

Выездной инженер
Закажите выезд инженера для точной диагностики и профессиональной консультации по инженерным системам. Специалист приедет в удобное время, проведёт осмотр, рассчитает стоимость работ и подберёт оптимальные решения для вашего дома.


    Похожие проекты

    Ипотека и
    рассрочка
    S 2-88
    Стоимость от:
    5 875 440
    Проект от: 36 450
    Этажей 2
    Санузлы 2
    Спальни 3
    Смотреть
    Ипотека и
    рассрочка
    Одноэтажный дом Лондон
    Стоимость от:
    2 724 590
    Проект от: 21 150
    Этажей 1
    Санузлы 1
    Спальни 2
    Смотреть
    Ипотека и
    рассрочка
    Двухэтажный дом СО-117
    Стоимость от:
    8 178 480
    Проект от: 52 650
    Этажей 2
    Санузлы 2
    Спальни 5
    Смотреть
    Ипотека и
    рассрочка
    Одноэтажный дом Авангард 1.163
    Стоимость от:
    12 028 500
    Проект от: 74 250
    Этажей 1
    Санузлы 3
    Спальни 3
    Смотреть
    Ипотека и
    рассрочка
    ГРАНД
    Стоимость от:
    6 990 060
    Проект от: 41 850
    Этажей 1
    Санузлы 1
    Спальни 3
    Смотреть
    Ипотека и
    рассрочка
    Серия «КЛАССИКА» КД-10
    Стоимость от:
    10 216 320
    Проект от: 73 350
    Этажей 2
    Санузлы 2
    Спальни 4
    Смотреть

    Как узнать стоимость дома

    back
    Оставляете заявку
    Вы заполняете форму на сайте или звоните нам. Менеджер Лайвкрафт связывается с вами для уточнения деталей: тип дома, площадь, материалы, участок строительства.
    back
    Консультация и подбор решения
    Наш специалист помогает выбрать оптимальный тип дома и конструкцию с учётом бюджета, сроков и целей — будь то дом для постоянного проживания или дача.
    back
    Расчёт предварительной стоимости
    Инженер делает первичный расчёт стоимости строительства по вашим параметрам: фундамент, коробка, кровля, отделка. Вы получаете смету с разбивкой по этапам.
    back
    Корректировка и утверждение сметы
    При необходимости вносим изменения — например, замену материалов или сокращение этапов. После согласования формируется окончательная фиксированная смета.
    back
    Заключение договора и старт работ
    После утверждения сметы заключаем официальный договор с гарантией. Вы получаете прозрачный график и точную стоимость — без скрытых расходов.

    Заказать конусльтацию по:Панельно-каркасный дом по проекту Барн L

    Фото 1 Панельно-каркасный дом по проекту Барн L


      Наши
      контакты

      Дмитров
      Опорный проезд 28Б
      (индустриальный парк Ниагара)
      9:00 до 18:00

      Корзина