4.9
Рейтинг на основании 120 отзывов
Дмитров
Опорный проезд 28Б
(индустриальный парк Ниагара)
Бренд "Дмитров-Дело" c 2008 года на рынке строительства в Дмитрове
Звоните 9:00 до 18:00 8 (915) 055-33-61
Бренд "Дмитров-Дело" c 2008 года на рынке строительства в Дмитрове

Барн-хаус АИСТ 8*10

Стоимость проекта от:
23 850 ₽
Стоимость строительства от:
3 238 565 ₽
Артикул ART-6443
Дата 26.12.2025
Архитектурный стиль Барнхаус
Количество надземных этажей 1
Круглогодичное проживание Да
Площадь дома 53 м2
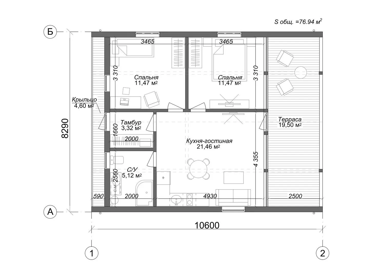
Санузлы 1
Спальни 2

Описание

**Приглашаем вас открыть для себя новый уровень уюта и стиля – Barn‑House AIST 8 × 10**. Этот уникальный одноэтажный дом в барн‑хаус стиле сочетает в себе современную энергоэффективность, которую обеспечивают SIP‑панели, и атмосферу простора, характерную для исторических сараев. Кровля в двухскатном исполнении подчеркивает классический вид, а широкая открытая терраса приглашает к семейным ужинам под звёздами и долгим летним вечерам на свежем воздухе. Внутри дом построен так, чтобы в любой сезон он был комфортным и тепловой, благодаря утеплению SIP‑материалов. Несмотря на отсутствие веранд и гаража, территория предоставляет свободные пространства для игр, прогулок и даже будущего сада. Ощущение спокойствия и непринужденности, которое витает в каждом квадратном метре, делает этот дом идеальным для круглогодичного проживания, где каждый найдет уголок для отдыха и вдохновения. Откройте двери Barn‑House AIST 8 × 10 и позвольте себе окунуться в гармонию современного дизайна и традиционных ценностей. Ваш новый дом ждет, готовый стать уютным гнездом для семейных историй и незабываемых мгновений. Мы будем рады помочь вам сделать первый шаг к дому вашей мечты.

Характеристики дома

Архитектурный стиль
Барнхаус
Автоматизированное регулирование параметров теплоносителя
-
Балконы/лоджии
Отсутствуют
Чердачное помещение
Нет
Датчики протечки воды
-
Эксплуатируемая или зеленая кровля
-
Электроснабжение
Центральное
Газоснабжение
Не предусмотрено
Изоляция воздушного шума
-
Камин
Нет
Класс энергоэффективности
-
Класс энергосбережения
-
Количество надземных этажей
1
Круглогодичное проживание
Да
Материал кровли
Фальцевая кровля из цинковых листов
Материал перекрытий
Деревянные
Материал внешних стен
SIP-панели
Материал внутренних перегородок
Деревянные
Модульное строительство с конструкциями заводского изготовления
Нет
Объем надземной части
-
Основной материал фасадов
Фальцевая кровля кликфальц
Отопление
Индивидуальное
Площадь дома
53 м2
Площадь застройки
87 м2
Подвальное помещение
Нет
Показатель компактности здания
-
Приборы учета тепловой энергии
-
Пристроенный гараж/крытая автостоянка
Нет
Противопожарная система
Нет
Санузлы
1
Совмещенная кухня-гостиная
Да
Спальни
2
Терраса
Да
Тип фундамента
Свайно-винтовой
Тип кровли
Двускатная
Толщина внешних стен
224 мм
Толщина внутренних перегородок
140 мм
Улучшенные шумовые характеристики
-
Вентиляция
Принудительная
Веранда
Нет
Водоотведение
Локальные очистные сооружения
Водоснабжение
Индивидуальное
Высота дома
4 м
Высота потолков
3.4 м

Планировка

Фасад дома

Александр

Закажите выезд инженера

Александр

Выездной инженер
Закажите выезд инженера для точной диагностики и профессиональной консультации по инженерным системам. Специалист приедет в удобное время, проведёт осмотр, рассчитает стоимость работ и подберёт оптимальные решения для вашего дома.


    Похожие проекты

    Ипотека и
    рассрочка
    Одноэтажный каркасный дом Альма
    Стоимость от:
    6 069 525
    Проект от: 47 250
    Этажей 1
    Санузлы 1
    Спальни 3
    Смотреть
    Ипотека и
    рассрочка
    Проект загородного дома NHD-162
    Стоимость от:
    16 051 680
    Проект от: 99 900
    Этажей 2
    Санузлы 3
    Спальни 7
    Смотреть
    Ипотека и
    рассрочка
    Загородный дом C-I 79
    Стоимость от:
    3 468 300
    Проект от: 27 000
    Этажей 1
    Санузлы 1
    Спальни 2
    Смотреть
    Ипотека и
    рассрочка
    PH-50
    Стоимость от:
    3 421 000
    Проект от: 22 500
    Этажей 1
    Санузлы 1
    Спальни 1
    Смотреть
    Ипотека и
    рассрочка
    Одноэтажный дом из кирпича Family — 100
    Стоимость от:
    7 515 200
    Проект от: 45 000
    Этажей 1
    Санузлы 2
    Спальни 3
    Смотреть
    Ипотека и
    рассрочка
    Одноэтажное шале: Проект «Сириус»
    Стоимость от:
    7 515 200
    Проект от: 45 000
    Этажей 1
    Санузлы 2
    Спальни 3
    Смотреть

    Как узнать стоимость дома

    back
    Оставляете заявку
    Вы заполняете форму на сайте или звоните нам. Менеджер Лайвкрафт связывается с вами для уточнения деталей: тип дома, площадь, материалы, участок строительства.
    back
    Консультация и подбор решения
    Наш специалист помогает выбрать оптимальный тип дома и конструкцию с учётом бюджета, сроков и целей — будь то дом для постоянного проживания или дача.
    back
    Расчёт предварительной стоимости
    Инженер делает первичный расчёт стоимости строительства по вашим параметрам: фундамент, коробка, кровля, отделка. Вы получаете смету с разбивкой по этапам.
    back
    Корректировка и утверждение сметы
    При необходимости вносим изменения — например, замену материалов или сокращение этапов. После согласования формируется окончательная фиксированная смета.
    back
    Заключение договора и старт работ
    После утверждения сметы заключаем официальный договор с гарантией. Вы получаете прозрачный график и точную стоимость — без скрытых расходов.

    Заказать конусльтацию по:Барн-хаус АИСТ 8*10

    Фото 1 Барн-хаус АИСТ 8*10


      Наши
      контакты

      Дмитров
      Опорный проезд 28Б
      (индустриальный парк Ниагара)
      9:00 до 18:00

      Корзина