4.9
Рейтинг на основании 120 отзывов
Дмитров
Опорный проезд 28Б
(индустриальный парк Ниагара)
Бренд "Дмитров-Дело" c 2008 года на рынке строительства в Дмитрове
Звоните 9:00 до 18:00 8 (915) 055-33-61
Бренд "Дмитров-Дело" c 2008 года на рынке строительства в Дмитрове

Двухэтажный дом линейки «Эстетика» 2-260

Стоимость проекта от:
117 000 ₽
БЕСПЛАТНО! ПРИ ЗАКАЗЕ СТРОИТЕЛЬСТВА
Стоимость строительства от:
18 158 400 ₽
Артикул ART-10728
Дата 25.12.2025
Архитектурный стиль Европейский
Количество надземных этажей 2
Круглогодичное проживание Да
Площадь дома 260 м2
Санузлы 3
Спальни 3

Описание

Погрузитесь в мир беззаботного комфорта и современного дизайна — вот, что представляет собой ваш новый уютный уголок в виде двухэтажного дома линейки «Эстетика» с номером 2‑260. Изысканный европейский стиль, воплощённый в лаконичной, но яркой архитектуре, сразу заставит сердце биться чаще. Четырёхскатная вальмовая крыша, выполненная из качественных материалов, добавляет дому элегантности и защищает от капризов погоды, позволяя вам наслаждаться круглогодичным проживанием без лишних забот. Каждая деталь дома продумана, чтобы превратить привычные будни в приятные ритуалы. Чугунная конструкция и сборный железобетонный каркас гарантируют прочность и теплоизоляцию, а уютная терраса — как маленький оазис для семейных прогулок и вечеров, проведённых с близкими. Пристроенный гараж/крытая автостоянка, расположенная рядом, обеспечивает простое и безопасное парковочное место для вашего автомобиля. Здесь нет лишних балконов и веранд, но зато есть просторные, светлые комнаты, каждый кусочек которых создан для того, чтобы вам радовала каждая просвещённая лампой и ароматом домашнего уюта. Вы будете наслаждаться каждой минутой, проведённой в вашем новом доме, и каждый проходящий здесь день будет напоминанием о том, как прекрасно жить в гармонии с природой и уютом своей квартиры.

Характеристики дома

Архитектурный стиль
Автоматизированное регулирование параметров теплоносителя
Нет
Балконы/лоджии
Отсутствуют
Чердачное помещение
Нет
Датчики протечки воды
Нет
Эксплуатируемая или зеленая кровля
Нет
Электроснабжение
Центральное
Газоснабжение
Не предусмотрено
Изоляция воздушного шума
Нет
Камин
Нет
Класс энергоэффективности
-
Класс энергосбережения
-
Количество надземных этажей
2
Круглогодичное проживание
Да
Материал кровли
Металлочерепица
Материал перекрытий
Сборные железобетонные
Материал внешних стен
Материал внутренних перегородок
Кирпичные
Модульное строительство с конструкциями заводского изготовления
Нет
Объем надземной части
960 м3
Основной материал фасадов
Искусственный камень
Отопление
Индивидуальное
Площадь дома
260 м2
Площадь застройки
158 м2
Подвальное помещение
Нет
Показатель компактности здания
-
Приборы учета тепловой энергии
Нет
Пристроенный гараж/крытая автостоянка
Да
Противопожарная система
Нет
Санузлы
3
Совмещенная кухня-гостиная
Да
Спальни
3
Терраса
Нет
Тип фундамента
Плитный
Толщина внешних стен
425 мм
Толщина внутренних перегородок
120 мм
Улучшенные шумовые характеристики
Нет
Вентиляция
2 варианта
Веранда
Нет
Водоотведение
2 варианта
Водоснабжение
2 варианта
Высота дома
8.5 м
Высота потолков
2.9 м

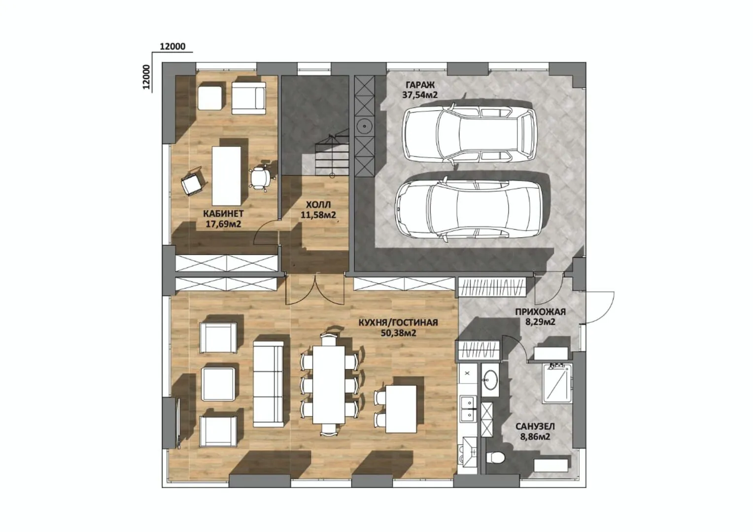
Планировка

Фасад дома

Александр

Закажите выезд инженера

Александр

Выездной инженер
Закажите выезд инженера для точной диагностики и профессиональной консультации по инженерным системам. Специалист приедет в удобное время, проведёт осмотр, рассчитает стоимость работ и подберёт оптимальные решения для вашего дома.


    Похожие проекты

    Ипотека и
    рассрочка
    Одноэтажный дом FIXPLANS — 1853
    Стоимость от:
    18 093 020
    Проект от: 108 450
    Этажей 1
    Санузлы 2
    Спальни 3
    Смотреть
    Ипотека и
    рассрочка
    СКАНДИ 144
    Стоимость от:
    10 056 960
    Проект от: 64 800
    Этажей 2
    Санузлы 2
    Спальни 4
    Смотреть
    Ипотека и
    рассрочка
    Амарилло 1
    Стоимость от:
    4 237 200
    Проект от: 27 000
    Этажей 1
    Санузлы 1
    Спальни 2
    Смотреть
    Ипотека и
    рассрочка
    Одноэтажный дом 153,7 (162.1) м2 MATO
    Стоимость от:
    12 527 240
    Проект от: 72 900
    Этажей 1
    Санузлы 3
    Спальни 4
    Смотреть
    Ипотека и
    рассрочка
    СЕМЕЙНЫЙ
    Стоимость от:
    9 180 600
    Проект от: 58 500
    Этажей 1
    Санузлы 2
    Спальни 3
    Смотреть
    Ипотека и
    рассрочка
    Индивидуальный жилой дом 832-14-10/22-АР
    Стоимость от:
    8 827 500
    Проект от: 56 250
    Этажей 1
    Санузлы 1
    Спальни 2
    Смотреть

    Как узнать стоимость дома

    back
    Оставляете заявку
    Вы заполняете форму на сайте или звоните нам. Менеджер Лайвкрафт связывается с вами для уточнения деталей: тип дома, площадь, материалы, участок строительства.
    back
    Консультация и подбор решения
    Наш специалист помогает выбрать оптимальный тип дома и конструкцию с учётом бюджета, сроков и целей — будь то дом для постоянного проживания или дача.
    back
    Расчёт предварительной стоимости
    Инженер делает первичный расчёт стоимости строительства по вашим параметрам: фундамент, коробка, кровля, отделка. Вы получаете смету с разбивкой по этапам.
    back
    Корректировка и утверждение сметы
    При необходимости вносим изменения — например, замену материалов или сокращение этапов. После согласования формируется окончательная фиксированная смета.
    back
    Заключение договора и старт работ
    После утверждения сметы заключаем официальный договор с гарантией. Вы получаете прозрачный график и точную стоимость — без скрытых расходов.

    Заказать конусльтацию по:Двухэтажный дом линейки «Эстетика» 2-260

    Фото 1 Двухэтажный дом линейки «Эстетика» 2-260


      Наши
      контакты

      Дмитров
      Опорный проезд 28Б
      (индустриальный парк Ниагара)
      9:00 до 18:00

      Корзина