4.9
Рейтинг на основании 120 отзывов
Дмитров
Опорный проезд 28Б
(индустриальный парк Ниагара)
Бренд "Дмитров-Дело" c 2008 года на рынке строительства в Дмитрове
Звоните 9:00 до 18:00 8 (915) 055-33-61
Бренд "Дмитров-Дело" c 2008 года на рынке строительства в Дмитрове

Проект «Мельник»

Стоимость проекта от:
23 850 ₽
БЕСПЛАТНО! ПРИ ЗАКАЗЕ СТРОИТЕЛЬСТВА
Стоимость строительства от:
4 226 860 ₽
Артикул ART-11978
Дата 25.12.2025
Архитектурный стиль Европейский
Количество надземных этажей 1
Круглогодичное проживание Да
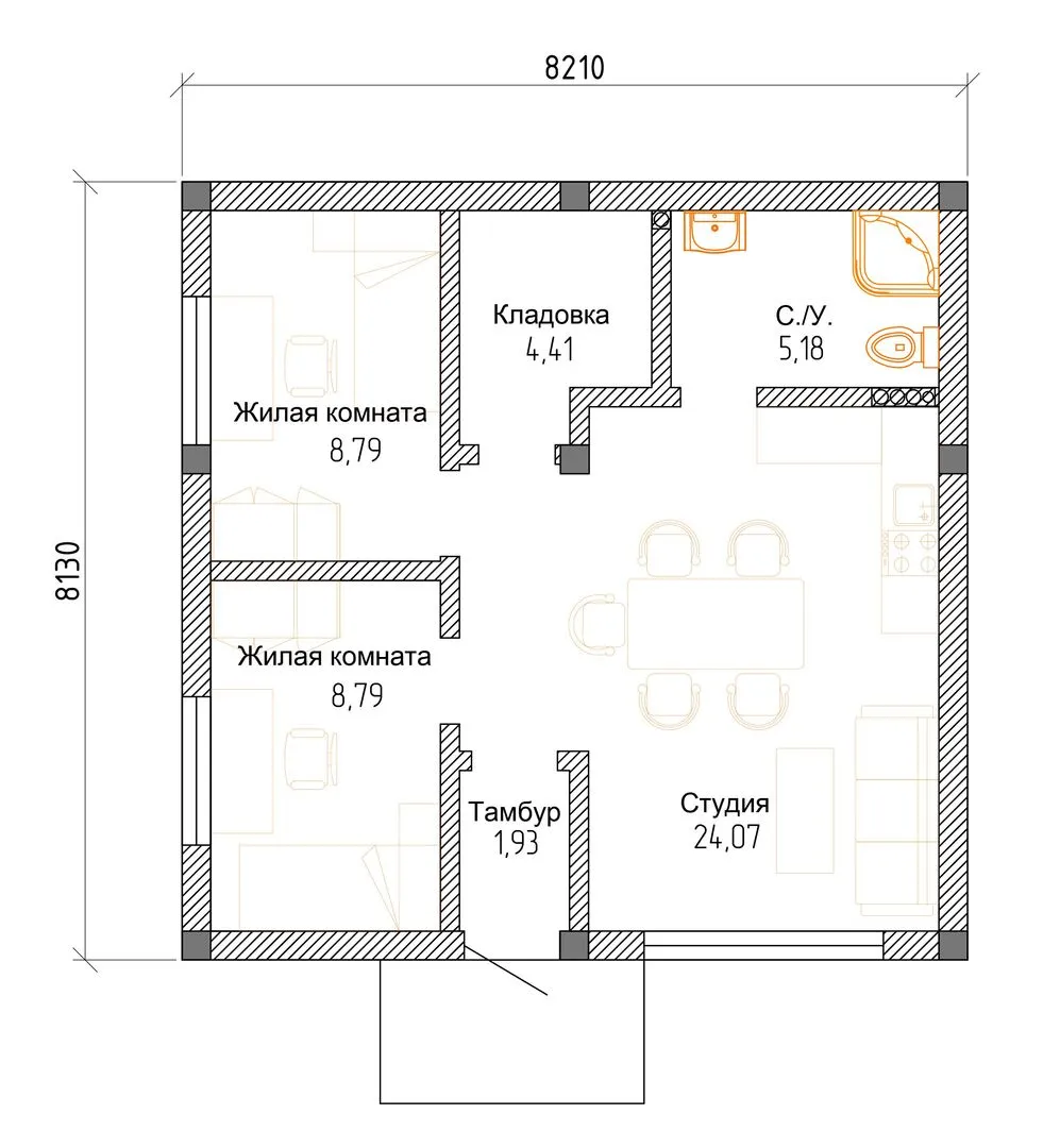
Площадь дома 53 м2
Санузлы 1
Спальни 2

Описание

**Мельник** – это воплощение европейского стиля, где каждая деталь продумана до последней мелочи. Дом единого этажа открывает просторное, светлое внутреннее пространство, идеально подходящее как для семейного уюта, так и для спокойного жизни пожилых людей. Стойкая конструкция из газобетонных блоков гарантирует тепло и шумоизоляцию, а плоский кровельный профиль добавляет современного вида и создает простоту обслуживания. Весь дом рассчитан на круглогодичное проживание, благодаря тщательному подбору материалов и упрощенной планировке. Внутреннее пространство **Мельника** без балконов и веранд раскрывает возможность гибкого использования площадей: от открытого холла до уютных семейных залов и просторных кухонь со стеклянными перегородками. В каждой комнате царит свет и гармония, а простые, но элегантные линии подчёркивают европейский колорит. Гости всегда будут поражены ощущением лёгкости и простора, а хозяева смогут создать атмосферу, свободную от ограничений балконов и дорогих ремонтов. Внешние стены, выполненные из газобетонных блоков, придают дому прочность и энергоэффективность, одновременно снижая расходы на отопление. Плоская крыша делает возможным размещение солнечных панелей или зелёных насаждений, а отсутствие пристроенного гаража открывает простор для сада или благоустройства. Дом **Мельник** – это ваш комфорт, надёжность и эстетика в одном неповторимом сочетании. 🌿🏡

Характеристики дома

Архитектурный стиль
Автоматизированное регулирование параметров теплоносителя
Нет
Балконы/лоджии
Отсутствуют
Чердачное помещение
Нет
Датчики протечки воды
Нет
Эксплуатируемая или зеленая кровля
Нет
Электроснабжение
Центральное
Газоснабжение
Индивидуальное
Изоляция воздушного шума
Нет
Камин
Нет
Класс энергоэффективности
-
Класс энергосбережения
-
Количество надземных этажей
1
Круглогодичное проживание
Да
Материал кровли
Металлочерепица
Материал перекрытий
Монолитные железобетонные
Материал внешних стен
Материал внутренних перегородок
Блочные
Модульное строительство с конструкциями заводского изготовления
Нет
Объем надземной части
159 м3
Основной материал фасадов
Штукатурка
Отопление
Индивидуальное
Площадь дома
53 м2
Площадь застройки
66 м2
Подвальное помещение
Нет
Показатель компактности здания
-
Приборы учета тепловой энергии
Нет
Пристроенный гараж/крытая автостоянка
Нет
Противопожарная система
Нет
Санузлы
1
Совмещенная кухня-гостиная
Да
Спальни
2
Терраса
Нет
Тип фундамента
Ленточный
Тип кровли
Толщина внешних стен
300 мм
Толщина внутренних перегородок
200 мм
Улучшенные шумовые характеристики
Нет
Вентиляция
Естественная
Веранда
Нет
Водоотведение
Локальные очистные сооружения
Водоснабжение
Индивидуальное
Высота дома
3.85 м
Высота потолков
3 м

Планировка

Фасад дома

Александр

Закажите выезд инженера

Александр

Выездной инженер
Закажите выезд инженера для точной диагностики и профессиональной консультации по инженерным системам. Специалист приедет в удобное время, проведёт осмотр, рассчитает стоимость работ и подберёт оптимальные решения для вашего дома.


    Похожие проекты

    Ипотека и
    рассрочка
    Дом из кирпича S004
    Стоимость от:
    9 540 740
    Проект от: 57 150
    Этажей 1
    Санузлы 2
    Спальни 3
    Смотреть
    Ипотека и
    рассрочка
    Двухэтажный дом КОМФОРТ 170 С САУНОЙ
    Стоимость от:
    15 192 960
    Проект от: 103 050
    Этажей 2
    Санузлы 3
    Спальни 4
    Смотреть
    Ипотека и
    рассрочка
    Дом с мансардным этажом «Юрма 2.0»
    Стоимость от:
    6 564 960
    Проект от: 42 300
    Этажей 2
    Санузлы 3
    Спальни 2
    Смотреть
    Ипотека и
    рассрочка
    Прага
    Стоимость от:
    12 530 760
    Проект от: 94 050
    Этажей 2
    Санузлы 2
    Спальни 5
    Смотреть
    Ипотека и
    рассрочка
    Каркасный дом Керимар 76
    Стоимость от:
    5 090 460
    Проект от: 38 250
    Этажей 2
    Санузлы 2
    Спальни 4
    Смотреть
    Ипотека и
    рассрочка
    Нельсон
    Стоимость от:
    372 240
    Проект от: 63 450
    Этажей 2
    Санузлы 2
    Спальни 3
    Смотреть

    Как узнать стоимость дома

    back
    Оставляете заявку
    Вы заполняете форму на сайте или звоните нам. Менеджер Лайвкрафт связывается с вами для уточнения деталей: тип дома, площадь, материалы, участок строительства.
    back
    Консультация и подбор решения
    Наш специалист помогает выбрать оптимальный тип дома и конструкцию с учётом бюджета, сроков и целей — будь то дом для постоянного проживания или дача.
    back
    Расчёт предварительной стоимости
    Инженер делает первичный расчёт стоимости строительства по вашим параметрам: фундамент, коробка, кровля, отделка. Вы получаете смету с разбивкой по этапам.
    back
    Корректировка и утверждение сметы
    При необходимости вносим изменения — например, замену материалов или сокращение этапов. После согласования формируется окончательная фиксированная смета.
    back
    Заключение договора и старт работ
    После утверждения сметы заключаем официальный договор с гарантией. Вы получаете прозрачный график и точную стоимость — без скрытых расходов.

    Заказать конусльтацию по:Проект «Мельник»

    Фото 1 Проект «Мельник»


      Наши
      контакты

      Дмитров
      Опорный проезд 28Б
      (индустриальный парк Ниагара)
      9:00 до 18:00

      Корзина