4.9
Рейтинг на основании 120 отзывов
Дмитров
Опорный проезд 28Б
(индустриальный парк Ниагара)
Бренд "Дмитров-Дело" c 2008 года на рынке строительства в Дмитрове
Звоните 9:00 до 18:00 8 (915) 055-33-61
Бренд "Дмитров-Дело" c 2008 года на рынке строительства в Дмитрове

Барн хаус «Мидделбург»

Стоимость проекта от:
58 050 ₽
БЕСПЛАТНО! ПРИ ЗАКАЗЕ СТРОИТЕЛЬСТВА
Стоимость строительства от:
6 910 530 ₽
Артикул ART-14764
Дата 25.12.2025
Архитектурный стиль Барнхаус
Количество надземных этажей 1
Круглогодичное проживание Да
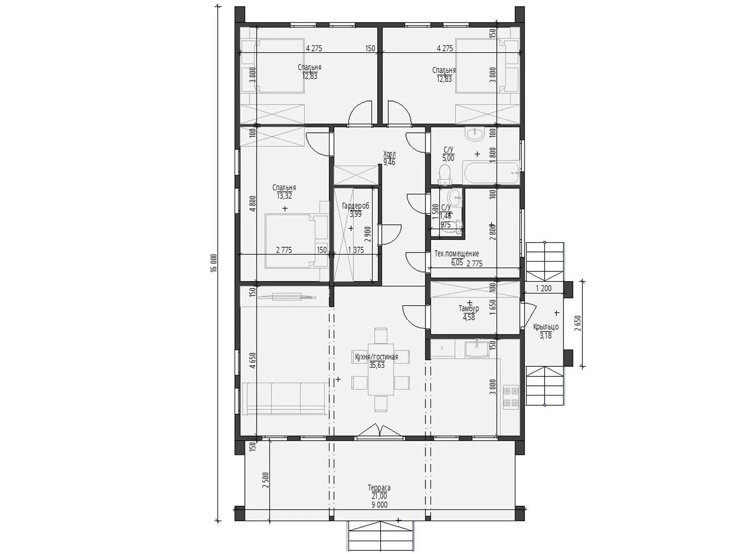
Площадь дома 129 м2
Санузлы 2
Спальни 3

Описание

**Барн Хаус «Мидделбург»** – это уютный уголок, где каждый уголок пропитан атмосферой старинной усадьбы, а при этом все современные удобства находятся в пределах вашего порога. Дом располагается на одном надземном этаже, но благодаря продуманному планировщику и качественным материалам он обеспечивает полный комфорт круглый год: от тёплой зимы до солнечной осени. Архитектурный стиль барнхауса, с его простой, но выразительной линией, подчёркивает естественность и спокойствие, а деревянный каркас внешних стен создаёт ощущение живого тепла. Крутая, двускатная крыша, выполненная в традиционном стиле, добавляет нотку величия и защищает от непогоды, сохраняя идеальную внутреннюю температуру. Внутри от вас нет привычных балконов и веранд, но именно это делает пространство более целостным и уютным: полные стены и закрытые помещения позволяют полностью погрузиться в атмосферу дома, а просторные перегородки создают гибкость пространства. Оглядываясь сверху, вы ощутите простор своего собственного чердачного помещения, которое можно превратить в тихий кабинет, гостиную или мастерскую. И, конечно же, просторная терраса с деревянной столешницей приглашает проводить вечерние часы в кругу семьи, наслаждаясь свежим воздухом и звуками природы. Простой, но надёжный дизайн «Мидделбург» делает его идеальным выбором для тех, кто ценит традиции, но не хочет отказываться от современных удобств. В этом дома каждое решение – от материала стен до конфигурации крыши – тщательно продумано, чтобы вы чувствовали себя как дома на долгие годы. Если вы ищете сочетание стиля, уюта и практичности, то Барн Хаус «Мидделбург» – именно то, что нужно вам.

Характеристики дома

Архитектурный стиль
Автоматизированное регулирование параметров теплоносителя
Нет
Балконы/лоджии
Отсутствуют
Чердачное помещение
Да
Датчики протечки воды
Нет
Эксплуатируемая или зеленая кровля
Нет
Электроснабжение
Не предусмотрено
Газоснабжение
Не предусмотрено
Изоляция воздушного шума
Нет
Камин
Нет
Класс энергоэффективности
-
Класс энергосбережения
-
Количество надземных этажей
1
Круглогодичное проживание
Да
Материал кровли
Стальные листовые гофрированные профили
Материал перекрытий
Деревянные
Материал внешних стен
Материал внутренних перегородок
Деревянные
Модульное строительство с конструкциями заводского изготовления
Нет
Объем надземной части
339 м3
Основной материал фасадов
Дерево
Отопление
Не предусмотрено
Площадь дома
129 м2
Площадь застройки
144 м2
Подвальное помещение
Нет
Показатель компактности здания
-
Приборы учета тепловой энергии
Нет
Пристроенный гараж/крытая автостоянка
Нет
Противопожарная система
Нет
Санузлы
2
Совмещенная кухня-гостиная
Да
Спальни
3
Терраса
Да
Тип фундамента
Свайный
Тип кровли
Толщина внешних стен
203 мм
Толщина внутренних перегородок
175 мм
Улучшенные шумовые характеристики
Нет
Вентиляция
Естественная
Веранда
Нет
Водоотведение
Не предусмотрено
Водоснабжение
Не предусмотрено
Высота дома
3.9 м
Высота потолков
2.5 м

Планировка

Фасад дома

Александр

Закажите выезд инженера

Александр

Выездной инженер
Закажите выезд инженера для точной диагностики и профессиональной консультации по инженерным системам. Специалист приедет в удобное время, проведёт осмотр, рассчитает стоимость работ и подберёт оптимальные решения для вашего дома.


    Похожие проекты

    Ипотека и
    рассрочка
    БАРНХАУС «ЮРГА»
    Стоимость от:
    3 513 510
    Проект от: 28 350
    Этажей 1
    Санузлы 1
    Спальни 2
    Смотреть
    Ипотека и
    рассрочка
    Комфорт
    Стоимость от:
    7 740 260
    Проект от: 46 350
    Этажей 1
    Санузлы 1
    Спальни 3
    Смотреть
    Ипотека и
    рассрочка
    «Минимализм»
    Стоимость от:
    5 884 120
    Проект от: 38 700
    Этажей 1
    Санузлы 1
    Спальни 3
    Смотреть
    Ипотека и
    рассрочка
    Дом из CLT «Болгар»
    Стоимость от:
    1 021 200
    Проект от: 96 750
    Этажей 2
    Санузлы 2
    Спальни 4
    Смотреть
    Ипотека и
    рассрочка
    Дом Лили Лофт
    Стоимость от:
    3 534 360
    Проект от: 26 550
    Этажей 2
    Санузлы 1
    Спальни 1
    Смотреть
    Ипотека и
    рассрочка
    Фаворит
    Стоимость от:
    6 710 330
    Проект от: 47 700
    Этажей 1
    Санузлы 1
    Спальни 3
    Смотреть

    Как узнать стоимость дома

    back
    Оставляете заявку
    Вы заполняете форму на сайте или звоните нам. Менеджер Лайвкрафт связывается с вами для уточнения деталей: тип дома, площадь, материалы, участок строительства.
    back
    Консультация и подбор решения
    Наш специалист помогает выбрать оптимальный тип дома и конструкцию с учётом бюджета, сроков и целей — будь то дом для постоянного проживания или дача.
    back
    Расчёт предварительной стоимости
    Инженер делает первичный расчёт стоимости строительства по вашим параметрам: фундамент, коробка, кровля, отделка. Вы получаете смету с разбивкой по этапам.
    back
    Корректировка и утверждение сметы
    При необходимости вносим изменения — например, замену материалов или сокращение этапов. После согласования формируется окончательная фиксированная смета.
    back
    Заключение договора и старт работ
    После утверждения сметы заключаем официальный договор с гарантией. Вы получаете прозрачный график и точную стоимость — без скрытых расходов.

    Заказать конусльтацию по:Барн хаус «Мидделбург»

    Фото 1 Барн хаус «Мидделбург»


      Наши
      контакты

      Дмитров
      Опорный проезд 28Б
      (индустриальный парк Ниагара)
      9:00 до 18:00

      Корзина