4.9
Рейтинг на основании 120 отзывов
Дмитров
Опорный проезд 28Б
(индустриальный парк Ниагара)
Бренд "Дмитров-Дело" c 2008 года на рынке строительства в Дмитрове
Звоните 9:00 до 18:00 8 (915) 055-33-61
Бренд "Дмитров-Дело" c 2008 года на рынке строительства в Дмитрове

БАРНХАУС «ЮРГА»

Стоимость проекта от:
28 350 ₽
БЕСПЛАТНО! ПРИ ЗАКАЗЕ СТРОИТЕЛЬСТВА
Стоимость строительства от:
3 513 510 ₽
Артикул ART-12660
Дата 25.12.2025
Архитектурный стиль Барнхаус
Количество надземных этажей 1
Круглогодичное проживание Да
Площадь дома 63 м2
Санузлы 1
Спальни 2

Описание

БАРНХАУС «ЮРГА» – это стильный уголок уюта, где традиционный винтажный шарм сочетается с современными удобствами. Однезатишевой, но обильно просторный, этот дом позволяет круглогодично наслаждаться комфортом, благодаря утепленным деревянным каркасным стенам и комбинированной крыше, обеспечивающей защиту от всего погода. Внутри каждый уголок пропитан теплом естественного дерева, а большие окна, выходящие на живописную террасу, создают ощущение лёгкости и объёма. Терраса – настоящее сердцебиение «Юрги»: здесь можно устроить романтическую барбекю‑вечеринку в летние вечеринки или просто распечататься в тишине, окружённой природой. Жилой план прост, но функционален: гостинная, кухня и уютный уголок для отдыха идут от простоты и прозрачности простого дизайна. Отсутствие балконов и пристроенного гаража лишь подчёркивает минимализм, позволяющий сконцентрироваться на интерьере и природном окружении. Вы обретете не просто дом, а полноценное пространство, где каждая деталь работает на созидание атмосферы уюта и гармонии.

Характеристики дома

Архитектурный стиль
Автоматизированное регулирование параметров теплоносителя
Да
Балконы/лоджии
Отсутствуют
Чердачное помещение
Нет
Датчики протечки воды
Нет
Эксплуатируемая или зеленая кровля
Нет
Электроснабжение
Центральное
Газоснабжение
Центральное
Изоляция воздушного шума
Да
Камин
Нет
Класс энергоэффективности
A+
Класс энергосбережения
A+
Количество надземных этажей
1
Круглогодичное проживание
Да
Материал кровли
Металлические листовые гофрированные профили
Материал перекрытий
Деревянные
Материал внешних стен
Материал внутренних перегородок
Деревянные
Модульное строительство с конструкциями заводского изготовления
Нет
Объем надземной части
245 м3
Основной материал фасадов
Фальцевая кровля кликфальц
Отопление
Индивидуальное
Площадь дома
63 м2
Площадь застройки
63 м2
Подвальное помещение
Нет
Показатель компактности здания
0.82
Приборы учета тепловой энергии
Да
Пристроенный гараж/крытая автостоянка
Нет
Противопожарная система
Нет
Санузлы
1
Совмещенная кухня-гостиная
Да
Спальни
2
Терраса
Да
Тип фундамента
Свайный
Тип кровли
Толщина внешних стен
220 мм
Толщина внутренних перегородок
180 мм
Улучшенные шумовые характеристики
Да
Вентиляция
Естественная
Веранда
Нет
Водоотведение
Локальные очистные сооружения
Водоснабжение
Индивидуальное
Высота дома
4.6 м
Высота потолков
3.5 м

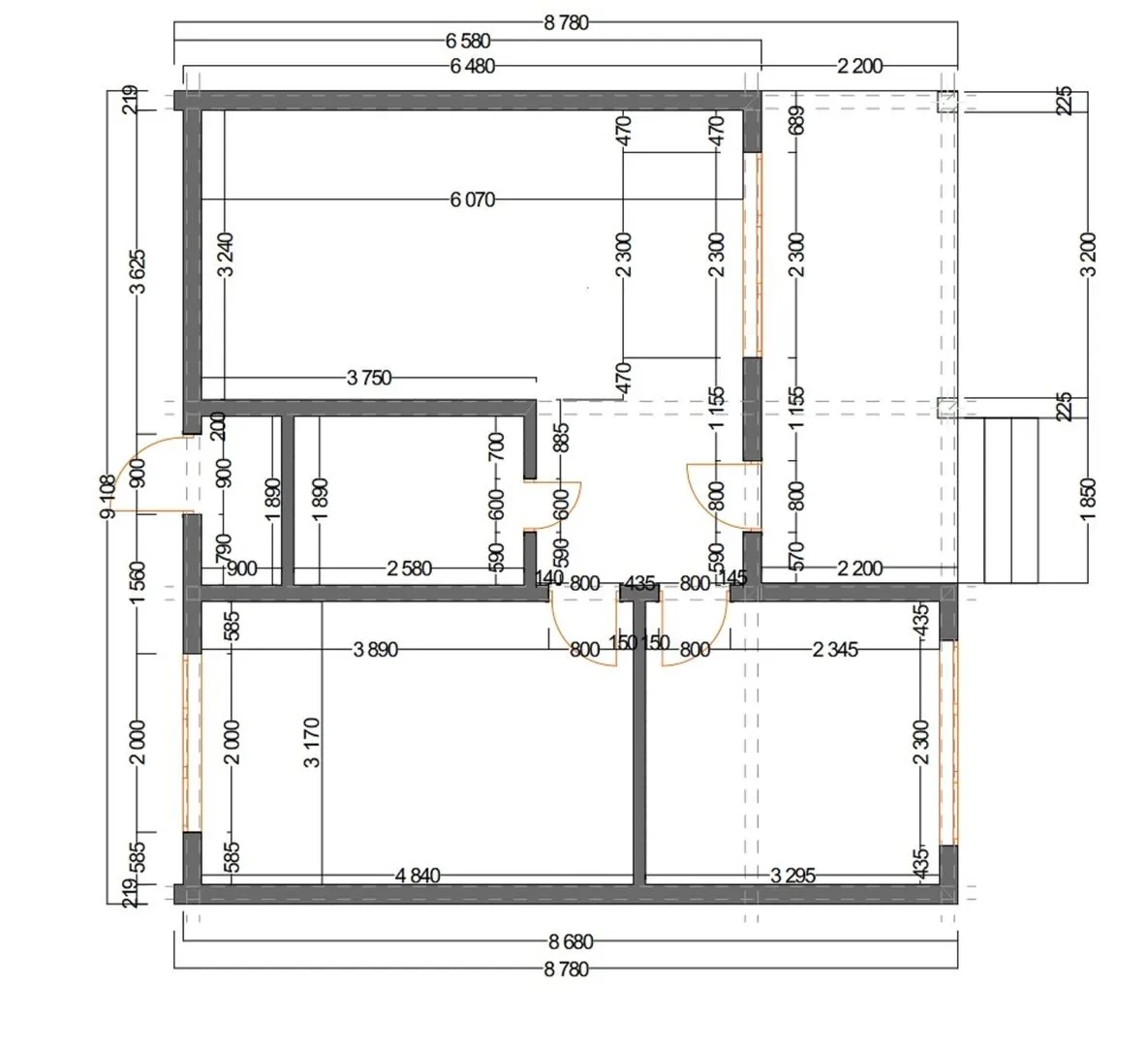
Планировка

Фасад дома

Александр

Закажите выезд инженера

Александр

Выездной инженер
Закажите выезд инженера для точной диагностики и профессиональной консультации по инженерным системам. Специалист приедет в удобное время, проведёт осмотр, рассчитает стоимость работ и подберёт оптимальные решения для вашего дома.


    Похожие проекты

    Ипотека и
    рассрочка
    Дом 105кв.м.
    Стоимость от:
    7 890 300
    Проект от: 47 250
    Этажей 1
    Санузлы 1
    Спальни 3
    Смотреть
    Ипотека и
    рассрочка
    Герцен-99
    Стоимость от:
    7 909 440
    Проект от: 50 400
    Этажей 1
    Санузлы 2
    Спальни 3
    Смотреть
    Ипотека и
    рассрочка
    «МАРК2» ПРОЕКТ ЗАГОРОДНОГО ДОМА
    Стоимость от:
    5 894 680
    Проект от: 33 300
    Этажей 1
    Санузлы 1
    Спальни 2
    Смотреть
    Ипотека и
    рассрочка
    Эффектный проект ТИРОЛЬ М
    Стоимость от:
    18 768 960
    Проект от: 118 800
    Этажей 2
    Санузлы 2
    Спальни 5
    Смотреть
    Ипотека и
    рассрочка
    Дом-баня с тамбуром и мансардным этажом
    Стоимость от:
    5 393 280
    Проект от: 32 400
    Этажей 2
    Санузлы 1
    Спальни 2
    Смотреть
    Ипотека и
    рассрочка
    Загородный дом ВС-121
    Стоимость от:
    8 042 640
    Проект от: 49 950
    Этажей 2
    Санузлы 1
    Спальни 3
    Смотреть

    Как узнать стоимость дома

    back
    Оставляете заявку
    Вы заполняете форму на сайте или звоните нам. Менеджер Лайвкрафт связывается с вами для уточнения деталей: тип дома, площадь, материалы, участок строительства.
    back
    Консультация и подбор решения
    Наш специалист помогает выбрать оптимальный тип дома и конструкцию с учётом бюджета, сроков и целей — будь то дом для постоянного проживания или дача.
    back
    Расчёт предварительной стоимости
    Инженер делает первичный расчёт стоимости строительства по вашим параметрам: фундамент, коробка, кровля, отделка. Вы получаете смету с разбивкой по этапам.
    back
    Корректировка и утверждение сметы
    При необходимости вносим изменения — например, замену материалов или сокращение этапов. После согласования формируется окончательная фиксированная смета.
    back
    Заключение договора и старт работ
    После утверждения сметы заключаем официальный договор с гарантией. Вы получаете прозрачный график и точную стоимость — без скрытых расходов.

    Заказать конусльтацию по:БАРНХАУС «ЮРГА»

    Фото 1 БАРНХАУС «ЮРГА»


      Наши
      контакты

      Дмитров
      Опорный проезд 28Б
      (индустриальный парк Ниагара)
      9:00 до 18:00

      Корзина