4.9
Рейтинг на основании 120 отзывов
Дмитров
Опорный проезд 28Б
(индустриальный парк Ниагара)
Бренд "Дмитров-Дело" c 2008 года на рынке строительства в Дмитрове
Звоните 9:00 до 18:00 8 (915) 055-33-61
Бренд "Дмитров-Дело" c 2008 года на рынке строительства в Дмитрове

Двухэтажный каркасный дом Пион-2

Стоимость проекта от:
70 650 ₽
БЕСПЛАТНО! ПРИ ЗАКАЗЕ СТРОИТЕЛЬСТВА
Стоимость строительства от:
9 413 880 ₽
Артикул ART-12951
Дата 25.12.2025
Архитектурный стиль Европейский
Количество надземных этажей 2
Круглогодичное проживание Да
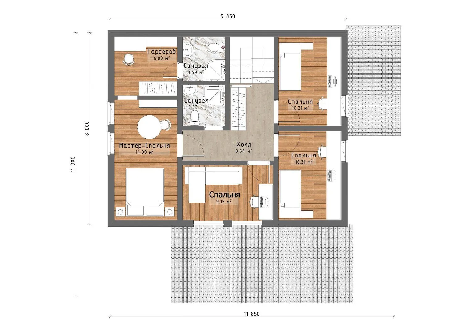
Площадь дома 157 м2
Санузлы 3
Спальни 5

Описание

Добро пожаловать в два‑этажный каркасный «Пион‑2» – настоящий уголок уюта и современного комфорта в европейском стиле. Уникальная конструкция из деревянного каркаса и комбинированная кровля гарантируют долгую службу и отличную теплоизоляцию, что делает дом идеальным для круглогодичного проживания. Просторные, светлые комнаты, большие окна и продуманная планировка создают ощущение свежести и открытости, а отсутствие балконов и веранд не мешает наслаждаться яркой природой через террасу, где можно провести уютный вечер или приготовить шашлык в летний день. Каждый элемент дома сочетает в себе эстетику и практичность: от изысканного внешнего облига, выполненного в классическом европейском стиле, до прочных деревянных стен, которые надежно защищают от холода и шума. Привлекательная комбинированная кровля не только выглядит стильно, но и обеспечивает эффективную защиту от атмосферных последствий, сохраняя тепло внутри даже в самые суровые зимы. В интерьере сохраняется баланс между теплом, природой и современностью, что делает «Пион‑2» идеальным выбором для тех, кто ценит комфорт, стиль и заботу о семье.

Характеристики дома

Архитектурный стиль
Автоматизированное регулирование параметров теплоносителя
Нет
Балконы/лоджии
Отсутствуют
Чердачное помещение
Нет
Датчики протечки воды
Нет
Эксплуатируемая или зеленая кровля
Нет
Электроснабжение
2 варианта
Газоснабжение
2 варианта
Изоляция воздушного шума
Нет
Камин
Нет
Класс энергоэффективности
-
Класс энергосбережения
-
Количество надземных этажей
2
Круглогодичное проживание
Да
Материал кровли
Металлочерепица
Материал перекрытий
Деревянные
Материал внешних стен
Материал внутренних перегородок
Деревянные
Модульное строительство с конструкциями заводского изготовления
Нет
Объем надземной части
670 м3
Основной материал фасадов
Дерево
Отопление
2 варианта
Площадь дома
157 м2
Площадь застройки
130 м2
Подвальное помещение
Нет
Показатель компактности здания
-
Приборы учета тепловой энергии
Нет
Пристроенный гараж/крытая автостоянка
Нет
Противопожарная система
Нет
Санузлы
3
Совмещенная кухня-гостиная
Да
Спальни
5
Терраса
Да
Тип фундамента
Свайный
Тип кровли
Толщина внешних стен
285 мм
Толщина внутренних перегородок
220 мм
Улучшенные шумовые характеристики
Нет
Вентиляция
2 варианта
Веранда
Нет
Водоотведение
2 варианта
Водоснабжение
2 варианта
Высота дома
7.5 м
Высота потолков
2.7 м

Планировка

Фасад дома

Александр

Закажите выезд инженера

Александр

Выездной инженер
Закажите выезд инженера для точной диагностики и профессиональной консультации по инженерным системам. Специалист приедет в удобное время, проведёт осмотр, рассчитает стоимость работ и подберёт оптимальные решения для вашего дома.


    Похожие проекты

    Ипотека и
    рассрочка
    Одноэтажный дом с 3 спальнями, террасой и баней «Армас-2»
    Стоимость от:
    9 540 740
    Проект от: 57 150
    Этажей 1
    Санузлы 1
    Спальни 3
    Смотреть
    Ипотека и
    рассрочка
    РП-171,2/24
    Стоимость от:
    12 650 880
    Проект от: 77 400
    Этажей 2
    Санузлы 2
    Спальни 5
    Смотреть
    Ипотека и
    рассрочка
    ДТ-100
    Стоимость от:
    7 515 200
    Проект от: 45 000
    Этажей 1
    Санузлы 1
    Спальни 3
    Смотреть
    Ипотека и
    рассрочка
    Одноэтажный дом с плоской крышей и тремя спальнями
    Стоимость от:
    6 004 460
    Проект от: 44 100
    Этажей 1
    Санузлы 1
    Спальни 3
    Смотреть
    Ипотека и
    рассрочка
    Ю-3-65
    Стоимость от:
    4 214 320
    Проект от: 25 200
    Этажей 1
    Санузлы 2
    Спальни 3
    Смотреть
    Ипотека и
    рассрочка
    «OKSODOMIK-63 в 1 этаж»
    Стоимость от:
    4 310 460
    Проект от: 28 350
    Этажей 1
    Санузлы 1
    Спальни 2
    Смотреть

    Как узнать стоимость дома

    back
    Оставляете заявку
    Вы заполняете форму на сайте или звоните нам. Менеджер Лайвкрафт связывается с вами для уточнения деталей: тип дома, площадь, материалы, участок строительства.
    back
    Консультация и подбор решения
    Наш специалист помогает выбрать оптимальный тип дома и конструкцию с учётом бюджета, сроков и целей — будь то дом для постоянного проживания или дача.
    back
    Расчёт предварительной стоимости
    Инженер делает первичный расчёт стоимости строительства по вашим параметрам: фундамент, коробка, кровля, отделка. Вы получаете смету с разбивкой по этапам.
    back
    Корректировка и утверждение сметы
    При необходимости вносим изменения — например, замену материалов или сокращение этапов. После согласования формируется окончательная фиксированная смета.
    back
    Заключение договора и старт работ
    После утверждения сметы заключаем официальный договор с гарантией. Вы получаете прозрачный график и точную стоимость — без скрытых расходов.

    Заказать конусльтацию по:Двухэтажный каркасный дом Пион-2

    Фото 1 Двухэтажный каркасный дом Пион-2


      Наши
      контакты

      Дмитров
      Опорный проезд 28Б
      (индустриальный парк Ниагара)
      9:00 до 18:00

      Корзина