Мельник-1
Описание
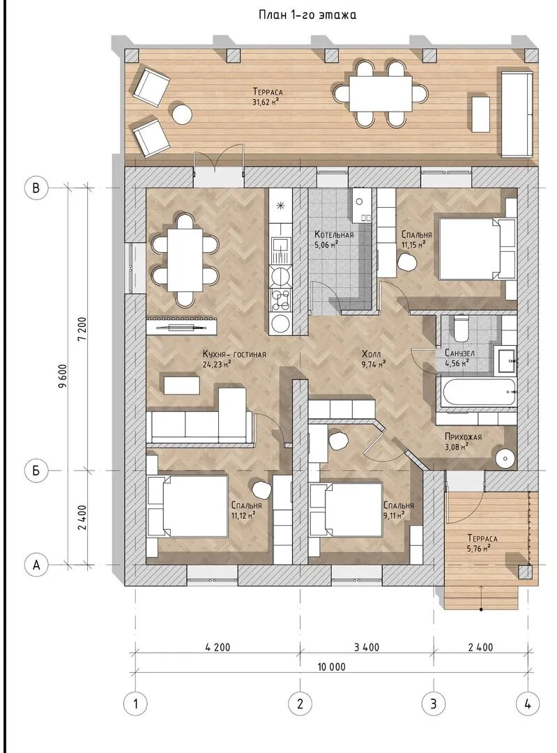
Характеристики дома
Архитектурный стиль
Автоматизированное регулирование параметров теплоносителя
Да
Балконы/лоджии
Отсутствуют
Чердачное помещение
Нет
Датчики протечки воды
Нет
Эксплуатируемая или зеленая кровля
Нет
Электроснабжение
Центральное
Газоснабжение
Индивидуальное
Изоляция воздушного шума
Нет
Камин
Нет
Класс энергоэффективности
-
Класс энергосбережения
-
Количество надземных этажей
1
Круглогодичное проживание
Да
Материал кровли
Металлочерепица
Материал перекрытий
Монолитные железобетонные
Материал внешних стен
Материал внутренних перегородок
Пенобетонные
Модульное строительство с конструкциями заводского изготовления
Нет
Объем надземной части
585 м3
Основной материал фасадов
Облицовочный кирпич
Отопление
Индивидуальное
Площадь дома
115 м2
Площадь застройки
120 м2
Подвальное помещение
Нет
Показатель компактности здания
-
Приборы учета тепловой энергии
Нет
Пристроенный гараж/крытая автостоянка
Нет
Противопожарная система
Нет
Санузлы
1
Совмещенная кухня-гостиная
Да
Спальни
3
Терраса
Да
Тип фундамента
Плитный
Тип кровли
Толщина внешних стен
540 мм
Толщина внутренних перегородок
100 мм
Улучшенные шумовые характеристики
Да
Вентиляция
Естественная
Веранда
Нет
Водоотведение
Локальные очистные сооружения
Водоснабжение
Индивидуальное
Высота дома
6.1 м
Высота потолков
2.8 м
Категории проекта
Строительство домовСтроительство домов без балкона или лоджииСтроительство домов без верандыСтроительство домов без гаражаСтроительство домов без чердакаСтроительство домов в Классическом стилеСтроительство домов для круглогодичного проживанияСтроительство домов из газобетонных блоковСтроительство домов с верандойСтроительство домов с террасойСтроительство домов с четырехскатной (вальмовой) кровлейСтроительство одноэтажных домов
Закажите выезд инженера
Александр
Выездной инженер
Закажите выезд инженера для точной диагностики и профессиональной консультации по инженерным
системам. Специалист приедет в удобное время, проведёт осмотр, рассчитает стоимость работ и подберёт
оптимальные решения для вашего дома.
Как узнать стоимость дома
Заказать конусльтацию по:Мельник-1
Наши
контакты
Дмитров
Опорный проезд 28Б
(индустриальный парк Ниагара)
Опорный проезд 28Б
(индустриальный парк Ниагара)
9:00 до 18:00